賃貸マンション
モナーク杉並堀ノ内の賃貸物件情報(1K/7階)
| 家賃 | 管理費等 | 敷金 | 礼金 | 間取り | 専有面積 |
|---|---|---|---|---|---|
| 8万円 | 1万円 | 8万円 | 8万円 | 1K | 32.36m2 |
入居決定でお祝い金最大100,000円
- 保証金
- -
- 償却・敷引
- -
- 築年数
- 築37年
- 所在階
- 7階
- 向き
- 東
Point
当物件は初期費用分割払い可(クレジットカード決済も可)/お客様のご希望に合わせた方法(店頭、オンライン等)で物件をご提案いたします。初期費用のお見積りや入居希望日のご相談もお気軽にお問い合わせください
提供:アエラス荻窪店 (株)アエラス.FR(SUUMO経由)

詳細情報 モナーク杉並堀ノ内
物件紹介
モナーク杉並堀ノ内は東京メトロ丸ノ内線方南町駅から徒歩7分にあり、駅近で通勤通学に便利なマンションです。
このお部屋は2階以上に位置しているので通行人や周囲の住人からの視線が気になりにくく、建物のエントランスはオートロックがついているので防犯性が高くなっています。
人気の角部屋。周囲の居住者の生活音も気になりにくい場所です。
通信設備面では、インターネット接続が可能です(別途工事、契約料が必要な場合あり)。
建物にはエレベーターがついているので、重い荷物があっても安心。
このお部屋は2階以上に位置しているので通行人や周囲の住人からの視線が気になりにくく、建物のエントランスはオートロックがついているので防犯性が高くなっています。
人気の角部屋。周囲の居住者の生活音も気になりにくい場所です。
通信設備面では、インターネット接続が可能です(別途工事、契約料が必要な場合あり)。
建物にはエレベーターがついているので、重い荷物があっても安心。
お金・契約の情報
※「-」と表示されているものは、実際は料金が発生するものもございます。詳細はお問い合わせください。
| 家賃 | 8万円 | 管理費・共益費 | 1万円 |
|---|---|---|---|
| 敷金 | 8万円 | 礼金 | 8万円 |
| 入居決定でお祝い金最大100,000円 | |||
| 保証金 | - | 償却・敷引 | - |
| 住宅保険料 | - | 更新料 | - |
| 保証会社利用 | 必須 | 保証会社名 | - |
| 保証会社費用 | - | 保証会社備考 | 保証会社利用必 個人の場合賃料等の50%、法人の場合賃料等の100% |
| 契約形態 | - | 契約期間 | - |
| 入居・引渡期間 | - | 現況 | - |
| 契約備考 | 土持医院まで445m/杉並聖堂前郵便局まで377m/室内清掃費用借主負担 1K 普通借家2年 損保【要】 エアコン、クロゼット、オートロック、室内洗濯置、角住戸、エレベーター、2口コンロ、光ファイバー、外壁タイル張り、最上階、防犯カメラ、IHクッキングヒーター、分譲賃貸、敷金1ヶ月、2沿線利用可、保証金不要、外壁コンクリート、3駅以上利用可、駅徒歩10分以内、24時間ゴミ出し可、高速ネット対応、礼金1ヶ月、初期費用カード決済可 入居日:'26年1月下旬 | ||
部屋の情報
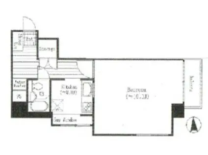
| 間取り | 1K | 専有面積 | 32.36m2 |
|---|---|---|---|
| 所在階 / 向き | 7階 / 東 | バルコニー面積 | - |
| 水道 / ガス | - | ||
| 設備 | 2階以上、オートロック、インターネット対応、エアコン、エレベーター、角部屋、2口コンロ、コンロ:IH、洗濯機:室内 | ||
| 当社物件ID | 160227680 | ||
建物の情報
| 建物名 | モナーク杉並堀ノ内 | ||
|---|---|---|---|
| 所在地 | 東京都杉並区堀ノ内 | ||
| 交通 | 東京メトロ丸ノ内線 方南町駅 徒歩7分 東京メトロ丸ノ内線 中野富士見町駅 徒歩17分 東京メトロ丸ノ内線 東高円寺駅 徒歩19分 | ||
| 階数 | 7階建 | 総戸数 | - |
| 築年月 | 1989年08月 / 築37年 | エレベーター | あり |
| 駐車場 | 近隣 325m44000円 | バイク置き場 | - |
| 駐輪場 | - | 管理人/管理会社 | - |
| 周辺環境 | その他 まいばすけっと 方南町店(スーパー)まで465m その他 セブン-イレブン 杉並堀ノ内2丁目店(コンビニ)まで117m その他 ココカラファイン 杉並堀ノ内店(ドラッグストア)まで454m その他 島忠 ホームズ中野本店(ホームセンター)まで1114m その他 安楽亭 杉並堀ノ内店(飲食店)まで384m その他 立正佼成会附属佼成病院(病院)まで423m | ||
| 建物種別 | マンション | 建物構造 | RC(鉄筋コンクリート) |
この部屋の取扱い不動産会社
| 会社名 | アエラス荻窪店 (株)アエラス.FR(SUUMO経由) | ||
|---|---|---|---|
| 所在地 | 東京都杉並区天沼3-3-7 荻窪駅前第24大京ビル 6階 | 交通 | - |
| 営業時間 | 10:00~19:00(時間外対応出来る場合有り) | 定休日 | 毎週水曜日 |
| 免許番号 | 国土交通大臣10206 | 取引態様 | 仲介 |
| 不動産会社管理番号 | 100483343684 | 当社管理番号 | 89 |
| 所属団体 | (公社)東京都宅地建物取引業協会会員 | ||
| 公正取引協議会 | (公社)首都圏不動産公正取引協議会加盟 | ||
| 取扱い物件情報 | 物件詳細へ | ||
※各種情報と現状に差異がある場合は、現状優先となります。問い合わせをすることで、より詳しい条件、情報を確認する事ができます。
提供:アエラス荻窪店 (株)アエラス.FR(SUUMO経由)
この物件が気になったら掲載期限まであと10日
モナーク杉並堀ノ内に条件(家賃・エリア)が近い物件一覧
| 写真 | 家賃 管理費等 | 敷金 礼金 | 間取り 専有面積 | 築年数 | 最寄り駅 所在地 | キープ | 詳細 |
|---|---|---|---|---|---|---|---|
アパート メゾン S(1K/2階) | |||||||
![]() | 7.3万円 3,000円 | 7.3万円 7.3万円 | 1K 20.4m2 | 築34年 | 中央本線 吉祥寺駅 徒歩7分 東京都武蔵野市吉祥寺本町2丁目 | 詳細を見る | |
マンション NKガーデン(1K/2階) | |||||||
![]() | 6.9万円 2,000円 | 6.9万円 なし | 1K 23.25m2 | 築22年 | 西武池袋線 富士見台駅 徒歩2分 西武池袋線 中村橋駅 徒歩9分 西武新宿線 下井草駅 徒歩20分 東京都中野区上鷺宮 | 詳細を見る | |
マンション ベーシックハイツ奥沢(1K/2階) | |||||||
![]() | 8.6万円 3,000円 | 8.6万円 8.6万円 | 1K 23.4m2 | 築27年 | 東急目黒線 奥沢駅 徒歩6分 東急東横線 自由が丘駅(東京) 徒歩7分 東急大井町線 九品仏駅 徒歩8分 東京都世田谷区奥沢 | 詳細を見る | |
マンション ハイム・ブルーメ(1DK/2階) | |||||||
![]() | 10万円 なし | 10万円 10万円 | 1DK 25m2 | 築47年 | 京王井の頭線 下北沢駅 徒歩1分 京王井の頭線 新代田駅 徒歩7分 京王線 笹塚駅 徒歩20分 東京都世田谷区代田 | 詳細を見る | |
アパート コートビレッジK1・K2(2DK/2階) | |||||||
![]() | 8.1万円 2,000円 | 8.1万円 8.1万円 | 2DK 39.74m2 | 築36年 | 西武新宿線 上井草駅 徒歩10分 西武新宿線 上石神井駅 徒歩18分 西武新宿線 井荻駅 徒歩22分 東京都練馬区下石神井 | 詳細を見る | |
マンション COCOCUBE大泉学園(1K/3階) | |||||||
![]() | 8万円 1万円 | なし なし | 1K 22.26m2 | 築5年 | 西武池袋線 大泉学園駅 徒歩10分 西武池袋線 石神井公園駅 徒歩17分 東京都練馬区東大泉 | 詳細を見る | |
マンション 荻窪カフェレジデンス(ワンルーム/4階) | |||||||
![]() | 7.6万円 6,000円 | なし 7.6万円 | ワンルーム 20.33m2 | 築15年 | 中央本線 荻窪駅 徒歩5分 東京都杉並区荻窪5丁目 | 詳細を見る | |








