賃貸マンション
レジュールアッシュ都島ブリーゼの賃貸物件情報(1K/5階)
| 家賃 | 管理費等 | 敷金 | 礼金 | 間取り | 専有面積 |
|---|---|---|---|---|---|
| 6.2万円 | 7,500円 | なし | 6.2万円 | 1K | 21.74m2 |
入居決定でお祝い金最大100,000円
- 保証金
- -
- 償却・敷引
- -
- 築年数
- 築6年
- 所在階
- 5階
- 向き
- -
Point
ぜひ一度見ていただきたい、「レジュールアッシュ都島ブリーゼ」です。徒歩12分の距離に大阪市立都島中学校があるのも魅力。当社では地下鉄谷町線都島周辺の賃貸情報を数多く取り扱っております。引っ越しを検討しているなら、お気軽にご連絡ください。
提供:株式会社KARIRU

詳細情報 レジュールアッシュ都島ブリーゼ
物件紹介
レジュールアッシュ都島ブリーゼは大阪市谷町線都島駅から徒歩7分にあり、駅近で通勤通学に便利なマンションです。
このお部屋は2階以上に位置しているので、通行人や周囲の住人からの視線が気になりにくく、防犯面でも安心。建物のエントランスはオートロックがついており、インターホンにはTVモニタもついているため、相手の顔を確認してから来客対応することができます。
フローリングのお部屋なのでお掃除もラクラク。キッチンはシステムキッチン仕様になっていますので、お料理好きの方にもぴったり。バス・トイレは別なので、のんびりお風呂タイムも楽しめるでしょう。また、雨の日でも浴室乾燥機を使えば、お洗濯も問題ありません。
通信設備面では、インターネットが無料で使えるので、月々の出費を抑えられるのも魅力です。また、BSアンテナ・CSアンテナもありますので、おうち時間も充実するでしょう(別途工事、BS・CSの契約料等が必要な場合あり)。
建物にはエレベーターがついているので、重い荷物があっても安心。共用部には宅配ボックスが設定されているので、不在の時にも荷物を受け取ることができます。また、ペット飼育の相談ができますので、あなたの大切な家族の一員も快適に暮らせるか、ぜひ確認してみてください。
コンビニまで徒歩3分の場所にあり、日用品や食料品のお買い物にも便利です。
このお部屋は2階以上に位置しているので、通行人や周囲の住人からの視線が気になりにくく、防犯面でも安心。建物のエントランスはオートロックがついており、インターホンにはTVモニタもついているため、相手の顔を確認してから来客対応することができます。
フローリングのお部屋なのでお掃除もラクラク。キッチンはシステムキッチン仕様になっていますので、お料理好きの方にもぴったり。バス・トイレは別なので、のんびりお風呂タイムも楽しめるでしょう。また、雨の日でも浴室乾燥機を使えば、お洗濯も問題ありません。
通信設備面では、インターネットが無料で使えるので、月々の出費を抑えられるのも魅力です。また、BSアンテナ・CSアンテナもありますので、おうち時間も充実するでしょう(別途工事、BS・CSの契約料等が必要な場合あり)。
建物にはエレベーターがついているので、重い荷物があっても安心。共用部には宅配ボックスが設定されているので、不在の時にも荷物を受け取ることができます。また、ペット飼育の相談ができますので、あなたの大切な家族の一員も快適に暮らせるか、ぜひ確認してみてください。
コンビニまで徒歩3分の場所にあり、日用品や食料品のお買い物にも便利です。
お金・契約の情報
※「-」と表示されているものは、実際は料金が発生するものもございます。詳細はお問い合わせください。
| 家賃 | 6.2万円 | 管理費・共益費 | 7,500円 |
|---|---|---|---|
| 敷金 | なし | 礼金 | 6.2万円 |
| 入居決定でお祝い金最大100,000円 | |||
| 保証金 | - | 償却・敷引 | - |
| 住宅保険料 | 住宅保険料あり(2年) | 更新料 | - |
| その他費用 | 室内清掃費:4.4万円 | ||
| 保証会社利用 | 必須 | 保証会社名 | 日本セーフティー |
| 保証会社費用 | - | 保証会社備考 | 都度ご確認ください。 都度ご確認ください。 |
| 契約形態 | - | 契約期間 | 2年 |
| 入居・引渡期間 | 2026年02月上旬 | 現況 | 賃貸中 |
| 契約備考 | 大阪市都島区エリアでの住まいなら、住み心地も快適な「レジュールアッシュ都島ブリーゼ」はいかがでしょうか。徒歩12分の距離に大阪市立都島中学校があるのも魅力。通勤時間を短縮したいなら、地下鉄谷町線都島周辺でお部屋探しをするのも手です。数多くの賃貸情報がありますので、この機会にお引っ越しをご検討ください。 | ||
部屋の情報
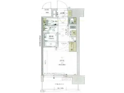
| 間取り | 1K | 専有面積 | 21.74m2 |
|---|---|---|---|
| 所在階 / 向き | 5階 / - | バルコニー面積 | - |
| 水道 / ガス | 水道【公営】、ガス【都市】 | ||
| 設備 | バス・トイレ別、オートロック、テレビドアホン、宅配ボックス、浴室乾燥機、インターネット対応、システムキッチン、エアコン、エレベーター、温水洗浄便座、バルコニー、フローリング、洗髪洗面化粧台、2口コンロ、コンロ:ガス、シャワー、給湯、洗濯機:室内、タイル張り | ||
| 当社物件ID | 38609184 | ||
建物の情報
| 建物名 | レジュールアッシュ都島ブリーゼ | ||
|---|---|---|---|
| 所在地 | 大阪府大阪市都島区都島本通3丁目 12-20 | ||
| 交通 | 大阪市谷町線 都島駅 徒歩7分 大阪市谷町線 野江内代駅 徒歩10分 | ||
| 階数 | 9階建 | 総戸数 | - |
| 築年月 | 2020年04月 / 築6年 | エレベーター | あり |
| 駐車場 | 近隣 1.89万円/月 徒歩3分(200m) 要確認 | バイク置き場 | あり |
| 駐輪場 | あり | 管理人/管理会社 | 巡回 |
| 周辺環境 | コンビニ 徒歩3分(186m) 販売店 徒歩5分(398m) 中学校 大阪市立都島中学校 徒歩12分(885m) 小学校 大阪市立都島小学校 徒歩3分(204m) | ||
| 建物種別 | マンション | 建物構造 | RC(鉄筋コンクリート) |
この部屋の取扱い不動産会社
| 会社名 | 株式会社KARIRU | ||
|---|---|---|---|
| 所在地 | 大阪府大阪市都島区東野田町2-9-13 松和京橋ビル4F | 交通 | JR環状線「京橋駅」北口徒歩3分 |
| 営業時間 | 10:00~24:00 | 定休日 | 年末年始 |
| 免許番号 | 大阪府知事(1)064547号 | 取引態様 | 仲介 |
| 不動産会社管理番号 | 326091 | 当社管理番号 | 462 |
| 取扱い物件情報 | 物件詳細へ | ||
※各種情報と現状に差異がある場合は、現状優先となります。問い合わせをすることで、より詳しい条件、情報を確認する事ができます。
提供:株式会社KARIRU
この物件が気になったら掲載期限まであと4日
レジュールアッシュ都島ブリーゼに条件(家賃・エリア)が近い物件一覧
| 写真 | 家賃 管理費等 | 敷金 礼金 | 間取り 専有面積 | 築年数 | 最寄り駅 所在地 | キープ | 詳細 |
|---|---|---|---|---|---|---|---|
アパート REVITA鳳北町4丁(1LDK/2階) | |||||||
![]() | 6.5万円 5,000円 | なし 6.5万円 | 1LDK 30.43m2 | 築1年 | 阪和線 津久野駅 徒歩10分 阪和線 鳳駅 徒歩12分 南海電鉄南海本線 浜寺公園駅 徒歩26分 大阪府堺市西区鳳北町4丁 | 詳細を見る | |
マンション 阪和線 鳳駅 徒歩13分 築23年(1K/3階) | |||||||
![]() | 5.2万円 3,000円 | なし なし | 1K 29m2 | 築23年 | 阪和線 鳳駅 徒歩13分 南海電鉄南海本線 浜寺公園駅 徒歩14分 南海電鉄南海本線 羽衣駅 徒歩20分 大阪府堺市西区浜寺元町6丁 | 詳細を見る | |
マンション アドバンス江坂東デパール(1LDK/10階) | |||||||
| 9.14万円 5,400円 | なし 18.28万円 | 1LDK 28.83m2 | 築2年 | おおさか東線 南吹田駅 徒歩11分 北大阪急行南北線 江坂駅 徒歩17分 阪急電鉄千里線 吹田駅(阪急) 徒歩19分 大阪府吹田市南吹田5丁目1-1 | 詳細を見る | ||
アパート EMIA千里丘(1K/1階) | |||||||
| 6.1万円 4,000円 | なし なし | 1K 20.86m2 | 築1年 | 東海道本線 千里丘駅 徒歩12分 阪急電鉄京都線 摂津市駅 徒歩20分 大阪モノレール本線 宇野辺駅 徒歩24分 大阪府吹田市千里丘中19-16 | 詳細を見る | ||
アパート アーバンヒルズ(2LDK/3階) | |||||||
![]() | 8.2万円 6,000円 | なし 16万円 | 2LDK 60.74m2 | 築16年 | 大阪モノレール本線 南摂津駅 徒歩25分 大阪モノレール本線 摂津駅 徒歩39分 大阪モノレール本線 大日駅 徒歩47分 大阪府摂津市鳥飼下 | 詳細を見る | |
アパート WOOD GARDEN Ⅱ(1LDK/2階) | |||||||
| 8万円 4,000円 | なし 8.4万円 | 1LDK 30.07m2 | 築1年 | 阪急電鉄千里線 吹田駅(阪急) 徒歩8分 東海道本線 吹田駅(JR) 徒歩17分 阪急電鉄千里線 下新庄駅 徒歩18分 大阪府吹田市寿町2丁目11-8 | 詳細を見る | ||
アパート 江端文化西(1DK/2階) | |||||||
![]() | 3.9万円 3,000円 | なし なし | 1DK 30m2 | 築52年 | 大阪市今里筋線 清水駅(大阪メトロ) 徒歩9分 大阪市今里筋線 新森古市駅 徒歩17分 京阪電気鉄道京阪線 滝井駅 徒歩18分 大阪府守口市南寺方中通1丁目 | 詳細を見る | |
アパート GLAN CASALIA(1LDK/1階) | |||||||
| 7.7万円 5,000円 | なし なし | 1LDK 29.91m2 | 新築 | 東海道本線 吹田駅(JR) 徒歩13分 阪急電鉄千里線 吹田駅(阪急) 徒歩13分 阪急電鉄京都線 相川駅 徒歩13分 大阪府吹田市内本町3丁目7-3 | 詳細を見る | ||





