賃貸マンション
レントリッヒの賃貸物件情報(2LDK/2階)
| 家賃 | 管理費等 | 敷金 | 礼金 | 間取り | 専有面積 |
|---|---|---|---|---|---|
| 7.3万円 | 3,000円 | なし | 7.3万円 | 2LDK | 68m2 |
入居決定でお祝い金最大100,000円
- 保証金
- -
- 償却・敷引
- -
- 築年数
- 築32年
- 所在階
- 2階
- 向き
- 南
Point
当店では、ご自宅やカフェ等からお部屋探しができるオンライン相談や、テレビ電話形式のオンライン内見も可能。ぜひお問合せください、素敵なお部屋見つけます!
提供:ミニミニFC吹田店(株)穂積住宅(SUUMO経由)

詳細情報 レントリッヒ
物件紹介
レントリッヒは阪急京都線富田駅から徒歩35分にあるマンションです。
このお部屋は2階以上に位置しているので、通行人や周囲の住人からの視線が気になりにくく、防犯面でも安心。インターホンにはTVモニタもついているため、相手の顔を確認してから来客対応することができます。
人気の南向き・フローリングのお部屋。角部屋でもあるため、周囲の居住者の生活音も気になりにくい場所です。キッチンはシステムキッチン仕様になっていますので、お料理好きの方にもぴったり。バス・トイレは別なので、のんびりお風呂タイムも楽しめるでしょう。また、雨の日でも浴室乾燥機を使えば、お洗濯も問題ありません。
通信設備面では、インターネット接続が可能です。また、BSアンテナ・CSアンテナがありCATVにも対応しているので、おうち時間も充実するでしょう(別途工事、契約料が必要な場合あり)。
このお部屋は2階以上に位置しているので、通行人や周囲の住人からの視線が気になりにくく、防犯面でも安心。インターホンにはTVモニタもついているため、相手の顔を確認してから来客対応することができます。
人気の南向き・フローリングのお部屋。角部屋でもあるため、周囲の居住者の生活音も気になりにくい場所です。キッチンはシステムキッチン仕様になっていますので、お料理好きの方にもぴったり。バス・トイレは別なので、のんびりお風呂タイムも楽しめるでしょう。また、雨の日でも浴室乾燥機を使えば、お洗濯も問題ありません。
通信設備面では、インターネット接続が可能です。また、BSアンテナ・CSアンテナがありCATVにも対応しているので、おうち時間も充実するでしょう(別途工事、契約料が必要な場合あり)。
お金・契約の情報
※「-」と表示されているものは、実際は料金が発生するものもございます。詳細はお問い合わせください。
| 家賃 | 7.3万円 | 管理費・共益費 | 3,000円 |
|---|---|---|---|
| 敷金 | なし | 礼金 | 7.3万円 |
| 入居決定でお祝い金最大100,000円 | |||
| 保証金 | - | 償却・敷引 | - |
| 住宅保険料 | - | 更新料 | - |
| 保証会社利用 | 利用可 | 保証会社名 | - |
| 保証会社費用 | - | 保証会社備考 | 保証会社利用可 初回契約時:50%、更新時:10,000円 |
| 契約形態 | - | 契約期間 | - |
| 入居・引渡期間 | 相談 | 現況 | - |
| 契約備考 | 京阪本線枚方公園駅徒歩52分/巡回管理 合計3.85万円(内訳:鍵交換代 38500円税込) 安心サポート 1100円/月額 ハウスクリーニング 55000円/ 更新事務手数料 22000円 2LDK 二人入居可/子供可 普通借家2年 損保【2万円2年】 バストイレ別、ガスコンロ対応、クロゼット、フローリング、TVインターホン、浴室乾燥機、室内洗濯置、陽当り良好、システムキッチン、南向き、追焚機能浴室、脱衣所、洗面所独立、洗面化粧台、駐輪場、CATV、閑静な住宅地、敷金不要、3口以上コンロ、グリル付、二人入居相談、玄関ホール、駅まで平坦、眺望良好、ダブルロックキー、平坦地、前面棟無、3駅以上利用可、3沿線以上利用可、田園風景、敷地内ごみ置き場、平面駐車場、自走式駐車場、和室、全居室6畳以上、都市ガス、洗面所にドア、南面バルコニー、BS、礼金1ヶ月、保証会社利用可、通風良好 | ||
部屋の情報
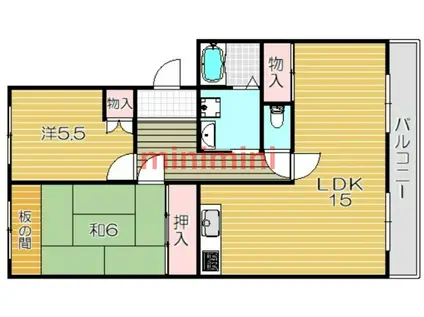
| 間取り | 2LDK | 専有面積 | 68m2 |
|---|---|---|---|
| 所在階 / 向き | 2階 / 南 | バルコニー面積 | - |
| 水道 / ガス | - | ||
| 設備 | バス・トイレ別、2階以上、テレビドアホン、浴室乾燥機、追い焚き、システムキッチン、南向き、バルコニー、フローリング、洗髪洗面化粧台、2口コンロ、コンロ:ガス、CATV、BSアンテナ、洗濯機:室内 | ||
| 当社物件ID | 9376329 | ||
建物の情報
| 建物名 | レントリッヒ | ||
|---|---|---|---|
| 所在地 | 大阪府高槻市芝生町 | ||
| 交通 | 阪急京都線 富田駅(大阪) 徒歩35分 阪急京都線 総持寺駅 徒歩36分 JR東海道本線 摂津富田駅 徒歩38分 | ||
| 階数 | 4階建 | 総戸数 | 24戸 |
| 築年月 | 1994年09月 / 築32年 | エレベーター | - |
| 駐車場 | 空有 11000円/平置駐 | バイク置き場 | - |
| 駐輪場 | あり | 管理人/管理会社 | - |
| 周辺環境 | その他 高槻市立芝生小学校(小学校)まで511m その他 高槻市立第三中学校(中学校)まで1145m その他 サンディ高槻川添店(スーパー)まで990m その他 MORITAYA栄店(スーパー)まで1056m その他 セブンイレブン高槻体育館前店(コンビニ)まで321m その他 ケアーズドラッグ川添店(ドラッグストア)まで882m | ||
| 建物種別 | マンション | 建物構造 | RC(鉄筋コンクリート) |
この部屋の取扱い不動産会社
| 会社名 | ミニミニFCJR茨木店(株)穂積住宅(SUUMO経由) | ||
|---|---|---|---|
| 所在地 | 大阪府茨木市西駅前町 4 茨木駅前ビル1階-109 | 交通 | - |
| 営業時間 | AM10:00~PM6:00 | 定休日 | 水曜日 |
| 免許番号 | 大阪府知事32233 | 取引態様 | 仲介 |
| 不動産会社管理番号 | 100492080340 | 当社管理番号 | 89 |
| 所属団体 | (一社)大阪府宅地建物取引業協会会員 | ||
| 公正取引協議会 | (公社)近畿地区不動産公正取引協議会加盟 | ||
| 取扱い物件情報 | 物件詳細へ | ||
※各種情報と現状に差異がある場合は、現状優先となります。問い合わせをすることで、より詳しい条件、情報を確認する事ができます。
提供:ミニミニFCJR茨木店(株)穂積住宅(SUUMO経由)
この物件が気になったら掲載期限まであと12日
レントリッヒに条件(家賃・エリア)が近い物件一覧
| 写真 | 家賃 管理費等 | 敷金 礼金 | 間取り 専有面積 | 築年数 | 最寄り駅 所在地 | キープ | 詳細 |
|---|---|---|---|---|---|---|---|
マンション ダンディーA(1K/2階) | |||||||
| 5.2万円 3,000円 | なし なし | 1K 25m2 | 築32年 | 東海道本線 高槻駅 徒歩13分 阪急電鉄京都線 高槻市駅 徒歩13分 東海道本線 摂津富田駅 徒歩49分 大阪府高槻市古曽部町2丁目11-22 | 詳細を見る | ||
アパート 片町線 長尾駅(大阪) 徒歩15分 築32年(3LDK/3階) | |||||||
![]() | 6万円 5,000円 | なし 8万円 | 3LDK 65.16m2 | 築32年 | 片町線 長尾駅(大阪) 徒歩15分 片町線 藤阪駅 徒歩30分 大阪府枚方市長尾元町7丁目 | 詳細を見る | |
アパート RELIER 千里丘(1LDK/3階) | |||||||
| 11.8万円 7,500円 | なし 22万円 | 1LDK 48.9m2 | 築1年 | 東海道本線 千里丘駅 徒歩9分 阪急電鉄京都線 摂津市駅 徒歩11分 東海道本線 岸辺駅 徒歩20分 大阪府摂津市千里丘3丁目4-18 | 詳細を見る | ||
一戸建て 京阪電気鉄道交野線 宮之阪駅 徒歩13分 築54年(3DK) | |||||||
![]() | 6万円 なし | なし 10万円 | 3DK 51.03m2 | 築54年 | 京阪電気鉄道交野線 宮之阪駅 徒歩13分 京阪電気鉄道京阪線 枚方市駅 徒歩22分 京阪電気鉄道京阪線 御殿山駅 徒歩27分 大阪府枚方市中宮西之町 | 詳細を見る | |
マンション 片町線 津田駅 徒歩3分 築29年(3DK/4階) | |||||||
![]() | 6.7万円 3,900円 | なし なし | 3DK 60.36m2 | 築29年 | 片町線 津田駅 徒歩3分 片町線 藤阪駅 徒歩23分 大阪府枚方市津田駅前2丁目 | 詳細を見る | |
アパート レオパレスハイムシード(1K/2階) | |||||||
![]() | 7.8万円 5,000円 | なし 7.8万円 | 1K 19.87m2 | 築22年 | JR東海道本線 茨木駅 徒歩5分 大阪モノレール本線 宇野辺駅 徒歩14分 阪急京都線 茨木市駅 徒歩22分 大阪府茨木市西駅前町 | 詳細を見る | |
アパート グリーンルーフ大冠A棟(2DK/2階) | |||||||
| 5.8万円 3,000円 | なし なし | 2DK 44.33m2 | 築26年 | 阪急電鉄京都線 高槻市駅 徒歩35分 東海道本線 高槻駅 徒歩39分 京阪電気鉄道交野線 枚方市駅 徒歩57分 大阪府高槻市大冠町3丁目4-28 | 詳細を見る | ||




