賃貸マンション
レイセニット奈良 グラン・ヴェルジェの賃貸物件情報(4LDK/2階)
| 家賃 | 管理費等 | 敷金 | 礼金 | 間取り | 専有面積 |
|---|---|---|---|---|---|
| 13.3万円 | 1万円 | なし | なし | 4LDK | 90.69m2 |
入居決定でお祝い金最大100,000円
- 保証金
- -
- 償却・敷引
- -
- 築年数
- 築19年
- 所在階
- 2階
- 向き
- 南
Point
奈良県をはじめ関西一円の賃貸・売買物件のことなら≪マーブルハウス≫にお任せください★地域密着型店舗ならではの物件や地域情報が溢れています★大手家電量販店との提携による割引対応サービス★もございます。
提供:マーブルハウス 新大宮店(株)マーブル(SUUMO経由)

詳細情報 レイセニット奈良 グラン・ヴェルジェ
物件紹介
レイセニット奈良 グラン・ヴェルジェはJR桜井線京終駅から徒歩2分にあり、駅近で通勤通学に便利なマンションです。
このお部屋は2階以上に位置しているので、通行人や周囲の住人からの視線が気になりにくく、防犯面でも安心。建物のエントランスはオートロックがついており、インターホンにはTVモニタもついているため、相手の顔を確認してから来客対応することができます。
こちらは楽器相談が可能な物件。楽器演奏をお考えの方はぜひ相談してみてください。人気の南向き・フローリングのお部屋。角部屋でもあるため、周囲の居住者の生活音も気になりにくい場所です。キッチンはシステムキッチン仕様になっていますので、お料理好きの方にもぴったり。バス・トイレは別なので、のんびりお風呂タイムも楽しめるでしょう。また、雨の日でも浴室乾燥機を使えば、お洗濯も問題ありません。
通信設備面では、インターネットが無料で使えるので、月々の出費を抑えられるのも魅力です。また、BSアンテナ・CSアンテナがありCATVにも対応しているので、おうち時間も充実するでしょう(別途工事、BS・CS・CATVの契約料等が必要な場合あり)。
床暖房があり、冬も足元から暖かく快適に過ごすことができます。建物にはエレベーターがついているので、重い荷物があっても安心。共用部には宅配ボックスが設定されているので、不在の時にも荷物を受け取ることができます。また、ペット飼育の相談ができますので、あなたの大切な家族の一員も快適に暮らせるか、ぜひ確認してみてください。
このお部屋は2階以上に位置しているので、通行人や周囲の住人からの視線が気になりにくく、防犯面でも安心。建物のエントランスはオートロックがついており、インターホンにはTVモニタもついているため、相手の顔を確認してから来客対応することができます。
こちらは楽器相談が可能な物件。楽器演奏をお考えの方はぜひ相談してみてください。人気の南向き・フローリングのお部屋。角部屋でもあるため、周囲の居住者の生活音も気になりにくい場所です。キッチンはシステムキッチン仕様になっていますので、お料理好きの方にもぴったり。バス・トイレは別なので、のんびりお風呂タイムも楽しめるでしょう。また、雨の日でも浴室乾燥機を使えば、お洗濯も問題ありません。
通信設備面では、インターネットが無料で使えるので、月々の出費を抑えられるのも魅力です。また、BSアンテナ・CSアンテナがありCATVにも対応しているので、おうち時間も充実するでしょう(別途工事、BS・CS・CATVの契約料等が必要な場合あり)。
床暖房があり、冬も足元から暖かく快適に過ごすことができます。建物にはエレベーターがついているので、重い荷物があっても安心。共用部には宅配ボックスが設定されているので、不在の時にも荷物を受け取ることができます。また、ペット飼育の相談ができますので、あなたの大切な家族の一員も快適に暮らせるか、ぜひ確認してみてください。
お金・契約の情報
※「-」と表示されているものは、実際は料金が発生するものもございます。詳細はお問い合わせください。
| 家賃 | 13.3万円 | 管理費・共益費 | 1万円 |
|---|---|---|---|
| 敷金 | なし | 礼金 | なし |
| 入居決定でお祝い金最大100,000円 | |||
| 保証金 | - | 償却・敷引 | - |
| 住宅保険料 | - | 更新料 | - |
| 保証会社利用 | 必須 | 保証会社名 | - |
| 保証会社費用 | - | 保証会社備考 | 保証会社利用必 初回加入料月額50% 更新料 年/11 000円 |
| 契約形態 | - | 契約期間 | - |
| 入居・引渡期間 | 即時 | 現況 | - |
| 入居可能条件 | ペット相談 | ||
| 契約備考 | 経験豊富なスタッフが奈良県をはじめ関西一円のお部屋探しをお手伝い致します。お問合せ頂きました物件はもちろん、別エリアの様々な条件の物件をご紹介させて頂きます。忙しくご内覧に時間の取れない方、遠方にお住まいの方向けにオンラインでの物件内覧サービスも行っておりますので、是非一度お気軽にお問合せ下さいませ。 合計3.08万円(内訳:スマイルサポート3.08万円) 更新料 22000円 スマイルサポート 月額1100円 4LDK 二人入居可/子供不可/事務所利用不可/ルームシェア不可 普通借家2年 損保【2万円2年】 バストイレ別、バルコニー、エアコン、クロゼット、フローリング、TVインターホン、浴室乾燥機、オートロック、室内洗濯置、シューズボックス、システムキッチン、追焚機能浴室、脱衣所、エレベーター、洗面所独立、洗面化粧台、宅配ボックス、CATV、即入居可、礼金不要、閑静な住宅地、敷金不要、3口以上コンロ、対面式キッチン、ペット相談、保証人不要、バイク置場、2沿線利用可、クッションフロア、専用庭、CS、ネット使用料不要、眺望良好、学生相談、2駅利用可、3駅以上利用可、和室、都市ガス、玄関収納、BS、敷金・礼金不要、保証会社利用可、IT重説対応物件、初期費用カード決済可、通風良好 | ||
部屋の情報
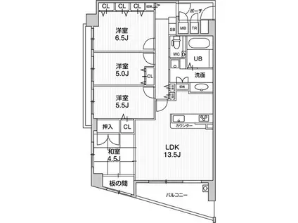
| 間取り | 4LDK | 専有面積 | 90.69m2 |
|---|---|---|---|
| 所在階 / 向き | 2階 / 南 | バルコニー面積 | - |
| 水道 / ガス | - | ||
| 設備 | バス・トイレ別、2階以上、オートロック、テレビドアホン、宅配ボックス、浴室乾燥機、追い焚き、インターネット対応、システムキッチン、エアコン、エレベーター、南向き、バルコニー、フローリング、洗髪洗面化粧台、2口コンロ、CATV、CSアンテナ、BSアンテナ、インターネット使用料無料、専用庭、洗濯機:室内 | ||
| 当社物件ID | 8910507 | ||
建物の情報
| 建物名 | レイセニット奈良 グラン・ヴェルジェ | ||
|---|---|---|---|
| 所在地 | 奈良県奈良市肘塚町 | ||
| 交通 | JR桜井線 京終駅 徒歩3分 近鉄奈良線 近鉄奈良駅 徒歩27分 JR関西本線 奈良駅 徒歩27分 | ||
| 階数 | 7階建 | 総戸数 | 206戸 |
| 築年月 | 2008年01月 / 築19年 | エレベーター | あり |
| 駐車場 | 空有 8800円 | バイク置き場 | あり |
| 駐輪場 | - | 管理人/管理会社 | - |
| 周辺環境 | その他 奈良市立飛鳥小学校(小学校)まで1430m その他 奈良市立春日中学校(中学校)まで1616m | ||
| 建物種別 | マンション | 建物構造 | RC(鉄筋コンクリート) |
この部屋の取扱い不動産会社
| 会社名 | マーブルハウス 西大寺店(株)マーブル(SUUMO経由) | ||
|---|---|---|---|
| 所在地 | 奈良県奈良市佐紀町 47-1岡本ビル1F | 交通 | - |
| 営業時間 | 10:00~19:00 | 定休日 | 年中無休 |
| 免許番号 | 奈良県知事4336 | 取引態様 | 仲介 |
| 不動産会社管理番号 | 100471324039 | 当社管理番号 | 89 |
| 所属団体 | (公社)奈良県宅地建物取引業協会会員 | ||
| 公正取引協議会 | (公社)近畿地区不動産公正取引協議会加盟 | ||
| 取扱い物件情報 | 物件詳細へ | ||
※各種情報と現状に差異がある場合は、現状優先となります。問い合わせをすることで、より詳しい条件、情報を確認する事ができます。
提供:マーブルハウス 西大寺店(株)マーブル(SUUMO経由)
この物件が気になったら掲載期限まであと10日
レイセニット奈良 グラン・ヴェルジェに条件(家賃・エリア)が近い物件一覧
| 写真 | 家賃 管理費等 | 敷金 礼金 | 間取り 専有面積 | 築年数 | 最寄り駅 所在地 | キープ | 詳細 |
|---|---|---|---|---|---|---|---|
マンション LAVIENANARA(2LDK/7階) | |||||||
![]() | 15.5万円 1.4万円 | 15.5万円 31万円 | 2LDK 70.17m2 | 築2年 | JR関西本線 奈良駅 徒歩4分 近鉄奈良線 近鉄奈良駅 徒歩11分 近鉄奈良線 新大宮駅 徒歩12分 奈良県奈良市大宮町 | 詳細を見る | |
一戸建て 桜井線 京終駅 徒歩16分 築28年(4LDK) | |||||||
![]() | 11万円 なし | 11万円 22万円 | 4LDK 94.4m2 | 築28年 | 桜井線 京終駅 徒歩16分 関西本線 奈良駅 徒歩20分 近鉄難波・奈良線 近鉄奈良駅 徒歩31分 奈良県奈良市大安寺5丁目 | 詳細を見る | |
マンション ライムストーン新大宮(1LDK/4階) | |||||||
![]() | 10.5万円 9,000円 | 2万円 15.75万円 | 1LDK 49.01m2 | 築5年 | 近鉄難波・奈良線 新大宮駅 徒歩6分 関西本線 奈良駅 徒歩17分 近鉄橿原線 尼ケ辻駅 徒歩33分 奈良県奈良市大宮町6丁目 | 詳細を見る | |
アパート カーサ・リンドペロー(2LDK/2階) | |||||||
![]() | 8.3万円 3,900円 | なし なし | 2LDK 59.16m2 | 築1年 | 近鉄橿原線 平端駅 徒歩13分 近鉄橿原線 筒井駅(奈良) 徒歩27分 関西本線 大和小泉駅 徒歩37分 奈良県大和郡山市額田部北町 | 詳細を見る | |
マンション レジデンス三条宮前(2LDK/3階) | |||||||
![]() | 14.2万円 9,000円 | 1万円 10万円 | 2LDK 67.67m2 | 築1年 | JR関西本線 奈良駅 徒歩5分 近鉄奈良線 新大宮駅 徒歩12分 近鉄奈良線 近鉄奈良駅 徒歩15分 奈良県奈良市三条宮前町 | 詳細を見る | |
マンション シャーメゾンフェリーチェ(2LDK/4階) | |||||||
![]() | 13.7万円 9,000円 | 3万円 25万円 | 2LDK 69.2m2 | 新築 | 近鉄難波・奈良線 新大宮駅 徒歩4分 関西本線 奈良駅 徒歩14分 近鉄難波・奈良線 近鉄奈良駅 徒歩17分 奈良県奈良市大宮町5丁目 | 詳細を見る | |
マンション シャーメゾンフゥ(2LDK/3階) | |||||||
![]() | 16.2万円 9,000円 | 5万円 28万円 | 2LDK 69.93m2 | 新築 | 近鉄けいはんな線 生駒駅 徒歩5分 奈良県生駒市北新町 | 詳細を見る | |
アパート サニーヒロ(2LDK/1階) | |||||||
![]() | 10万円 6,500円 | なし 15万円 | 2LDK 60.32m2 | 新築 | 近鉄橿原線 尼ケ辻駅 徒歩24分 近鉄難波・奈良線 新大宮駅 徒歩28分 関西本線 奈良駅 徒歩30分 奈良県奈良市四条大路二丁目 | 詳細を見る | |








