賃貸マンション
ハイラーク木場の賃貸物件情報(3SLDK/9階)
| 家賃 | 管理費等 | 敷金 | 礼金 | 間取り | 専有面積 |
|---|---|---|---|---|---|
| 16万円 | 1万円 | 16万円 | 16万円 | 3SLDK | 74.4m2 |
入居決定でお祝い金最大100,000円
- 保証金
- -
- 償却・敷引
- -
- 築年数
- 築43年
- 所在階
- 9階
- 向き
- -
Point
【2026年2月16日退去予定】・2017年大規模修繕工事済・ワイドバルコニー(約26.90平米)
提供:(株)エムズリンク営業部(SUUMO経由)

詳細情報 ハイラーク木場
物件紹介
ハイラーク木場はJR京葉線潮見駅から徒歩8分にあり、駅近で通勤通学に便利なマンションです。
このお部屋は2階以上に位置しているので、通行人や周囲の住人からの視線が気になりにくく、防犯面でも安心です。
人気の南向きのお部屋。角部屋でもあるため、周囲の居住者の生活音も気になりにくい場所です。バス・トイレ別の仕様で、のんびりお風呂タイムも楽しめます。
建物にはエレベーターがついているので、重い荷物があっても安心。
このお部屋は2階以上に位置しているので、通行人や周囲の住人からの視線が気になりにくく、防犯面でも安心です。
人気の南向きのお部屋。角部屋でもあるため、周囲の居住者の生活音も気になりにくい場所です。バス・トイレ別の仕様で、のんびりお風呂タイムも楽しめます。
建物にはエレベーターがついているので、重い荷物があっても安心。
お金・契約の情報
※「-」と表示されているものは、実際は料金が発生するものもございます。詳細はお問い合わせください。
| 家賃 | 16万円 | 管理費・共益費 | 1万円 |
|---|---|---|---|
| 敷金 | 16万円 | 礼金 | 16万円 |
| 入居決定でお祝い金最大100,000円 | |||
| 保証金 | - | 償却・敷引 | - |
| 住宅保険料 | - | 更新料 | - |
| 保証会社利用 | 必須 | 保証会社名 | - |
| 保証会社費用 | - | 保証会社備考 | 保証会社利用必 【RoomID】初回:賃料・共益費の40%、年間:14000円 |
| 契約形態 | - | 契約期間 | - |
| 入居・引渡期間 | 相談 | 現況 | - |
| 契約備考 | 3SLDK 事務所利用不可 損保【2.4万円2年】 バストイレ別、バルコニー、クロゼット、室内洗濯置、陽当り良好、シューズボックス、南向き、角住戸、洗面所独立、分譲賃貸、南西角住戸、2面バルコニー、眺望良好、リバーサイド、南面リビング、3面バルコニー、エレベーター2基、3方角住戸、駅徒歩10分以内、LDK12畳以上、リビングの隣和室、都市ガス、ワイドバルコニー、南面バルコニー、通風良好 | ||
部屋の情報
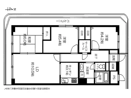
| 間取り | 3SLDK | 専有面積 | 74.4m2 |
|---|---|---|---|
| 所在階 / 向き | 9階 / - | バルコニー面積 | - |
| 水道 / ガス | - | ||
| 設備 | バス・トイレ別、2階以上、エレベーター、南向き、角部屋、バルコニー、洗髪洗面化粧台、洗濯機:室内 | ||
| 当社物件ID | 7093838 | ||
建物の情報
| 建物名 | ハイラーク木場 | ||
|---|---|---|---|
| 所在地 | 東京都江東区枝川 | ||
| 交通 | JR京葉線 潮見駅 徒歩8分 東京メトロ東西線 木場駅 徒歩19分 東京メトロ有楽町線 豊洲駅 徒歩19分 | ||
| 階数 | 11階建 | 総戸数 | - |
| 築年月 | 1983年07月 / 築43年 | エレベーター | あり |
| 駐車場 | なし | バイク置き場 | - |
| 駐輪場 | - | 管理人/管理会社 | - |
| 周辺環境 | その他 まいばすけっと塩浜2丁目店(スーパー)まで554m その他 セブンイレブン江東枝川2丁目店(コンビニ)まで470m その他 ノジマイトーヨーカドー木場店(ホームセンター)まで1327m その他 医療法人青峰会くじらホスピタル(病院)まで472m その他 江東潮見郵便局(郵便局)まで482m その他 京葉銀行品川支店(銀行)まで1408m | ||
| 建物種別 | マンション | 建物構造 | SRC(鉄骨鉄筋コンクリート) |
この部屋の取扱い不動産会社
| 会社名 | (株)エムズリンク営業部(SUUMO経由) | ||
|---|---|---|---|
| 所在地 | 東京都台東区蔵前2-6-3 JMビル8階 | 交通 | - |
| 営業時間 | 10:00~18:00 | 定休日 | 年中無休 |
| 免許番号 | 東京都知事76004 | 取引態様 | 仲介 |
| 不動産会社管理番号 | 100486370090 | 当社管理番号 | 89 |
| 所属団体 | (公社)東京都宅地建物取引業協会会員 | ||
| 公正取引協議会 | (公社)首都圏不動産公正取引協議会加盟 | ||
| 取扱い物件情報 | 物件詳細へ | ||
※各種情報と現状に差異がある場合は、現状優先となります。問い合わせをすることで、より詳しい条件、情報を確認する事ができます。
提供:(株)エムズリンク営業部(SUUMO経由)
この物件が気になったら掲載期限まであと11日
ハイラーク木場に条件(家賃・エリア)が近い物件一覧
| 写真 | 家賃 管理費等 | 敷金 礼金 | 間取り 専有面積 | 築年数 | 最寄り駅 所在地 | キープ | 詳細 |
|---|---|---|---|---|---|---|---|
マンション ニューシティアパートメンツ亀戸(1K/4階) | |||||||
![]() | 13.8万円 1.1万円 | なし 13.8万円 | 1K 35.37m2 | 築20年 | JR総武線 亀戸駅 徒歩4分 都営新宿線 大島駅(東京) 徒歩14分 都営新宿線 西大島駅 徒歩15分 東京都江東区亀戸 | 詳細を見る | |
マンション あやめガーデン(2K/12階) | |||||||
![]() | 17.5万円 1万円 | 17.5万円 17.5万円 | 2K 42.26m2 | 築12年 | 東京メトロ日比谷線 築地駅 徒歩1分 東京メトロ有楽町線 新富町駅(東京) 徒歩6分 東京メトロ日比谷線 東銀座駅 徒歩6分 東京都中央区築地 | 詳細を見る | |
マンション パークアクシス森下(ワンルーム/2階) | |||||||
![]() | 12.7万円 1万円 | 12.7万円 なし | ワンルーム 25.02m2 | 築5年 | 都営新宿線 森下駅(東京) 徒歩4分 JR総武線 両国駅 徒歩12分 東京メトロ半蔵門線 清澄白河駅 徒歩13分 東京都江東区新大橋 | 詳細を見る | |
アパート 御殿山テラスⅡ(2LDK/1階) | |||||||
![]() | 23.2万円 3,000円 | 23.2万円 23.2万円 | 2LDK 57.6m2 | 築2年 | 山手線 大崎駅 徒歩8分 京浜急行電鉄本線 北品川駅 徒歩14分 東京都品川区北品川5丁目 | 詳細を見る | |
マンション ルーラル二十四番館(1LDK/5階) | |||||||
![]() | 15万円 1.5万円 | 15万円 なし | 1LDK 35.47m2 | 築7年 | 都営新宿線 菊川駅(東京) 徒歩2分 都電荒川線 西ケ原四丁目駅 徒歩4分 都営三田線 西巣鴨駅 徒歩6分 都電荒川線 滝野川一丁目駅 徒歩7分 都営大江戸線 森下駅(東京) 徒歩10分 東京メトロ半蔵門線 住吉駅(東京) 徒歩12分 東京都墨田区菊川 | 詳細を見る | |
マンション クレストコート門前仲町(1DK/10階) | |||||||
![]() | 15.8万円 1.2万円 | 15.8万円 なし | 1DK 26.14m2 | 築1年 | 東京地下鉄東西線 門前仲町駅 徒歩7分 東京都江東区永代1丁目 | 詳細を見る | |
マンション クレヴィスタ亀戸V(1K/6階) | |||||||
![]() | 12.8万円 1.1万円 | なし 12.8万円 | 1K 25.41m2 | 築6年 | 東武鉄道亀戸線 亀戸水神駅 徒歩2分 総武・中央緩行線 亀戸駅 徒歩9分 東武鉄道亀戸線 東あずま駅 徒歩12分 東京都江東区亀戸8丁目 | 詳細を見る | |
アパート SEED SAVE PETIRASU Ⅲ(1LDK/1階) | |||||||
![]() | 10.4万円 1万円 | 20.8万円 10.4万円 | 1LDK 32.95m2 | 築1年 | 東京モノレール羽田 昭和島駅 徒歩12分 京浜急行電鉄本線 大森町駅 徒歩18分 東京都大田区大森東5丁目 | 詳細を見る | |







/105x80-f1-q70-wp1)

