賃貸マンション
クオリティハイツZAO の賃貸物件情報(1LDK/3階)
| 家賃 | 管理費等 | 敷金 | 礼金 | 間取り | 専有面積 |
|---|---|---|---|---|---|
| 5.5万円 | なし | 5.5万円 | なし | 1LDK | 56.84m2 |
入居決定でお祝い金最大100,000円
- 保証金
- -
- 償却・敷引
- -
- 築年数
- 築36年
- 所在階
- 3階
- 向き
- 南
- 交通
- 所在地
- 広島県福山市南蔵王町
クオリティハイツZAO
[地図を表示]
Point
広々キッチン(食器棚付き)&収納あり!近くにゆめタウンやドラックストア・飲食店が多数あり生活に便利なエリアです。東インターにも北部の神辺方面にもアクセスしやすい。
提供:(株)有正不動産(SUUMO経由)

詳細情報 クオリティハイツZAO
物件紹介
このお部屋は2階以上に位置しているので通行人や周囲の住人からの視線が気になりにくく、建物のエントランスはオートロックがついているので防犯性が高くなっています。
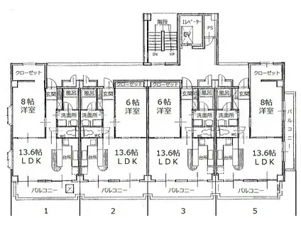
人気の南向き・フローリングのお部屋。角部屋でもあるため、周囲の居住者の生活音も気になりにくい場所です。室内にはウォークインクローゼットがありますので、たくさんの荷物も効率的に収納ができます。キッチンはシステムキッチン仕様になっていますので、お料理好きの方にもぴったり。また、バス・トイレは別で、のんびりお風呂タイムも楽しめるでしょう。
建物にはエレベーターがついているので、重い荷物があっても安心。
人気の南向き・フローリングのお部屋。角部屋でもあるため、周囲の居住者の生活音も気になりにくい場所です。室内にはウォークインクローゼットがありますので、たくさんの荷物も効率的に収納ができます。キッチンはシステムキッチン仕様になっていますので、お料理好きの方にもぴったり。また、バス・トイレは別で、のんびりお風呂タイムも楽しめるでしょう。
建物にはエレベーターがついているので、重い荷物があっても安心。
お金・契約の情報
※「-」と表示されているものは、実際は料金が発生するものもございます。詳細はお問い合わせください。
| 家賃 | 5.5万円 | 管理費・共益費 | なし |
|---|---|---|---|
| 敷金 | 5.5万円 | 礼金 | なし |
| 入居決定でお祝い金最大100,000円 | |||
| 保証金 | - | 償却・敷引 | - |
| 住宅保険料 | - | 更新料 | - |
| 契約形態 | - | 契約期間 | - |
| 入居・引渡期間 | 即時 | 現況 | - |
| 契約備考 | ※保証会社加入条件あり※エアコンはリビングに1台のみ※建物下駐車場使用の場合はプラス2000円 合計1.32万円(内訳:鍵交換代) 1LDK 単身者限定 損保【1.9万円2年】 バストイレ別、バルコニー、エアコン、フローリング、オートロック、室内洗濯置、陽当り良好、シューズボックス、システムキッチン、角住戸、エレベーター、洗面所独立、洗面化粧台、駐輪場、即入居可、駐車場1台無料、ウォークインクロゼット、駅まで平坦、バス停徒歩3分以内、敷地内ごみ置き場、当社管理物件、LDK12畳以上、プロパンガス | ||
部屋の情報
| 間取り | 1LDK | 専有面積 | 56.84m2 |
|---|---|---|---|
| 所在階 / 向き | 3階 / 南 | バルコニー面積 | - |
| 水道 / ガス | - | ||
| 設備 | バス・トイレ別、2階以上、オートロック、ウォークインクローゼット、システムキッチン、エアコン、エレベーター、南向き、角部屋、バルコニー、フローリング、洗髪洗面化粧台、洗濯機:室内 | ||
| 当社物件ID | 130917246 | ||
建物の情報
| 建物名 | クオリティハイツZAO | ||
|---|---|---|---|
| 所在地 | 広島県福山市南蔵王町 | ||
| 交通 | - | ||
| 階数 | 6階建 | 総戸数 | - |
| 築年月 | 1991年03月 / 築36年 | エレベーター | あり |
| 駐車場 | 空有 付無料 | バイク置き場 | - |
| 駐輪場 | あり | 管理人/管理会社 | - |
| 周辺環境 | その他 ファッションセンターしまむら南蔵王店(ショッピングセンター)まで483m その他 ゆめタウン蔵王(スーパー)まで347m その他 ファミリーマート福山南蔵王六丁目店(コンビニ)まで378m その他 スターバックス南蔵王店(飲食店)まで134m その他 スーパードラッグひまわり南蔵王店(ドラッグストア)まで165m その他 炭火焼肉酒家牛角蔵王店(飲食店)まで246m | ||
| 建物種別 | マンション | 建物構造 | RC(鉄筋コンクリート) |
この部屋の取扱い不動産会社
| 会社名 | (株)有正不動産(SUUMO経由) | ||
|---|---|---|---|
| 所在地 | 広島県福山市昭和町 3-24 | 交通 | - |
| 営業時間 | 9:00~18:00(土曜日17:00) | 定休日 | 日曜・祝日 |
| 免許番号 | 広島県知事462 | 取引態様 | 仲介 |
| 不動産会社管理番号 | 100211013983 | 当社管理番号 | 89 |
| 所属団体 | (公社)広島県宅地建物取引業協会会員 | ||
| 公正取引協議会 | 中国地区不動産公正取引協議会加盟 | ||
| 取扱い物件情報 | 物件詳細へ | ||
※各種情報と現状に差異がある場合は、現状優先となります。問い合わせをすることで、より詳しい条件、情報を確認する事ができます。
提供:(株)有正不動産(SUUMO経由)
この物件が気になったら掲載期限まであと8日
クオリティハイツZAO に条件(家賃・エリア)が近い物件一覧
| 写真 | 家賃 管理費等 | 敷金 礼金 | 間取り 専有面積 | 築年数 | 最寄り駅 所在地 | キープ | 詳細 |
|---|---|---|---|---|---|---|---|
アパート クイーンズ ヴィラ(2DK/2階) | |||||||
![]() | 5万円 なし | なし 5万円 | 2DK 44.3m2 | 築32年 | JR山陽本線 大門駅(広島) 徒歩4分 広島県福山市大門町 | 詳細を見る | |
アパート WIT L 神辺(2LDK/1階) | |||||||
![]() | 6.5万円 5,000円 | なし なし | 2LDK 55.32m2 | 築11年 | 福塩線 神辺駅 徒歩15分 広島県福山市神辺町大字川南神辺町大字川南 | 詳細を見る | |
アパート フルリール松浦II(1K/1階) | |||||||
![]() | 3.9万円 3,000円 | なし なし | 1K 29.16m2 | 築22年 | JR山陽本線 東福山駅 徒歩21分 JR山陽本線 福山駅 徒歩50分 JR山陽本線 大門駅(広島) 徒歩61分 広島県福山市南手城町 | 詳細を見る | |
アパート イーストビレッジ坂本A(2K/2階) | |||||||
![]() | 5万円 なし | 5万円 なし | 2K 38.5m2 | 築31年 | JR山陽本線 東福山駅 徒歩19分 JR山陽本線 大門駅(広島) 徒歩30分 JR山陽本線 福山駅 徒歩75分 広島県福山市引野町 | 詳細を見る | |
アパート レオパレス神辺(1K/1階) | |||||||
![]() | 4.2万円 6,500円 | なし 4.2万円 | 1K 20.28m2 | 築18年 | 井原鉄道 湯野駅 徒歩8分 広島県福山市神辺町大字川北神辺町大字川北 | 詳細を見る | |
アパート ヴィラ・クレール(2LDK/2階) | |||||||
![]() | 4.6万円 3,300円 | なし 4.6万円 | 2LDK 58.12m2 | 築27年 | 広島県福山市津之郷町大字津之郷津之郷町大字津之郷 | 詳細を見る | |
アパート オリーブコート東川口A(2LDK/2階) | |||||||
![]() | 5万円 なし | なし なし | 2LDK 46.37m2 | 築44年 | 山陽本線 福山駅 徒歩47分 広島県福山市東川口町5丁目 | 詳細を見る | |
アパート シャーメゾン新湯野(1K/2階) | |||||||
![]() | 4.3万円 4,000円 | なし 4.3万円 | 1K 28.45m2 | 築25年 | 井原鉄道 湯野駅 徒歩13分 井原鉄道 御領駅(広島) 徒歩23分 JR福塩線 湯田村駅 徒歩34分 広島県福山市神辺町大字新湯野 | 詳細を見る | |



/105x80-f1-q70-wp1)


/105x80-f1-q70-wp1)
/105x80-f1-q70-wp1)

