賃貸マンション
ルナパーク三軒茶屋の賃貸物件情報(ワンルーム/2階)
| 家賃 | 管理費等 | 敷金 | 礼金 | 間取り | 専有面積 |
|---|---|---|---|---|---|
| 5.2万円 | 1.5万円 | なし | 5.2万円 | ワンルーム | 15.39m2 |
入居決定でお祝い金最大100,000円
Point
室内設備は照明付き・エアコンなどが揃っているので、快適に過ごしやすいお部屋になります。
提供:(株)IEYA(SUUMO経由)

詳細情報 ルナパーク三軒茶屋
物件紹介
ルナパーク三軒茶屋は東急田園都市線三軒茶屋駅から徒歩4分にあり、駅近で通勤通学に便利なマンションです。
このお部屋は2階以上に位置しているので、通行人や周囲の住人からの視線が気になりにくく、防犯面でも安心。建物のエントランスはオートロックがついており、インターホンにはTVモニタもついているため、相手の顔を確認してから来客対応することができます。
人気の角部屋で周囲の居住者の生活音も気になりにくく、また、フローリングのお部屋なのでお掃除もラクラク。
通信設備面では、インターネット接続が可能です(別途工事、契約料が必要な場合あり)。
建物にはエレベーターがついているので、重い荷物があっても安心。
コンビニまで徒歩5分の場所にあり、日用品や食料品のお買い物にも便利です。
このお部屋は2階以上に位置しているので、通行人や周囲の住人からの視線が気になりにくく、防犯面でも安心。建物のエントランスはオートロックがついており、インターホンにはTVモニタもついているため、相手の顔を確認してから来客対応することができます。
人気の角部屋で周囲の居住者の生活音も気になりにくく、また、フローリングのお部屋なのでお掃除もラクラク。
通信設備面では、インターネット接続が可能です(別途工事、契約料が必要な場合あり)。
建物にはエレベーターがついているので、重い荷物があっても安心。
コンビニまで徒歩5分の場所にあり、日用品や食料品のお買い物にも便利です。
お金・契約の情報
※「-」と表示されているものは、実際は料金が発生するものもございます。詳細はお問い合わせください。
| 家賃 | 5.2万円 | 管理費・共益費 | 1.5万円 |
|---|---|---|---|
| 敷金 | なし | 礼金 | 5.2万円 |
| 入居決定でお祝い金最大100,000円 | |||
| 保証金 | - | 償却・敷引 | - |
| 住宅保険料 | 1円 | 更新料 | - |
| その他費用 | 安心入居サポート:1.87万円、17600円: | ||
| 保証会社利用 | 必須 | 保証会社名 | - |
| 保証会社費用 | - | 保証会社備考 | 初回保証料:総賃料の50% 1年毎に1万円 |
| 契約形態 | - | 契約期間 | 2年 |
| 入居・引渡期間 | 2026年04月下旬 | 現況 | - |
| 契約備考 | 鍵交換費用:23100 その他設備/条件:室内洗濯機置き場、シューズボックス、照明器具付き、分譲賃貸 | ||
部屋の情報
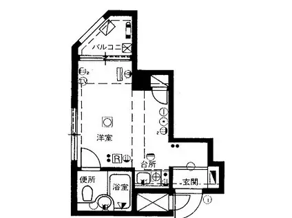
| 間取り | ワンルーム | 専有面積 | 15.39m2 |
|---|---|---|---|
| 所在階 / 向き | 2階 / 北西 | バルコニー面積 | - |
| 水道 / ガス | 水道【公営】、ガス【都市】 | ||
| 設備 | オートロック、テレビドアホン、インターネット対応、エアコン、エレベーター、角部屋、バルコニー、フローリング、コンロ:ガス、シャワー、給湯、1口コンロ | ||
| 当社物件ID | 8701586 | ||
建物の情報
| 建物名 | ルナパーク三軒茶屋 | ||
|---|---|---|---|
| 所在地 | 東京都世田谷区三軒茶屋2丁目 | ||
| 交通 | 東急田園都市線 三軒茶屋駅 徒歩4分 東急世田谷線 若林駅(東京) 徒歩13分 | ||
| 階数 | 地下1地上5階建 | 総戸数 | - |
| 築年月 | 1984年03月 / 築42年 | エレベーター | あり |
| 駐車場 | - | バイク置き場 | - |
| 駐輪場 | - | 管理人/管理会社 | - |
| 周辺環境 | コンビニ 徒歩5分(321m) 販売店 徒歩3分(165m) その他 ドラッグストア その他 公園 その他 銀行 その他 * | ||
| 建物種別 | マンション | 建物構造 | RC(鉄筋コンクリート) |
この部屋の取扱い不動産会社
| 会社名 | ハウスコム西東京株式会社 祖師ヶ谷大蔵店 | ||
|---|---|---|---|
| 所在地 | 東京都世田谷区37-5振興会館ビル2階 | 交通 | - |
| 営業時間 | 10:00~18:00 | 定休日 | 水曜定休 |
| 免許番号 | 東京都知事(1)第108225号 | 取引態様 | 仲介 |
| 不動産会社管理番号 | HC2-1297941-205-0187 | 当社管理番号 | 468 |
| 所属団体 | 、 | ||
| 取扱い物件情報 | 物件詳細へ | ||
※各種情報と現状に差異がある場合は、現状優先となります。問い合わせをすることで、より詳しい条件、情報を確認する事ができます。
提供:ハウスコム西東京株式会社 祖師ヶ谷大蔵店
この物件が気になったら掲載期限まであと5日
ルナパーク三軒茶屋に条件(家賃・エリア)が近い物件一覧
| 写真 | 家賃 管理費等 | 敷金 礼金 | 間取り 専有面積 | 築年数 | 最寄り駅 所在地 | キープ | 詳細 |
|---|---|---|---|---|---|---|---|
アパート フリージア(1K/1階) | |||||||
![]() | 7.3万円 2,000円 | 7.3万円 7.3万円 | 1K 21m2 | 築24年 | 京王井の頭線 東松原駅 徒歩4分 小田急線 梅ケ丘駅 徒歩9分 京王線 明大前駅 徒歩14分 東京都世田谷区松原 | 詳細を見る | |
マンション メゾン・ド・ヴィレ荻窪(1K/1階) | |||||||
![]() | 8.2万円 7,000円 | なし 8.2万円 | 1K 25.92m2 | 築29年 | 東京メトロ丸ノ内線 南阿佐ケ谷駅 徒歩9分 JR総武線 阿佐ケ谷駅 徒歩11分 東京メトロ丸ノ内線 荻窪駅 徒歩12分 東京都杉並区成田東 | 詳細を見る | |
アパート 金子ホーム(ワンルーム/1階) | |||||||
![]() | 4.5万円 なし | なし なし | ワンルーム 15.08m2 | 築45年 | 京王井の頭線 西永福駅 徒歩4分 京王井の頭線 浜田山駅 徒歩9分 東京都杉並区浜田山 | 詳細を見る | |
アパート 小田急線 代々木上原駅 徒歩9分 人気エリア東向き管理費無し物件(ワンルーム/1階) | |||||||
![]() | 5.8万円 なし | 5.8万円 5.8万円 | ワンルーム 10.14m2 | 築36年 | 小田急線 東北沢駅 徒歩7分 小田急線 代々木上原駅 徒歩9分 京王井の頭線 池ノ上駅 徒歩12分 東京都渋谷区上原 | 詳細を見る | |
マンション HJ PLACE YOYOGIUEHARA(ワンルーム/2階) | |||||||
![]() | 7.8万円 8,000円 | なし なし | ワンルーム 11.68m2 | 築5年 | 小田急線 東北沢駅 徒歩4分 東京メトロ千代田線 代々木上原駅 徒歩7分 京王井の頭線 池ノ上駅 徒歩7分 東京都渋谷区上原 | 詳細を見る | |
マンション スカイコート大森第2(ワンルーム/3階) | |||||||
![]() | 5.5万円 5,000円 | 5.5万円 5.5万円 | ワンルーム 16.5m2 | 築38年 | 京急本線 大森町駅 徒歩11分 東京モノレール 昭和島駅 徒歩16分 京急空港線 京急蒲田駅 徒歩22分 東京都大田区大森東 | 詳細を見る | |






