賃貸マンション
京都市烏丸線 五条駅(京都市営) 徒歩4分 10階建 築26年の賃貸物件情報(3LDK/7階)
| 家賃 | 管理費等 | 敷金 | 礼金 | 間取り | 専有面積 |
|---|---|---|---|---|---|
| 14万円 | 1.05万円 | 14万円 | 14万円 | 3LDK | 65.61m2 |
入居決定でお祝い金最大100,000円
Point
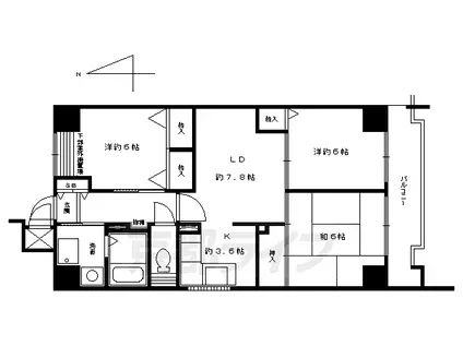
全戸南向き角部屋プラン 南向きベランダ。 大通り沿いの物件でございます。
提供:株式会社 京都ライフ 三条烏丸店(賃貸スモッカ経由)

詳細情報 京都市烏丸線 五条駅(京都市営) 徒歩4分 10階建 築26年
物件紹介
京都市烏丸線五条駅から徒歩4分にあり、駅近で通勤通学に便利なマンションです。
このお部屋は2階以上に位置しているので通行人や周囲の住人からの視線が気になりにくく、建物のエントランスはオートロックがついているので防犯性が高くなっています。
人気の南向き・フローリングのお部屋。角部屋でもあるため、周囲の居住者の生活音も気になりにくい場所です。バス・トイレ別の仕様で、のんびりお風呂タイムも楽しめます。
通信設備面では、インターネット接続が可能です(別途工事、契約料が必要な場合あり)。
建物にはエレベーターがついているので、重い荷物があっても安心。
このお部屋は2階以上に位置しているので通行人や周囲の住人からの視線が気になりにくく、建物のエントランスはオートロックがついているので防犯性が高くなっています。
人気の南向き・フローリングのお部屋。角部屋でもあるため、周囲の居住者の生活音も気になりにくい場所です。バス・トイレ別の仕様で、のんびりお風呂タイムも楽しめます。
通信設備面では、インターネット接続が可能です(別途工事、契約料が必要な場合あり)。
建物にはエレベーターがついているので、重い荷物があっても安心。
お金・契約の情報
※「-」と表示されているものは、実際は料金が発生するものもございます。詳細はお問い合わせください。
| 家賃 | 14万円 | 管理費・共益費 | 1.05万円 |
|---|---|---|---|
| 敷金 | 14万円 | 礼金 | 14万円 |
| 入居決定でお祝い金最大100,000円 | |||
| 保証金 | - | 償却・敷引 | - |
| 住宅保険料 | 住宅保険料あり | 更新料 | - |
| 契約形態 | - | 契約期間 | 2年 |
| 入居・引渡期間 | 即時 | 現況 | 空室 |
| 契約備考 | 全戸南向きで日当たりも良好です。オートロックもついておりますして、 全戸角部屋になっております。珍しい物件ですので是非お早めにお問合せくださいませ。 自治会費:600円 入居者サポート:1,100円 更新料:33,000円 保証会社:利用必須 初回:月額賃料等の50%、月額:支払い手数料1200円 その他設備/条件:独立洗面台、TVドアホン、即入居可 | ||
部屋の情報
| 間取り | 3LDK | 専有面積 | 65.61m2 |
|---|---|---|---|
| 間取り詳細 | 洋室(6帖)、洋室(6帖)、和室(6帖)、LDK(11.4帖) | ||
| 所在階 / 向き | 7階 / 南 | バルコニー面積 | - |
| 水道 / ガス | ガス【都市】 | ||
| 設備 | バス・トイレ別、2階以上、オートロック、追い焚き、インターネット対応、エアコン、エレベーター、温水洗浄便座、南向き、角部屋、バルコニー、フローリング、洗濯機:室内 | ||
| 当社物件ID | 160244794 | ||
建物の情報
| 建物名 | 京都市烏丸線 五条駅(京都市営) 徒歩4分 10階建 築26年 | ||
|---|---|---|---|
| 所在地 | 京都府京都市下京区西錺屋町 | ||
| 交通 | 京都市烏丸線 五条駅(京都市営) 徒歩4分 京都市烏丸線 四条駅(京都市営) 徒歩13分 | ||
| 階数 | 10階建 | 総戸数 | - |
| 築年月 | 2000年06月 / 築26年 | エレベーター | あり |
| 駐車場 | - | バイク置き場 | - |
| 駐輪場 | あり | 管理人/管理会社 | - |
| 建物種別 | マンション | 建物構造 | SRC(鉄骨鉄筋コンクリート) |
この部屋の取扱い不動産会社
| 会社名 | 株式会社 京都ライフ 三条烏丸店(賃貸スモッカ経由) | ||
|---|---|---|---|
| 所在地 | 京都市中京区三条通烏丸東入梅忠町24 三条COHJUBLDG 1F | 交通 | - |
| 営業時間 | - | 定休日 | - |
| 免許番号 | 京都府知事(11)第6353号 | 取引態様 | 仲介 |
| 不動産会社管理番号 | kyotolife_09242-701-21 | 当社管理番号 | 463 |
| 所属団体 | 京都府宅地建物取引業協会\n公益社団法人近畿地区不動産公正取引協議会 | ||
| 公正取引協議会 | 全国宅地建物取引業保証協会 | ||
| 取扱い物件情報 | 物件詳細へ | ||
※各種情報と現状に差異がある場合は、現状優先となります。問い合わせをすることで、より詳しい条件、情報を確認する事ができます。
提供:株式会社 京都ライフ 三条烏丸店(賃貸スモッカ経由)
この物件が気になったら掲載期限まであと5日
京都市烏丸線 五条駅(京都市営) 徒歩4分 10階建 築26年に条件(家賃・エリア)が近い物件一覧
| 写真 | 家賃 管理費等 | 敷金 礼金 | 間取り 専有面積 | 築年数 | 最寄り駅 所在地 | キープ | 詳細 |
|---|---|---|---|---|---|---|---|
マンション 山陰本線 丹波口駅 徒歩5分 新築(1LDK/8階) | |||||||
![]() | 10.1万円 8,000円 | なし 10.1万円 | 1LDK 31.72m2 | 新築 | 山陰本線 丹波口駅 徒歩5分 東海道本線 京都駅 徒歩27分 京都府京都市下京区朱雀分木町 | 詳細を見る | |
マンション 京都市烏丸線 烏丸御池駅 徒歩9分 築19年(1LDK/5階) | |||||||
![]() | 12万円 6,900円 | なし 12万円 | 1LDK 54.09m2 | 築19年 | 京都市烏丸線 烏丸御池駅 徒歩9分 京都市烏丸線 四条駅(京都市営) 徒歩13分 京都府京都市中京区塩屋町 | 詳細を見る | |
マンション 山陰本線 丹波口駅 徒歩5分 新築(1LDK/5階) | |||||||
![]() | 11万円 8,000円 | なし 11万円 | 1LDK 35.32m2 | 新築 | 山陰本線 丹波口駅 徒歩5分 東海道本線 京都駅 徒歩27分 京都府京都市下京区朱雀分木町 | 詳細を見る | |
マンション 近鉄京都線 大久保駅(京都) 徒歩3分 築33年(2LDK/2階) | |||||||
![]() | 8.7万円 8,500円 | 5万円 25万円 | 2LDK 63.2m2 | 築33年 | 近鉄京都線 大久保駅(京都) 徒歩3分 近鉄京都線 久津川駅 徒歩9分 京都府宇治市大久保町 | 詳細を見る | |
マンション 京都市烏丸線 烏丸御池駅 徒歩7分 築19年(2LDK/4階) | |||||||
![]() | 14.3万円 1万円 | 14.3万円 14.3万円 | 2LDK 50.56m2 | 築19年 | 京都市烏丸線 烏丸御池駅 徒歩7分 京都市烏丸線 四条駅(京都市営) 徒歩12分 京都府京都市中京区釜座町(三条通新町西入ル) | 詳細を見る | |
マンション 阪急電鉄京都線 西京極駅 徒歩12分 築45年(2LDK/1階) | |||||||
![]() | 9.5万円 1.2万円 | なし 20万円 | 2LDK 68.97m2 | 築45年 | 阪急電鉄京都線 西京極駅 徒歩12分 阪急電鉄京都線 西院駅(阪急) 徒歩17分 京都府京都市下京区西七条八幡町 | 詳細を見る | |
マンション 東海道本線 京都駅 徒歩10分 築2年(1LDK/5階) | |||||||
![]() | 18.2万円 9,000円 | なし なし | 1LDK 52.15m2 | 築2年 | 東海道本線 京都駅 徒歩10分 近鉄京都線 東寺駅 徒歩13分 京都府京都市下京区志水町 | 詳細を見る | |
マンション 京都市烏丸線 四条駅(京都市営) 徒歩9分 新築(1LDK/1階) | |||||||
![]() | 11.4万円 5,000円 | なし 11.4万円 | 1LDK 32.78m2 | 新築 | 京都市烏丸線 四条駅(京都市営) 徒歩9分 阪急電鉄京都線 烏丸駅 徒歩9分 京都府京都市下京区高辻西洞院町 | 詳細を見る | |








