賃貸アパート
ヒローズハイツIIの賃貸物件情報(2DK/1階)
| 家賃 | 管理費等 | 敷金 | 礼金 | 間取り | 専有面積 |
|---|---|---|---|---|---|
| 8.2万円 | なし | 8.2万円 | 8.2万円 | 2DK | 45.86m2 |
入居決定でお祝い金最大100,000円
- 保証金
- -
- 償却・敷引
- -
- 築年数
- 築29年
- 所在階
- 1階
- 向き
- 南
Point
こちらの物件のお問い合わせは(株)CLCコーポレーションまでお気軽にどうぞ。
提供:(株)CLCコーポレーション小岩店(SUUMO経由)

詳細情報 ヒローズハイツII
物件紹介
ヒローズハイツIIはJR総武線小岩駅から徒歩16分にあるアパートです。
人気の南向き・フローリングのお部屋。角部屋でもあるため、周囲の居住者の生活音も気になりにくい場所です。キッチンはシステムキッチン仕様になっていますので、お料理好きの方にもぴったり。また、バス・トイレは別で、のんびりお風呂タイムも楽しめるでしょう。
通信設備面では、インターネット接続が可能です。また、CATVにも対応しているので、おうち時間も充実するでしょう(別途工事、契約料が必要な場合あり)。
人気の南向き・フローリングのお部屋。角部屋でもあるため、周囲の居住者の生活音も気になりにくい場所です。キッチンはシステムキッチン仕様になっていますので、お料理好きの方にもぴったり。また、バス・トイレは別で、のんびりお風呂タイムも楽しめるでしょう。
通信設備面では、インターネット接続が可能です。また、CATVにも対応しているので、おうち時間も充実するでしょう(別途工事、契約料が必要な場合あり)。
お金・契約の情報
※「-」と表示されているものは、実際は料金が発生するものもございます。詳細はお問い合わせください。
| 家賃 | 8.2万円 | 管理費・共益費 | なし |
|---|---|---|---|
| 敷金 | 8.2万円 | 礼金 | 8.2万円 |
| 入居決定でお祝い金最大100,000円 | |||
| 保証金 | - | 償却・敷引 | - |
| 住宅保険料 | - | 更新料 | - |
| 保証会社利用 | 必須 | 保証会社名 | - |
| 保証会社費用 | - | 保証会社備考 | 保証会社利用必 お問い合わせください。初回保証料:総賃料の50% 継続保証料:年次10,000円 |
| 契約形態 | - | 契約期間 | - |
| 入居・引渡期間 | 相談 | 現況 | - |
| 契約備考 | 2DK 普通借家2年 損保【1.8万円2年】 バストイレ別、バルコニー、エアコン、ガスコンロ対応、クロゼット、フローリング、室内洗濯置、陽当り良好、シューズボックス、システムキッチン、南向き、角住戸、脱衣所、洗面所独立、洗面化粧台、駐輪場、押入、CATV、光ファイバー、2面採光、3口以上コンロ、グリル付、全居室洋室、振分、保証人不要、敷金1ヶ月、全居室フローリング、2沿線利用可、エアコン2台、3駅以上利用可、全居室6畳以上、プロパンガス、洗面所にドア、シャッター、礼金1ヶ月、IT重説対応物件、初期費用カード決済可 | ||
部屋の情報
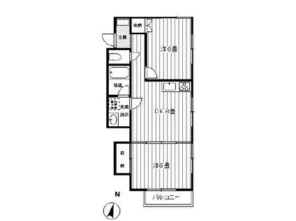
| 間取り | 2DK | 専有面積 | 45.86m2 |
|---|---|---|---|
| 所在階 / 向き | 1階 / 南 | バルコニー面積 | - |
| 水道 / ガス | - | ||
| 設備 | バス・トイレ別、インターネット対応、システムキッチン、エアコン、南向き、角部屋、バルコニー、フローリング、洗髪洗面化粧台、2口コンロ、コンロ:ガス、CATV、洗濯機:室内 | ||
| 当社物件ID | 160247869 | ||
建物の情報
| 建物名 | ヒローズハイツII | ||
|---|---|---|---|
| 所在地 | 東京都江戸川区南小岩 | ||
| 交通 | JR総武線 小岩駅 徒歩16分 京成本線 江戸川駅 徒歩27分 JR総武線 新小岩駅 徒歩37分 | ||
| 階数 | 2階建 | 総戸数 | - |
| 築年月 | 1997年03月 / 築29年 | エレベーター | - |
| 駐車場 | なし | バイク置き場 | - |
| 駐輪場 | あり | 管理人/管理会社 | - |
| 周辺環境 | その他 くすりの福太郎 南小岩店(ドラッグストア)まで471m その他 まいばすけっと 南小岩1丁目店(スーパー)まで317m その他 セブンイレブン 江戸川東松本2丁目店(コンビニ)まで447m その他 ローソンストア100 江戸川南小岩四丁目店(スーパー)まで440m その他 江戸川区立南小岩小学校(小学校)まで162m その他 白鳩保育園(幼稚園・保育園)まで471m | ||
| 建物種別 | アパート | 建物構造 | 木造 |
この部屋の取扱い不動産会社
| 会社名 | (株)CLCコーポレーション小岩店(SUUMO経由) | ||
|---|---|---|---|
| 所在地 | 東京都江戸川区南小岩7-28-2 | 交通 | - |
| 営業時間 | 10:00~18:30 | 定休日 | 火曜日(1月~3月は無休) |
| 免許番号 | 東京都知事83270 | 取引態様 | 仲介 |
| 不動産会社管理番号 | 100483929742 | 当社管理番号 | 89 |
| 所属団体 | (公社)全日本不動産協会東京都本部会員 | ||
| 公正取引協議会 | (公社)首都圏不動産公正取引協議会加盟 | ||
| 取扱い物件情報 | 物件詳細へ | ||
※各種情報と現状に差異がある場合は、現状優先となります。問い合わせをすることで、より詳しい条件、情報を確認する事ができます。
提供:(株)CLCコーポレーション小岩店(SUUMO経由)
この物件が気になったら掲載期限まであと10日
ヒローズハイツIIに条件(家賃・エリア)が近い物件一覧
| 写真 | 家賃 管理費等 | 敷金 礼金 | 間取り 専有面積 | 築年数 | 最寄り駅 所在地 | キープ | 詳細 |
|---|---|---|---|---|---|---|---|
マンション プラウドフラット両国イースト(1K/8階) | |||||||
![]() | 12.9万円 1万円 | 12.9万円 なし | 1K 25.12m2 | 築5年 | 東京都大江戸線 両国駅 徒歩8分 東京都新宿線 菊川駅(東京) 徒歩11分 総武・中央緩行線 両国駅 徒歩13分 東京都墨田区緑3丁目 | 詳細を見る | |
マンション リブリ・曳舟(1LDK/3階) | |||||||
![]() | 12.8万円 3,000円 | なし 19.2万円 | 1LDK 32.04m2 | 築1年 | 東武伊勢崎・大師線 曳舟駅 徒歩13分 東武伊勢崎・大師線 東向島駅 徒歩13分 京成電鉄押上線 京成曳舟駅 徒歩16分 東京都墨田区堤通1丁目 | 詳細を見る | |
マンション SYFORME MONZEN-NAKACHO(1DK/1階) | |||||||
![]() | 12.4万円 1万円 | 12.4万円 12.4万円 | 1DK 28.2m2 | 築6年 | 東京メトロ東西線 門前仲町駅 徒歩5分 都営大江戸線 門前仲町駅 徒歩5分 JR京葉線 越中島駅 徒歩10分 東京都江東区永代 | 詳細を見る | |
マンション アーバンパーク押上(1DK/1階) | |||||||
![]() | 12.15万円 1.5万円 | なし なし | 1DK 25.81m2 | 築2年 | 都営浅草線 押上駅 徒歩8分 東武伊勢崎線 曳舟駅 徒歩14分 都営浅草線 本所吾妻橋駅 徒歩14分 東京都墨田区向島 | 詳細を見る | |
マンション レジデンスヤマ西葛西(1DK/4階) | |||||||
![]() | 8.3万円 7,000円 | なし なし | 1DK 31.63m2 | 築42年 | 東京メトロ東西線 西葛西駅 徒歩4分 東京メトロ東西線 葛西駅 徒歩20分 都営新宿線 船堀駅 徒歩30分 東京都江戸川区西葛西 | 詳細を見る | |
マンション ルクレ墨田緑Ⅰ(1K/8階) | |||||||
![]() | 11.9万円 1万円 | なし なし | 1K 26.76m2 | 築6年 | 東京都新宿線 菊川駅(東京) 徒歩7分 東京都大江戸線 両国駅 徒歩13分 東京都大江戸線 森下駅(東京) 徒歩13分 東京都墨田区緑4丁目 | 詳細を見る | |
マンション GENOVIA両国VIGREEN VEIL(ワンルーム/8階) | |||||||
![]() | 12.1万円 1.5万円 | なし なし | ワンルーム 26.53m2 | 築4年 | 都営新宿線 菊川駅(東京) 徒歩11分 JR総武線 錦糸町駅 徒歩12分 都営大江戸線 森下駅(東京) 徒歩19分 東京都墨田区緑 | 詳細を見る | |
マンション プレール・ドゥーク両国Ⅲ(1K/4階) | |||||||
![]() | 11.3万円 1万円 | なし なし | 1K 25.95m2 | 築3年 | 東京都大江戸線 両国駅 徒歩8分 総武・中央緩行線 両国駅 徒歩13分 総武本線 錦糸町駅 徒歩15分 東京都墨田区緑3丁目 | 詳細を見る | |






