賃貸マンション
アゼスト阪東橋2の賃貸物件情報(ワンルーム/2階)
| 家賃 | 管理費等 | 敷金 | 礼金 | 間取り | 専有面積 |
|---|---|---|---|---|---|
| 8.5万円 | 1万円 | なし | 4.25万円 | ワンルーム | 20.58m2 |
入居決定でお祝い金最大100,000円
- 保証金
- -
- 償却・敷引
- -
- 築年数
- 築1年
- 所在階
- 2階
- 向き
- 北東
Point
お電話でのお問い合わせは8時30分から20時まで可能です!お気軽にフリーダイヤルまでご連絡ください♪◇webでのお申し込みも対応可能です◇
提供:(株)ネクストライフ横浜店(SUUMO経由)

詳細情報 アゼスト阪東橋2
物件紹介
アゼスト阪東橋2はブルーライン阪東橋駅から徒歩5分にあり、駅近で通勤通学に便利なマンションです。
このお部屋は2階以上に位置しているので、通行人や周囲の住人からの視線が気になりにくく、防犯面でも安心。建物のエントランスはオートロックがついており、インターホンにはTVモニタもついているため、相手の顔を確認してから来客対応することができます。
フローリングのお部屋なのでお掃除もラクラク。キッチンはシステムキッチン仕様になっていますので、お料理好きの方にもぴったり。また、バス・トイレは別で、のんびりお風呂タイムも楽しめるでしょう。
通信設備面では、インターネットが無料で使えるので、月々の出費を抑えられるのも魅力です(別途工事等が必要な場合あり)。
建物にはエレベーターがついているので、重い荷物があっても安心。共用部には宅配ボックスが設定されているので、不在の時にも荷物を受け取ることができます。
このお部屋は2階以上に位置しているので、通行人や周囲の住人からの視線が気になりにくく、防犯面でも安心。建物のエントランスはオートロックがついており、インターホンにはTVモニタもついているため、相手の顔を確認してから来客対応することができます。
フローリングのお部屋なのでお掃除もラクラク。キッチンはシステムキッチン仕様になっていますので、お料理好きの方にもぴったり。また、バス・トイレは別で、のんびりお風呂タイムも楽しめるでしょう。
通信設備面では、インターネットが無料で使えるので、月々の出費を抑えられるのも魅力です(別途工事等が必要な場合あり)。
建物にはエレベーターがついているので、重い荷物があっても安心。共用部には宅配ボックスが設定されているので、不在の時にも荷物を受け取ることができます。
お金・契約の情報
※「-」と表示されているものは、実際は料金が発生するものもございます。詳細はお問い合わせください。
| 家賃 | 8.5万円 | 管理費・共益費 | 1万円 |
|---|---|---|---|
| 敷金 | なし | 礼金 | 4.25万円 |
| 入居決定でお祝い金最大100,000円 | |||
| 保証金 | - | 償却・敷引 | - |
| 住宅保険料 | - | 更新料 | - |
| 保証会社利用 | 必須 | 保証会社名 | - |
| 保証会社費用 | - | 保証会社備考 | 保証会社利用必 初回保証料:月額総賃料の50%、年間保証料:10000円 |
| 契約形態 | - | 契約期間 | - |
| 入居・引渡期間 | 即時 | 現況 | - |
| 契約備考 | 24時間ライフサポート:1100円/月 更新事務手数料:7700円 鍵交換代:33000円 クリーニング代:44000円 エアコンクリーニング代:15400円 短期解約違約金:1年未満で総賃料の1ヶ月分 ◆お持ちのクレジットカードで初期費用の決済が可能です◆初期費用のお見積り等、お気軽にお問い合わせくださいませ◆◆ 更新料 新賃料1.00ヶ月分 ワンルーム 普通借家2年 損保【1.8万円2年】 バストイレ別、バルコニー、エアコン、ガスコンロ対応、クロゼット、フローリング、TVインターホン、オートロック、室内洗濯置、シューズボックス、システムキッチン、温水洗浄便座、脱衣所、エレベーター、洗面所独立、洗面化粧台、2口コンロ、駐輪場、宅配ボックス、外壁タイル張り、即入居可、敷金不要、照明付、2沿線利用可、ネット使用料不要、築2年以内、24時間換気システム、築3年以内、2駅利用可、3駅以上利用可、駅徒歩5分以内、駅徒歩10分以内、24時間ゴミ出し可、敷地内ごみ置き場、築5年以内、都市ガス、初期費用カード決済可 | ||
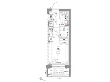
部屋の情報
| 間取り | ワンルーム | 専有面積 | 20.58m2 |
|---|---|---|---|
| 所在階 / 向き | 2階 / 北東 | バルコニー面積 | - |
| 水道 / ガス | - | ||
| 設備 | バス・トイレ別、2階以上、オートロック、テレビドアホン、宅配ボックス、インターネット対応、システムキッチン、エアコン、エレベーター、温水洗浄便座、バルコニー、フローリング、洗髪洗面化粧台、2口コンロ、コンロ:ガス、インターネット使用料無料、洗濯機:室内 | ||
| 当社物件ID | 159883327 | ||
建物の情報
| 建物名 | アゼスト阪東橋2 | ||
|---|---|---|---|
| 所在地 | 神奈川県横浜市南区浦舟町 | ||
| 交通 | ブルーライン 阪東橋駅 徒歩5分 京急本線 黄金町駅 徒歩10分 ブルーライン 伊勢佐木長者町駅 徒歩14分 | ||
| 階数 | 10階建 | 総戸数 | - |
| 築年月 | 2025年09月 / 築1年 | エレベーター | あり |
| 駐車場 | なし | バイク置き場 | - |
| 駐輪場 | あり | 管理人/管理会社 | - |
| 周辺環境 | その他 モスバーガー 横浜医大前店(飲食店)まで98m その他 横浜市南区役所(役所)まで172m その他 セブンイレブン 横浜白妙町2丁目店(コンビニ)まで193m その他 ローソン 横浜八幡町店(コンビニ)まで532m その他 ドラッグストアスマイル横浜吉野町店(ドラッグストア)まで836m | ||
| 建物種別 | マンション | 建物構造 | RC(鉄筋コンクリート) |
この部屋の取扱い不動産会社
| 会社名 | (株)ネクストライフ立川店(SUUMO経由) | ||
|---|---|---|---|
| 所在地 | 東京都立川市柴崎町3-8-1 NACビル5階 | 交通 | - |
| 営業時間 | 10:00~18:30(電話8:30~20:00) | 定休日 | 年末年始を除き無休 |
| 免許番号 | 国土交通大臣8175 | 取引態様 | 仲介 |
| 不動産会社管理番号 | 100482358368 | 当社管理番号 | 89 |
| 所属団体 | (公社)東京都宅地建物取引業協会会員 | ||
| 公正取引協議会 | (公社)首都圏不動産公正取引協議会加盟 | ||
| 取扱い物件情報 | 物件詳細へ | ||
※各種情報と現状に差異がある場合は、現状優先となります。問い合わせをすることで、より詳しい条件、情報を確認する事ができます。
提供:(株)ネクストライフ立川店(SUUMO経由)
この物件が気になったら掲載期限まであと10日
アゼスト阪東橋2に条件(家賃・エリア)が近い物件一覧
| 写真 | 家賃 管理費等 | 敷金 礼金 | 間取り 専有面積 | 築年数 | 最寄り駅 所在地 | キープ | 詳細 |
|---|---|---|---|---|---|---|---|
マンション COURT BLANCHE(1K/1階) | |||||||
![]() | 7.8万円 1.5万円 | なし なし | 1K 20.55m2 | 築9年 | JR南武線 武蔵新城駅 徒歩8分 JR南武線 武蔵中原駅 徒歩10分 神奈川県川崎市中原区上小田中 | 詳細を見る | |
マンション ガーデンヒルズ白鳥II(1LDK/1階) | |||||||
![]() | 10万円 6,000円 | 10万円 10万円 | 1LDK 46.62m2 | 築7年 | 小田急多摩線 栗平駅 徒歩5分 小田急多摩線 五月台駅 徒歩21分 小田急多摩線 新百合ケ丘駅 徒歩37分 神奈川県川崎市麻生区白鳥 | 詳細を見る | |
マンション 康成ビル(1DK/2階) | |||||||
![]() | 7.5万円 なし | 11.25万円 なし | 1DK 26.56m2 | 築43年 | JR南武線 矢向駅 徒歩9分 JR南武線 鹿島田駅 徒歩15分 JR横須賀線 新川崎駅 徒歩19分 神奈川県川崎市幸区塚越 | 詳細を見る | |
マンション レオネクスト湘南山手館C(1K/2階) | |||||||
![]() | 6.2万円 5,000円 | なし 6.2万円 | 1K 26.08m2 | 築17年 | 神奈川県藤沢市石川4丁目 | 詳細を見る | |
アパート コーポたちばな(1LDK/1階) | |||||||
![]() | 8.5万円 3,500円 | なし なし | 1LDK 32.8m2 | 築43年 | JR南武線 平間駅 徒歩6分 JR南武線 向河原駅 徒歩13分 JR横須賀線 武蔵小杉駅 徒歩18分 神奈川県川崎市中原区中丸子 | 詳細を見る | |
マンション ラフィスタ横浜黄金町(1K/3階) | |||||||
![]() | 9万円 1.5万円 | 9万円 9万円 | 1K 23.86m2 | 築2年 | 京浜急行電鉄本線 黄金町駅 徒歩4分 神奈川県横浜市南区西中町1丁目 | 詳細を見る | |
マンション グランデュールKAJIGAYA(1K/2階) | |||||||
![]() | 7.2万円 4,000円 | 10.8万円 なし | 1K 21.18m2 | 築7年 | 東急田園都市線 梶が谷駅 徒歩2分 JR南武線 武蔵溝ノ口駅 徒歩14分 東急田園都市線 溝の口駅 徒歩19分 神奈川県川崎市高津区末長 | 詳細を見る | |







