賃貸アパート
パセオグランデ四街道の賃貸物件情報(1K/1階)
| 家賃 | 管理費等 | 敷金 | 礼金 | 間取り | 専有面積 |
|---|---|---|---|---|---|
| 5.3万円 | 9,000円 | なし | なし | 1K | 20.2m2 |
入居決定でお祝い金最大100,000円
Point
新築1Kアパート!単身限定。フリーレント1ヶ月、全居室フローリング、エアコン。宅配ボックスやバイク置場、防犯カメラ完備で安心。ネット使用料不要。陽当たり良好。
提供:(株)SIRE ECHOES(SUUMO経由)

詳細情報 パセオグランデ四街道
物件紹介
パセオグランデ四街道はJR総武本線四街道駅から徒歩5分にあり、駅近で通勤通学に便利なアパートです。
このお部屋のインターホンにはTVモニタがついているため、相手の顔を確認してから来客対応することができます。
おしゃれなデザイナーズ物件!人気の南向きのお部屋。また、フローリングなのでお掃除もラクラク。バス・トイレ別の仕様で、のんびりお風呂タイムも楽しめます。また、浴室乾燥機を使えば、雨の日でもお洗濯は問題ありません。
通信設備面では、インターネットが無料で使えるので、月々の出費を抑えられるのも魅力です(別途工事等が必要な場合あり)。
共用部には宅配ボックスが設定されているので、不在の時にも荷物を受け取ることができます。また、ペット飼育の相談ができますので、あなたの大切な家族の一員も快適に暮らせるか、ぜひ確認してみてください。
このお部屋のインターホンにはTVモニタがついているため、相手の顔を確認してから来客対応することができます。
おしゃれなデザイナーズ物件!人気の南向きのお部屋。また、フローリングなのでお掃除もラクラク。バス・トイレ別の仕様で、のんびりお風呂タイムも楽しめます。また、浴室乾燥機を使えば、雨の日でもお洗濯は問題ありません。
通信設備面では、インターネットが無料で使えるので、月々の出費を抑えられるのも魅力です(別途工事等が必要な場合あり)。
共用部には宅配ボックスが設定されているので、不在の時にも荷物を受け取ることができます。また、ペット飼育の相談ができますので、あなたの大切な家族の一員も快適に暮らせるか、ぜひ確認してみてください。
お金・契約の情報
※「-」と表示されているものは、実際は料金が発生するものもございます。詳細はお問い合わせください。
| 家賃 | 5.3万円 | 管理費・共益費 | 9,000円 |
|---|---|---|---|
| 敷金 | なし | 礼金 | なし |
| フリーレント | あり | ||
| 入居決定でお祝い金最大100,000円 | |||
| 保証金 | - | 償却・敷引 | - |
| 住宅保険料 | - | 更新料 | - |
| 保証会社利用 | 必須 | 保証会社名 | - |
| 保証会社費用 | - | 保証会社備考 | 保証会社利用必 【初回保証委託料】家賃1ヶ月分【年間保証委託料】2万円 |
| 契約形態 | - | 契約期間 | - |
| 入居・引渡期間 | - | 現況 | - |
| 入居可能条件 | 事務所可、ペット相談 | ||
| 契約備考 | 対応は弊社提携先。会社一覧:短期解約違約金あり。 更新料 新賃料1.00ヶ月分 積立金(月額) 月額1000円 オプション1:初期費用大家負担プラン(月額) 月額3000円 オプション2:ペット一匹(月額) 月額5000円 ナップ駆け付けサービス(加入必須)(月額) 月額500円 ナップ 月額1000円 1K 単身者限定/子供不可/ペット相談/事務所利用相談/ルームシェア不可/フリーレント1ヶ月 普通借家2年 損保【要】 バストイレ別、エアコン、ガスコンロ対応、クロゼット、フローリング、TVインターホン、浴室乾燥機、室内洗濯置、陽当り良好、シューズボックス、南向き、追焚機能浴室、温水洗浄便座、洗面所独立、洗面化粧台、2口コンロ、駐輪場、宅配ボックス、礼金不要、敷金不要、防犯カメラ、ペット相談、全居室収納、保証人不要、全居室フローリング、デザイナーズ、ネット使用料不要、フリーレント、事務所相談、敷地内ごみ置き場、プロパンガス、室内物干機、高速ネット対応、敷金・礼金不要、通風良好 入居日:'26年4月下旬 | ||
部屋の情報
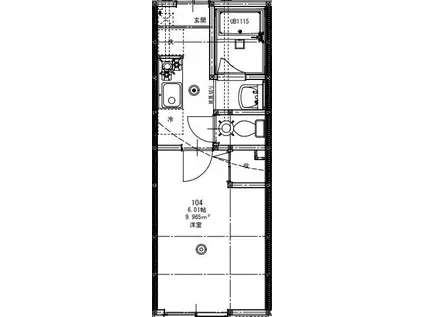
| 間取り | 1K | 専有面積 | 20.2m2 |
|---|---|---|---|
| 所在階 / 向き | 1階 / 南 | バルコニー面積 | - |
| 水道 / ガス | - | ||
| 設備 | バス・トイレ別、テレビドアホン、宅配ボックス、浴室乾燥機、追い焚き、インターネット対応、エアコン、温水洗浄便座、南向き、フローリング、洗髪洗面化粧台、2口コンロ、コンロ:ガス、デザイナーズ、インターネット使用料無料、洗濯機:室内 | ||
| 当社物件ID | 160585700 | ||
建物の情報
| 建物名 | パセオグランデ四街道 | ||
|---|---|---|---|
| 所在地 | 千葉県四街道市四街道 | ||
| 交通 | JR総武本線 四街道駅 徒歩5分 | ||
| 階数 | 2階建 | 総戸数 | - |
| 築年月 | 2026年04月 / 新築 | エレベーター | - |
| 駐車場 | なし | バイク置き場 | - |
| 駐輪場 | あり | 管理人/管理会社 | - |
| 周辺環境 | その他 せんどう 美しが丘店(スーパー)まで530m その他 ヤマザキYショップ明星(コンビニ)まで677m その他 セブンイレブン 千葉小深町店(コンビニ)まで1054m その他 ケーヨーデイツー 小深店(ホームセンター)まで1310m その他 ドラッグセイムス四街道店(ドラッグストア)まで615m | ||
| 建物種別 | アパート | 建物構造 | 木造 |
この部屋の取扱い不動産会社
| 会社名 | (株)SIRE ECHOES(SUUMO経由) | ||
|---|---|---|---|
| 所在地 | 東京都目黒区下目黒3-4-2 タムラビル5階 | 交通 | - |
| 営業時間 | 10:00~19:00 | 定休日 | なし |
| 免許番号 | 東京都知事103136 | 取引態様 | 仲介 |
| 不動産会社管理番号 | 100494652095 | 当社管理番号 | 89 |
| 所属団体 | (公社)東京都宅地建物取引業協会会員 | ||
| 公正取引協議会 | (公社)首都圏不動産公正取引協議会加盟 | ||
| 取扱い物件情報 | 物件詳細へ | ||
※各種情報と現状に差異がある場合は、現状優先となります。問い合わせをすることで、より詳しい条件、情報を確認する事ができます。
提供:(株)SIRE ECHOES(SUUMO経由)
この物件が気になったら掲載期限まであと12日
パセオグランデ四街道に条件(家賃・エリア)が近い物件一覧
| 写真 | 家賃 管理費等 | 敷金 礼金 | 間取り 専有面積 | 築年数 | 最寄り駅 所在地 | キープ | 詳細 |
|---|---|---|---|---|---|---|---|
アパート 矢澤ハイツ(1DK/2階) | |||||||
![]() | 4.8万円 なし | 4.8万円 なし | 1DK 31m2 | 築37年 | JR信越本線 長野駅(JR・しなの) 徒歩22分 長野電鉄長野線 市役所前駅(長野) 徒歩25分 長野県長野市大字栗田 | 詳細を見る | |
アパート しいの木ハウス(ワンルーム/1階) | |||||||
![]() | 4.5万円 2,000円 | 4.5万円 4.5万円 | ワンルーム 23.1m2 | 築43年 | 千葉都市モノレール 葭川公園駅 徒歩15分 千葉県千葉市中央区道場南1丁目 | 詳細を見る | |
マンション レオパレスユズ(1K/2階) | |||||||
![]() | 5.6万円 7,000円 | なし 5.6万円 | 1K 20.28m2 | 築19年 | 京成電鉄千原線 千葉中央駅 徒歩21分 千葉県千葉市中央区鶴沢町 | 詳細を見る | |
アパート レオパレスミカドA(2DK/1階) | |||||||
![]() | 6.6万円 5,000円 | なし 6.6万円 | 2DK 40.95m2 | 築26年 | 千葉都市モノレール 桜木駅(千葉) 徒歩9分 千葉県千葉市若葉区桜木7丁目 | 詳細を見る | |
アパート ピュア輝(2LDK/2階) | |||||||
![]() | 6.9万円 5,500円 | なし 9.9万円 | 2LDK 55.44m2 | 築21年 | 総武本線 都賀駅 徒歩12分 千葉都市モノレール 桜木駅(千葉) 徒歩14分 千葉県千葉市若葉区貝塚2丁目 | 詳細を見る | |
マンション ヒルズ轟(1DK/3階) | |||||||
![]() | 4.3万円 3,000円 | なし なし | 1DK 26m2 | 築54年 | 千葉都市モノレール 作草部駅 徒歩4分 総武・中央緩行線 西千葉駅 徒歩16分 千葉県千葉市稲毛区轟町4丁目 | 詳細を見る | |
アパート ハイムカメリア(ワンルーム/3階) | |||||||
![]() | 5.1万円 5,000円 | なし 5.1万円 | ワンルーム 21.88m2 | 築33年 | 外房線 鎌取駅 徒歩9分 千葉県千葉市緑区おゆみ野2丁目 | 詳細を見る | |
マンション SECOND CORAL千葉中央(1K/2階) | |||||||
![]() | 6.4万円 4,500円 | 6.4万円 なし | 1K 26.39m2 | 築4年 | 京成電鉄千原線 千葉中央駅 徒歩13分 総武・中央緩行線 千葉駅 徒歩17分 千葉県千葉市中央区本町1丁目 | 詳細を見る | |




/105x80-f1-q70-wp1)
/105x80-f1-q70-wp1)



