賃貸アパート
ウィスタリアBの賃貸物件情報(2LDK/2階)
| 家賃 | 管理費等 | 敷金 | 礼金 | 間取り | 専有面積 |
|---|---|---|---|---|---|
| 10.3万円 | 7,000円 | なし | 10.3万円 | 2LDK | 53m2 |
入居決定でお祝い金最大100,000円
- 保証金
- -
- 償却・敷引
- -
- 築年数
- 築18年
- 所在階
- 2階
- 向き
- 南
Point
入居後すぐに使えるインターネット無料です。(ギガプライズ)部屋干しに便利な室内物干し付き。南向き2階の明るい角部屋、環境もよく生活しやすい場所です。現在入居中、退室予定です。オートバイ不可。
提供:シャーメゾンショップ (有)五善商事(SUUMO経由)

詳細情報 ウィスタリアB
物件紹介
ウィスタリアBは東武東上線下赤塚駅から徒歩5分にあり、駅近で通勤通学に便利なアパートです。
このお部屋は2階以上に位置しているので、通行人や周囲の住人からの視線が気になりにくく、防犯面でも安心。建物のエントランスはオートロックがついており、インターホンにはTVモニタもついているため、相手の顔を確認してから来客対応することができます。
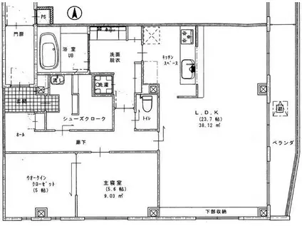
人気の南向き・フローリングのお部屋。角部屋でもあるため、周囲の居住者の生活音も気になりにくい場所です。室内にはウォークインクローゼットがありますので、たくさんの荷物も効率的に収納ができます。キッチンはシステムキッチン仕様になっていますので、お料理好きの方にもぴったり。バス・トイレは別なので、のんびりお風呂タイムも楽しめるでしょう。また、雨の日でも浴室乾燥機を使えば、お洗濯も問題ありません。
通信設備面では、インターネットが無料で使えるので、月々の出費を抑えられるのも魅力です。また、BSアンテナ・CSアンテナがありCATVにも対応しているので、おうち時間も充実するでしょう(別途工事、BS・CS・CATVの契約料等が必要な場合あり)。
床暖房があり、冬も足元から暖かく快適に過ごすことができます。共用部には宅配ボックスが設定されているので、不在の時にも荷物を受け取ることができます。
このお部屋は2階以上に位置しているので、通行人や周囲の住人からの視線が気になりにくく、防犯面でも安心。建物のエントランスはオートロックがついており、インターホンにはTVモニタもついているため、相手の顔を確認してから来客対応することができます。
人気の南向き・フローリングのお部屋。角部屋でもあるため、周囲の居住者の生活音も気になりにくい場所です。室内にはウォークインクローゼットがありますので、たくさんの荷物も効率的に収納ができます。キッチンはシステムキッチン仕様になっていますので、お料理好きの方にもぴったり。バス・トイレは別なので、のんびりお風呂タイムも楽しめるでしょう。また、雨の日でも浴室乾燥機を使えば、お洗濯も問題ありません。
通信設備面では、インターネットが無料で使えるので、月々の出費を抑えられるのも魅力です。また、BSアンテナ・CSアンテナがありCATVにも対応しているので、おうち時間も充実するでしょう(別途工事、BS・CS・CATVの契約料等が必要な場合あり)。
床暖房があり、冬も足元から暖かく快適に過ごすことができます。共用部には宅配ボックスが設定されているので、不在の時にも荷物を受け取ることができます。
お金・契約の情報
※「-」と表示されているものは、実際は料金が発生するものもございます。詳細はお問い合わせください。
| 家賃 | 10.3万円 | 管理費・共益費 | 7,000円 |
|---|---|---|---|
| 敷金 | なし | 礼金 | 10.3万円 |
| 入居決定でお祝い金最大100,000円 | |||
| 保証金 | - | 償却・敷引 | - |
| 住宅保険料 | - | 更新料 | - |
| 保証会社利用 | 必須 | 保証会社名 | - |
| 保証会社費用 | - | 保証会社備考 | 保証会社利用必 積水ハウスシャーメゾンパートナーズ らくらくパートナー 新規契約時に保証事務手数料が33000円 と 毎月、月額保証料が家賃と共益費等合計の2%かかります。 |
| 契約形態 | - | 契約期間 | - |
| 入居・引渡期間 | 相談 | 現況 | - |
| 契約備考 | 巡回管理/積水ハウスの賃貸住宅シャーメゾン 合計10.26万円(内訳:新規契約時に退去クリーニング費用 78320円 税込 と 鍵交換費用 24200円 税込 が必要です。) シャーメゾンライフサポート24要加入 月額1320円 税込 退室時に入居者様負担としてエアコンクリーニング代1台分がかかります。 2LDK 普通借家2年 損保【要】 バストイレ別、バルコニー、エアコン、クロゼット、シャワー付洗面台、TVインターホン、オートロック、室内洗濯置、陽当り良好、シューズボックス、南向き、追焚機能浴室、角住戸、温水洗浄便座、洗面所独立、駐輪場、敷金不要、対面式キッチン、防犯カメラ、駐車場1台無料、全居室洋室、玄関ホール、クッションフロア、ディンプルキー、ネット使用料不要、キッチンに窓、ダブルロックキー、南面2室、南面リビング、駅徒歩10分以内、敷地内ごみ置き場、都市ガス、シャッター、室内物干機、礼金1ヶ月、通風良好 | ||
部屋の情報
| 間取り | 2LDK | 専有面積 | 53m2 |
|---|---|---|---|
| 所在階 / 向き | 2階 / 南 | バルコニー面積 | - |
| 水道 / ガス | - | ||
| 設備 | バス・トイレ別、2階以上、オートロック、テレビドアホン、宅配ボックス、浴室乾燥機、ウォークインクローゼット、追い焚き、インターネット対応、システムキッチン、エアコン、温水洗浄便座、南向き、角部屋、バルコニー、フローリング、洗髪洗面化粧台、床暖房、CATV、CSアンテナ、BSアンテナ、インターネット使用料無料、洗濯機:室内 | ||
| 当社物件ID | 128333331 | ||
建物の情報
| 建物名 | ウィスタリアB | ||
|---|---|---|---|
| 所在地 | 神奈川県大和市渋谷 | ||
| 交通 | 東武東上線 下赤塚駅 徒歩5分 東京メトロ有楽町線 地下鉄赤塚駅 徒歩7分 小田急江ノ島線 高座渋谷駅 徒歩7分 東京メトロ有楽町線 地下鉄成増駅 徒歩23分 小田急江ノ島線 桜ケ丘駅 徒歩24分 小田急江ノ島線 長後駅 徒歩38分 | ||
| 階数 | 2階建 | 総戸数 | - |
| 築年月 | 2008年07月 / 築18年 | エレベーター | - |
| 駐車場 | 空有 付無料 | バイク置き場 | あり |
| 駐輪場 | あり | 管理人/管理会社 | - |
| 周辺環境 | その他 フレッシュマートこいずみ(スーパー)まで151m その他 セブン-イレブン 板橋赤塚中央通り店(コンビニ)まで210m その他 ウエルシア板橋赤塚店(ドラッグストア)まで99m その他 ドトールコーヒーショップ 下赤塚店(飲食店)まで456m その他 板橋区立赤塚第一中学校(中学校)まで827m その他 板橋区立下赤塚小学校(小学校)まで479m その他 いなげや大和高座渋谷店(スーパー)まで404m その他 ビッグヨーサン高座渋谷駅前店(スーパー)まで533m その他 イオン大和店(スーパー)まで669m その他 セブンイレブン大和福田店(コンビニ)まで234m その他 セイジョー大和渋谷店(ドラッグストア)まで320m その他 ほっともっと高座渋谷店(飲食店)まで214m | ||
| 建物種別 | アパート | 建物構造 | 軽量鉄骨造 |
この部屋の取扱い不動産会社
| 会社名 | シャーメゾンショップ (有)五善商事(SUUMO経由) | ||
|---|---|---|---|
| 所在地 | 神奈川県大和市中央2-5-4 | 交通 | - |
| 営業時間 | AM10:00~PM6:00 | 定休日 | 火曜日・水曜日 |
| 免許番号 | 神奈川県知事14330 | 取引態様 | 仲介 |
| 不動産会社管理番号 | 100501387226 | 当社管理番号 | 89 |
| 所属団体 | (公社)神奈川県宅地建物取引業協会会員 | ||
| 公正取引協議会 | (公社)首都圏不動産公正取引協議会加盟 | ||
| 取扱い物件情報 | 物件詳細へ | ||
※各種情報と現状に差異がある場合は、現状優先となります。問い合わせをすることで、より詳しい条件、情報を確認する事ができます。
提供:シャーメゾンショップ (有)五善商事(SUUMO経由)
この物件が気になったら掲載期限まであと12日
ウィスタリアBに条件(家賃・エリア)が近い物件一覧
| 写真 | 家賃 管理費等 | 敷金 礼金 | 間取り 専有面積 | 築年数 | 最寄り駅 所在地 | キープ | 詳細 |
|---|---|---|---|---|---|---|---|
アパート ノーステラス(ワンルーム/3階) | |||||||
![]() | 6.2万円 4,000円 | なし なし | ワンルーム 18m2 | 築1年 | 相模鉄道本線 海老名駅 徒歩6分 神奈川県海老名市国分南1丁目 | 詳細を見る | |
アパート プルミエール 三ッ池公園(2LDK/3階) | |||||||
![]() | 13.5万円 9,300円 | 13.5万円 13.5万円 | 2LDK 65.66m2 | 築9年 | 東急東横線 大倉山駅(神奈川) 徒歩35分 JR京浜東北線 鶴見駅 徒歩38分 東急東横線 綱島駅 徒歩39分 神奈川県横浜市鶴見区駒岡 | 詳細を見る | |
マンション グリーンヒルズ横濱D棟(3LDK/3階) | |||||||
![]() | 12.5万円 なし | 12.5万円 なし | 3LDK 60.5m2 | 築49年 | 湘南新宿ライン宇須 保土ケ谷駅 徒歩28分 神奈川県横浜市保土ケ谷区狩場町 | 詳細を見る | |
マンション クレヴィスタ桜木町(1K/1階) | |||||||
![]() | 9.3万円 1.1万円 | なし 1円 | 1K 21.04m2 | 築1年 | 京浜急行電鉄本線 日ノ出町駅 徒歩4分 神奈川県横浜市中区長者町9丁目 | 詳細を見る | |
マンション グリーンリーブスアサバ(ワンルーム/2階) | |||||||
![]() | 6.5万円 2,000円 | 6.5万円 なし | ワンルーム 19.44m2 | 築53年 | シーサイドライン 海の公園柴口駅 徒歩10分 京急本線 金沢文庫駅 徒歩11分 シーサイドライン 海の公園南口駅 徒歩11分 神奈川県横浜市金沢区金沢町 | 詳細を見る | |
マンション ザ・レジデンス横浜青木橋(1K/8階) | |||||||
![]() | 8.7万円 8,000円 | 8.7万円 なし | 1K 20.08m2 | 築10年 | 京急本線 神奈川駅 徒歩1分 JR東海道本線 横浜駅 徒歩8分 東急東横線 反町駅 徒歩10分 神奈川県横浜市神奈川区青木町 | 詳細を見る | |
マンション シーサイドヴィレッジ鵠沼(2DK/2階) | |||||||
![]() | 7.5万円 2,000円 | 15万円 7.5万円 | 2DK 42.8m2 | 築42年 | 小田急電鉄江ノ島線 鵠沼海岸駅 徒歩4分 神奈川県藤沢市鵠沼海岸2丁目 | 詳細を見る | |
マンション 高座渋谷駅前マンション(2LDK/5階) | |||||||
![]() | 15.16万円 7,000円 | 15.16万円 なし | 2LDK 52.38m2 | 新築 | 小田急電鉄江ノ島線 高座渋谷駅 徒歩1分 神奈川県大和市渋谷5丁目 | 詳細を見る | |





/105x80-f1-q70-wp1)



