賃貸マンション
アルテシモ ソロ アルテシモソロの賃貸物件情報(1LDK/3階)
| 家賃 | 管理費等 | 敷金 | 礼金 | 間取り | 専有面積 |
|---|---|---|---|---|---|
| 16.5万円 | 2万円 | 16.5万円 | 16.5万円 | 1LDK | 40.44m2 |
入居決定でお祝い金最大100,000円
- 保証金
- -
- 償却・敷引
- -
- 築年数
- 築9年
- 所在階
- 3階
- 向き
- -
- 交通
- 都営浅草線 本所吾妻橋駅 徒歩2分
東京メトロ銀座線 浅草駅(東武・都営・メトロ) 徒歩10分
東京メトロ半蔵門線 押上駅 徒歩11分
- 所在地
- 東京都墨田区東駒形
アルテシモ ソロ アルテシモソロ
[地図を表示]
Point
まずはお問い合わせ!
不動産会社は街のプロ、あなたに合った物件がきっと見つかります。
提供:(株)アインスホーム神田駅前店(SUUMO経由)

詳細情報 アルテシモ ソロ アルテシモソロ
物件紹介
アルテシモ ソロ アルテシモソロは都営浅草線本所吾妻橋駅から徒歩2分にあり、駅近で通勤通学に便利なマンションです。
このお部屋は2階以上に位置しているので、通行人や周囲の住人からの視線が気になりにくく、防犯面でも安心。建物のエントランスはオートロックがついており、インターホンにはTVモニタもついているため、相手の顔を確認してから来客対応することができます。
おしゃれなデザイナーズ物件!人気の角部屋で周囲の居住者の生活音も気になりにくく、また、フローリングのお部屋なのでお掃除もラクラク。室内にはウォークインクローゼットがありますので、たくさんの荷物も効率的に収納ができます。キッチンはシステムキッチン仕様になっていますので、お料理好きの方にもぴったり。バス・トイレは別なので、のんびりお風呂タイムも楽しめるでしょう。また、雨の日でも浴室乾燥機を使えば、お洗濯も問題ありません。
通信設備面では、インターネット接続が可能です。また、BSアンテナ・CSアンテナがありCATVにも対応しているので、おうち時間も充実するでしょう(別途工事、契約料が必要な場合あり)。
建物にはエレベーターがついているので、重い荷物があっても安心。共用部には宅配ボックスが設定されているので、不在の時にも荷物を受け取ることができます。また、ペット飼育の相談ができますので、あなたの大切な家族の一員も快適に暮らせるか、ぜひ確認してみてください。
このお部屋は2階以上に位置しているので、通行人や周囲の住人からの視線が気になりにくく、防犯面でも安心。建物のエントランスはオートロックがついており、インターホンにはTVモニタもついているため、相手の顔を確認してから来客対応することができます。
おしゃれなデザイナーズ物件!人気の角部屋で周囲の居住者の生活音も気になりにくく、また、フローリングのお部屋なのでお掃除もラクラク。室内にはウォークインクローゼットがありますので、たくさんの荷物も効率的に収納ができます。キッチンはシステムキッチン仕様になっていますので、お料理好きの方にもぴったり。バス・トイレは別なので、のんびりお風呂タイムも楽しめるでしょう。また、雨の日でも浴室乾燥機を使えば、お洗濯も問題ありません。
通信設備面では、インターネット接続が可能です。また、BSアンテナ・CSアンテナがありCATVにも対応しているので、おうち時間も充実するでしょう(別途工事、契約料が必要な場合あり)。
建物にはエレベーターがついているので、重い荷物があっても安心。共用部には宅配ボックスが設定されているので、不在の時にも荷物を受け取ることができます。また、ペット飼育の相談ができますので、あなたの大切な家族の一員も快適に暮らせるか、ぜひ確認してみてください。
お金・契約の情報
※「-」と表示されているものは、実際は料金が発生するものもございます。詳細はお問い合わせください。
| 家賃 | 16.5万円 | 管理費・共益費 | 2万円 |
|---|---|---|---|
| 敷金 | 16.5万円 | 礼金 | 16.5万円 |
| 入居決定でお祝い金最大100,000円 | |||
| 保証金 | - | 償却・敷引 | - |
| 住宅保険料 | - | 更新料 | - |
| 保証会社利用 | 必須 | 保証会社名 | - |
| 保証会社費用 | - | 保証会社備考 | 保証会社利用必 初回総賃料の50%、月次800円 |
| 契約形態 | - | 契約期間 | - |
| 入居・引渡期間 | 相談 | 現況 | - |
| 入居可能条件 | ペット相談 | ||
| 契約備考 | 巡回管理/クレジットカードご利用いただけます♪首都圏の賃貸はアインスホームへ♪ 合計13.75万円(内訳:24時間サポート22000円事務手数料22000円鍵交換代27500円退去時クリーニング代77000円) 1LDK 二人入居可/子供可/ペット相談/ルームシェア相談 損保【要】 バストイレ別、バルコニー、エアコン、ガスコンロ対応、クロゼット、フローリング、TVインターホン、浴室乾燥機、オートロック、室内洗濯置、シューズボックス、システムキッチン、追焚機能浴室、角住戸、温水洗浄便座、脱衣所、エレベーター、洗面所独立、洗面化粧台、駐輪場、宅配ボックス、CATV、光ファイバー、2面採光、BS・CS、3口以上コンロ、対面式キッチン、防犯カメラ、ペット相談、分譲賃貸、オートバス、グリル付、全居室洋室、ウォークインクロゼット、保証人不要、仲介手数料不要、CATVインターネット、二人入居相談、バイク置場、南西角住戸、全居室フローリング、ガスレンジ付、デザイナーズ、ディンプルキー、ネット専用回線、ダブルロックキー、24時間換気システム、ルームシェア相談、人感照明センサー、耐震構造、3駅以上利用可、3沿線以上利用可、駅徒歩5分以内、24時間ゴミ出し可、敷地内ごみ置き場、都市ガス、洗面所にドア、高速ネット対応、保証会社利用可、初期費用カード決済可 | ||
部屋の情報
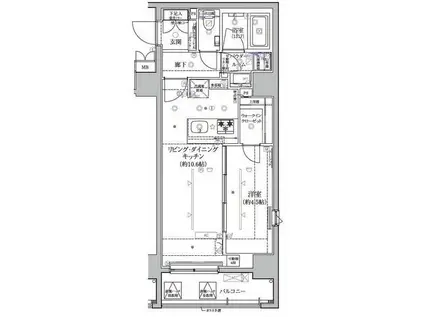
| 間取り | 1LDK | 専有面積 | 40.44m2 |
|---|---|---|---|
| 所在階 / 向き | 3階 / - | バルコニー面積 | - |
| 水道 / ガス | - | ||
| 設備 | バス・トイレ別、2階以上、オートロック、テレビドアホン、宅配ボックス、浴室乾燥機、ウォークインクローゼット、追い焚き、インターネット対応、システムキッチン、エアコン、エレベーター、温水洗浄便座、角部屋、バルコニー、フローリング、洗髪洗面化粧台、2口コンロ、コンロ:ガス、デザイナーズ、CATV、CSアンテナ、BSアンテナ、洗濯機:室内 | ||
| 当社物件ID | 160804313 | ||
建物の情報
| 建物名 | アルテシモ ソロ アルテシモソロ | ||
|---|---|---|---|
| 所在地 | 東京都墨田区東駒形 | ||
| 交通 | 都営浅草線 本所吾妻橋駅 徒歩2分 東京メトロ銀座線 浅草駅(東武・都営・メトロ) 徒歩10分 東京メトロ半蔵門線 押上駅 徒歩11分 | ||
| 階数 | 12階建 | 総戸数 | - |
| 築年月 | 2018年03月 / 築9年 | エレベーター | あり |
| 駐車場 | なし | バイク置き場 | あり |
| 駐輪場 | あり | 管理人/管理会社 | - |
| 周辺環境 | その他 東京スカイツリータウン(ショッピングセンター)まで793m その他 まいばすけっと本所吾妻橋駅前店(スーパー)まで215m その他 ミニストップ吾妻橋3丁目店(コンビニ)まで118m その他 どらっぐぱぱす東駒形店(ドラッグストア)まで254m その他 光の園保育学校(幼稚園・保育園)まで222m その他 うぃず東駒形保育園(幼稚園・保育園)まで581m | ||
| 建物種別 | マンション | 建物構造 | RC(鉄筋コンクリート) |
この部屋の取扱い不動産会社
| 会社名 | (株)アインスホーム神田東口支店(SUUMO経由) | ||
|---|---|---|---|
| 所在地 | 東京都千代田区神田須田町2-12-5 1階 | 交通 | - |
| 営業時間 | 9:30~20:00(時間外対応可能) | 定休日 | 年末年始のみ |
| 免許番号 | 東京都知事99627 | 取引態様 | 仲介 |
| 不動産会社管理番号 | 100503058701 | 当社管理番号 | 89 |
| 所属団体 | (公社)全日本不動産協会東京都本部会員 | ||
| 公正取引協議会 | (公社)首都圏不動産公正取引協議会加盟 | ||
| 取扱い物件情報 | 物件詳細へ | ||
※各種情報と現状に差異がある場合は、現状優先となります。問い合わせをすることで、より詳しい条件、情報を確認する事ができます。
提供:(株)アインスホーム神田東口支店(SUUMO経由)
この物件が気になったら掲載期限まであと11日
アルテシモ ソロ アルテシモソロに条件(家賃・エリア)が近い物件一覧
| 写真 | 家賃 管理費等 | 敷金 礼金 | 間取り 専有面積 | 築年数 | 最寄り駅 所在地 | キープ | 詳細 |
|---|---|---|---|---|---|---|---|
マンション プレール・ドゥーク大島(2LDK/2階) | |||||||
![]() | 23.3万円 1.1万円 | なし 23.3万円 | 2LDK 53.96m2 | 築3年 | 都営新宿線 東大島駅 徒歩6分 都営新宿線 大島駅(東京) 徒歩8分 JR総武線 亀戸駅 徒歩25分 東京都江東区大島 | 詳細を見る | |
マンション フロリス オーランティウム3(1LDK/2階) | |||||||
![]() | 19.4万円 1.1万円 | なし 19.4万円 | 1LDK 46.5m2 | 築55年 | 都営大江戸線 月島駅 徒歩2分 都営大江戸線 勝どき駅 徒歩7分 東京メトロ日比谷線 築地駅 徒歩21分 東京都中央区月島 | 詳細を見る | |
マンション ジェノヴィア押上スカイガーデン(1K/4階) | |||||||
![]() | 11.9万円 1.5万円 | なし なし | 1K 25.95m2 | 築5年 | 東京メトロ半蔵門線 押上駅 徒歩11分 都営浅草線 押上駅 徒歩11分 JR総武線 錦糸町駅 徒歩14分 東京都江東区亀戸 | 詳細を見る | |




