賃貸アパート
RIN学芸大学の賃貸物件情報(ワンルーム/1階)
| 家賃 | 管理費等 | 敷金 | 礼金 | 間取り | 専有面積 |
|---|---|---|---|---|---|
| 7.7万円 | 5,000円 | なし | なし | ワンルーム | 13.81m2 |
入居決定でお祝い金最大100,000円
- 保証金
- -
- 償却・敷引
- -
- 築年数
- 築10年
- 所在階
- 1階
- 向き
- 南東
Point
南東向き・2面採光につき陽当り風通し良好です!空間を有効利用できるロフトあり!オートロック付きなので、セキュリティ面も安心です♪バス・トイレ別の使いやすい間取りとなっております。
提供:AFTY (株)bELI(SUUMO経由)

詳細情報 RIN学芸大学
物件紹介
RIN学芸大学は東急東横線学芸大学駅から徒歩8分にあり、駅近で通勤通学に便利なアパートです。
建物のエントランスはオートロックがついており、インターホンにはTVモニタもついているため、相手の顔を確認してから来客対応することができます。
おしゃれなデザイナーズ物件!また、楽器相談が可能な物件となっているので、楽器演奏をお考えの方はぜひ相談してみてください。人気の南向き・フローリングのお部屋。室内には多目的に利用できるロフトもあり、お部屋のアレンジも自在です。バス・トイレ別の仕様で、のんびりお風呂タイムも楽しめます。
通信設備面では、インターネットが無料で使えるので、月々の出費を抑えられるのも魅力です(別途工事等が必要な場合あり)。
建物のエントランスはオートロックがついており、インターホンにはTVモニタもついているため、相手の顔を確認してから来客対応することができます。
おしゃれなデザイナーズ物件!また、楽器相談が可能な物件となっているので、楽器演奏をお考えの方はぜひ相談してみてください。人気の南向き・フローリングのお部屋。室内には多目的に利用できるロフトもあり、お部屋のアレンジも自在です。バス・トイレ別の仕様で、のんびりお風呂タイムも楽しめます。
通信設備面では、インターネットが無料で使えるので、月々の出費を抑えられるのも魅力です(別途工事等が必要な場合あり)。
お金・契約の情報
※「-」と表示されているものは、実際は料金が発生するものもございます。詳細はお問い合わせください。
| 家賃 | 7.7万円 | 管理費・共益費 | 5,000円 |
|---|---|---|---|
| 敷金 | なし | 礼金 | なし |
| 入居決定でお祝い金最大100,000円 | |||
| 保証金 | - | 償却・敷引 | - |
| 住宅保険料 | - | 更新料 | - |
| 保証会社利用 | 必須 | 保証会社名 | - |
| 保証会社費用 | - | 保証会社備考 | 保証会社利用必 初回保証料100%月額保証料:賃料総額2% ※口座振替手数料・保証会社更新料不要 |
| 契約形態 | - | 契約期間 | - |
| 入居・引渡期間 | - | 現況 | - |
| 入居可能条件 | 楽器相談 | ||
| 契約備考 | ペット不可/喫煙不可/残置物:エアコン/残置設備:温水洗浄便座 合計1.65万円(内訳:24時間サポート1.65万円) 更新料 新賃料1.00ヶ月分 ワンルーム 楽器相談 普通借家2年 損保【2.3万円2年】 バストイレ別、エアコン、フローリング、TVインターホン、オートロック、室内洗濯置、温水洗浄便座、閑静な住宅地、2面採光、IHクッキングヒーター、ロフト、デザイナーズ、ネット使用料不要、楽器相談、2駅利用可、24時間ゴミ出し可、敷地内ごみ置き場、東南向き、都市ガス、シャワールーム、室内物干機、年内入居可 入居日:'26年3月中旬 | ||
部屋の情報
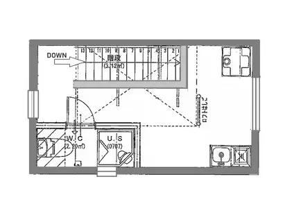
| 間取り | ワンルーム | 専有面積 | 13.81m2 |
|---|---|---|---|
| 所在階 / 向き | 1階 / 南東 | バルコニー面積 | - |
| 水道 / ガス | - | ||
| 設備 | バス・トイレ別、オートロック、テレビドアホン、インターネット対応、エアコン、温水洗浄便座、南向き、フローリング、ロフトあり、コンロ:IH、デザイナーズ、インターネット使用料無料、洗濯機:室内 | ||
| 当社物件ID | 158227919 | ||
建物の情報
| 建物名 | RIN学芸大学 | ||
|---|---|---|---|
| 所在地 | 東京都目黒区五本木 | ||
| 交通 | 東急東横線 学芸大学駅 徒歩8分 東急東横線 祐天寺駅 徒歩8分 東京メトロ日比谷線 中目黒駅 徒歩27分 | ||
| 階数 | 2階建 | 総戸数 | - |
| 築年月 | 2016年04月 / 築10年 | エレベーター | - |
| 駐車場 | なし | バイク置き場 | - |
| 駐輪場 | - | 管理人/管理会社 | - |
| 周辺環境 | その他 セブンイレブン 五本木店(コンビニ)まで120m その他 目黒区立五本木小学校(小学校)まで220m その他 五本木クリニック 一般(病院)まで397m その他 アソシエ祐天寺西保育園(幼稚園・保育園)まで435m その他 目黒区 五本木住区センター(役所)まで467m その他 オオゼキ 祐天寺店(スーパー)まで567m | ||
| 建物種別 | アパート | 建物構造 | 木造 |
この部屋の取扱い不動産会社
| 会社名 | AFTY (株)bELI(SUUMO経由) | ||
|---|---|---|---|
| 所在地 | 神奈川県横浜市中区南仲通3-32-1 みなとファンタジアビル3階 | 交通 | - |
| 営業時間 | 9時~19時 | 定休日 | 水曜日 |
| 免許番号 | 国土交通大臣10443 | 取引態様 | 仲介 |
| 不動産会社管理番号 | 100492206835 | 当社管理番号 | 89 |
| 所属団体 | (公社)全日本不動産協会神奈川県本部会員 | ||
| 公正取引協議会 | (公社)首都圏不動産公正取引協議会加盟 | ||
| 取扱い物件情報 | 物件詳細へ | ||
※各種情報と現状に差異がある場合は、現状優先となります。問い合わせをすることで、より詳しい条件、情報を確認する事ができます。
提供:AFTY (株)bELI(SUUMO経由)
この物件が気になったら掲載期限まであと12日
RIN学芸大学に条件(家賃・エリア)が近い物件一覧
| 写真 | 家賃 管理費等 | 敷金 礼金 | 間取り 専有面積 | 築年数 | 最寄り駅 所在地 | キープ | 詳細 |
|---|---|---|---|---|---|---|---|
アパート ロイヤルハウスA棟(ワンルーム/2階) | |||||||
![]() | 7万円 2,000円 | 7万円 7万円 | ワンルーム 23.19m2 | 築20年 | 京浜急行電鉄本線 平和島駅 徒歩8分 京浜急行電鉄本線 大森町駅 徒歩12分 東京都大田区大森東1丁目 | 詳細を見る | |
アパート SEED SAVE PETIRASU BREEZE(1LDK/3階) | |||||||
![]() | 10.7万円 1万円 | 21.4万円 10.7万円 | 1LDK 30.55m2 | 新築 | 東京モノレール羽田 昭和島駅 徒歩12分 京浜急行電鉄本線 大森町駅 徒歩18分 東京都大田区大森東5丁目 | 詳細を見る | |
マンション 山陰本線 二条駅 徒歩8分 築8年(1K/2階) | |||||||
![]() | 6.9万円 7,000円 | なし 13.8万円 | 1K 27.14m2 | 築8年 | 山陰本線 二条駅 徒歩8分 京都市東西線 二条駅 徒歩9分 東急東横線 祐天寺駅 徒歩13分 京都府京都市中京区西ノ京銅駝町 | 詳細を見る | |
マンション メゾンドボナール(1DK/2階) | |||||||
![]() | 11.8万円 3,000円 | 11.8万円 なし | 1DK 32.48m2 | 築29年 | JR京浜東北線 蒲田駅 徒歩10分 京急本線 京急蒲田駅 徒歩10分 京急本線 梅屋敷駅(東京) 徒歩11分 東京都大田区蒲田 | 詳細を見る | |
マンション シェモア加瀬(2K/3階) | |||||||
![]() | 10.2万円 4,000円 | 10.2万円 なし | 2K 34m2 | 築22年 | 京急本線 梅屋敷駅(東京) 徒歩5分 京急本線 大森町駅 徒歩10分 京急本線 京急蒲田駅 徒歩18分 東京都大田区大森中 | 詳細を見る | |
マンション ハイツACT(1K/3階) | |||||||
![]() | 7.5万円 3,000円 | 7.5万円 15万円 | 1K 20.56m2 | 築29年 | 京浜東北・根岸線 蒲田駅 徒歩11分 京浜急行電鉄本線 梅屋敷駅(東京) 徒歩13分 東京都大田区蒲田1丁目 | 詳細を見る | |
マンション グラン シャリオ(1K/1階) | |||||||
![]() | 7.7万円 5,600円 | 7.7万円 7.7万円 | 1K 22.46m2 | 築17年 | 東急多摩川線 武蔵新田駅 徒歩9分 東急多摩川線 矢口渡駅 徒歩11分 東京都大田区矢口2丁目 | 詳細を見る | |








