賃貸マンション
シーフォルム板橋3の賃貸物件情報(2LDK/10階)
| 家賃 | 管理費等 | 敷金 | 礼金 | 間取り | 専有面積 |
|---|---|---|---|---|---|
| 28.35万円 | 1.5万円 | なし | なし | 2LDK | 56.81m2 |
入居決定でお祝い金最大100,000円
Point
当物件は初期費用分割払い可(クレジットカード決済も可)/お客様のご希望に合わせた方法(店頭、オンライン等)で物件をご提案いたします。初期費用のお見積りや入居希望日のご相談もお気軽にお問い合わせください
提供:アエラス駒込店 (株)アエラス.FR(SUUMO経由)

詳細情報 シーフォルム板橋3
物件紹介
シーフォルム板橋3は都営三田線新板橋駅から徒歩2分にあり、駅近で通勤通学に便利なマンションです。
このお部屋は2階以上に位置しているので、通行人や周囲の住人からの視線が気になりにくく、防犯面でも安心。建物のエントランスはオートロックがついており、インターホンにはTVモニタもついているため、相手の顔を確認してから来客対応することができます。
人気の角部屋で周囲の居住者の生活音も気になりにくく、また、フローリングのお部屋なのでお掃除もラクラク。室内にはウォークインクローゼットがありますので、たくさんの荷物も効率的に収納ができます。キッチンはシステムキッチン仕様になっていますので、お料理好きの方にもぴったり。バス・トイレは別なので、のんびりお風呂タイムも楽しめるでしょう。また、雨の日でも浴室乾燥機を使えば、お洗濯も問題ありません。
通信設備面では、インターネットが無料で使えるので、月々の出費を抑えられるのも魅力です(別途工事等が必要な場合あり)。
建物にはエレベーターがついているので、重い荷物があっても安心。共用部には宅配ボックスが設定されているので、不在の時にも荷物を受け取ることができます。また、ペット飼育の相談ができますので、あなたの大切な家族の一員も快適に暮らせるか、ぜひ確認してみてください。
このお部屋は2階以上に位置しているので、通行人や周囲の住人からの視線が気になりにくく、防犯面でも安心。建物のエントランスはオートロックがついており、インターホンにはTVモニタもついているため、相手の顔を確認してから来客対応することができます。
人気の角部屋で周囲の居住者の生活音も気になりにくく、また、フローリングのお部屋なのでお掃除もラクラク。室内にはウォークインクローゼットがありますので、たくさんの荷物も効率的に収納ができます。キッチンはシステムキッチン仕様になっていますので、お料理好きの方にもぴったり。バス・トイレは別なので、のんびりお風呂タイムも楽しめるでしょう。また、雨の日でも浴室乾燥機を使えば、お洗濯も問題ありません。
通信設備面では、インターネットが無料で使えるので、月々の出費を抑えられるのも魅力です(別途工事等が必要な場合あり)。
建物にはエレベーターがついているので、重い荷物があっても安心。共用部には宅配ボックスが設定されているので、不在の時にも荷物を受け取ることができます。また、ペット飼育の相談ができますので、あなたの大切な家族の一員も快適に暮らせるか、ぜひ確認してみてください。
お金・契約の情報
※「-」と表示されているものは、実際は料金が発生するものもございます。詳細はお問い合わせください。
| 家賃 | 28.35万円 | 管理費・共益費 | 1.5万円 |
|---|---|---|---|
| 敷金 | なし | 礼金 | なし |
| 入居決定でお祝い金最大100,000円 | |||
| 保証金 | - | 償却・敷引 | - |
| 住宅保険料 | - | 更新料 | - |
| 契約形態 | - | 契約期間 | - |
| 入居・引渡期間 | 即時 | 現況 | - |
| 入居可能条件 | ペット相談 | ||
| 契約備考 | 北区立谷端小学校まで463m/板橋区立紅梅保育園まで109m 2LDK 二人入居可/子供可/ペット相談/事務所利用不可/ルームシェア不可 普通借家2年 損保【要】 バストイレ別、バルコニー、ガスコンロ対応、フローリング、TVインターホン、浴室乾燥機、オートロック、室内洗濯置、システムキッチン、追焚機能浴室、角住戸、温水洗浄便座、脱衣所、エレベーター、洗面所独立、洗面化粧台、駐輪場、宅配ボックス、光ファイバー、外壁タイル張り、即入居可、3口以上コンロ、防犯カメラ、独立型キッチン、オートバス、グリル付、全居室洋室、ウォークインクロゼット、二人入居相談、バイク置場、全居室フローリング、エアコン2台、ネット使用料不要、食器洗乾燥機、エアコン全室、乾燥機、保証金不要、外壁コンクリート、浴室未使用、トイレ未使用、3駅以上利用可、3沿線以上利用可、駅徒歩5分以内、駅徒歩10分以内、24時間ゴミ出し可、敷地内ごみ置き場、LDK12畳以上、キッチン未使用、都市ガス、玄関収納、高速ネット対応、敷金・礼金不要、初期費用カード決済可 | ||
部屋の情報
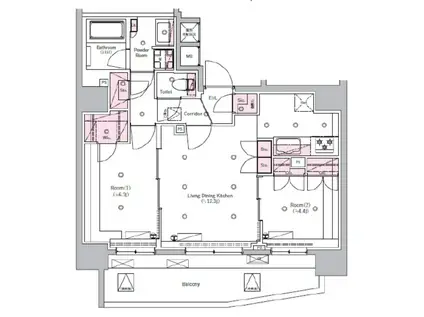
| 間取り | 2LDK | 専有面積 | 56.81m2 |
|---|---|---|---|
| 所在階 / 向き | 10階 / 北 | バルコニー面積 | - |
| 水道 / ガス | - | ||
| 設備 | バス・トイレ別、2階以上、オートロック、テレビドアホン、宅配ボックス、浴室乾燥機、ウォークインクローゼット、追い焚き、インターネット対応、システムキッチン、エアコン、エレベーター、温水洗浄便座、角部屋、バルコニー、フローリング、洗髪洗面化粧台、2口コンロ、コンロ:ガス、インターネット使用料無料、洗濯機:室内 | ||
| 当社物件ID | 159891382 | ||
建物の情報
| 建物名 | シーフォルム板橋3 | ||
|---|---|---|---|
| 所在地 | 東京都板橋区板橋 | ||
| 交通 | 都営三田線 新板橋駅 徒歩2分 JR埼京線 板橋駅 徒歩6分 東武東上線 下板橋駅 徒歩8分 | ||
| 階数 | 13階建 | 総戸数 | - |
| 築年月 | 2025年09月 / 築1年 | エレベーター | あり |
| 駐車場 | 近隣 234m33000円 | バイク置き場 | あり |
| 駐輪場 | あり | 管理人/管理会社 | - |
| 周辺環境 | その他 中華食堂日高屋板橋駅西口店(飲食店)まで182m その他 コープ 板橋駅前店(スーパー)まで185m その他 ファミリーマート 板橋駅西口店(コンビニ)まで109m その他 ウエルシア板橋新板橋店(ドラッグストア)まで79m その他 TSUTAYA JR板橋駅前店(レンタルビデオ)まで198m その他 板橋区立板橋第五中学校(中学校)まで821m | ||
| 建物種別 | マンション | 建物構造 | RC(鉄筋コンクリート) |
この部屋の取扱い不動産会社
| 会社名 | アエラス駒込店 (株)アエラス.FR(SUUMO経由) | ||
|---|---|---|---|
| 所在地 | 東京都豊島区駒込1-42-5 EK駒込ビル 1階・2階 | 交通 | - |
| 営業時間 | 10:00~19:00(時間外対応出来る場合有り) | 定休日 | 毎週水曜日 |
| 免許番号 | 国土交通大臣10206 | 取引態様 | 仲介 |
| 不動産会社管理番号 | 100492712404 | 当社管理番号 | 89 |
| 所属団体 | (公社)全日本不動産協会東京都本部会員 | ||
| 公正取引協議会 | (公社)首都圏不動産公正取引協議会加盟 | ||
| 取扱い物件情報 | 物件詳細へ | ||
※各種情報と現状に差異がある場合は、現状優先となります。問い合わせをすることで、より詳しい条件、情報を確認する事ができます。
提供:アエラス駒込店 (株)アエラス.FR(SUUMO経由)
この物件が気になったら掲載期限まであと11日
シーフォルム板橋3に条件(家賃・エリア)が近い物件一覧
| 写真 | 家賃 管理費等 | 敷金 礼金 | 間取り 専有面積 | 築年数 | 最寄り駅 所在地 | キープ | 詳細 |
|---|---|---|---|---|---|---|---|
マンション ルフォンプログレ赤羽(2LDK/5階) | |||||||
![]() | 24.5万円 2万円 | 24.5万円 なし | 2LDK 55.81m2 | 築8年 | JR京浜東北線 赤羽駅 徒歩6分 JR埼京線 赤羽駅 徒歩6分 東京メトロ南北線 赤羽岩淵駅 徒歩6分 東京都北区赤羽台 | 詳細を見る | |
マンション ORSUS赤羽イースト(3DK/9階) | |||||||
![]() | 19.8万円 1.5万円 | 19.8万円 19.8万円 | 3DK 47.24m2 | 築4年 | 東京メトロ南北線 志茂駅 徒歩3分 東京メトロ南北線 赤羽岩淵駅 徒歩12分 JR埼京線 赤羽駅 徒歩13分 東京都北区志茂 | 詳細を見る | |
マンション シティタワー池袋ウエストゲート(2LDK/17階) | |||||||
![]() | 28万円 2万円 | 28万円 28万円 | 2LDK 57.63m2 | 築17年 | 東京メトロ有楽町線 要町駅 徒歩7分 東京メトロ有楽町線 池袋駅 徒歩12分 JR山手線 池袋駅 徒歩17分 東京都豊島区高松 | 詳細を見る | |
マンション ルシール南大塚(ワンルーム/1階) | |||||||
![]() | 40.4万円 なし | 121.2万円 なし | ワンルーム 94.65m2 | 築48年 | JR山手線 大塚駅(東京) 徒歩7分 東京メトロ丸ノ内線 新大塚駅 徒歩7分 東京メトロ有楽町線 東池袋駅 徒歩14分 東京都豊島区南大塚 | 詳細を見る | |
マンション パークキューブ西ヶ原ステージ(1LDK/3階) | |||||||
![]() | 17.6万円 1万円 | 17.6万円 なし | 1LDK 46.2m2 | 築17年 | 東京都荒川線 西ケ原四丁目駅 徒歩4分 東京都北区西ケ原4丁目 | 詳細を見る | |
マンション THE ITABASHI レジデンス サウス棟(3LDK/1階) | |||||||
![]() | 24万円 1.5万円 | 48万円 24万円 | 3LDK 70.32m2 | 築14年 | 都営三田線 板橋本町駅 徒歩4分 東京都板橋区清水町 | 詳細を見る | |
アパート エクセリア早宮(2LDK/3階) | |||||||
![]() | 17.8万円 5,000円 | なし 35.6万円 | 2LDK 58.98m2 | 築4年 | 都営大江戸線 豊島園駅 徒歩14分 西武豊島線 豊島園駅 徒歩14分 東京メトロ副都心線 氷川台駅 徒歩17分 東京都練馬区早宮 | 詳細を見る | |
マンション オーパスホームズ大泉学園Ⅰ(1LDK/8階) | |||||||
![]() | 18.7万円 9,000円 | なし なし | 1LDK 40.63m2 | 築3年 | 西武池袋線 大泉学園駅 徒歩4分 西武池袋線 石神井公園駅 徒歩24分 西武池袋線 保谷駅 徒歩25分 東京都練馬区東大泉 | 詳細を見る | |









