賃貸アパート
KEIAI RESIDENCE 南柏の賃貸物件情報(1LDK/1階)
| 家賃 | 管理費等 | 敷金 | 礼金 | 間取り | 専有面積 |
|---|---|---|---|---|---|
| 7.4万円 | 3,500円 | なし | 7.4万円 | 1LDK | 28.98m2 |
入居決定でお祝い金最大100,000円
- 保証金
- -
- 償却・敷引
- -
- 築年数
- 新築
- 所在階
- 1階
- 向き
- 東
Point
柏駅のおとなり、南柏駅のK&M不動産はどこのお部屋も取り扱い可能!まとめてご紹介出来ますのでご遠慮なくご相談ください!ご質問やご内見、ご来店のご予約はLINEが便利です!『@kmfudousan』
提供:ハウス・トゥ・ハウス・ネットサービス(株)南柏店(SUUMO経由)

詳細情報 KEIAI RESIDENCE 南柏
物件紹介
KEIAI RESIDENCE 南柏はJR常磐線南柏駅から徒歩10分にあり、駅近で通勤通学に便利なアパートです。
このお部屋は2階以上に位置しているので通行人や周囲の住人からの視線が気になりにくく、建物のエントランスはオートロックがついているので防犯性が高くなっています。
人気の角部屋で周囲の居住者の生活音も気になりにくく、また、フローリングのお部屋なのでお掃除もラクラク。室内にはウォークインクローゼットがありますので、たくさんの荷物も効率的に収納ができます。キッチンはシステムキッチン仕様になっていますので、お料理好きの方にもぴったり。バス・トイレは別なので、のんびりお風呂タイムも楽しめるでしょう。また、雨の日でも浴室乾燥機を使えば、お洗濯も問題ありません。
通信設備面では、インターネットが無料で使えるので、月々の出費を抑えられるのも魅力です。また、CATVにも対応しているので、おうち時間も充実するでしょう(別途工事、CATVの契約料等が必要な場合あり)。
このお部屋は2階以上に位置しているので通行人や周囲の住人からの視線が気になりにくく、建物のエントランスはオートロックがついているので防犯性が高くなっています。
人気の角部屋で周囲の居住者の生活音も気になりにくく、また、フローリングのお部屋なのでお掃除もラクラク。室内にはウォークインクローゼットがありますので、たくさんの荷物も効率的に収納ができます。キッチンはシステムキッチン仕様になっていますので、お料理好きの方にもぴったり。バス・トイレは別なので、のんびりお風呂タイムも楽しめるでしょう。また、雨の日でも浴室乾燥機を使えば、お洗濯も問題ありません。
通信設備面では、インターネットが無料で使えるので、月々の出費を抑えられるのも魅力です。また、CATVにも対応しているので、おうち時間も充実するでしょう(別途工事、CATVの契約料等が必要な場合あり)。
お金・契約の情報
※「-」と表示されているものは、実際は料金が発生するものもございます。詳細はお問い合わせください。
| 家賃 | 7.4万円 | 管理費・共益費 | 3,500円 |
|---|---|---|---|
| 敷金 | なし | 礼金 | 7.4万円 |
| 入居決定でお祝い金最大100,000円 | |||
| 保証金 | - | 償却・敷引 | - |
| 住宅保険料 | - | 更新料 | - |
| 保証会社利用 | 必須 | 保証会社名 | - |
| 保証会社費用 | - | 保証会社備考 | 保証会社利用必 ジェイリース株式会社 初回保証料:家賃総額50% 月額保証料:900円/月 |
| 契約形態 | - | 契約期間 | - |
| 入居・引渡期間 | - | 現況 | - |
| 契約備考 | 柏駅のおとなり、南柏駅のK&M不動産はどこのお部屋も取り扱い可能!まとめてご紹介出来ますのでご遠慮なくご相談ください!ご質問やご内見、ご来店のご予約はLINEが便利です!『@kmfudousan』 合計9.9万円(内訳:カギ発行料2.75万円契約事務手数料1.65万円退去時清掃費5.5万円) 更新料 新賃料1.00ヶ月分 KEIAICLUB会費 月額2750円 1LDK 普通借家2年 損保【1.56万円2年】 バストイレ別、バルコニー、エアコン、ガスコンロ対応、クロゼット、フローリング、シャワー付洗面台、浴室乾燥機、室内洗濯置、陽当り良好、シューズボックス、システムキッチン、温水洗浄便座、洗面所独立、洗面化粧台、2口コンロ、駐輪場、CATV、外壁タイル張り、閑静な住宅地、敷金不要、対面式キッチン、独立型キッチン、全居室洋室、ウォークインクロゼット、保証人不要、全居室フローリング、ネット使用料不要、緑豊かな住宅地、眺望良好、保証金不要、築2年以内、築3年以内、駅徒歩10分以内、敷地内ごみ置き場、築5年以内、プロパンガス、高速ネット対応、年内入居可、保証会社利用可、IT重説対応物件、高齢者歓迎、通風良好 入居日:'26年5月下旬 | ||
部屋の情報
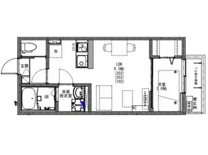
| 間取り | 1LDK | 専有面積 | 28.98m2 |
|---|---|---|---|
| 所在階 / 向き | 1階 / 東 | バルコニー面積 | 2m2 |
| 水道 / ガス | - | ||
| 設備 | バス・トイレ別、浴室乾燥機、ウォークインクローゼット、インターネット対応、システムキッチン、エアコン、温水洗浄便座、バルコニー、フローリング、洗髪洗面化粧台、2口コンロ、コンロ:ガス、CATV、インターネット使用料無料、洗濯機:室内 | ||
| 当社物件ID | 160513697 | ||
建物の情報
| 建物名 | KEIAI RESIDENCE 南柏 | ||
|---|---|---|---|
| 所在地 | 千葉県流山市松ケ丘 | ||
| 交通 | JR常磐線 南柏駅 徒歩10分 東武野田線 新柏駅 徒歩34分 東武野田線 豊四季駅 徒歩37分 | ||
| 階数 | 3階建 | 総戸数 | - |
| 築年月 | 2026年05月 / 新築 | エレベーター | - |
| 駐車場 | なし | バイク置き場 | - |
| 駐輪場 | あり | 管理人/管理会社 | - |
| 周辺環境 | その他 ロピアアクロスプラザ流山店(スーパー)まで627m その他 ビッグ・エー柏南柏店(スーパー)まで757m その他 アクロスプラザ 流山(ショッピングセンター)まで660m その他 キュア・ラ(ショッピングセンター)まで1025m その他 ファミリーマート 柏新富町店(コンビニ)まで877m その他 ローソン 南柏駅西口店(コンビニ)まで835m | ||
| 建物種別 | アパート | 建物構造 | 木造 |
この部屋の取扱い不動産会社
| 会社名 | 合同会社K&M不動産(SUUMO経由) | ||
|---|---|---|---|
| 所在地 | 千葉県柏市南柏1-2-6 南柏ビル103 | 交通 | - |
| 営業時間 | 9:00~20:00(時間外対応可能) | 定休日 | 水曜日 |
| 免許番号 | 千葉県知事17711 | 取引態様 | 仲介 |
| 不動産会社管理番号 | 100492341964 | 当社管理番号 | 89 |
| 所属団体 | (公社)全日本不動産協会千葉県本部会員 | ||
| 公正取引協議会 | (公社)首都圏不動産公正取引協議会加盟 | ||
| 取扱い物件情報 | 物件詳細へ | ||
※各種情報と現状に差異がある場合は、現状優先となります。問い合わせをすることで、より詳しい条件、情報を確認する事ができます。
提供:合同会社K&M不動産(SUUMO経由)
この物件が気になったら掲載期限まであと11日
KEIAI RESIDENCE 南柏に条件(家賃・エリア)が近い物件一覧
| 写真 | 家賃 管理費等 | 敷金 礼金 | 間取り 専有面積 | 築年数 | 最寄り駅 所在地 | キープ | 詳細 |
|---|---|---|---|---|---|---|---|
マンション パインポルテ北松戸(1K/2階) | |||||||
![]() | 6.6万円 3,000円 | 6.6万円 なし | 1K 30.54m2 | 築24年 | JR常磐線 北松戸駅 徒歩2分 流鉄流山線 馬橋駅 徒歩16分 京成松戸線 上本郷駅 徒歩20分 千葉県松戸市上本郷 | 詳細を見る | |
アパート 柏市篠籠田 アパート(2LDK/2階) | |||||||
![]() | 10.5万円 4,000円 | 10.5万円 なし | 2LDK 53.9m2 | 新築 | 東武野田線 豊四季駅 徒歩15分 千葉県柏市篠籠田 | 詳細を見る | |
アパート リーブルファイン南流山A棟(1K/1階) | |||||||
![]() | 6.7万円 3,000円 | 6.7万円 なし | 1K 26.08m2 | 築4年 | つくばエクスプレス 南流山駅 徒歩10分 JR武蔵野線 南流山駅 徒歩10分 千葉県流山市 | 詳細を見る | |
アパート ピュア・キャッスルⅣ(2LDK/2階) | |||||||
![]() | 7.6万円 2,900円 | なし 11.4万円 | 2LDK 58.86m2 | 築19年 | 千代田・常磐緩行線 馬橋駅 徒歩20分 千葉県松戸市八ケ崎7丁目 | 詳細を見る | |
マンション マルジュ ベルテ(3LDK/3階) | |||||||
![]() | 9.5万円 8,000円 | なし 9.5万円 | 3LDK 67.99m2 | 築24年 | 北総線 矢切駅 徒歩10分 北総線 北国分駅 徒歩24分 千葉県松戸市中矢切 | 詳細を見る | |
マンション レフィアント・エヌ(1LDK/1階) | |||||||
![]() | 11.7万円 9,000円 | なし 29.25万円 | 1LDK 44.2m2 | 新築 | JR常磐線 柏駅 徒歩7分 JR常磐線 南柏駅 徒歩27分 千葉県柏市旭町 | 詳細を見る | |
アパート クロノス流山(1K/2階) | |||||||
![]() | 4.5万円 3,000円 | なし なし | 1K 20m2 | 築39年 | 流鉄流山線 流山駅 徒歩1分 千葉県流山市 | 詳細を見る | |
アパート GLANZ -グランツ-(2LDK/1階) | |||||||
![]() | 9.2899万円 4,000円 | 9.2899万円 なし | 2LDK 48.64m2 | 築1年 | JR常磐線 柏駅 徒歩30分 千葉県柏市高田 | 詳細を見る | |









