賃貸アパート
梅の木町DHA棟の賃貸物件情報(4LDK/1階)
| 家賃 | 管理費等 | 敷金 | 礼金 | 間取り | 専有面積 |
|---|---|---|---|---|---|
| 9万円 | 3,300円 | 9万円 | なし | 4LDK | 84.27m2 |
入居決定でお祝い金最大100,000円
Point
インターネット無料!
提供:ハウスメイトネットワーク大曲店(株)伊藤住宅不動産(SUUMO経由)

詳細情報 梅の木町DHA棟
物件紹介
梅の木町DHA棟はJR奥羽本線横手駅から徒歩10分にあり、駅近で通勤通学に便利なアパートです。
このお部屋のインターホンにはTVモニタがついているため、相手の顔を確認してから来客対応することができます。
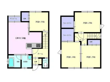
人気の南向き・フローリングのお部屋。角部屋でもあるため、周囲の居住者の生活音も気になりにくい場所です。室内にはウォークインクローゼットがありますので、たくさんの荷物も効率的に収納ができます。バス・トイレ別の仕様で、のんびりお風呂タイムも楽しめます。
通信設備面では、インターネットが無料で使えるので、月々の出費を抑えられるのも魅力です。また、BSアンテナもありますので、おうち時間も充実するでしょう(別途工事、BSの契約料等が必要な場合あり)。
このお部屋のインターホンにはTVモニタがついているため、相手の顔を確認してから来客対応することができます。
人気の南向き・フローリングのお部屋。角部屋でもあるため、周囲の居住者の生活音も気になりにくい場所です。室内にはウォークインクローゼットがありますので、たくさんの荷物も効率的に収納ができます。バス・トイレ別の仕様で、のんびりお風呂タイムも楽しめます。
通信設備面では、インターネットが無料で使えるので、月々の出費を抑えられるのも魅力です。また、BSアンテナもありますので、おうち時間も充実するでしょう(別途工事、BSの契約料等が必要な場合あり)。
お金・契約の情報
※「-」と表示されているものは、実際は料金が発生するものもございます。詳細はお問い合わせください。
| 家賃 | 9万円 | 管理費・共益費 | 3,300円 |
|---|---|---|---|
| 敷金 | 9万円 | 礼金 | なし |
| 入居決定でお祝い金最大100,000円 | |||
| 保証金 | - | 償却・敷引 | - |
| 住宅保険料 | - | 更新料 | - |
| 契約形態 | - | 契約期間 | - |
| 入居・引渡期間 | - | 現況 | - |
| 契約備考 | 保証会社利用必須、駐車場1台付無料 2台目3,300円/月 消雪設備有、インターネット無料物件 クリーニング代55000円 4LDK 普通借家2年 損保【1.5万円2年】 バストイレ別、フローリング、シャワー付洗面台、TVインターホン、室内洗濯置、南向き、追焚機能浴室、角住戸、温水洗浄便座、洗面所独立、2口コンロ、光ファイバー、礼金不要、対面式キッチン、IHクッキングヒーター、照明付、駐車場1台無料、全居室洋室、ウォークインクロゼット、保証人不要、敷金1ヶ月、全居室フローリング、3面採光、メゾネット、ネット使用料不要、浴室に窓、築2年以内、複層ガラス、エアコン3台、サンルーム、浴室1坪以上、駅徒歩10分以内、敷地内ごみ置き場、専有面積25坪以上、平面駐車場、当社管理物件、プロパンガス、洗面所に窓、玄関収納、BS、保証会社利用可、初期費用カード決済可、全室照明付 入居日:'26年5月中旬 | ||
部屋の情報
| 間取り | 4LDK | 専有面積 | 84.27m2 |
|---|---|---|---|
| 所在階 / 向き | 1階 / 南 | バルコニー面積 | - |
| 水道 / ガス | - | ||
| 設備 | バス・トイレ別、テレビドアホン、ウォークインクローゼット、追い焚き、インターネット対応、エアコン、温水洗浄便座、南向き、角部屋、フローリング、洗髪洗面化粧台、2口コンロ、コンロ:IH、BSアンテナ、インターネット使用料無料、洗濯機:室内 | ||
| 当社物件ID | 160473592 | ||
建物の情報
| 建物名 | 梅の木町DHA棟 | ||
|---|---|---|---|
| 所在地 | 秋田県横手市梅の木町 | ||
| 交通 | JR奥羽本線 横手駅 徒歩10分 | ||
| 階数 | 2階建 | 総戸数 | 2戸 |
| 築年月 | 2026年04月 / 新築 | エレベーター | - |
| 駐車場 | 空有 付無料 | バイク置き場 | - |
| 駐輪場 | - | 管理人/管理会社 | - |
| 周辺環境 | その他 横手南小学校(小学校)まで1500m その他 横手南中学校(中学校)まで2200m その他 平鹿総合病院(病院)まで800m その他 ビフレ横手店(スーパー)まで500m | ||
| 建物種別 | アパート | 建物構造 | 木造 |
この部屋の取扱い不動産会社
| 会社名 | ハウスメイトネットワーク大曲店(株)伊藤住宅不動産(SUUMO経由) | ||
|---|---|---|---|
| 所在地 | 秋田県大仙市戸蒔字福田 260-1 | 交通 | - |
| 営業時間 | 9:00~18:00 | 定休日 | 水曜日 |
| 免許番号 | 秋田県知事2171 | 取引態様 | 仲介 |
| 不動産会社管理番号 | 100490542324 | 当社管理番号 | 89 |
| 所属団体 | (公社)秋田県宅地建物取引業協会会員 | ||
| 公正取引協議会 | 東北地区不動産公正取引協議会加盟 | ||
| 取扱い物件情報 | 物件詳細へ | ||
※各種情報と現状に差異がある場合は、現状優先となります。問い合わせをすることで、より詳しい条件、情報を確認する事ができます。
提供:ハウスメイトネットワーク大曲店(株)伊藤住宅不動産(SUUMO経由)
この物件が気になったら掲載期限まであと11日
梅の木町DHA棟に条件(家賃・エリア)が近い物件一覧
| 写真 | 家賃 管理費等 | 敷金 礼金 | 間取り 専有面積 | 築年数 | 最寄り駅 所在地 | キープ | 詳細 |
|---|---|---|---|---|---|---|---|
アパート フレッサI(2DK/1階) | |||||||
![]() | 5.75万円 3,500円 | なし 5.75万円 | 2DK 43.86m2 | 築18年 | 秋田県由利本荘市石脇田尻 | 詳細を見る | |
アパート オオミハウス(1LDK/2階) | |||||||
![]() | 5.7万円 3,300円 | 5.7万円 なし | 1LDK 39.94m2 | 築3年 | JR奥羽本線 大曲駅(秋田) 徒歩18分 秋田県大仙市花館東石田 | 詳細を見る | |
アパート レオパレス未来(1K/2階) | |||||||
![]() | 5.5万円 4,000円 | なし 11万円 | 1K 23.18m2 | 築21年 | JR奥羽本線 横手駅 徒歩7分 秋田県横手市条里 | 詳細を見る | |
マンション アーバンミサワ(2DK/3階) | |||||||
![]() | 5.5万円 3,000円 | なし なし | 2DK 54.44m2 | 築24年 | 奥羽本線 十文字駅 徒歩15分 秋田県横手市十文字町佐賀会字上沖田 | 詳細を見る | |
アパート レオパレスマリーナ(1K/1階) | |||||||
![]() | 5.4万円 4,000円 | なし 10.8万円 | 1K 23.72m2 | 築23年 | 秋田県由利本荘市石脇 | 詳細を見る | |
マンション セービング由利本荘(1K/3階) | |||||||
![]() | 5.4万円 3,000円 | なし なし | 1K 26.24m2 | 築1年 | 秋田県由利本荘市石脇字田尻 | 詳細を見る | |
アパート 梅の木町DHB棟(2LDK/2階) | |||||||
![]() | 7.1万円 3,300円 | 7.1万円 なし | 2LDK 62.72m2 | 新築 | JR奥羽本線 横手駅 徒歩10分 秋田県横手市梅の木町 | 詳細を見る | |
アパート ノックス川口(1LDK/1階) | |||||||
![]() | 6.8万円 2,000円 | 6.8万円 6.8万円 | 1LDK 36.6m2 | 新築 | 羽越本線 羽後本荘駅 徒歩30分 秋田県由利本荘市川口字家後 | 詳細を見る | |









