賃貸アパート
BELL BRUNの賃貸物件情報(1SLDK/1階)
| 家賃 | 管理費等 | 敷金 | 礼金 | 間取り | 専有面積 |
|---|---|---|---|---|---|
| 15.2万円 | 3,000円 | 15.2万円 | 15.2万円 | 1SLDK | 45.54m2 |
入居決定でお祝い金最大100,000円
- 保証金
- -
- 償却・敷引
- -
- 築年数
- 築1年
- 所在階
- 1階
- 向き
- 南
Point
まずはお問い合わせ!
不動産会社は街のプロ、あなたに合った物件がきっと見つかります。
提供:ハウス・トゥ・ハウス・ネットサービス(株)川口店(SUUMO経由)

詳細情報 BELL BRUN
物件紹介
BELL BRUNはJR常磐線南千住駅から徒歩4分にあり、駅近で通勤通学に便利なアパートです。
建物のエントランスはオートロックがついており、インターホンにはTVモニタもついているため、相手の顔を確認してから来客対応することができます。
人気の南向きのお部屋。また、フローリングなのでお掃除もラクラク。キッチンはシステムキッチン仕様になっていますので、お料理好きの方にもぴったり。バス・トイレは別なので、のんびりお風呂タイムも楽しめるでしょう。また、雨の日でも浴室乾燥機を使えば、お洗濯も問題ありません。
通信設備面では、インターネットが無料で使えるので、月々の出費を抑えられるのも魅力です。また、BSアンテナ・CSアンテナがありCATVにも対応しているので、おうち時間も充実するでしょう(別途工事、BS・CS・CATVの契約料等が必要な場合あり)。
共用部には宅配ボックスが設定されているので、不在の時にも荷物を受け取ることができます。
建物のエントランスはオートロックがついており、インターホンにはTVモニタもついているため、相手の顔を確認してから来客対応することができます。
人気の南向きのお部屋。また、フローリングなのでお掃除もラクラク。キッチンはシステムキッチン仕様になっていますので、お料理好きの方にもぴったり。バス・トイレは別なので、のんびりお風呂タイムも楽しめるでしょう。また、雨の日でも浴室乾燥機を使えば、お洗濯も問題ありません。
通信設備面では、インターネットが無料で使えるので、月々の出費を抑えられるのも魅力です。また、BSアンテナ・CSアンテナがありCATVにも対応しているので、おうち時間も充実するでしょう(別途工事、BS・CS・CATVの契約料等が必要な場合あり)。
共用部には宅配ボックスが設定されているので、不在の時にも荷物を受け取ることができます。
お金・契約の情報
※「-」と表示されているものは、実際は料金が発生するものもございます。詳細はお問い合わせください。
| 家賃 | 15.2万円 | 管理費・共益費 | 3,000円 |
|---|---|---|---|
| 敷金 | 15.2万円 | 礼金 | 15.2万円 |
| 入居決定でお祝い金最大100,000円 | |||
| 保証金 | - | 償却・敷引 | - |
| 住宅保険料 | - | 更新料 | - |
| 保証会社利用 | 必須 | 保証会社名 | - |
| 保証会社費用 | - | 保証会社備考 | 保証会社利用必 初回総賃料の50% 年1万円 |
| 契約形態 | - | 契約期間 | - |
| 入居・引渡期間 | - | 現況 | - |
| 契約備考 | 火災保険23000円/2年。 更新料新賃料(ヶ月):1.00ヶ月 1SLDK 二人入居可 普通借家2年 損保【要】 バストイレ別、エアコン、ガスコンロ対応、クロゼット、フローリング、シャワー付洗面台、TVインターホン、浴室乾燥機、オートロック、室内洗濯置、シューズボックス、システムキッチン、南向き、追焚機能浴室、温水洗浄便座、脱衣所、洗面所独立、2口コンロ、駐輪場、光ファイバー、対面式キッチン、防犯カメラ、オートバス、グリル付、保証人不要、敷金1ヶ月、二人入居相談、全居室フローリング、ガスレンジ付、エアコン2台、ネット使用料不要、エアコン全室、床下収納、保証金不要、都市ガス、高速ネット対応、礼金1ヶ月、IT重説対応物件、初期費用カード決済可 入居日:'25年12月上旬 | ||
部屋の情報
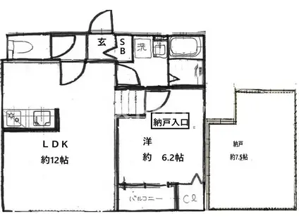
| 間取り | 1SLDK | 専有面積 | 45.54m2 |
|---|---|---|---|
| 所在階 / 向き | 1階 / 南 | バルコニー面積 | - |
| 水道 / ガス | - | ||
| 設備 | バス・トイレ別、オートロック、テレビドアホン、浴室乾燥機、追い焚き、インターネット対応、システムキッチン、エアコン、温水洗浄便座、南向き、フローリング、床下収納、洗髪洗面化粧台、2口コンロ、コンロ:ガス、インターネット使用料無料、洗濯機:室内 | ||
| 当社物件ID | 159770514 | ||
建物の情報
| 建物名 | BELL BRUN | ||
|---|---|---|---|
| 所在地 | 東京都荒川区南千住 | ||
| 交通 | 東京メトロ日比谷線 南千住駅 徒歩4分 JR常磐線 南千住駅 徒歩4分 つくばエクスプレス 南千住駅 徒歩4分 | ||
| 階数 | 2階建 | 総戸数 | 8戸 |
| 築年月 | 2025年11月 / 築1年 | エレベーター | - |
| 駐車場 | なし | バイク置き場 | - |
| 駐輪場 | あり | 管理人/管理会社 | - |
| 周辺環境 | その他 荒川区立第三瑞光小学校(スーパー)まで200m その他 ローソンストア 荒川南千住5丁目店(コンビニ)まで140m その他 わかば保育園(幼稚園・保育園)まで180m その他 Bivi南千住(ショッピングセンター)まで430m その他 大橋交番(警察署・交番)まで660m その他 南千住病院(病院)まで480m | ||
| 建物種別 | アパート | 建物構造 | 木造 |
この部屋の取扱い不動産会社
| 会社名 | (株)ハウスパートナー町屋店(SUUMO経由) | ||
|---|---|---|---|
| 所在地 | 東京都荒川区町屋1-2-7 ヴェルデセゾン1B | 交通 | - |
| 営業時間 | AM10:00~PM6:00 | 定休日 | 水曜日 |
| 免許番号 | 国土交通大臣9556 | 取引態様 | 仲介 |
| 不動産会社管理番号 | 100475075025 | 当社管理番号 | 89 |
| 所属団体 | (公社)全日本不動産協会東京都本部会員 | ||
| 公正取引協議会 | (公社)首都圏不動産公正取引協議会加盟 | ||
| 取扱い物件情報 | 物件詳細へ | ||
※各種情報と現状に差異がある場合は、現状優先となります。問い合わせをすることで、より詳しい条件、情報を確認する事ができます。
提供:(株)ハウスパートナー町屋店(SUUMO経由)
この物件が気になったら掲載期限まであと10日
BELL BRUNに条件(家賃・エリア)が近い物件一覧
| 写真 | 家賃 管理費等 | 敷金 礼金 | 間取り 専有面積 | 築年数 | 最寄り駅 所在地 | キープ | 詳細 |
|---|---|---|---|---|---|---|---|
マンション トライム吾妻橋(1LDK/2階) | |||||||
![]() | 13.5万円 5,000円 | 13.5万円 13.5万円 | 1LDK 28.2m2 | 築5年 | 東京都浅草線 本所吾妻橋駅 徒歩2分 東京都墨田区吾妻橋2丁目 | 詳細を見る | |
マンション TRADIS浅草橋(1LDK/2階) | |||||||
![]() | 17.8万円 1万円 | 17.8万円 17.8万円 | 1LDK 41.21m2 | 築15年 | 東京都浅草線 浅草橋駅 徒歩4分 総武・中央緩行線 浅草橋駅 徒歩6分 山手線 秋葉原駅 徒歩16分 東京都台東区浅草橋3丁目 | 詳細を見る | |
マンション メインテラス上野(1K/8階) | |||||||
![]() | 10.5万円 1万円 | 10.5万円 10.5万円 | 1K 25m2 | 築18年 | 東京地下鉄日比谷線 入谷駅(東京) 徒歩4分 山手線 上野駅 徒歩7分 山手線 鶯谷駅 徒歩7分 東京都台東区下谷1丁目 | 詳細を見る | |
マンション レジディア町屋(1LDK/6階) | |||||||
![]() | 14.9万円 1.5万円 | 14.9万円 なし | 1LDK 44.53m2 | 築17年 | 東京都荒川線 町屋駅前駅 徒歩11分 東京地下鉄千代田線 町屋駅 徒歩12分 京成電鉄本線 町屋駅 徒歩12分 東京都荒川区町屋6丁目 | 詳細を見る | |
マンション エスコート音羽(1K/5階) | |||||||
![]() | 9.3万円 1万円 | 9.3万円 9.3万円 | 1K 20.2m2 | 築25年 | 東京地下鉄有楽町線 護国寺駅 徒歩2分 東京都文京区音羽2丁目 | 詳細を見る | |
マンション ジーグランデ森下(1LDK/6階) | |||||||
![]() | 20.4万円 1万円 | なし なし | 1LDK 44.03m2 | 築1年 | 東京都新宿線 森下駅(東京) 徒歩5分 東京都大江戸線 両国駅 徒歩9分 総武・中央緩行線 両国駅 徒歩9分 東京都墨田区千歳3丁目 | 詳細を見る | |
マンション ベルシードアルファ押上イースト(1LDK/4階) | |||||||
![]() | 12.3万円 1.5万円 | なし なし | 1LDK 35.15m2 | 築1年 | 東武鉄道亀戸線 小村井駅 徒歩2分 東武鉄道亀戸線 東あずま駅 徒歩6分 東武鉄道亀戸線 亀戸水神駅 徒歩18分 東京都墨田区立花4丁目 | 詳細を見る | |
マンション 錦糸町コクーン(1K/2階) | |||||||
![]() | 10.5万円 5,800円 | なし 21万円 | 1K 27.42m2 | 築6年 | 東京都新宿線 菊川駅(東京) 徒歩8分 総武・中央緩行線 錦糸町駅 徒歩13分 東京都大江戸線 両国駅 徒歩15分 東京都墨田区緑4丁目 | 詳細を見る | |








