賃貸アパート
KOTTA-Mの賃貸物件情報(1LDK/2階)
| 家賃 | 管理費等 | 敷金 | 礼金 | 間取り | 専有面積 |
|---|---|---|---|---|---|
| 7.9万円 | 6,000円 | なし | なし | 1LDK | 40m2 |
入居決定でお祝い金最大100,000円
- 保証金
- -
- 償却・敷引
- -
- 築年数
- 築2年
- 所在階
- 2階
- 向き
- 東
Point
弊社は関西圏全ての物件がご紹介可能!他社取り扱い物件でもお安くご提案可能です。また、オンライン内見から鍵渡しまで進められます☆その他、現地待ち合わせやご自宅までの送迎もお気軽にお申し付け下さい。
提供:(株)令和都市開発(SUUMO経由)

詳細情報 KOTTA-M
物件紹介
KOTTA-MはJRおおさか東線城北公園通駅から徒歩4分にあり、駅近で通勤通学に便利なアパートです。
このお部屋は2階以上に位置しているので、通行人や周囲の住人からの視線が気になりにくく、防犯面でも安心。建物のエントランスはオートロックがついており、インターホンにはTVモニタもついているため、相手の顔を確認してから来客対応することができます。
おしゃれなデザイナーズ物件!フローリングのお部屋なのでお掃除もラクラク。キッチンはシステムキッチン仕様になっていますので、お料理好きの方にもぴったり。バス・トイレは別なので、のんびりお風呂タイムも楽しめるでしょう。また、雨の日でも浴室乾燥機を使えば、お洗濯も問題ありません。
通信設備面では、インターネットが無料で使えるので、月々の出費を抑えられるのも魅力です(別途工事等が必要な場合あり)。
共用部には宅配ボックスが設定されているので、不在の時にも荷物を受け取ることができます。
このお部屋は2階以上に位置しているので、通行人や周囲の住人からの視線が気になりにくく、防犯面でも安心。建物のエントランスはオートロックがついており、インターホンにはTVモニタもついているため、相手の顔を確認してから来客対応することができます。
おしゃれなデザイナーズ物件!フローリングのお部屋なのでお掃除もラクラク。キッチンはシステムキッチン仕様になっていますので、お料理好きの方にもぴったり。バス・トイレは別なので、のんびりお風呂タイムも楽しめるでしょう。また、雨の日でも浴室乾燥機を使えば、お洗濯も問題ありません。
通信設備面では、インターネットが無料で使えるので、月々の出費を抑えられるのも魅力です(別途工事等が必要な場合あり)。
共用部には宅配ボックスが設定されているので、不在の時にも荷物を受け取ることができます。
お金・契約の情報
※「-」と表示されているものは、実際は料金が発生するものもございます。詳細はお問い合わせください。
| 家賃 | 7.9万円 | 管理費・共益費 | 6,000円 |
|---|---|---|---|
| 敷金 | なし | 礼金 | なし |
| 入居決定でお祝い金最大100,000円 | |||
| 保証金 | - | 償却・敷引 | - |
| 住宅保険料 | - | 更新料 | - |
| 保証会社利用 | 必須 | 保証会社名 | - |
| 保証会社費用 | - | 保証会社備考 | 保証会社利用必 都度確認 都度確認 |
| 契約形態 | - | 契約期間 | - |
| 入居・引渡期間 | 即時 | 現況 | - |
| 契約備考 | 巡回管理/一度、お電話や公式LINEでご連絡ください☆経験豊かなスタッフがお客様のご要望にお応えできる自信ございます!物件件数も大阪不可全域可能で色んなお手伝いさせて頂きます!!! 1LDK 二人入居可/子供可 普通借家2年 損保【要】 バストイレ別、バルコニー、エアコン、クロゼット、フローリング、シャワー付洗面台、TVインターホン、浴室乾燥機、オートロック、室内洗濯置、シューズボックス、システムキッチン、追焚機能浴室、温水洗浄便座、脱衣所、洗面所独立、洗面化粧台、2口コンロ、駐輪場、宅配ボックス、即入居可、礼金不要、閑静な住宅地、敷金不要、対面式キッチン、IHクッキングヒーター、照明付、全居室洋室、保証人不要、二人入居相談、バイク置場、全居室フローリング、デザイナーズ、2沿線利用可、クッションフロア、ディンプルキー、駅まで平坦、ネット使用料不要、眺望良好、保証金不要、築2年以内、24時間換気システム、築3年以内、家電付、前面棟無、2駅利用可、3駅以上利用可、3沿線以上利用可、駅徒歩5分以内、駅徒歩10分以内、24時間ゴミ出し可、敷地内ごみ置き場、築5年以内、都市ガス、洗面所にドア、縦型照明付洗面化粧台、玄関収納、ダウンライト、敷金・礼金不要、IT重説対応物件 | ||
部屋の情報
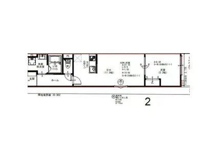
| 間取り | 1LDK | 専有面積 | 40m2 |
|---|---|---|---|
| 所在階 / 向き | 2階 / 東 | バルコニー面積 | - |
| 水道 / ガス | - | ||
| 設備 | バス・トイレ別、2階以上、オートロック、テレビドアホン、宅配ボックス、浴室乾燥機、追い焚き、インターネット対応、システムキッチン、エアコン、温水洗浄便座、バルコニー、フローリング、洗髪洗面化粧台、2口コンロ、コンロ:IH、デザイナーズ、インターネット使用料無料、洗濯機:室内 | ||
| 当社物件ID | 157460943 | ||
建物の情報
| 建物名 | KOTTA-M | ||
|---|---|---|---|
| 所在地 | 大阪府大阪市都島区大東町 | ||
| 交通 | JRおおさか東線 城北公園通駅 徒歩4分 阪急千里線 柴島駅 徒歩28分 阪急京都線 崇禅寺駅 徒歩28分 | ||
| 階数 | 3階建 | 総戸数 | - |
| 築年月 | 2024年10月 / 築2年 | エレベーター | - |
| 駐車場 | なし | バイク置き場 | あり |
| 駐輪場 | あり | 管理人/管理会社 | - |
| 周辺環境 | その他 ほっかほっか亭大東町店(その他)まで249m その他 スシロー 赤川店(飲食店)まで402m その他 和食さと 赤川店(飲食店)まで535m その他 スーパーマーケット コノミヤ 赤川店(スーパー)まで497m その他 ローソン 城北公園通駅前店(コンビニ)まで495m その他 万代都島友渕店(スーパー)まで985m | ||
| 建物種別 | アパート | 建物構造 | 木造 |
この部屋の取扱い不動産会社
| 会社名 | (株)令和都市開発(SUUMO経由) | ||
|---|---|---|---|
| 所在地 | 大阪府大阪市東淀川区小松1-9-21 | 交通 | - |
| 営業時間 | 10:00~19:00 | 定休日 | 水曜日 |
| 免許番号 | 大阪府知事61096 | 取引態様 | 仲介 |
| 不動産会社管理番号 | 100474681494 | 当社管理番号 | 89 |
| 所属団体 | (公社)全日本不動産協会大阪府本部会員 | ||
| 公正取引協議会 | (公社)近畿地区不動産公正取引協議会加盟 | ||
| 取扱い物件情報 | 物件詳細へ | ||
※各種情報と現状に差異がある場合は、現状優先となります。問い合わせをすることで、より詳しい条件、情報を確認する事ができます。
提供:(株)令和都市開発(SUUMO経由)
この物件が気になったら掲載期限まであと10日
KOTTA-Mに条件(家賃・エリア)が近い物件一覧
| 写真 | 家賃 管理費等 | 敷金 礼金 | 間取り 専有面積 | 築年数 | 最寄り駅 所在地 | キープ | 詳細 |
|---|---|---|---|---|---|---|---|
マンション 南海電鉄南海本線 羽衣駅 徒歩10分 築31年(3LDK/6階) | |||||||
![]() | 8.4万円 8,000円 | 15万円 なし | 3LDK 65.68m2 | 築31年 | 南海電鉄南海本線 羽衣駅 徒歩10分 南海電鉄南海本線 浜寺公園駅 徒歩13分 阪和線 鳳駅 徒歩16分 大阪府堺市西区浜寺南町1丁 | 詳細を見る | |
マンション エクセレント我堂(2LDK/1階) | |||||||
![]() | 5.5万円 6,000円 | なし 10万円 | 2LDK 48.5m2 | 築37年 | 大阪市御堂筋線 北花田駅 徒歩15分 近鉄南大阪線 河内天美駅 徒歩15分 近鉄南大阪線 布忍駅 徒歩20分 大阪府松原市天美我堂3丁目 | 詳細を見る | |
マンション シャーメゾン ワイズベル(2LDK/1階) | |||||||
![]() | 12.5万円 1.1万円 | 2万円 25万円 | 2LDK 61.6m2 | 新築 | 南海電鉄南海本線 諏訪ノ森駅 徒歩2分 阪堺電気軌道阪堺線 船尾駅(大阪) 徒歩5分 南海電鉄南海本線 石津川駅 徒歩15分 大阪府堺市西区浜寺諏訪森町西2丁 | 詳細を見る | |
マンション サンシャトー山本(3DK/3階) | |||||||
| 6.2万円 5,000円 | 5万円 15万円 | 3DK 55m2 | 築45年 | 大阪モノレール本線 山田駅(大阪) 徒歩12分 阪急電鉄千里線 南千里駅 徒歩21分 大阪モノレール彩都 万博記念公園駅(大阪) 徒歩23分 大阪府吹田市山田西3丁目51-6 | 詳細を見る | ||
アパート REVITA鳳北町3丁(1LDK/1階) | |||||||
![]() | 6.2万円 5,000円 | なし 6.2万円 | 1LDK 30.5m2 | 築1年 | 阪和線 津久野駅 徒歩12分 阪和線 鳳駅 徒歩13分 南海電鉄南海本線 浜寺公園駅 徒歩25分 大阪府堺市西区鳳北町3丁 | 詳細を見る | |
マンション WINROAD ESAKA(1K/5階) | |||||||
| 6.2万円 8,000円 | 5万円 12.4万円 | 1K 27.15m2 | 築26年 | 北大阪急行南北線 江坂駅 徒歩6分 阪急電鉄千里線 豊津駅(大阪) 徒歩15分 おおさか東線 南吹田駅 徒歩25分 大阪府吹田市垂水町3丁目36-22 | 詳細を見る | ||
アパート スカイフィールド(2LDK/2階) | |||||||
![]() | 7万円 4,000円 | なし 7万円 | 2LDK 50.79m2 | 築19年 | 近鉄南大阪線 恵我ノ荘駅 徒歩15分 近鉄南大阪線 高鷲駅 徒歩24分 近鉄南大阪線 河内松原駅 徒歩25分 大阪府松原市一津屋1丁目 | 詳細を見る | |
アパート アパルトマン北千里(3LDK/7階) | |||||||
| 9.5万円 1万円 | なし 9.5万円 | 3LDK 67.32m2 | 築48年 | 阪急電鉄千里線 北千里駅 徒歩17分 大阪モノレール彩都 豊川駅(大阪) 徒歩25分 大阪モノレール彩都 阪大病院前駅 徒歩40分 大阪府吹田市上山田1-12 | 詳細を見る | ||






