賃貸アパート
KEIAI RESIDENCE せんげん台Ⅳの賃貸物件情報(1LDK/3階)
| 家賃 | 管理費等 | 敷金 | 礼金 | 間取り | 専有面積 |
|---|---|---|---|---|---|
| 7.2万円 | 3,500円 | なし | 7.2万円 | 1LDK | 31.72m2 |
入居決定でお祝い金最大100,000円
Point
まずはお問い合わせ!
不動産会社は街のプロ、あなたに合った物件がきっと見つかります。
提供:ハウスコム埼玉株式会社 越谷店

詳細情報 KEIAI RESIDENCE せんげん台Ⅳ
物件紹介
KEIAI RESIDENCE せんげん台Ⅳは東武伊勢崎・大師線せんげん台駅から徒歩6分にあり、駅近で通勤通学に便利なアパートです。
このお部屋は2階以上に位置しているので通行人や周囲の住人からの視線が気になりにくく、建物のエントランスはオートロックがついているので防犯性が高くなっています。
人気の角部屋で周囲の居住者の生活音も気になりにくく、また、フローリングのお部屋なのでお掃除もラクラク。キッチンはシステムキッチン仕様になっていますので、お料理好きの方にもぴったり。バス・トイレは別なので、のんびりお風呂タイムも楽しめるでしょう。また、雨の日でも浴室乾燥機を使えば、お洗濯も問題ありません。
通信設備面では、インターネットが無料で使えるので、月々の出費を抑えられるのも魅力です。また、CATVにも対応しているので、おうち時間も充実するでしょう(別途工事、CATVの契約料等が必要な場合あり)。
共用部には宅配ボックスが設定されているので、不在の時にも荷物を受け取ることができます。
このお部屋は2階以上に位置しているので通行人や周囲の住人からの視線が気になりにくく、建物のエントランスはオートロックがついているので防犯性が高くなっています。
人気の角部屋で周囲の居住者の生活音も気になりにくく、また、フローリングのお部屋なのでお掃除もラクラク。キッチンはシステムキッチン仕様になっていますので、お料理好きの方にもぴったり。バス・トイレは別なので、のんびりお風呂タイムも楽しめるでしょう。また、雨の日でも浴室乾燥機を使えば、お洗濯も問題ありません。
通信設備面では、インターネットが無料で使えるので、月々の出費を抑えられるのも魅力です。また、CATVにも対応しているので、おうち時間も充実するでしょう(別途工事、CATVの契約料等が必要な場合あり)。
共用部には宅配ボックスが設定されているので、不在の時にも荷物を受け取ることができます。
お金・契約の情報
※「-」と表示されているものは、実際は料金が発生するものもございます。詳細はお問い合わせください。
| 家賃 | 7.2万円 | 管理費・共益費 | 3,500円 |
|---|---|---|---|
| 敷金 | なし | 礼金 | 7.2万円 |
| 入居決定でお祝い金最大100,000円 | |||
| 保証金 | - | 償却・敷引 | - |
| 住宅保険料 | 1円 | 更新料 | - |
| 保証会社利用 | 必須 | 保証会社名 | - |
| 保証会社費用 | - | 保証会社備考 | 初回保証料:家賃総額50% 月額保証料:900円/月 |
| 契約形態 | - | 契約期間 | 2年 |
| 入居・引渡期間 | 2026年03月上旬 | 現況 | 未完成 |
| 入居可能条件 | 2人入居可 | ||
| 契約備考 | その他設備/条件:室内洗濯機置き場、独立洗面台、シューズボックス | ||
部屋の情報
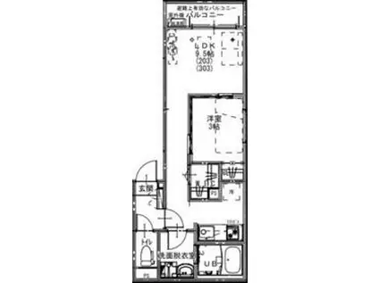
| 間取り | 1LDK | 専有面積 | 31.72m2 |
|---|---|---|---|
| 所在階 / 向き | 3階 / 北 | バルコニー面積 | 2m2 |
| 水道 / ガス | ガス【プロパン】 | ||
| 設備 | バス・トイレ別、オートロック、宅配ボックス、浴室乾燥機、システムキッチン、エアコン、角部屋、バルコニー、フローリング、2口コンロ、CATV、インターネット使用料無料、シャワー | ||
| 当社物件ID | 160063117 | ||
建物の情報
| 建物名 | KEIAI RESIDENCE せんげん台Ⅳ | ||
|---|---|---|---|
| 所在地 | 埼玉県越谷市千間台東2丁目 | ||
| 交通 | 東武伊勢崎・大師線 せんげん台駅 徒歩6分 | ||
| 階数 | 3階建 | 総戸数 | 9戸 |
| 築年月 | 2026年02月 / 新築 | エレベーター | - |
| 駐車場 | なし | バイク置き場 | - |
| 駐輪場 | あり | 管理人/管理会社 | - |
| 周辺環境 | その他 ドラッグストア その他 公園 その他 銀行 その他 * | ||
| 建物種別 | アパート | 建物構造 | 木造 |
この部屋の取扱い不動産会社
| 会社名 | ハウスコム埼玉株式会社 越谷店 | ||
|---|---|---|---|
| 所在地 | 埼玉県越谷市11-8第一金子ビル2階 | 交通 | - |
| 営業時間 | 10:00~18:00 | 定休日 | 水曜定休 |
| 免許番号 | 埼玉県知事(1)第24888号 | 取引態様 | 仲介 |
| 不動産会社管理番号 | HC4-5291896-303-0045 | 当社管理番号 | 468 |
| 所属団体 | 、 | ||
| 取扱い物件情報 | 物件詳細へ | ||
※各種情報と現状に差異がある場合は、現状優先となります。問い合わせをすることで、より詳しい条件、情報を確認する事ができます。
提供:ハウスコム埼玉株式会社 越谷店
この物件が気になったら掲載期限まであと4日
KEIAI RESIDENCE せんげん台Ⅳに条件(家賃・エリア)が近い物件一覧
| 写真 | 家賃 管理費等 | 敷金 礼金 | 間取り 専有面積 | 築年数 | 最寄り駅 所在地 | キープ | 詳細 |
|---|---|---|---|---|---|---|---|
マンション アネックス南越谷(1K/2階) | |||||||
![]() | 5万円 3,000円 | なし なし | 1K 16.8m2 | 築40年 | JR武蔵野線 南越谷駅 徒歩2分 東武伊勢崎線 新越谷駅 徒歩3分 東武伊勢崎線 蒲生駅 徒歩17分 埼玉県越谷市南越谷 | 詳細を見る | |
マンション レオパレスTMY(1K/2階) | |||||||
![]() | 6.4万円 7,000円 | なし 6.4万円 | 1K 19.87m2 | 築21年 | 東武伊勢崎線 獨協大学前駅 徒歩27分 東武伊勢崎線 草加駅 徒歩35分 東武伊勢崎線 新田駅(埼玉) 徒歩36分 埼玉県草加市小山 | 詳細を見る | |
アパート ルミエール(1LDK/3階) | |||||||
![]() | 8.5万円 5,500円 | なし 8.5万円 | 1LDK 33.34m2 | 築5年 | JR川越線 西大宮駅 徒歩7分 JR川越線 指扇駅 徒歩22分 埼玉県さいたま市西区西大宮 | 詳細を見る | |
マンション プレミエールモリタ(ワンルーム/3階) | |||||||
![]() | 5万円 3,300円 | 5万円 なし | ワンルーム 20.7m2 | 築34年 | 東武伊勢崎・大師線 獨協大学前駅 徒歩15分 埼玉県草加市弁天1丁目 | 詳細を見る | |
アパート グランポルテ美園A(2DK/2階) | |||||||
![]() | 10.5万円 4,500円 | なし 10.5万円 | 2DK 51.56m2 | 築12年 | 埼玉高速鉄道 浦和美園駅 徒歩12分 埼玉県さいたま市緑区大字大門 | 詳細を見る | |
マンション クレイノCLOVER(1K/2階) | |||||||
![]() | 6.4万円 7,000円 | なし 6.4万円 | 1K 20.49m2 | 築10年 | JR埼京線 南与野駅 徒歩17分 JR埼京線 与野本町駅 徒歩29分 JR武蔵野線 西浦和駅 徒歩31分 埼玉県さいたま市桜区 | 詳細を見る | |
マンション 日比谷レジデンス(1DK/6階) | |||||||
![]() | 8.7万円 6,000円 | 8.7万円 8.7万円 | 1DK 31.09m2 | 築1年 | 埼玉高速鉄道 浦和美園駅 徒歩3分 JR武蔵野線 東川口駅 徒歩36分 埼玉県さいたま市緑区美園 | 詳細を見る | |
アパート レオパレスファーレV(1K/2階) | |||||||
![]() | 6.6万円 5,000円 | なし 6.6万円 | 1K 19.87m2 | 築20年 | 埼玉高速鉄道 鳩ケ谷駅 徒歩19分 埼玉高速鉄道 新井宿駅 徒歩25分 埼玉高速鉄道 南鳩ケ谷駅 徒歩32分 埼玉県川口市 | 詳細を見る | |









