賃貸マンション
ソラシアレジデンス学芸大学Ⅱの賃貸物件情報(1K/3階)
| 家賃 | 管理費等 | 敷金 | 礼金 | 間取り | 専有面積 |
|---|---|---|---|---|---|
| 12.1万円 | 1.2万円 | なし | なし | 1K | 20.21m2 |
入居決定でお祝い金最大100,000円
- 保証金
- -
- 償却・敷引
- -
- 築年数
- 新築(築1年)
- 所在階
- 3階
- 向き
- 北東
Point
まずはお問い合わせ!
不動産会社は街のプロ、あなたに合った物件がきっと見つかります。
提供:アパマンショップ目黒西口店

詳細情報 ソラシアレジデンス学芸大学Ⅱ
物件紹介
ソラシアレジデンス学芸大学Ⅱは東急東横線学芸大学駅から徒歩10分にあり、駅近で通勤通学に便利なマンションです。
このお部屋は2階以上に位置しているので、通行人や周囲の住人からの視線が気になりにくく、防犯面でも安心。建物のエントランスはオートロックがついており、インターホンにはTVモニタもついているため、相手の顔を確認してから来客対応することができます。
フローリングのお部屋なのでお掃除もラクラク。キッチンはシステムキッチン仕様になっていますので、お料理好きの方にもぴったり。バス・トイレは別なので、のんびりお風呂タイムも楽しめるでしょう。また、雨の日でも浴室乾燥機を使えば、お洗濯も問題ありません。
通信設備面では、インターネットが無料で使えるので、月々の出費を抑えられるのも魅力です。また、BSアンテナ・CSアンテナがありCATVにも対応しているので、おうち時間も充実するでしょう(別途工事、BS・CS・CATVの契約料等が必要な場合あり)。
共用部には宅配ボックスが設定されているので、不在の時にも荷物を受け取ることができます。また、ペット飼育の相談ができますので、あなたの大切な家族の一員も快適に暮らせるか、ぜひ確認してみてください。
コンビニまで徒歩8分の場所にあり、日用品や食料品のお買い物にも便利です。
このお部屋は2階以上に位置しているので、通行人や周囲の住人からの視線が気になりにくく、防犯面でも安心。建物のエントランスはオートロックがついており、インターホンにはTVモニタもついているため、相手の顔を確認してから来客対応することができます。
フローリングのお部屋なのでお掃除もラクラク。キッチンはシステムキッチン仕様になっていますので、お料理好きの方にもぴったり。バス・トイレは別なので、のんびりお風呂タイムも楽しめるでしょう。また、雨の日でも浴室乾燥機を使えば、お洗濯も問題ありません。
通信設備面では、インターネットが無料で使えるので、月々の出費を抑えられるのも魅力です。また、BSアンテナ・CSアンテナがありCATVにも対応しているので、おうち時間も充実するでしょう(別途工事、BS・CS・CATVの契約料等が必要な場合あり)。
共用部には宅配ボックスが設定されているので、不在の時にも荷物を受け取ることができます。また、ペット飼育の相談ができますので、あなたの大切な家族の一員も快適に暮らせるか、ぜひ確認してみてください。
コンビニまで徒歩8分の場所にあり、日用品や食料品のお買い物にも便利です。
お金・契約の情報
※「-」と表示されているものは、実際は料金が発生するものもございます。詳細はお問い合わせください。
| 家賃 | 12.1万円 | 管理費・共益費 | 1.2万円 |
|---|---|---|---|
| 敷金 | なし | 礼金 | なし |
| 入居決定でお祝い金最大100,000円 | |||
| 保証金 | - | 償却・敷引 | - |
| 住宅保険料 | 1円 | 更新料 | - |
| その他費用 | プレミアデスク(2年/税込):1.65万円、55000円: | ||
| 保証会社利用 | 必須 | 保証会社名 | エポスカード |
| 保証会社費用 | - | 保証会社備考 | ※エポス ルームIDからの審査になります。 【ルームID】月額総賃料の50%/月次保証料、月額総賃料の1.5%/1年毎10,000円 ●エポスグローバルプラン利用時:月額総賃料の100%,月額総賃 |
| 契約形態 | - | 契約期間 | 2年 |
| 入居・引渡期間 | 即時 | 現況 | - |
| 入居可能条件 | 事務所不可、楽器不可、ペット可 | ||
| 契約備考 | その他設備/条件:室内洗濯機置き場、独立洗面台、防犯カメラ、クローゼット、シューズボックス | ||
部屋の情報
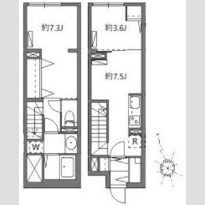
| 間取り | 1K | 専有面積 | 20.21m2 |
|---|---|---|---|
| 所在階 / 向き | 3階 / 北東 | バルコニー面積 | - |
| 水道 / ガス | 水道【公営】、ガス【都市】 | ||
| 設備 | バス・トイレ別、オートロック、テレビドアホン、宅配ボックス、浴室乾燥機、追い焚き、インターネット対応、システムキッチン、エアコン、温水洗浄便座、フローリング、2口コンロ、コンロ:ガス、CATV、CSアンテナ、BSアンテナ、インターネット使用料無料、給湯 | ||
| 当社物件ID | 159519292 | ||
建物の情報
| 建物名 | ソラシアレジデンス学芸大学Ⅱ | ||
|---|---|---|---|
| 所在地 | 東京都世田谷区下馬5丁目 | ||
| 交通 | 東急東横線 学芸大学駅 徒歩10分 東急東横線 祐天寺駅 徒歩10分 | ||
| 階数 | 3階建 | 総戸数 | - |
| 築年月 | 2025年08月 / 新築(築1年) | エレベーター | - |
| 駐車場 | ご確認ください | バイク置き場 | - |
| 駐輪場 | あり | 管理人/管理会社 | - |
| 周辺環境 | コンビニ 徒歩8分(629m) 販売店 徒歩12分(942m) その他 ドラッグストア その他 公園 その他 銀行 その他 * | ||
| 建物種別 | マンション | 建物構造 | RC(鉄筋コンクリート) |
この部屋の取扱い不動産会社
| 会社名 | ハウスコム西東京株式会社 祖師ヶ谷大蔵店 | ||
|---|---|---|---|
| 所在地 | 東京都世田谷区37-5振興会館ビル2階 | 交通 | - |
| 営業時間 | 10:00~18:00 | 定休日 | 水曜定休 |
| 免許番号 | 東京都知事(1)第108225号 | 取引態様 | 仲介 |
| 不動産会社管理番号 | HC5-5143570-0302-0187 | 当社管理番号 | 468 |
| 所属団体 | 、 | ||
| 取扱い物件情報 | 物件詳細へ | ||
※各種情報と現状に差異がある場合は、現状優先となります。問い合わせをすることで、より詳しい条件、情報を確認する事ができます。
提供:ハウスコム西東京株式会社 祖師ヶ谷大蔵店
この物件が気になったら掲載期限まであと5日
ソラシアレジデンス学芸大学Ⅱに条件(家賃・エリア)が近い物件一覧
| 写真 | 家賃 管理費等 | 敷金 礼金 | 間取り 専有面積 | 築年数 | 最寄り駅 所在地 | キープ | 詳細 |
|---|---|---|---|---|---|---|---|
マンション セレストコーワ(1K/4階) | |||||||
![]() | 7.9万円 5,000円 | 7.9万円 7.9万円 | 1K 20.25m2 | 築20年 | 京浜急行電鉄空港線 糀谷駅 徒歩9分 京浜急行電鉄本線 京急蒲田駅 徒歩11分 東京都大田区南蒲田2丁目 | 詳細を見る | |
マンション コム・シェ・ソワⅡ(1K/1階) | |||||||
![]() | 9.2万円 4,000円 | なし 9.2万円 | 1K 27.71m2 | 築23年 | 東急多摩川線 矢口渡駅 徒歩8分 東京都大田区新蒲田2丁目 | 詳細を見る | |
アパート M SONIA KUGAHARA(ワンルーム/1階) | |||||||
![]() | 9.3万円 3,000円 | 9.3万円 13.95万円 | ワンルーム 24.57m2 | 築1年 | 東急池上線 久が原駅 徒歩8分 東急池上線 御嶽山駅 徒歩9分 東京都大田区西嶺町 | 詳細を見る | |
マンション ピソ・リベルタ(1K/3階) | |||||||
![]() | 8万円 3,000円 | 8万円 4万円 | 1K 25.18m2 | 築21年 | 京浜急行電鉄本線 梅屋敷駅(東京) 徒歩6分 京浜急行電鉄本線 大森町駅 徒歩12分 東京都大田区大森西6丁目 | 詳細を見る | |
タウンハウス 大田菜園長屋(2LDK) | |||||||
![]() | 15.4万円 5,000円 | 15.4万円 23.1万円 | 2LDK 52.17m2 | 築9年 | 京浜急行電鉄本線 雑色駅 徒歩8分 京浜急行電鉄本線 六郷土手駅 徒歩13分 東京都大田区東六郷3丁目 | 詳細を見る | |
マンション ウエスト315(1SLDK/1階) | |||||||
![]() | 17.6万円 3,000円 | 17.6万円 35.2万円 | 1SLDK 54.07m2 | 築9年 | 京急本線 大森町駅 徒歩4分 京急本線 梅屋敷駅(東京) 徒歩11分 京急本線 京急蒲田駅 徒歩22分 東京都大田区大森西 | 詳細を見る | |
マンション ダイアローグステージ(1K/2階) | |||||||
![]() | 8万円 5,000円 | 8万円 12万円 | 1K 22.35m2 | 築19年 | 東急多摩川線 矢口渡駅 徒歩4分 東急池上線 池上駅 徒歩14分 JR京浜東北線 蒲田駅 徒歩20分 東京都大田区多摩川 | 詳細を見る | |
マンション イクストロア(1DK/3階) | |||||||
![]() | 10万円 6,000円 | 10万円 10万円 | 1DK 30.25m2 | 築18年 | 京浜急行電鉄本線 梅屋敷駅(東京) 徒歩11分 京浜東北・根岸線 蒲田駅 徒歩13分 東急多摩川線 蒲田駅 徒歩15分 東京都大田区蒲田1丁目 | 詳細を見る | |








