賃貸マンション
サンリヤン和白Vの賃貸物件情報(4LDK/1階)
| 家賃 | 管理費等 | 敷金 | 礼金 | 間取り | 専有面積 |
|---|---|---|---|---|---|
| 11万円 | なし | 11万円 | 22万円 | 4LDK | 95.37m2 |
入居決定でお祝い金最大100,000円
- 保証金
- -
- 償却・敷引
- -
- 築年数
- 築24年
- 所在階
- 1階
- 向き
- -
Point
和白駅徒歩3分の好立地!都市ガスで経済的!宅配ボックス付き!システムキッチン、オートロック、モニタ付きインターホン、温水洗浄便座など充実の設備!当店では初期費用のクレジット決済が可能です!
提供:いい部屋ネット香椎店(株)トーマスリビング(SUUMO経由)

詳細情報 サンリヤン和白V
物件紹介
サンリヤン和白VはJR香椎線和白駅から徒歩6分にあり、駅近で通勤通学に便利なマンションです。
建物のエントランスはオートロックがついており、インターホンにはTVモニタもついているため、相手の顔を確認してから来客対応することができます。
人気の角部屋で周囲の居住者の生活音も気になりにくく、また、フローリングのお部屋なのでお掃除もラクラク。キッチンはシステムキッチン仕様になっていますので、お料理好きの方にもぴったり。また、バス・トイレは別で、のんびりお風呂タイムも楽しめるでしょう。
建物にはエレベーターがついているので、重い荷物があっても安心。
建物のエントランスはオートロックがついており、インターホンにはTVモニタもついているため、相手の顔を確認してから来客対応することができます。
人気の角部屋で周囲の居住者の生活音も気になりにくく、また、フローリングのお部屋なのでお掃除もラクラク。キッチンはシステムキッチン仕様になっていますので、お料理好きの方にもぴったり。また、バス・トイレは別で、のんびりお風呂タイムも楽しめるでしょう。
建物にはエレベーターがついているので、重い荷物があっても安心。
お金・契約の情報
※「-」と表示されているものは、実際は料金が発生するものもございます。詳細はお問い合わせください。
| 家賃 | 11万円 | 管理費・共益費 | なし |
|---|---|---|---|
| 敷金 | 11万円 | 礼金 | 22万円 |
| 入居決定でお祝い金最大100,000円 | |||
| 保証金 | - | 償却・敷引 | - |
| 住宅保険料 | - | 更新料 | - |
| 保証会社利用 | 必須 | 保証会社名 | - |
| 保証会社費用 | - | 保証会社備考 | 保証会社利用必 要保証会社、及び連帯保証人ふれんず宅建保証:総額賃料の50%(初回のみ) |
| 契約形態 | - | 契約期間 | - |
| 入居・引渡期間 | 相談 | 現況 | - |
| 契約備考 | 合計11.55万円(内訳:鍵交換費用38500円/クリーニング費用77000円) 4LDK 子供可 普通借家2年 損保【2万円2年】 バストイレ別、クロゼット、フローリング、TVインターホン、オートロック、室内洗濯置、シューズボックス、システムキッチン、角住戸、温水洗浄便座、脱衣所、エレベーター、洗面所独立、洗面化粧台、駐輪場、押入、3口以上コンロ、グリル付、敷金1ヶ月、2沿線利用可、専用庭、床下収納、クロゼット2ヶ所、2駅利用可、駅徒歩10分以内、専有面積25坪以上、都市ガス、玄関収納、礼金2ヶ月、初期費用カード決済可、通風良好 | ||
部屋の情報
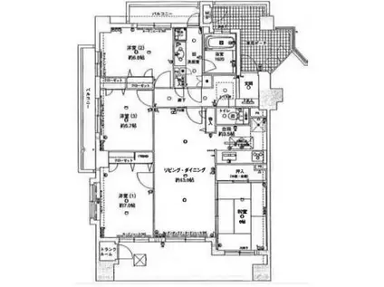
| 間取り | 4LDK | 専有面積 | 95.37m2 |
|---|---|---|---|
| 所在階 / 向き | 1階 / - | バルコニー面積 | - |
| 水道 / ガス | - | ||
| 設備 | バス・トイレ別、オートロック、テレビドアホン、システムキッチン、エレベーター、温水洗浄便座、角部屋、フローリング、床下収納、洗髪洗面化粧台、2口コンロ、専用庭、洗濯機:室内 | ||
| 当社物件ID | 26951640 | ||
建物の情報
| 建物名 | サンリヤン和白V | ||
|---|---|---|---|
| 所在地 | 福岡県福岡市東区和白 | ||
| 交通 | JR香椎線 和白駅(JR) 徒歩6分 西鉄貝塚線 和白駅(JR) 徒歩6分 西鉄貝塚線 唐の原駅 徒歩20分 | ||
| 階数 | 10階建 | 総戸数 | - |
| 築年月 | 2003年02月 / 築24年 | エレベーター | あり |
| 駐車場 | 空有 6600円 | バイク置き場 | - |
| 駐輪場 | あり | 管理人/管理会社 | - |
| 周辺環境 | その他 TRIAL GO 和白店(スーパー)まで396m その他 マツモトキヨシ和白店(ドラッグストア)まで541m その他 ファミリーマート JR和白駅前店(コンビニ)まで320m その他 グロッサリア トライアル 和白店(ショッピングセンター)まで391m その他 マルキョウ 和白店(スーパー)まで631m | ||
| 建物種別 | マンション | 建物構造 | SRC(鉄骨鉄筋コンクリート) |
この部屋の取扱い不動産会社
| 会社名 | いい部屋ネット香椎店(株)トーマスリビング(SUUMO経由) | ||
|---|---|---|---|
| 所在地 | 福岡県福岡市東区香椎駅前1-17-44 ブランドール香椎駅前1階 | 交通 | - |
| 営業時間 | 10:00~19:00 | 定休日 | 毎週水曜日 |
| 免許番号 | 国土交通大臣8479 | 取引態様 | 仲介 |
| 不動産会社管理番号 | 100479227530 | 当社管理番号 | 89 |
| 所属団体 | (公社)全日本不動産協会福岡県本部会員 | ||
| 公正取引協議会 | (一社)九州不動産公正取引協議会加盟 | ||
| 取扱い物件情報 | 物件詳細へ | ||
※各種情報と現状に差異がある場合は、現状優先となります。問い合わせをすることで、より詳しい条件、情報を確認する事ができます。
提供:いい部屋ネット香椎店(株)トーマスリビング(SUUMO経由)
この物件が気になったら掲載期限まであと10日
サンリヤン和白Vに条件(家賃・エリア)が近い物件一覧
| 写真 | 家賃 管理費等 | 敷金 礼金 | 間取り 専有面積 | 築年数 | 最寄り駅 所在地 | キープ | 詳細 |
|---|---|---|---|---|---|---|---|
アパート D-ROOM平田台4丁目(2LDK/2階) | |||||||
![]() | 10.4万円 5,000円 | なし 20.8万円 | 2LDK 56.4m2 | 新築 | 鹿児島本線 大野城駅 徒歩25分 鹿児島本線 水城駅 徒歩27分 西鉄天神大牟田線 下大利駅 徒歩28分 福岡県春日市平田台4丁目 | 詳細を見る | |
アパート トリシア 東大利(3LDK/3階) | |||||||
![]() | 14万円 7,500円 | なし 14万円 | 3LDK 70.68m2 | 築1年 | 西鉄天神大牟田線 白木原駅 徒歩11分 鹿児島本線 大野城駅 徒歩16分 福岡県大野城市東大利2丁目 | 詳細を見る | |
マンション アイランドシティインフィニガーデン イースト棟(3LDK/3階) | |||||||
| 14.2万円 1万円 | なし なし | 3LDK 82.11m2 | 築19年 | 西日本鉄道貝塚線 香椎花園前駅 徒歩20分 西日本鉄道貝塚線 西鉄香椎駅 徒歩27分 鹿児島本線 香椎駅 徒歩41分 福岡県福岡市東区香椎照葉3丁目 | 詳細を見る | ||
マンション PEACE COURT(3DK/2階) | |||||||
![]() | 7.3万円 3,000円 | なし 7.3万円 | 3DK 49.03m2 | 築16年 | 鹿児島本線 南福岡駅 徒歩18分 鹿児島本線 春日駅(福岡) 徒歩25分 西鉄天神大牟田線 雑餉隈駅 徒歩26分 福岡県春日市 | 詳細を見る | |
マンション アルバス・ケイ(1LDK/2階) | |||||||
![]() | 8.8万円 3,300円 | なし 8.8万円 | 1LDK 41.3m2 | 築1年 | 福岡県大野城市若草3丁目 | 詳細を見る | |
マンション JGMヴェルデ春日弐番館(4LDK/5階) | |||||||
![]() | 14万円 なし | なし 28万円 | 4LDK 92.05m2 | 築49年 | 博多南線 博多南駅 徒歩9分 鹿児島本線 南福岡駅 徒歩46分 西鉄天神大牟田線 井尻駅 徒歩48分 福岡県春日市下白水南7丁目 | 詳細を見る | |
マンション 春日原パークマンション(2LDK/7階) | |||||||
![]() | 7.8万円 なし | なし 15.6万円 | 2LDK 62.01m2 | 築52年 | 西鉄天神大牟田線 春日原駅 徒歩3分 鹿児島本線 春日駅(福岡) 徒歩6分 西鉄天神大牟田線 桜並木駅 徒歩16分 福岡県春日市春日原北町2丁目 | 詳細を見る | |
マンション アゼリアⅡ(3LDK/4階) | |||||||
![]() | 9.2万円 5,000円 | なし 18.4万円 | 3LDK 62.72m2 | 築27年 | 西鉄天神大牟田線 春日原駅 徒歩12分 鹿児島本線 春日駅(福岡) 徒歩17分 西鉄天神大牟田線 雑餉隈駅 徒歩25分 福岡県大野城市筒井2丁目 | 詳細を見る | |








