賃貸アパート
ザ・グランドレジデンス稲毛の賃貸物件情報(1K/3階)
| 家賃 | 管理費等 | 敷金 | 礼金 | 間取り | 専有面積 |
|---|---|---|---|---|---|
| 7.6万円 | 5,000円 | 7.6万円 | 7.6万円 | 1K | 20.01m2 |
入居決定でお祝い金最大100,000円
- 保証金
- -
- 償却・敷引
- -
- 築年数
- 新築
- 所在階
- 3階
- 向き
- -
Point
荷物を注文する時に時間を気にしなくてよくなる宅配ボックスを共用部に備えています。新築マンションです。
提供:創建管理(株)(SUUMO経由)

詳細情報 ザ・グランドレジデンス稲毛
物件紹介
ザ・グランドレジデンス稲毛は京成千葉線京成稲毛駅から徒歩8分にあり、駅近で通勤通学に便利なアパートです。
このお部屋は2階以上に位置しているので、通行人や周囲の住人からの視線が気になりにくく、防犯面でも安心。建物のエントランスはオートロックがついており、インターホンにはTVモニタもついているため、相手の顔を確認してから来客対応することができます。
こちらは楽器相談が可能な物件。楽器演奏をお考えの方はぜひ相談してみてください。人気の角部屋で周囲の居住者の生活音も気になりにくく、また、フローリングのお部屋なのでお掃除もラクラク。キッチンはシステムキッチン仕様になっていますので、お料理好きの方にもぴったり。バス・トイレは別なので、のんびりお風呂タイムも楽しめるでしょう。また、雨の日でも浴室乾燥機を使えば、お洗濯も問題ありません。
通信設備面では、インターネットが無料で使えるので、月々の出費を抑えられるのも魅力です。また、BSアンテナ・CSアンテナがありCATVにも対応しているので、おうち時間も充実するでしょう(別途工事、BS・CS・CATVの契約料等が必要な場合あり)。
共用部には宅配ボックスが設定されているので、不在の時にも荷物を受け取ることができます。また、ペット飼育の相談ができますので、あなたの大切な家族の一員も快適に暮らせるか、ぜひ確認してみてください。
コンビニまで徒歩19分の場所にあり、日用品や食料品のお買い物にも便利です。
このお部屋は2階以上に位置しているので、通行人や周囲の住人からの視線が気になりにくく、防犯面でも安心。建物のエントランスはオートロックがついており、インターホンにはTVモニタもついているため、相手の顔を確認してから来客対応することができます。
こちらは楽器相談が可能な物件。楽器演奏をお考えの方はぜひ相談してみてください。人気の角部屋で周囲の居住者の生活音も気になりにくく、また、フローリングのお部屋なのでお掃除もラクラク。キッチンはシステムキッチン仕様になっていますので、お料理好きの方にもぴったり。バス・トイレは別なので、のんびりお風呂タイムも楽しめるでしょう。また、雨の日でも浴室乾燥機を使えば、お洗濯も問題ありません。
通信設備面では、インターネットが無料で使えるので、月々の出費を抑えられるのも魅力です。また、BSアンテナ・CSアンテナがありCATVにも対応しているので、おうち時間も充実するでしょう(別途工事、BS・CS・CATVの契約料等が必要な場合あり)。
共用部には宅配ボックスが設定されているので、不在の時にも荷物を受け取ることができます。また、ペット飼育の相談ができますので、あなたの大切な家族の一員も快適に暮らせるか、ぜひ確認してみてください。
コンビニまで徒歩19分の場所にあり、日用品や食料品のお買い物にも便利です。
お金・契約の情報
※「-」と表示されているものは、実際は料金が発生するものもございます。詳細はお問い合わせください。
| 家賃 | 7.6万円 | 管理費・共益費 | 5,000円 |
|---|---|---|---|
| 敷金 | 7.6万円 | 礼金 | 7.6万円 |
| 入居決定でお祝い金最大100,000円 | |||
| 保証金 | - | 償却・敷引 | - |
| 住宅保険料 | 1円 | 更新料 | - |
| 契約形態 | - | 契約期間 | 2年 |
| 入居・引渡期間 | 2026年02月中旬 | 現況 | 未完成 |
| 入居可能条件 | ペット相談 | ||
| 契約備考 | ペット飼育時敷金積み増し料金(償却)有り 月額(口座振替 500円 24時間サポート 1000円) 室内清掃費用:35000 その他設備/条件:室内洗濯機置き場、独立洗面台 | ||
部屋の情報
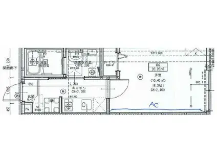
| 間取り | 1K | 専有面積 | 20.01m2 |
|---|---|---|---|
| 間取り詳細 | 洋室(6.3帖) | ||
| 所在階 / 向き | 3階 / - | バルコニー面積 | - |
| 水道 / ガス | - | ||
| 設備 | バス・トイレ別、オートロック、宅配ボックス、システムキッチン、エアコン、角部屋、バルコニー、フローリング、インターネット使用料無料 | ||
| 当社物件ID | 159486709 | ||
建物の情報
| 建物名 | ザ・グランドレジデンス稲毛 | ||
|---|---|---|---|
| 所在地 | 千葉県千葉市稲毛区稲毛東6丁目 | ||
| 交通 | 京成電鉄千葉線 京成稲毛駅 徒歩10分 総武・中央緩行線 稲毛駅 徒歩18分 | ||
| 階数 | 3階建 | 総戸数 | - |
| 築年月 | 2026年02月 / 新築 | エレベーター | - |
| 駐車場 | - | バイク置き場 | - |
| 駐輪場 | - | 管理人/管理会社 | - |
| 周辺環境 | コンビニ 徒歩19分(1454m) 販売店 徒歩9分(714m) その他 ドラッグストア その他 公園 その他 銀行 その他 * | ||
| 建物種別 | アパート | 建物構造 | 木造 |
この部屋の取扱い不動産会社
| 会社名 | ハウスコム千葉株式会社 津田沼店 | ||
|---|---|---|---|
| 所在地 | 千葉県習志野市2-1トミビル1階・2階 | 交通 | - |
| 営業時間 | 10:00~18:00 | 定休日 | - |
| 免許番号 | 千葉県知事(1)第18235号 | 取引態様 | 仲介 |
| 不動産会社管理番号 | HC2-5128636-304-0052 | 当社管理番号 | 468 |
| 所属団体 | 、 | ||
| 取扱い物件情報 | 物件詳細へ | ||
※各種情報と現状に差異がある場合は、現状優先となります。問い合わせをすることで、より詳しい条件、情報を確認する事ができます。
提供:ハウスコム千葉株式会社 津田沼店
この物件が気になったら掲載期限まであと4日
ザ・グランドレジデンス稲毛に条件(家賃・エリア)が近い物件一覧
| 写真 | 家賃 管理費等 | 敷金 礼金 | 間取り 専有面積 | 築年数 | 最寄り駅 所在地 | キープ | 詳細 |
|---|---|---|---|---|---|---|---|
マンション ウイングテラス大久保(1DK/4階) | |||||||
![]() | 7.05万円 8,000円 | 7.05万円 7.05万円 | 1DK 29.05m2 | 築2年 | 京成電鉄本線 京成大久保駅 徒歩9分 千葉県習志野市大久保3丁目 | 詳細を見る | |
アパート グランディール織戸(2DK/2階) | |||||||
![]() | 6.8万円 2,000円 | 13.6万円 6.8万円 | 2DK 40m2 | 築36年 | 京成本線 京成津田沼駅 徒歩10分 JR総武線 津田沼駅 徒歩13分 京成松戸線 新津田沼駅 徒歩16分 千葉県習志野市谷津 | 詳細を見る | |
マンション 第2グリーンハイツ(1K/1階) | |||||||
![]() | 7.5万円 5,000円 | 7.5万円 7.5万円 | 1K 37.1m2 | 築40年 | 総武・中央緩行線 稲毛駅 徒歩10分 京成電鉄千葉線 みどり台駅 徒歩13分 千葉県千葉市稲毛区黒砂台2丁目 | 詳細を見る | |
マンション ウインドテラス津田沼II(1K/1階) | |||||||
![]() | 7.9万円 4,000円 | 7.9万円 7.9万円 | 1K 23.6m2 | 新築 | JR総武線快速 津田沼駅 徒歩9分 京成本線 京成津田沼駅 徒歩10分 京成本線 谷津駅 徒歩15分 千葉県習志野市谷津 | 詳細を見る | |
アパート ソウケン(2LDK/2階) | |||||||
![]() | 8.5万円 6,500円 | なし 8.5万円 | 2LDK 61.14m2 | 築10年 | JR総武本線 四街道駅 徒歩26分 JR総武本線 物井駅 徒歩38分 JR総武本線 都賀駅 徒歩71分 千葉県四街道市栗山 | 詳細を見る | |
アパート エトワールⅠ(2LDK/2階) | |||||||
![]() | 5.4万円 2,200円 | なし なし | 2LDK 65.64m2 | 築23年 | 外房線 新茂原駅 徒歩18分 千葉県茂原市小林 | 詳細を見る | |
マンション テレパレス西千葉(3LDK/5階) | |||||||
![]() | 11万円 1.5万円 | なし なし | 3LDK 87.56m2 | 築31年 | 千葉都市モノレール 作草部駅 徒歩5分 総武・中央緩行線 西千葉駅 徒歩15分 千葉県千葉市稲毛区轟町4丁目 | 詳細を見る | |
一戸建て 千葉県市原市 築37年(3DK) | |||||||
![]() | 6万円 なし | 6万円 なし | 3DK 60.43m2 | 築37年 | 千葉県市原市山田橋1丁目 | 詳細を見る | |








