賃貸マンション
STAART大崎 スタールト大崎の賃貸物件情報(ワンルーム/3階)
| 家賃 | 管理費等 | 敷金 | 礼金 | 間取り | 専有面積 |
|---|---|---|---|---|---|
| 17.8万円 | 1.2万円 | 17.8万円 | 17.8万円 | ワンルーム | 40m2 |
入居決定でお祝い金最大100,000円
- 保証金
- -
- 償却・敷引
- -
- 築年数
- 築11年
- 所在階
- 3階
- 向き
- -
Point
★システムキッチン・2口ガスコンロ★バス・トイレ別★独立洗面台★室内洗濯機置場★クローゼット★シューズボックス★フローリング★エアコン★オートロック★駐輪場★詳細はお気軽にお問い合わせください!★
提供:(株)ユウキ・ホーム麻布十番サテライト店(SUUMO経由)

詳細情報 STAART大崎 スタールト大崎
物件紹介
STAART大崎 スタールト大崎は東急大井町線下神明駅から徒歩9分にあり、駅近で通勤通学に便利なマンションです。
このお部屋は2階以上に位置しているので通行人や周囲の住人からの視線が気になりにくく、建物のエントランスはオートロックがついているので防犯性が高くなっています。
フローリングのお部屋なのでお掃除もラクラク。キッチンはシステムキッチン仕様になっていますので、お料理好きの方にもぴったり。バス・トイレは別なので、のんびりお風呂タイムも楽しめるでしょう。また、雨の日でも浴室乾燥機を使えば、お洗濯も問題ありません。
共用部には宅配ボックスが設定されているので、不在の時にも荷物を受け取ることができます。また、ペット飼育の相談ができますので、あなたの大切な家族の一員も快適に暮らせるか、ぜひ確認してみてください。
このお部屋は2階以上に位置しているので通行人や周囲の住人からの視線が気になりにくく、建物のエントランスはオートロックがついているので防犯性が高くなっています。
フローリングのお部屋なのでお掃除もラクラク。キッチンはシステムキッチン仕様になっていますので、お料理好きの方にもぴったり。バス・トイレは別なので、のんびりお風呂タイムも楽しめるでしょう。また、雨の日でも浴室乾燥機を使えば、お洗濯も問題ありません。
共用部には宅配ボックスが設定されているので、不在の時にも荷物を受け取ることができます。また、ペット飼育の相談ができますので、あなたの大切な家族の一員も快適に暮らせるか、ぜひ確認してみてください。
お金・契約の情報
※「-」と表示されているものは、実際は料金が発生するものもございます。詳細はお問い合わせください。
| 家賃 | 17.8万円 | 管理費・共益費 | 1.2万円 |
|---|---|---|---|
| 敷金 | 17.8万円 | 礼金 | 17.8万円 |
| 入居決定でお祝い金最大100,000円 | |||
| 保証金 | - | 償却・敷引 | - |
| 住宅保険料 | - | 更新料 | - |
| 保証会社利用 | 必須 | 保証会社名 | - |
| 保証会社費用 | - | 保証会社備考 | 保証会社利用必 初回保証料:賃料等の50% 詳細はお問い合わせください。 |
| 契約形態 | - | 契約期間 | - |
| 入居・引渡期間 | 即時 | 現況 | - |
| 入居可能条件 | ペット相談 | ||
| 契約備考 | 巡回管理/駐輪場:330円/月※空詳細要確認 ペット相談可:猫4匹まで、敷金1ヶ月積増・償却※詳細要確認 エアコンクリーニング費用:16500円/台 短期解約時違約金有:1年未満解約時賃料+共益費の1ヶ月分 合計2.2万円(内訳:鍵交換代2.2万円) 室内清掃費用 60500円 ワンルーム 単身者可/ペット相談 普通借家2年 損保【2万円2年】 バストイレ別、エアコン、ガスコンロ対応、クロゼット、フローリング、浴室乾燥機、オートロック、室内洗濯置、シューズボックス、システムキッチン、温水洗浄便座、洗面所独立、2口コンロ、駐輪場、宅配ボックス、即入居可、防犯カメラ、ペット相談、保証人不要、2沿線利用可、2駅利用可、3駅以上利用可、3沿線以上利用可、駅徒歩10分以内、敷地内ごみ置き場、都市ガス、保証会社利用可 敷金積み増し【ペット飼育の場合敷金2ヶ月(総額)】 | ||
部屋の情報
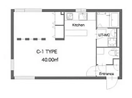
| 間取り | ワンルーム | 専有面積 | 40m2 |
|---|---|---|---|
| 所在階 / 向き | 3階 / - | バルコニー面積 | - |
| 水道 / ガス | - | ||
| 設備 | バス・トイレ別、2階以上、オートロック、宅配ボックス、浴室乾燥機、システムキッチン、エアコン、温水洗浄便座、フローリング、洗髪洗面化粧台、2口コンロ、コンロ:ガス、洗濯機:室内 | ||
| 当社物件ID | 102839175 | ||
建物の情報
| 建物名 | STAART大崎 スタールト大崎 | ||
|---|---|---|---|
| 所在地 | 東京都品川区西品川 | ||
| 交通 | 東急大井町線 下神明駅 徒歩9分 JR山手線 大崎駅 徒歩10分 都営浅草線 戸越駅 徒歩11分 | ||
| 階数 | 4階建 | 総戸数 | - |
| 築年月 | 2015年08月 / 築11年 | エレベーター | - |
| 駐車場 | なし | バイク置き場 | - |
| 駐輪場 | あり | 管理人/管理会社 | - |
| 周辺環境 | その他 サラダ薬局(ドラッグストア)まで236m その他 ローソン 西品川三ツ木通店(コンビニ)まで66m | ||
| 建物種別 | マンション | 建物構造 | RC(鉄筋コンクリート) |
この部屋の取扱い不動産会社
| 会社名 | そらうみリアルエステート(株)賃貸事業本部(SUUMO経由) | ||
|---|---|---|---|
| 所在地 | 東京都港区麻布十番1-11-16 SHビル1階 | 交通 | - |
| 営業時間 | 午前9時30分~午後9時30分 | 定休日 | 無休 |
| 免許番号 | 東京都知事94395 | 取引態様 | 仲介 |
| 不動産会社管理番号 | 100503880973 | 当社管理番号 | 89 |
| 所属団体 | (公社)東京都宅地建物取引業協会会員 | ||
| 公正取引協議会 | (公社)首都圏不動産公正取引協議会加盟 | ||
| 取扱い物件情報 | 物件詳細へ | ||
※各種情報と現状に差異がある場合は、現状優先となります。問い合わせをすることで、より詳しい条件、情報を確認する事ができます。
提供:そらうみリアルエステート(株)賃貸事業本部(SUUMO経由)
この物件が気になったら掲載期限まであと12日
STAART大崎 スタールト大崎に条件(家賃・エリア)が近い物件一覧
| 写真 | 家賃 管理費等 | 敷金 礼金 | 間取り 専有面積 | 築年数 | 最寄り駅 所在地 | キープ | 詳細 |
|---|---|---|---|---|---|---|---|
マンション クレヴィスタ亀戸III(1K/4階) | |||||||
![]() | 12.5万円 1.1万円 | なし 12.5万円 | 1K 25.6m2 | 築7年 | 東武鉄道亀戸線 亀戸水神駅 徒歩2分 総武・中央緩行線 亀戸駅 徒歩9分 東武鉄道亀戸線 東あずま駅 徒歩12分 東京都江東区亀戸8丁目 | 詳細を見る | |
マンション メイゾン茨田(1LDK/2階) | |||||||
![]() | 12万円 3,000円 | 12万円 12万円 | 1LDK 42.9m2 | 築58年 | 東京モノレール 昭和島駅 徒歩10分 京急本線 大森町駅 徒歩17分 東京都大田区大森東 | 詳細を見る | |
一戸建て 東京都新宿線 大島駅(東京) 徒歩7分 築77年(1DK) | |||||||
![]() | 11.8万円 2万円 | 11.8万円 11.8万円 | 1DK 27.91m2 | 築77年 | 東京都新宿線 大島駅(東京) 徒歩7分 東京都新宿線 西大島駅 徒歩7分 総武・中央緩行線 亀戸駅 徒歩11分 東京都江東区大島3丁目 | 詳細を見る | |
マンション メゾンド・シャンテ(1LDK/1階) | |||||||
![]() | 15.4万円 3,000円 | 15.4万円 15.4万円 | 1LDK 46.86m2 | 築4年 | 京急本線 梅屋敷駅(東京) 徒歩6分 京急本線 京急蒲田駅 徒歩13分 JR京浜東北線 蒲田駅 徒歩15分 東京都大田区蒲田 | 詳細を見る | |
マンション ALPHA PRIME東陽町(1LDK/8階) | |||||||
![]() | 16.5万円 2万円 | 16.5万円 16.5万円 | 1LDK 35.1m2 | 築3年 | 東京メトロ東西線 東陽町駅 徒歩9分 東京メトロ東西線 木場駅 徒歩15分 JR京葉線 潮見駅 徒歩18分 東京都江東区塩浜 | 詳細を見る | |
マンション グレードワンヒラタ(2DK/3階) | |||||||
![]() | 15.1万円 4,000円 | 15.1万円 15.1万円 | 2DK 44.82m2 | 築39年 | 京浜東北・根岸線 蒲田駅 徒歩6分 京浜急行電鉄本線 京急蒲田駅 徒歩11分 東京都大田区蒲田1丁目 | 詳細を見る | |
マンション エスティメゾン大島(1K/10階) | |||||||
![]() | 10.9万円 1万円 | 10.9万円 10.9万円 | 1K 22.12m2 | 築19年 | 都営新宿線 大島駅(東京) 徒歩2分 都営新宿線 西大島駅 徒歩11分 JR総武線 亀戸駅 徒歩20分 東京都江東区大島 | 詳細を見る | |
マンション サンライズマンション(2LDK/2階) | |||||||
![]() | 15.5万円 3,000円 | 12.7万円 31万円 | 2LDK 55.31m2 | 築26年 | 京浜急行電鉄本線 梅屋敷駅(東京) 徒歩13分 京浜急行電鉄本線 大森町駅 徒歩14分 東京都大田区大森南1丁目 | 詳細を見る | |








