賃貸マンション
S-RESIDENCE行徳COURANTの賃貸物件情報(1K/1階)
| 家賃 | 管理費等 | 敷金 | 礼金 | 間取り | 専有面積 |
|---|---|---|---|---|---|
| 8.7万円 | 1万円 | なし | 8.7万円 | 1K | 22.76m2 |
入居決定でお祝い金最大100,000円
- 保証金
- -
- 償却・敷引
- -
- 築年数
- 築1年
- 所在階
- 1階
- 向き
- 南東
Point
当社は1度もご来店頂かなくても自宅にいながらお部屋探し~ご契約~鍵渡しまでオンラインとご郵送でご対応が可能。まずはご相談ください!
提供:(株)タウンハウジング東京 西葛西店(SUUMO経由)

詳細情報 S-RESIDENCE行徳COURANT
物件紹介
S-RESIDENCE行徳COURANTは東京メトロ東西線行徳駅から徒歩8分にあり、駅近で通勤通学に便利なマンションです。
建物のエントランスはオートロックがついており、インターホンにはTVモニタもついているため、相手の顔を確認してから来客対応することができます。
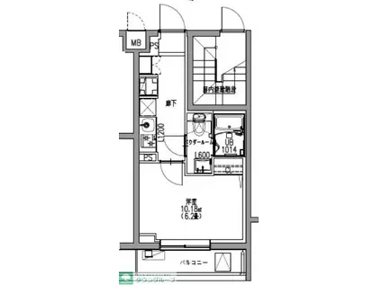
人気の南向き・フローリングのお部屋。角部屋でもあるため、周囲の居住者の生活音も気になりにくい場所です。室内にはウォークインクローゼットがありますので、たくさんの荷物も効率的に収納ができます。キッチンはシステムキッチン仕様になっていますので、お料理好きの方にもぴったり。バス・トイレは別なので、のんびりお風呂タイムも楽しめるでしょう。また、雨の日でも浴室乾燥機を使えば、お洗濯も問題ありません。
通信設備面では、インターネットが無料で使えるので、月々の出費を抑えられるのも魅力です。また、BSアンテナ・CSアンテナがありCATVにも対応しているので、おうち時間も充実するでしょう(別途工事、BS・CS・CATVの契約料等が必要な場合あり)。
建物にはエレベーターがついているので、重い荷物があっても安心。共用部には宅配ボックスが設定されているので、不在の時にも荷物を受け取ることができます。また、ペット飼育の相談ができますので、あなたの大切な家族の一員も快適に暮らせるか、ぜひ確認してみてください。
建物のエントランスはオートロックがついており、インターホンにはTVモニタもついているため、相手の顔を確認してから来客対応することができます。
人気の南向き・フローリングのお部屋。角部屋でもあるため、周囲の居住者の生活音も気になりにくい場所です。室内にはウォークインクローゼットがありますので、たくさんの荷物も効率的に収納ができます。キッチンはシステムキッチン仕様になっていますので、お料理好きの方にもぴったり。バス・トイレは別なので、のんびりお風呂タイムも楽しめるでしょう。また、雨の日でも浴室乾燥機を使えば、お洗濯も問題ありません。
通信設備面では、インターネットが無料で使えるので、月々の出費を抑えられるのも魅力です。また、BSアンテナ・CSアンテナがありCATVにも対応しているので、おうち時間も充実するでしょう(別途工事、BS・CS・CATVの契約料等が必要な場合あり)。
建物にはエレベーターがついているので、重い荷物があっても安心。共用部には宅配ボックスが設定されているので、不在の時にも荷物を受け取ることができます。また、ペット飼育の相談ができますので、あなたの大切な家族の一員も快適に暮らせるか、ぜひ確認してみてください。
お金・契約の情報
※「-」と表示されているものは、実際は料金が発生するものもございます。詳細はお問い合わせください。
| 家賃 | 8.7万円 | 管理費・共益費 | 1万円 |
|---|---|---|---|
| 敷金 | なし | 礼金 | 8.7万円 |
| 入居決定でお祝い金最大100,000円 | |||
| 保証金 | - | 償却・敷引 | - |
| 住宅保険料 | - | 更新料 | - |
| 保証会社利用 | 必須 | 保証会社名 | - |
| 保証会社費用 | - | 保証会社備考 | 保証会社利用必 初回:30% 年毎:1万円 月額:330円 |
| 契約形態 | - | 契約期間 | - |
| 入居・引渡期間 | 即時 | 現況 | - |
| 入居可能条件 | ペット相談 | ||
| 契約備考 | 東京メトロ東西線南行徳駅徒歩23分/江戸川区・江東区・市川市・浦安市 情報量ナンバーワン!東京メトロ東西線 都営新宿線 JR京葉線でのお部屋探しはタウンハウジング西葛西店にお任せ下さい!ステキなお部屋探しを全力でサポート致します!※短期解約違約金あり(1年未満解約時、賃料1ヵ月分) 更新料新賃料(ヶ月):1.00ヶ月 1K 単身者可/ペット相談 普通借家2年 バストイレ別、バルコニー、エアコン、ガスコンロ対応、クロゼット、フローリング、シャワー付洗面台、TVインターホン、浴室乾燥機、オートロック、室内洗濯置、シューズボックス、システムキッチン、温水洗浄便座、脱衣所、エレベーター、洗面所独立、洗面化粧台、2口コンロ、駐輪場、宅配ボックス、即入居可、閑静な住宅地、BS・CS、敷金不要、防犯カメラ、ペット相談、全居室収納、全居室洋室、保証人不要、単身者相談、全居室フローリング、ネット専用回線、駅まで平坦、ネット使用料不要、エアコン全室、保証金不要、築2年以内、平坦地、駅徒歩10分以内、24時間ゴミ出し可、敷地内ごみ置き場、東南向き、全居室6畳以上、都市ガス、洗面所にドア、礼金1ヶ月、IT重説対応物件、初期費用カード決済可 敷金積み増し【ペット飼育の場合敷金1ヶ月(総額)】 | ||
部屋の情報
| 間取り | 1K | 専有面積 | 22.76m2 |
|---|---|---|---|
| 所在階 / 向き | 1階 / 南東 | バルコニー面積 | - |
| 水道 / ガス | - | ||
| 設備 | バス・トイレ別、オートロック、テレビドアホン、宅配ボックス、浴室乾燥機、インターネット対応、システムキッチン、エアコン、エレベーター、温水洗浄便座、南向き、バルコニー、フローリング、洗髪洗面化粧台、2口コンロ、コンロ:ガス、CSアンテナ、BSアンテナ、インターネット使用料無料、洗濯機:室内 | ||
| 当社物件ID | 159751777 | ||
建物の情報
| 建物名 | S-RESIDENCE行徳COURANT | ||
|---|---|---|---|
| 所在地 | 千葉県市川市湊 | ||
| 交通 | 東京メトロ東西線 行徳駅 徒歩8分 東京メトロ東西線 妙典駅 徒歩22分 都営新宿線 瑞江駅 徒歩49分 | ||
| 階数 | 5階建 | 総戸数 | 53戸 |
| 築年月 | 2025年11月 / 築1年 | エレベーター | あり |
| 駐車場 | 空有 19800円 | バイク置き場 | - |
| 駐輪場 | あり | 管理人/管理会社 | - |
| 周辺環境 | その他 マルエツ(スーパー)まで560m その他 西友行徳店(スーパー)まで660m その他 アコレ伊勢宿店(スーパー)まで720m その他 セブンイレブン行徳駅前2丁目店(コンビニ)まで480m その他 セブンイレブン市川行徳駅前1丁目店(コンビニ)まで650m その他 ドラッグストアスマイル行徳店(ドラッグストア)まで490m | ||
| 建物種別 | マンション | 建物構造 | RC(鉄筋コンクリート) |
この部屋の取扱い不動産会社
| 会社名 | (株)タウンハウジング東京 西葛西店(SUUMO経由) | ||
|---|---|---|---|
| 所在地 | 東京都江戸川区西葛西5-6-8 Luna et SoleilIII 1階 | 交通 | - |
| 営業時間 | AM10:00~PM7:00 | 定休日 | 水曜日 |
| 免許番号 | 国土交通大臣9926 | 取引態様 | 仲介 |
| 不動産会社管理番号 | 100469384332 | 当社管理番号 | 89 |
| 所属団体 | (公社)東京都宅地建物取引業協会会員 | ||
| 公正取引協議会 | (公社)首都圏不動産公正取引協議会加盟 | ||
| 取扱い物件情報 | 物件詳細へ | ||
※各種情報と現状に差異がある場合は、現状優先となります。問い合わせをすることで、より詳しい条件、情報を確認する事ができます。
提供:(株)タウンハウジング東京 西葛西店(SUUMO経由)
この物件が気になったら掲載期限まであと10日
S-RESIDENCE行徳COURANTに条件(家賃・エリア)が近い物件一覧
| 写真 | 家賃 管理費等 | 敷金 礼金 | 間取り 専有面積 | 築年数 | 最寄り駅 所在地 | キープ | 詳細 |
|---|---|---|---|---|---|---|---|
アパート エストレラII(1LDK/1階) | |||||||
![]() | 9.5万円 4,100円 | なし 9.5万円 | 1LDK 44.2m2 | 築1年 | 流鉄流山線 小金城趾駅 徒歩19分 JR常磐線 北小金駅 徒歩21分 つくばエクスプレス 流山セントラルパーク駅 徒歩24分 千葉県松戸市幸田 | 詳細を見る | |
マンション エルスタンザ船橋(1K/2階) | |||||||
![]() | 6.9万円 5,000円 | なし 6.9万円 | 1K 23.18m2 | 築11年 | 京成本線 京成船橋駅 徒歩13分 京成本線 大神宮下駅 徒歩13分 JR総武線 船橋駅 徒歩15分 千葉県船橋市湊町 | 詳細を見る | |
マンション ドゥーエ西船橋(1K/2階) | |||||||
![]() | 9.8万円 8,000円 | 9.8万円 9.8万円 | 1K 24.96m2 | 築10年 | JR総武線 西船橋駅 徒歩3分 東京メトロ東西線 西船橋駅 徒歩3分 JR京葉線 西船橋駅 徒歩3分 千葉県船橋市印内町 | 詳細を見る | |
アパート ミルトニア(1LDK/2階) | |||||||
![]() | 7.7万円 2,300円 | なし 15.4万円 | 1LDK 44.9m2 | 築20年 | 武蔵野線 新八柱駅 徒歩17分 京成電鉄松戸線 八柱駅 徒歩17分 千葉県松戸市牧の原2丁目 | 詳細を見る | |
マンション 夏見パークヒルズ(3DK/2階) | |||||||
![]() | 7.6万円 4,000円 | 7.6万円 7.6万円 | 3DK 51.61m2 | 築42年 | 東葉高速鉄道 東海神駅 徒歩10分 JR総武線 船橋駅 徒歩12分 京成本線 京成船橋駅 徒歩13分 千葉県船橋市夏見 | 詳細を見る | |
アパート プレオネ(2LDK/2階) | |||||||
![]() | 14万円 7,500円 | なし 28万円 | 2LDK 53.79m2 | 築11年 | 東京メトロ東西線 原木中山駅 徒歩13分 JR総武線 西船橋駅 徒歩16分 京成本線 東中山駅 徒歩24分 千葉県市川市原木 | 詳細を見る | |
マンション ラフィーナー松戸(1K/3階) | |||||||
![]() | 7.6万円 1.1万円 | なし 7.6万円 | 1K 20.89m2 | 築1年 | 常磐線 松戸駅 徒歩11分 千葉県松戸市岩瀬 | 詳細を見る | |








/105x80-f1-q70-wp1)