賃貸アパート
GREEN GARDENの賃貸物件情報(1K/1階)
| 家賃 | 管理費等 | 敷金 | 礼金 | 間取り | 専有面積 |
|---|---|---|---|---|---|
| 5.2万円 | 3,000円 | なし | なし | 1K | 21.98m2 |
入居決定でお祝い金最大100,000円
- 保証金
- -
- 償却・敷引
- -
- 築年数
- 新築(築1年)
- 所在階
- 1階
- 向き
- -
Point
独立洗面台を備えているので、歯ブラシやドライヤーなどもまとめてスッキリ収納できます。
提供:ハウスコム千葉株式会社 千葉中央店

詳細情報 GREEN GARDEN
物件紹介
GREEN GARDENは千葉都市モノレール天台駅から徒歩10分にあり、駅近で通勤通学に便利なアパートです。
このお部屋のインターホンにはTVモニタがついているため、相手の顔を確認してから来客対応することができます。
フローリングのお部屋なのでお掃除もラクラク。キッチンはシステムキッチン仕様になっていますので、お料理好きの方にもぴったり。また、バス・トイレは別で、のんびりお風呂タイムも楽しめるでしょう。
通信設備面では、インターネットが無料で使えるので、月々の出費を抑えられるのも魅力です。また、CATVにも対応しているので、おうち時間も充実するでしょう(別途工事、CATVの契約料等が必要な場合あり)。
コンビニまで徒歩13分の場所にあり、日用品や食料品のお買い物にも便利です。
このお部屋のインターホンにはTVモニタがついているため、相手の顔を確認してから来客対応することができます。
フローリングのお部屋なのでお掃除もラクラク。キッチンはシステムキッチン仕様になっていますので、お料理好きの方にもぴったり。また、バス・トイレは別で、のんびりお風呂タイムも楽しめるでしょう。
通信設備面では、インターネットが無料で使えるので、月々の出費を抑えられるのも魅力です。また、CATVにも対応しているので、おうち時間も充実するでしょう(別途工事、CATVの契約料等が必要な場合あり)。
コンビニまで徒歩13分の場所にあり、日用品や食料品のお買い物にも便利です。
お金・契約の情報
※「-」と表示されているものは、実際は料金が発生するものもございます。詳細はお問い合わせください。
| 家賃 | 5.2万円 | 管理費・共益費 | 3,000円 |
|---|---|---|---|
| 敷金 | なし | 礼金 | なし |
| 入居決定でお祝い金最大100,000円 | |||
| 保証金 | - | 償却・敷引 | - |
| 住宅保険料 | 1円 | 更新料 | - |
| 保証会社利用 | 必須 | 保証会社名 | - |
| 保証会社費用 | - | 保証会社備考 | JPMCファイナンス B初回60%(最低額30000円)・年間更新料10000円 C初 回80%(最低額40000円) ※各プラン月額事務手数料440円(税込) |
| 契約形態 | - | 契約期間 | 2年 |
| 入居・引渡期間 | 相談 | 現況 | - |
| 契約備考 | 24時間緊急対応1870円 税込(月額)、 消臭抗菌施工費12100円、 外国人:その他費用 コール241650円 税込(月額)、 スマートロック設定登録料38500円 3月完成予定退去時払い: 室内クリーニング費55000円(税込)、エアコン清掃 費11000円(税込) 1台短期解約違約金あり (1年未満:月額合計額の1ヶ月分) 駐輪場:有料 その他設備/条件:室内洗濯機置き場、独立洗面台、クローゼット | ||
部屋の情報
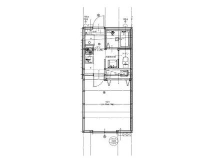
| 間取り | 1K | 専有面積 | 21.98m2 |
|---|---|---|---|
| 間取り詳細 | 洋室(7帖) | ||
| 所在階 / 向き | 1階 / - | バルコニー面積 | - |
| 水道 / ガス | - | ||
| 設備 | バス・トイレ別、テレビドアホン、インターネット対応、システムキッチン、エアコン、温水洗浄便座、バルコニー、フローリング、2口コンロ、CATV、インターネット使用料無料 | ||
| 当社物件ID | 160379976 | ||
建物の情報
| 建物名 | GREEN GARDEN | ||
|---|---|---|---|
| 所在地 | 千葉県千葉市稲毛区穴川2丁目 | ||
| 交通 | 千葉都市モノレール 天台駅 徒歩10分 千葉都市モノレール 穴川駅(千葉) 徒歩13分 | ||
| 階数 | 2階建 | 総戸数 | - |
| 築年月 | 2026年02月 / 新築(築1年) | エレベーター | - |
| 駐車場 | - | バイク置き場 | - |
| 駐輪場 | あり | 管理人/管理会社 | - |
| 周辺環境 | コンビニ 徒歩13分(1008m) 販売店 徒歩10分(743m) その他 ドラッグストア その他 公園 その他 銀行 その他 * | ||
| 建物種別 | アパート | 建物構造 | 木造 |
この部屋の取扱い不動産会社
| 会社名 | ハウスコム千葉株式会社 千葉店 | ||
|---|---|---|---|
| 所在地 | 千葉県千葉市中央区2-11勝山ビル4階 | 交通 | - |
| 営業時間 | 10:00~18:00 | 定休日 | - |
| 免許番号 | 千葉県知事(1)第18235号 | 取引態様 | 仲介 |
| 不動産会社管理番号 | HC2-5377409-102-0004 | 当社管理番号 | 468 |
| 所属団体 | 、 | ||
| 取扱い物件情報 | 物件詳細へ | ||
※各種情報と現状に差異がある場合は、現状優先となります。問い合わせをすることで、より詳しい条件、情報を確認する事ができます。
提供:ハウスコム千葉株式会社 千葉店
この物件が気になったら掲載期限まであと5日
GREEN GARDENに条件(家賃・エリア)が近い物件一覧
| 写真 | 家賃 管理費等 | 敷金 礼金 | 間取り 専有面積 | 築年数 | 最寄り駅 所在地 | キープ | 詳細 |
|---|---|---|---|---|---|---|---|
マンション プリベール(2DK/2階) | |||||||
![]() | 4.7万円 なし | 4.7万円 なし | 2DK 42.12m2 | 築33年 | JR内房線 姉ケ崎駅 徒歩2分 千葉県市原市姉崎 | 詳細を見る | |
アパート ピュアハイツ稲毛1号棟(1LDK/2階) | |||||||
![]() | 7万円 4,000円 | 7万円 7万円 | 1LDK 40.5m2 | 築18年 | 京成千葉線 京成稲毛駅 徒歩7分 JR総武線 稲毛駅 徒歩15分 JR京葉線 稲毛海岸駅 徒歩25分 千葉県千葉市稲毛区稲毛東 | 詳細を見る | |
アパート フォレストサイド(2K/2階) | |||||||
![]() | 4.2万円 なし | なし なし | 2K 46.37m2 | 築31年 | 千葉県茂原市綱島 | 詳細を見る | |
マンション TRAPEZIO(ワンルーム/2階) | |||||||
![]() | 5.8万円 5,000円 | なし 5.8万円 | ワンルーム 30.8m2 | 築11年 | 内房線 姉ケ崎駅 徒歩10分 千葉県市原市姉崎 | 詳細を見る | |
アパート グレース茂原I(2DK/1階) | |||||||
![]() | 3.3万円 3,000円 | なし なし | 2DK 43.79m2 | 築37年 | JR外房線 茂原駅 徒歩33分 千葉県茂原市中部 | 詳細を見る | |
アパート エスポワール(1LDK/1階) | |||||||
![]() | 4.95万円 2,200円 | なし なし | 1LDK 45.89m2 | 築12年 | 千葉県茂原市大芝 | 詳細を見る | |
アパート トレジャー(1LDK/1階) | |||||||
![]() | 5.1万円 2,200円 | なし なし | 1LDK 50.05m2 | 築12年 | 千葉県茂原市大芝 | 詳細を見る | |








