賃貸アパート
成田ビルの賃貸物件情報(ワンルーム/2階)
| 家賃 | 管理費等 | 敷金 | 礼金 | 間取り | 専有面積 |
|---|---|---|---|---|---|
| 6万円 | なし | 6万円 | 6万円 | ワンルーム | 21.48m2 |
入居決定でお祝い金最大100,000円
- 保証金
- -
- 償却・敷引
- -
- 築年数
- 築46年
- 所在階
- 2階
- 向き
- -
- 交通
- 西武池袋線 ひばりケ丘駅(東京) 徒歩4分
西武池袋線 東久留米駅 徒歩26分
西武池袋線 保谷駅 徒歩30分
- 所在地
- 埼玉県新座市栗原
成田ビル
[地図を表示]
Point
◎生活便利な住環境◎エアコン◎エアコン◎室内洗濯機置場◎経済的な都市ガス◎お部屋探しならLiVLifeEstate株式会社におまかせください。
提供:LiV Life Estate(株)ひばりヶ丘店(SUUMO経由)

詳細情報 成田ビル
物件紹介
成田ビルは西武池袋線ひばりケ丘駅から徒歩4分にあり、駅近で通勤通学に便利なアパートです。
このお部屋は2階以上に位置しているので、通行人や周囲の住人からの視線が気になりにくく、防犯面でも安心です。
人気の角部屋で周囲の居住者の生活音も気になりにくく、また、フローリングのお部屋なのでお掃除もラクラク。
このお部屋は2階以上に位置しているので、通行人や周囲の住人からの視線が気になりにくく、防犯面でも安心です。
人気の角部屋で周囲の居住者の生活音も気になりにくく、また、フローリングのお部屋なのでお掃除もラクラク。
お金・契約の情報
※「-」と表示されているものは、実際は料金が発生するものもございます。詳細はお問い合わせください。
| 家賃 | 6万円 | 管理費・共益費 | なし |
|---|---|---|---|
| 敷金 | 6万円 | 礼金 | 6万円 |
| 入居決定でお祝い金最大100,000円 | |||
| 保証金 | - | 償却・敷引 | - |
| 住宅保険料 | - | 更新料 | - |
| 保証会社利用 | 必須 | 保証会社名 | - |
| 保証会社費用 | - | 保証会社備考 | 保証会社利用必 初回保証料50パーセント 1年ごとに1万円 |
| 契約形態 | - | 契約期間 | - |
| 入居・引渡期間 | 即時 | 現況 | - |
| 契約備考 | 西東京市・東久留米市・新座市・清瀬市・練馬区・東村山市・所沢市等周辺エリアのお部屋探しなら情報量豊富なLiVLifeEstate株式会社にお任せください。賃料・初期費用の減額交渉、入居日の先延ばし交渉等、経験豊富なスタッフが全力で交渉致します。全物件初期費用カード決済OK。 ワンルーム 普通借家2年 損保【要】 エアコン、フローリング、室内洗濯置、陽当り良好、角住戸、駐輪場、押入、即入居可、2面採光、最上階、全居室洋室、保証人不要、2駅利用可、3駅以上利用可、駅徒歩5分以内、駅徒歩10分以内、上階無し、都市ガス、初期費用カード決済可 | ||
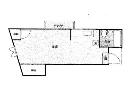
部屋の情報
| 間取り | ワンルーム | 専有面積 | 21.48m2 |
|---|---|---|---|
| 所在階 / 向き | 2階 / - | バルコニー面積 | - |
| 水道 / ガス | - | ||
| 設備 | 2階以上、エアコン、角部屋、フローリング、洗濯機:室内 | ||
| 当社物件ID | 160496847 | ||
建物の情報
| 建物名 | 成田ビル | ||
|---|---|---|---|
| 所在地 | 埼玉県新座市栗原 | ||
| 交通 | 西武池袋線 ひばりケ丘駅(東京) 徒歩4分 西武池袋線 東久留米駅 徒歩26分 西武池袋線 保谷駅 徒歩30分 | ||
| 階数 | 2階建 | 総戸数 | - |
| 築年月 | 1980年04月 / 築46年 | エレベーター | - |
| 駐車場 | なし | バイク置き場 | - |
| 駐輪場 | あり | 管理人/管理会社 | - |
| 周辺環境 | その他 ドラッグセイムス 西武ひばりケ丘店(ドラッグストア)まで111m その他 キッチンオリジン ひばりが丘北口店(飲食店)まで184m その他 なか卯 ひばりが丘店(飲食店)まで184m その他 やさいのちから ひばりヶ丘駅北通り店(スーパー)まで337m その他 カレーハウスCoCo壱番屋 西武ひばりケ丘北口店(飲食店)まで186m その他 ファミリーマート ひばりヶ丘駅北店(コンビニ)まで288m | ||
| 建物種別 | アパート | 建物構造 | 木造 |
この部屋の取扱い不動産会社
| 会社名 | LiV Life Estate(株)ひばりヶ丘店(SUUMO経由) | ||
|---|---|---|---|
| 所在地 | 東京都西東京市ひばりが丘北3-5-19カマタビル2F | 交通 | - |
| 営業時間 | 10:00~19:00 事前連絡で時間外予約可 | 定休日 | 水曜日 |
| 免許番号 | 東京都知事106673 | 取引態様 | 仲介 |
| 不動産会社管理番号 | 100491350741 | 当社管理番号 | 89 |
| 取扱い物件情報 | 物件詳細へ | ||
※各種情報と現状に差異がある場合は、現状優先となります。問い合わせをすることで、より詳しい条件、情報を確認する事ができます。
提供:LiV Life Estate(株)ひばりヶ丘店(SUUMO経由)
この物件が気になったら掲載期限まであと10日
成田ビルに条件(家賃・エリア)が近い物件一覧
| 写真 | 家賃 管理費等 | 敷金 礼金 | 間取り 専有面積 | 築年数 | 最寄り駅 所在地 | キープ | 詳細 |
|---|---|---|---|---|---|---|---|
アパート グレース・KIYOSE(ワンルーム/2階) | |||||||
![]() | 3.8万円 3,000円 | なし なし | ワンルーム 18m2 | 築36年 | 西武池袋線 清瀬駅 徒歩12分 西武池袋線 東久留米駅 徒歩17分 埼玉県新座市新堀 | 詳細を見る | |
アパート ROBOT HOME 東所沢Ⅴ(1LDK/1階) | |||||||
![]() | 8.3万円 3,000円 | なし 8.3万円 | 1LDK 29.01m2 | 新築 | 武蔵野線 東所沢駅 徒歩8分 埼玉県所沢市東所沢2丁目 | 詳細を見る | |
アパート カーサナガカワ(2K/2階) | |||||||
![]() | 4.7万円 3,000円 | なし なし | 2K 33.2m2 | 築39年 | 西武池袋線 小手指駅 徒歩17分 西武新宿線 新所沢駅 徒歩18分 西武新宿線 航空公園駅 徒歩30分 埼玉県所沢市北中 | 詳細を見る | |
アパート プライムヒルズ新所沢(1K/1階) | |||||||
![]() | 5.9万円 2,000円 | 5.9万円 5.9万円 | 1K 28.56m2 | 築18年 | 西武新宿線 新所沢駅 徒歩8分 西武新宿線 航空公園駅 徒歩14分 西武池袋線 西所沢駅 徒歩29分 埼玉県所沢市弥生町 | 詳細を見る | |
アパート ヴィヴレスクエア(2DK/2階) | |||||||
![]() | 7.3万円 2,000円 | 7.3万円 なし | 2DK 39.75m2 | 築33年 | 東武東上線 朝霞駅 徒歩7分 東京メトロ副都心線 和光市駅 徒歩20分 東武東上線 朝霞台駅 徒歩39分 埼玉県朝霞市本町 | 詳細を見る | |
マンション 志木昭和ビル(2LDK/2階) | |||||||
![]() | 6.9万円 3,000円 | 6.9万円 なし | 2LDK 45m2 | 築37年 | 東武鉄道東上線 志木駅 徒歩15分 埼玉県志木市柏町1丁目 | 詳細を見る | |
アパート パナハイツ岡田(1K/1階) | |||||||
![]() | 5万円 2,000円 | なし なし | 1K 17.95m2 | 築24年 | 西武池袋線 ひばりケ丘駅(東京) 徒歩5分 西武池袋線 東久留米駅 徒歩24分 西武池袋線 保谷駅 徒歩33分 埼玉県新座市栗原 | 詳細を見る | |
アパート スマイル・ナイン(ワンルーム/1階) | |||||||
![]() | 6.1万円 3,000円 | なし なし | ワンルーム 25m2 | 築6年 | 西武新宿線 航空公園駅 徒歩4分 西武新宿線 新所沢駅 徒歩14分 西武池袋線 所沢駅 徒歩20分 埼玉県所沢市喜多町 | 詳細を見る | |









