賃貸マンション
パシフィックロイヤルコートみなとみらい アーバンタワーの賃貸物件情報(ワンルーム/13階)
| 家賃 | 管理費等 | 敷金 | 礼金 | 間取り | 専有面積 |
|---|---|---|---|---|---|
| 16万円 | 1.5万円 | 16万円 | 32万円 | ワンルーム | 38.98m2 |
入居決定でお祝い金最大100,000円
- 保証金
- -
- 償却・敷引
- -
- 築年数
- 築18年
- 所在階
- 13階
- 向き
- 東
Point
★敷地内ゲート付屋内タワーパーキング空有★大型バイク駐輪場契約可能★敷地内にまいばすけっと・道路向いにOKストア・西松屋・100円ショップ・セブンイレブン★隣地に高島中央公園★臨港パーク徒歩3分★
提供:CLC不動産コミュニティ(株)横浜店(SUUMO経由)

詳細情報 パシフィックロイヤルコートみなとみらい アーバンタワー
物件紹介
パシフィックロイヤルコートみなとみらい アーバンタワーはみなとみらい線新高島駅から徒歩5分にあり、駅近で通勤通学に便利なマンションです。
このお部屋は2階以上に位置しているので、通行人や周囲の住人からの視線が気になりにくく、防犯面でも安心。建物のエントランスはオートロックがついており、インターホンにはTVモニタもついているため、相手の顔を確認してから来客対応することができます。
人気の角部屋で周囲の居住者の生活音も気になりにくく、また、フローリングのお部屋なのでお掃除もラクラク。キッチンはシステムキッチン仕様になっていますので、お料理好きの方にもぴったり。バス・トイレは別なので、のんびりお風呂タイムも楽しめるでしょう。また、雨の日でも浴室乾燥機を使えば、お洗濯も問題ありません。
通信設備面では、インターネット接続が可能です。また、BSアンテナもありますので、おうち時間も充実するでしょう(別途工事、契約料が必要な場合あり)。
建物にはエレベーターがついているので、重い荷物があっても安心。共用部には宅配ボックスが設定されているので、不在の時にも荷物を受け取ることができます。
このお部屋は2階以上に位置しているので、通行人や周囲の住人からの視線が気になりにくく、防犯面でも安心。建物のエントランスはオートロックがついており、インターホンにはTVモニタもついているため、相手の顔を確認してから来客対応することができます。
人気の角部屋で周囲の居住者の生活音も気になりにくく、また、フローリングのお部屋なのでお掃除もラクラク。キッチンはシステムキッチン仕様になっていますので、お料理好きの方にもぴったり。バス・トイレは別なので、のんびりお風呂タイムも楽しめるでしょう。また、雨の日でも浴室乾燥機を使えば、お洗濯も問題ありません。
通信設備面では、インターネット接続が可能です。また、BSアンテナもありますので、おうち時間も充実するでしょう(別途工事、契約料が必要な場合あり)。
建物にはエレベーターがついているので、重い荷物があっても安心。共用部には宅配ボックスが設定されているので、不在の時にも荷物を受け取ることができます。
お金・契約の情報
※「-」と表示されているものは、実際は料金が発生するものもございます。詳細はお問い合わせください。
| 家賃 | 16万円 | 管理費・共益費 | 1.5万円 |
|---|---|---|---|
| 敷金 | 16万円 | 礼金 | 32万円 |
| 入居決定でお祝い金最大100,000円 | |||
| 保証金 | - | 償却・敷引 | - |
| 住宅保険料 | - | 更新料 | - |
| 保証会社利用 | 必須 | 保証会社名 | - |
| 保証会社費用 | - | 保証会社備考 | 保証会社利用必 月々3.4%+800円 又は 初回60% 以降毎年1万円 |
| 契約形態 | 定期借家 | 契約期間 | 2年 |
| 入居・引渡期間 | - | 現況 | - |
| 契約備考 | 横浜市ブルーライン高島町駅徒歩15分/常駐管理/★贅沢なタワーライフが始まる★新しい都市構想に呼応するツインタワー★迎賓エントランスは、都会的な空間と光が演出するコントラストが特徴で豊かな開放感と品格を醸し出す吹き抜け構造★生ゴミなどを手軽に処理するディスポーザーを設置★遮音性にもこだわり★床スラブ厚200m以上・床仕上材LL45等級・遮音性に優れたエアタイトサッシ★コンシェルジュサービスあり★クリーニング取次・宅配便・ハイヤー手配など★ バイク置場:空有:5500円/月 ワンルーム 単身者可 定期借家2年 バストイレ別、バルコニー、エアコン、クロゼット、フローリング、シャワー付洗面台、TVインターホン、浴室乾燥機、オートロック、室内洗濯置、シューズボックス、システムキッチン、角住戸、温水洗浄便座、脱衣所、エレベーター、洗面所独立、洗面化粧台、駐輪場、宅配ボックス、光ファイバー、対面式キッチン、防犯カメラ、IHクッキングヒーター、24時間有人管理、保証人不要、敷金1ヶ月、バイク置場、カードキー、全居室フローリング、玄関ホール、ネット専用回線、浄水器、エアコン全室、保証金不要、ディスポーザー、バリアフリー、電子キー、エレベーター2基、シャッター車庫、セントラル空調、大型車庫、タワー型マンション、集会所、ゲストルーム、ゴミ回収サービス、24時間ゴミ出し可、敷地内ごみ置き場、地下車庫、電動シャッター車庫、セキュリティ会社加入済、浴室床暖房、三面鏡付洗面化粧台、ビルトインエアコン、BS、高速ネット対応、礼金2ヶ月、IT重説対応物件、初期費用カード決済可、家賃カード決済可 入居日:'26年4月下旬 | ||
部屋の情報
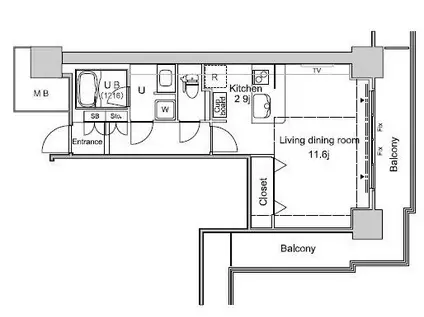
| 間取り | ワンルーム | 専有面積 | 38.98m2 |
|---|---|---|---|
| 所在階 / 向き | 13階 / 東 | バルコニー面積 | - |
| 水道 / ガス | - | ||
| 設備 | バス・トイレ別、2階以上、オートロック、テレビドアホン、宅配ボックス、浴室乾燥機、インターネット対応、システムキッチン、エアコン、エレベーター、温水洗浄便座、角部屋、バルコニー、フローリング、洗髪洗面化粧台、タワーマンション、コンロ:IH、BSアンテナ、洗濯機:室内 | ||
| 当社物件ID | 40942274 | ||
建物の情報
| 建物名 | パシフィックロイヤルコートみなとみらい アーバンタワー | ||
|---|---|---|---|
| 所在地 | 神奈川県横浜市西区みなとみらい | ||
| 交通 | みなとみらい線 新高島駅 徒歩5分 みなとみらい線 みなとみらい駅 徒歩6分 JR東海道本線 横浜駅 徒歩12分 | ||
| 階数 | 29階建 | 総戸数 | 415戸 |
| 築年月 | 2008年06月 / 築18年 | エレベーター | あり |
| 駐車場 | 空有 27500円/駐2台可 | バイク置き場 | あり |
| 駐輪場 | あり | 管理人/管理会社 | - |
| 周辺環境 | その他 敷地内 まいばすけっと(ショッピングセンター)まで110m その他 物件正面 オーケーストア(ショッピングセンター)まで110m その他 徒歩3分★臨港パーク★(公園)まで740m その他 ★MARKIS★★(ショッピングセンター)まで690m その他 横浜ベイクォーター(ショッピングセンター)まで940m その他 ★★ランドマークタワー★★(ショッピングセンター)まで960m | ||
| 建物種別 | マンション | 建物構造 | RC(鉄筋コンクリート) |
この部屋の取扱い不動産会社
| 会社名 | (株)タウンハウジング神奈川 綱島店(SUUMO経由) | ||
|---|---|---|---|
| 所在地 | 神奈川県横浜市港北区綱島西1-1-32 シックスセンス3階 | 交通 | - |
| 営業時間 | AM10:00~PM7:00 | 定休日 | 水曜日 |
| 免許番号 | 国土交通大臣9928 | 取引態様 | 仲介 |
| 不動産会社管理番号 | 100490865720 | 当社管理番号 | 89 |
| 所属団体 | (公社)神奈川県宅地建物取引業協会会員 | ||
| 公正取引協議会 | (公社)首都圏不動産公正取引協議会加盟 | ||
| 取扱い物件情報 | 物件詳細へ | ||
※各種情報と現状に差異がある場合は、現状優先となります。問い合わせをすることで、より詳しい条件、情報を確認する事ができます。
提供:(株)タウンハウジング神奈川 綱島店(SUUMO経由)
この物件が気になったら掲載期限まであと11日
パシフィックロイヤルコートみなとみらい アーバンタワーに条件(家賃・エリア)が近い物件一覧
| 写真 | 家賃 管理費等 | 敷金 礼金 | 間取り 専有面積 | 築年数 | 最寄り駅 所在地 | キープ | 詳細 |
|---|---|---|---|---|---|---|---|
マンション RELUXIA GRANDE川崎(1K/5階) | |||||||
![]() | 11.95万円 1万円 | なし 11.95万円 | 1K 25.07m2 | 新築 | 京急大師線 京急川崎駅 徒歩8分 JR京浜東北線 川崎駅 徒歩15分 京急本線 六郷土手駅 徒歩22分 神奈川県川崎市幸区幸町 | 詳細を見る | |
マンション へーベルメゾン渡田向町(1LDK/3階) | |||||||
![]() | 12.8万円 7,000円 | 12.8万円 19.2万円 | 1LDK 43.56m2 | 築5年 | JR南武線 小田栄駅 徒歩9分 JR南武線 川崎新町駅 徒歩10分 京急本線 八丁畷駅 徒歩19分 神奈川県川崎市川崎区渡田向町 | 詳細を見る | |
アパート カーサフェリーチェ(1LDK/2階) | |||||||
![]() | 10.7万円 3,000円 | 10.7万円 10.7万円 | 1LDK 47.6m2 | 築18年 | JR南武線 稲田堤駅 徒歩6分 京王相模原線 京王稲田堤駅 徒歩9分 JR南武線 中野島駅 徒歩18分 神奈川県川崎市多摩区菅北浦 | 詳細を見る | |
マンション エクラージュ(2LDK/2階) | |||||||
![]() | 18.5万円 8,000円 | なし 37万円 | 2LDK 66.5m2 | 築1年 | 小田急電鉄多摩線 黒川駅(神奈川) 徒歩5分 神奈川県川崎市麻生区黒川 | 詳細を見る | |
マンション チャイルドシティ(2LDK/3階) | |||||||
![]() | 10万円 8,000円 | なし 10万円 | 2LDK 52.92m2 | 築27年 | 東急田園都市線 中央林間駅 徒歩4分 神奈川県大和市中央林間6丁目 | 詳細を見る | |
マンション 高座渋谷駅前マンション(2LDK/6階) | |||||||
![]() | 17.06万円 7,000円 | 17.06万円 なし | 2LDK 56.73m2 | 新築 | 小田急電鉄江ノ島線 高座渋谷駅 徒歩1分 神奈川県大和市渋谷5丁目 | 詳細を見る | |
アパート グランヒル湘南台(ワンルーム/2階) | |||||||
![]() | 9.7万円 4,000円 | 9.7万円 なし | ワンルーム 33.87m2 | 築1年 | 小田急江ノ島線 湘南台駅 徒歩12分 ブルーライン 下飯田駅 徒歩17分 相鉄いずみ野線 ゆめが丘駅 徒歩20分 神奈川県藤沢市湘南台 | 詳細を見る | |
アパート KUPULAU サウス(2LDK/1階) | |||||||
![]() | 11万円 8,000円 | 11万円 16.5万円 | 2LDK 57.41m2 | 築2年 | 小田急電鉄江ノ島線 善行駅 徒歩14分 神奈川県藤沢市善行5丁目 | 詳細を見る | |








