賃貸アパート
エトピリカの賃貸物件情報(1LDK/3階)
| 家賃 | 管理費等 | 敷金 | 礼金 | 間取り | 専有面積 |
|---|---|---|---|---|---|
| 6.4万円 | 1,000円 | 6.4万円 | 6.4万円 | 1LDK | 56.61m2 |
入居決定でお祝い金最大100,000円
Point
猫ちゃん飼育相談可(賃料+2000円、敷金+1か月)エアコン2基完備!竹尾インターアクセス良好!
提供:クライヴルーム(株)新潟駅南店(SUUMO経由)

詳細情報 エトピリカ
物件紹介
エトピリカはJR白新線東新潟駅から徒歩36分にあるアパートです。
このお部屋は2階以上に位置しているので、通行人や周囲の住人からの視線が気になりにくく、防犯面でも安心。インターホンにはTVモニタもついているため、相手の顔を確認してから来客対応することができます。
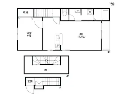
人気の南向き・フローリングのお部屋。角部屋でもあるため、周囲の居住者の生活音も気になりにくい場所です。キッチンはシステムキッチン仕様になっていますので、お料理好きの方にもぴったり。バス・トイレは別なので、のんびりお風呂タイムも楽しめるでしょう。また、雨の日でも浴室乾燥機を使えば、お洗濯も問題ありません。
通信設備面では、インターネットが無料で使えるので、月々の出費を抑えられるのも魅力です。また、BSアンテナもありますので、おうち時間も充実するでしょう(別途工事、BSの契約料等が必要な場合あり)。
ペット飼育の相談ができますので、あなたの大切な家族の一員も快適に暮らせるか、ぜひ確認してみてください。
このお部屋は2階以上に位置しているので、通行人や周囲の住人からの視線が気になりにくく、防犯面でも安心。インターホンにはTVモニタもついているため、相手の顔を確認してから来客対応することができます。
人気の南向き・フローリングのお部屋。角部屋でもあるため、周囲の居住者の生活音も気になりにくい場所です。キッチンはシステムキッチン仕様になっていますので、お料理好きの方にもぴったり。バス・トイレは別なので、のんびりお風呂タイムも楽しめるでしょう。また、雨の日でも浴室乾燥機を使えば、お洗濯も問題ありません。
通信設備面では、インターネットが無料で使えるので、月々の出費を抑えられるのも魅力です。また、BSアンテナもありますので、おうち時間も充実するでしょう(別途工事、BSの契約料等が必要な場合あり)。
ペット飼育の相談ができますので、あなたの大切な家族の一員も快適に暮らせるか、ぜひ確認してみてください。
お金・契約の情報
※「-」と表示されているものは、実際は料金が発生するものもございます。詳細はお問い合わせください。
| 家賃 | 6.4万円 | 管理費・共益費 | 1,000円 |
|---|---|---|---|
| 敷金 | 6.4万円 | 礼金 | 6.4万円 |
| 入居決定でお祝い金最大100,000円 | |||
| 保証金 | - | 償却・敷引 | - |
| 住宅保険料 | - | 更新料 | - |
| 保証会社利用 | 利用可 | 保証会社名 | - |
| 保証会社費用 | - | 保証会社備考 | 保証会社利用可 初回保証料:月額賃料総額の50% 更新保証料:1万円/1年毎 |
| 契約形態 | - | 契約期間 | - |
| 入居・引渡期間 | - | 現況 | - |
| 入居可能条件 | ペット相談 | ||
| 契約備考 | 町内費250円/月、トランクルーム使用料(任意)1000円/月 1LDK 単身者可/二人入居可/子供可/ペット相談 普通借家2年 損保【1.8万円2年】 バストイレ別、エアコン、クロゼット、フローリング、シャワー付洗面台、TVインターホン、浴室乾燥機、室内洗濯置、陽当り良好、シューズボックス、システムキッチン、南向き、追焚機能浴室、角住戸、温水洗浄便座、脱衣所、洗面所独立、洗面化粧台、2口コンロ、最上階、対面式キッチン、ペット相談、照明付、グリル付、敷金1ヶ月、全居室フローリング、エアコン2台、ネット使用料不要、キッチンに窓、眺望良好、浴室に窓、2駅利用可、上階無し、LDK12畳以上、都市ガス、洗面所にドア、南面バルコニー、BS、礼金1ヶ月、保証会社利用可、IT重説対応物件、初期費用カード決済可、全室照明付、通風良好 敷金積み増し【ペット飼育の場合敷金2ヶ月(総額)】 入居日:'26年1月中旬 | ||
部屋の情報
| 間取り | 1LDK | 専有面積 | 56.61m2 |
|---|---|---|---|
| 所在階 / 向き | 3階 / 南 | バルコニー面積 | - |
| 水道 / ガス | - | ||
| 設備 | バス・トイレ別、2階以上、テレビドアホン、浴室乾燥機、追い焚き、インターネット対応、システムキッチン、エアコン、温水洗浄便座、南向き、角部屋、バルコニー、フローリング、洗髪洗面化粧台、2口コンロ、BSアンテナ、インターネット使用料無料、洗濯機:室内 | ||
| 当社物件ID | 18993882 | ||
建物の情報
| 建物名 | エトピリカ | ||
|---|---|---|---|
| 所在地 | 新潟県新潟市東区下木戸 | ||
| 交通 | JR白新線 東新潟駅 徒歩36分 JR白新線 新潟駅 徒歩46分 | ||
| 階数 | 3階建 | 総戸数 | - |
| 築年月 | 2016年03月 / 築10年 | エレベーター | - |
| 駐車場 | 空有 4400円 | バイク置き場 | - |
| 駐輪場 | - | 管理人/管理会社 | - |
| 周辺環境 | その他 風の笛クリニック(病院)まで871m その他 セブンイレブン 新潟山木戸7丁目店(コンビニ)まで365m その他 ウオロク 牡丹山店(スーパー)まで437m その他 ドラッグストア マツモトキヨシ 山木戸店(ドラッグストア)まで647m その他 新潟東警察署(警察署・交番)まで51m その他 新潟牡丹山郵便局(郵便局)まで541m | ||
| 建物種別 | アパート | 建物構造 | 木造 |
この部屋の取扱い不動産会社
| 会社名 | クライヴルーム(株)新潟駅南店(SUUMO経由) | ||
|---|---|---|---|
| 所在地 | 新潟県新潟市中央区米山3-1-5 駅南ビル1階 | 交通 | - |
| 営業時間 | 10:00~19:00 | 定休日 | 水曜日 |
| 免許番号 | 新潟県知事5725 | 取引態様 | 仲介 |
| 不動産会社管理番号 | 100475917318 | 当社管理番号 | 89 |
| 所属団体 | (公社)新潟県宅地建物取引業協会会員 | ||
| 公正取引協議会 | (公社)首都圏不動産公正取引協議会加盟 | ||
| 取扱い物件情報 | 物件詳細へ | ||
※各種情報と現状に差異がある場合は、現状優先となります。問い合わせをすることで、より詳しい条件、情報を確認する事ができます。
提供:クライヴルーム(株)新潟駅南店(SUUMO経由)
この物件が気になったら掲載期限まであと10日
エトピリカに条件(家賃・エリア)が近い物件一覧
| 写真 | 家賃 管理費等 | 敷金 礼金 | 間取り 専有面積 | 築年数 | 最寄り駅 所在地 | キープ | 詳細 |
|---|---|---|---|---|---|---|---|
マンション 蓮潟 吉沢商会ビル(1DK/2階) | |||||||
![]() | 5.1万円 なし | 6万円 なし | 1DK 38m2 | 築33年 | JR信越本線 長岡駅 徒歩56分 新潟県長岡市蓮潟 | 詳細を見る | |
アパート グランディール(2LDK/1階) | |||||||
![]() | 6.2万円 2,000円 | 6.2万円 なし | 2LDK 59.62m2 | 築24年 | JR越後線 関屋駅(新潟) 徒歩53分 JR越後線 青山駅(新潟) 徒歩54分 新潟県新潟市中央区親松 | 詳細を見る | |
アパート レジデンス ヒカル(1K/2階) | |||||||
![]() | 6.75万円 2,800円 | なし 8.75万円 | 1K 36.11m2 | 新築 | JR信越本線 長岡駅 徒歩21分 新潟県長岡市川崎 | 詳細を見る | |
アパート メゾンこすもすB棟(2LDK/2階) | |||||||
![]() | 6.3万円 2,000円 | 6.3万円 6.3万円 | 2LDK 49.5m2 | 築44年 | JR信越本線 新潟駅 徒歩25分 新潟県新潟市中央区神道寺 | 詳細を見る | |
マンション レジデンスノーブル(1LDK/1階) | |||||||
![]() | 6.9万円 4,500円 | 6.9万円 なし | 1LDK 40.5m2 | 築1年 | JR弥彦線 燕三条駅 徒歩8分 新潟県三条市須頃 | 詳細を見る | |
アパート レオパレスアイビス AYA(1K/1階) | |||||||
![]() | 5.8万円 4,000円 | なし 5.8万円 | 1K 23.18m2 | 築15年 | 信越本線 新潟駅 徒歩14分 新潟県新潟市中央区沼垂東1丁目 | 詳細を見る | |
マンション VALIS(1K/3階) | |||||||
![]() | 4.9万円 3,000円 | 4.9万円 4.9万円 | 1K 30.22m2 | 築20年 | JR信越本線 新潟駅 徒歩25分 JR越後線 白山駅(新潟) 徒歩34分 新潟県新潟市中央区 | 詳細を見る | |
アパート セレーナ ミミ Ⅰ(1LDK/1階) | |||||||
![]() | 5.7万円 3,500円 | なし 5.7万円 | 1LDK 45.74m2 | 築7年 | 新潟県長岡市関原町3丁目 | 詳細を見る | |







/105x80-f1-q70-wp1)

