賃貸アパート
アーバン・上小の賃貸物件情報(1K/1階)
| 家賃 | 管理費等 | 敷金 | 礼金 | 間取り | 専有面積 |
|---|---|---|---|---|---|
| 6.8万円 | 3,000円 | 6.8万円 | なし | 1K | 31.5m2 |
入居決定でお祝い金最大100,000円
- 保証金
- -
- 償却・敷引
- -
- 築年数
- 築23年
- 所在階
- 1階
- 向き
- -
Point
◎埼玉県のお部屋探しなら当店にお任せ下さい。ネット非掲載物件多数ございます◎メールでのお問い合わせの際は、電話番号も記載頂きますとスムーズに御対応できます。【全物件初期費用クレジット払い可能】
提供:(株)OSラテルーム大宮駅前店(SUUMO経由)

詳細情報 アーバン・上小
物件紹介
アーバン・上小はJR京浜東北線大宮駅から徒歩18分にあるアパートです。
建物のエントランスはオートロックがついており、インターホンにはTVモニタもついているため、相手の顔を確認してから来客対応することができます。
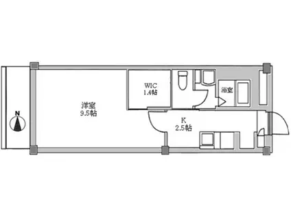
人気の角部屋で周囲の居住者の生活音も気になりにくく、また、フローリングのお部屋なのでお掃除もラクラク。室内にはウォークインクローゼットがありますので、たくさんの荷物も効率的に収納ができます。バス・トイレ別の仕様で、のんびりお風呂タイムも楽しめます。また、浴室乾燥機を使えば、雨の日でもお洗濯は問題ありません。
通信設備面ではCATVに対応しているので、おうち時間も充実するでしょう(別途工事、契約料が必要な場合あり)。
建物のエントランスはオートロックがついており、インターホンにはTVモニタもついているため、相手の顔を確認してから来客対応することができます。
人気の角部屋で周囲の居住者の生活音も気になりにくく、また、フローリングのお部屋なのでお掃除もラクラク。室内にはウォークインクローゼットがありますので、たくさんの荷物も効率的に収納ができます。バス・トイレ別の仕様で、のんびりお風呂タイムも楽しめます。また、浴室乾燥機を使えば、雨の日でもお洗濯は問題ありません。
通信設備面ではCATVに対応しているので、おうち時間も充実するでしょう(別途工事、契約料が必要な場合あり)。
お金・契約の情報
※「-」と表示されているものは、実際は料金が発生するものもございます。詳細はお問い合わせください。
| 家賃 | 6.8万円 | 管理費・共益費 | 3,000円 |
|---|---|---|---|
| 敷金 | 6.8万円 | 礼金 | なし |
| 入居決定でお祝い金最大100,000円 | |||
| 保証金 | - | 償却・敷引 | - |
| 住宅保険料 | - | 更新料 | - |
| 保証会社利用 | 必須 | 保証会社名 | - |
| 保証会社費用 | - | 保証会社備考 | 保証会社利用必 指定の保証会社【初回50%:月額保証料1%】 |
| 契約形態 | - | 契約期間 | - |
| 入居・引渡期間 | 即時 | 現況 | - |
| 契約備考 | ※仲介手数料 無料※『ご来店初めてのお客様・当物件を契約に限る』掲載の物件写真は実際の設備と異なることがありますのでご了承ください。現状優先での貸し出しとなります。 合計1.98万円(内訳:鍵交換代1.98万円) 自治会費 月額200円 1K 普通借家2年 損保【1.93万円2年】 バストイレ別、バルコニー、エアコン、フローリング、シャワー付洗面台、TVインターホン、浴室乾燥機、オートロック、室内洗濯置、シューズボックス、角住戸、温水洗浄便座、脱衣所、洗面所独立、洗面化粧台、駐輪場、CATV、即入居可、礼金不要、ウォークインクロゼット、保証人不要、仲介手数料不要、2沿線利用可、ディンプルキー、保証金不要、2駅利用可、3駅以上利用可、敷地内ごみ置き場、洗面所にドア、シャッター、保証会社利用可、IT重説対応物件、初期費用カード決済可 | ||
部屋の情報
| 間取り | 1K | 専有面積 | 31.5m2 |
|---|---|---|---|
| 所在階 / 向き | 1階 / - | バルコニー面積 | - |
| 水道 / ガス | - | ||
| 設備 | バス・トイレ別、オートロック、テレビドアホン、浴室乾燥機、ウォークインクローゼット、エアコン、温水洗浄便座、角部屋、バルコニー、フローリング、洗髪洗面化粧台、CATV、洗濯機:室内 | ||
| 当社物件ID | 102086452 | ||
建物の情報
| 建物名 | アーバン・上小 | ||
|---|---|---|---|
| 所在地 | 埼玉県さいたま市大宮区上小町 | ||
| 交通 | JR京浜東北線 大宮駅(埼玉) 徒歩18分 JR京浜東北線 さいたま新都心駅 バス乗車時間:28分 最寄りバス停で下車 徒歩4分 埼玉新都市交通伊奈線 鉄道博物館駅 バス乗車時間:4分 最寄りバス停で下車 徒歩10分 | ||
| 階数 | 3階建 | 総戸数 | - |
| 築年月 | 2003年02月 / 築23年 | エレベーター | - |
| 駐車場 | 空有 11000円 | バイク置き場 | - |
| 駐輪場 | あり | 管理人/管理会社 | - |
| 周辺環境 | その他 スーパーバリュー 大宮三橋店(スーパー)まで462m その他 平成国際大学設置準備室(大学・短大)まで126m その他 大宮西警察署 上小交番(警察署・交番)まで557m その他 さいたま市役所 三橋老人憩いの家 分館(役所)まで754m その他 ファミリーマート 大宮上小町店(コンビニ)まで325m その他 マルヤ 岩槻店(ショッピングセンター)まで1127m | ||
| 建物種別 | アパート | 建物構造 | 鉄骨造 |
この部屋の取扱い不動産会社
| 会社名 | (株)OSラテルーム大宮駅前店(SUUMO経由) | ||
|---|---|---|---|
| 所在地 | 埼玉県さいたま市大宮区桜木町2-5-7 高木ビル3階 | 交通 | - |
| 営業時間 | 10時~19時 | 定休日 | 水曜日 |
| 免許番号 | 国土交通大臣10788 | 取引態様 | 仲介 |
| 不動産会社管理番号 | 100484716167 | 当社管理番号 | 89 |
| 所属団体 | (公社)埼玉県宅地建物取引業協会会員 | ||
| 公正取引協議会 | (公社)首都圏不動産公正取引協議会加盟 | ||
| 取扱い物件情報 | 物件詳細へ | ||
※各種情報と現状に差異がある場合は、現状優先となります。問い合わせをすることで、より詳しい条件、情報を確認する事ができます。
提供:(株)OSラテルーム大宮駅前店(SUUMO経由)
この物件が気になったら掲載期限まであと10日
アーバン・上小に条件(家賃・エリア)が近い物件一覧
| 写真 | 家賃 管理費等 | 敷金 礼金 | 間取り 専有面積 | 築年数 | 最寄り駅 所在地 | キープ | 詳細 |
|---|---|---|---|---|---|---|---|
アパート 川越市アパート(1LDK/1階) | |||||||
![]() | 9.65万円 3,900円 | なし 9.65万円 | 1LDK 40.46m2 | 新築 | 川越線 的場駅 徒歩14分 川越線 笠幡駅 徒歩30分 埼玉県川越市 | 詳細を見る | |
アパート サウススターガーデン(1LDK/1階) | |||||||
![]() | 8.55万円 3,900円 | なし 8.55万円 | 1LDK 40.44m2 | 新築 | 西武新宿線 南大塚駅 徒歩23分 東武東上線 川越駅 徒歩42分 JR川越線 川越駅 徒歩42分 埼玉県川越市中台南 | 詳細を見る | |
アパート レスポワールⅠ(2LDK/2階) | |||||||
![]() | 8.1万円 7,000円 | なし 16.2万円 | 2LDK 59.5m2 | 築23年 | 川越線 的場駅 徒歩7分 川越線 笠幡駅 徒歩35分 西武鉄道新宿線 南大塚駅 徒歩50分 埼玉県川越市 | 詳細を見る | |
アパート ドルチェテラス川越南大塚(1DK/3階) | |||||||
![]() | 6.6万円 3,000円 | なし 6.6万円 | 1DK 26.48m2 | 新築 | 西武鉄道新宿線 南大塚駅 徒歩4分 西武鉄道新宿線 新狭山駅 徒歩37分 東武鉄道東上線 川越駅 徒歩42分 埼玉県川越市 | 詳細を見る | |
アパート リッツ アグリス(1LDK/2階) | |||||||
![]() | 6.7万円 2,900円 | なし 6.7万円 | 1LDK 43.47m2 | 築10年 | 東武鉄道東上線 川越駅 徒歩27分 川越線 川越駅 徒歩28分 西武鉄道新宿線 南大塚駅 徒歩29分 埼玉県川越市豊田町1丁目 | 詳細を見る | |
アパート ノーススターガーデン(2LDK/3階) | |||||||
![]() | 10.75万円 3,900円 | なし 10.75万円 | 2LDK 71.07m2 | 新築 | 西武鉄道新宿線 南大塚駅 徒歩23分 川越線 川越駅 徒歩39分 東武鉄道東上線 新河岸駅 徒歩43分 埼玉県川越市中台南1丁目 | 詳細を見る | |
マンション THE GARLANDS(1K/3階) | |||||||
![]() | 7.3万円 5,000円 | なし なし | 1K 21.69m2 | 築1年 | 京浜東北・根岸線 西川口駅 徒歩7分 京浜東北・根岸線 川口駅 徒歩22分 京浜東北・根岸線 蕨駅 徒歩32分 埼玉県川口市西川口4丁目 | 詳細を見る | |








