賃貸アパート
レオパレス錦見砂原の賃貸物件情報(1K/2階)
| 家賃 | 管理費等 | 敷金 | 礼金 | 間取り | 専有面積 |
|---|---|---|---|---|---|
| 5.3万円 | 4,500円 | なし | 5.3万円 | 1K | 28.02m2 |
入居決定でお祝い金最大100,000円
Point
家具家電付きです。
提供:アパマンショップ岩国店

詳細情報 レオパレス錦見砂原
物件紹介
レオパレス錦見砂原は岩徳線西岩国駅から徒歩15分にあるアパートです。
このお部屋は2階以上に位置しているので、通行人や周囲の住人からの視線が気になりにくく、防犯面でも安心。インターホンにはTVモニタもついているため、相手の顔を確認してから来客対応することができます。
バス・トイレ別の仕様で、のんびりお風呂タイムも楽しめます。また、浴室乾燥機を使えば、雨の日でもお洗濯は問題ありません。
通信設備面では、インターネット接続が可能です(別途工事、契約料が必要な場合あり)。
共用部には宅配ボックスが設定されているので、不在の時にも荷物を受け取ることができます。
このお部屋は2階以上に位置しているので、通行人や周囲の住人からの視線が気になりにくく、防犯面でも安心。インターホンにはTVモニタもついているため、相手の顔を確認してから来客対応することができます。
バス・トイレ別の仕様で、のんびりお風呂タイムも楽しめます。また、浴室乾燥機を使えば、雨の日でもお洗濯は問題ありません。
通信設備面では、インターネット接続が可能です(別途工事、契約料が必要な場合あり)。
共用部には宅配ボックスが設定されているので、不在の時にも荷物を受け取ることができます。
お金・契約の情報
※「-」と表示されているものは、実際は料金が発生するものもございます。詳細はお問い合わせください。
| 家賃 | 5.3万円 | 管理費・共益費 | 4,500円 |
|---|---|---|---|
| 敷金 | なし | 礼金 | 5.3万円 |
| 入居決定でお祝い金最大100,000円 | |||
| 保証金 | - | 償却・敷引 | - |
| 住宅保険料 | 2.668万円(2年) | 更新料 | - |
| 保証会社利用 | 必須 | 保証会社名 | プラザ賃貸保証 |
| 保証会社費用 | - | 保証会社備考 | 家賃等の100%または120% |
| 契約形態 | - | 契約期間 | 2年 |
| 入居・引渡期間 | 2026年04月中旬 | 現況 | - |
| 契約備考 | 環境維持費:1ヶ月550円(税込)、鍵交換費:ご契約時16500円(税込)、退去時清掃費:41800円(税込)、インターネット利用料:有料、更新手数料:16500円(税込)、保証委託料:必要 | ||
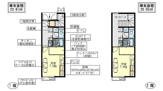
部屋の情報
| 間取り | 1K | 専有面積 | 28.02m2 |
|---|---|---|---|
| 所在階 / 向き | 2階 / - | バルコニー面積 | - |
| 水道 / ガス | - | ||
| 設備 | バス・トイレ別、テレビドアホン、宅配ボックス、浴室乾燥機、インターネット対応、温水洗浄便座 | ||
| 当社物件ID | 549553 | ||
建物の情報
| 建物名 | レオパレス錦見砂原 | ||
|---|---|---|---|
| 所在地 | 山口県岩国市岩国3丁目 | ||
| 交通 | 岩徳線 西岩国駅 徒歩15分 | ||
| 階数 | 2階建 | 総戸数 | 26戸 |
| 築年月 | 2006年10月 / 築20年 | エレベーター | - |
| 駐車場 | - | バイク置き場 | - |
| 駐輪場 | あり | 管理人/管理会社 | - |
| 周辺環境 | 小学校 岩国小学校 徒歩7分(543m) 病院 医療法人 岩国病院 徒歩4分(264m) その他 セブンイレブン 徒歩7分(523m) その他 セブンイレブン 徒歩8分(626m) その他 アルク西岩国店 徒歩12分(958m) その他 (株)丸久/川西店 徒歩17分(1342m) その他 錦帯橋 徒歩12分(946m) その他 セブンイレブン 徒歩15分(1156m) | ||
| 建物種別 | アパート | 建物構造 | 木造 |
この部屋の取扱い不動産会社
| 会社名 | アパマンショップ岩国店 | ||
|---|---|---|---|
| 所在地 | 山口県岩国市今津町1丁目 2-25 | 交通 | 山陽本線岩国から徒歩6分 |
| 営業時間 | 10:00〜17:30(土日祝も営業しております!) | 定休日 | - |
| 免許番号 | 山口県知事(8)2395 | 取引態様 | 仲介 |
| 不動産会社管理番号 | 74092310 | 当社管理番号 | 4 |
| 所属団体 | (公社)山口県宅地建物取引業協会 | ||
| 公正取引協議会 | 中国地区不動産公正取引協議会加盟 | ||
| 取扱い物件情報 | 物件詳細へ | ||
※各種情報と現状に差異がある場合は、現状優先となります。問い合わせをすることで、より詳しい条件、情報を確認する事ができます。
提供:アパマンショップ岩国店
この物件が気になったら掲載期限まであと11日
レオパレス錦見砂原に条件(家賃・エリア)が近い物件一覧
| 写真 | 家賃 管理費等 | 敷金 礼金 | 間取り 専有面積 | 築年数 | 最寄り駅 所在地 | キープ | 詳細 |
|---|---|---|---|---|---|---|---|
アパート コーポ光洋(2LDK/1階) | |||||||
![]() | 4万円 なし | 8万円 なし | 2LDK 40.05m2 | 築43年 | 山陽本線 南岩国駅 徒歩27分 山口県岩国市門前町2丁目 | 詳細を見る | |
アパート リバーサイドAPウエスト(1LDK/1階) | |||||||
![]() | 4.8万円 3,500円 | なし 5.8万円 | 1LDK 45.07m2 | 築13年 | 山陽新幹線 新岩国駅 徒歩15分 錦川鉄道錦川清流線 清流新岩国駅 徒歩18分 錦川鉄道錦川清流線 守内かさ神駅 徒歩38分 山口県岩国市御庄 | 詳細を見る | |
アパート BEST HOUSE VI(ワンルーム/2階) | |||||||
![]() | 5万円 2,300円 | なし 6万円 | ワンルーム 40.94m2 | 築6年 | JR山陽本線 光駅 徒歩24分 山口県光市木園 | 詳細を見る | |
マンション アーク徳山(3LDK/4階) | |||||||
![]() | 5.8万円 なし | 11.6万円 5.8万円 | 3LDK 59.92m2 | 築36年 | 山陽本線 徳山駅 徒歩30分 山口県周南市大字徳山 | 詳細を見る | |
アパート ハイツ若佐(3DK/1階) | |||||||
![]() | 6万円 なし | 12万円 なし | 3DK 61.27m2 | 築27年 | 岩徳線 岩国駅 徒歩20分 山口県岩国市旭町1丁目 | 詳細を見る | |
アパート レオネクストエクレール(1K/2階) | |||||||
![]() | 6万円 4,500円 | なし 6万円 | 1K 31.21m2 | 築11年 | 山陽本線 光駅 徒歩11分 山口県光市虹ケ丘7丁目 | 詳細を見る | |
アパート サンシャイン1(1LDK/2階) | |||||||
![]() | 5.55万円 2,800円 | なし 5.55万円 | 1LDK 50.74m2 | 新築 | 山口県光市室積中央町 | 詳細を見る | |
アパート リベラルI(1K/1階) | |||||||
![]() | 4.3万円 なし | 8.6万円 4.3万円 | 1K 27.79m2 | 築30年 | JR山陽本線 徳山駅 徒歩21分 山口県周南市大字徳山 | 詳細を見る | |





/105x80-f1-q70-wp1)



