賃貸アパート
リブリ・イーストヒルNⅡの賃貸物件情報(1K/3階)
| 家賃 | 管理費等 | 敷金 | 礼金 | 間取り | 専有面積 |
|---|---|---|---|---|---|
| 6.6万円 | 4,000円 | なし | 6.6万円 | 1K | 20.62m2 |
入居決定でお祝い金最大100,000円
- 保証金
- -
- 償却・敷引
- -
- 築年数
- 築13年
- 所在階
- 3階
- 向き
- 南
Point
収納はシューズボックス・クロゼットなどが備え付けられているので、衣類や日用品の収納に重宝します。
提供:ハウスコム千葉株式会社 津田沼店

詳細情報 リブリ・イーストヒルNⅡ
物件紹介
リブリ・イーストヒルNⅡは総武・中央緩行線東船橋駅から徒歩7分にあり、駅近で通勤通学に便利なアパートです。
このお部屋は2階以上に位置しているので、通行人や周囲の住人からの視線が気になりにくく、防犯面でも安心。インターホンにはTVモニタもついているため、相手の顔を確認してから来客対応することができます。
人気の南向き・フローリングのお部屋。角部屋でもあるため、周囲の居住者の生活音も気になりにくい場所です。キッチンはシステムキッチン仕様になっていますので、お料理好きの方にもぴったり。バス・トイレは別なので、のんびりお風呂タイムも楽しめるでしょう。また、雨の日でも浴室乾燥機を使えば、お洗濯も問題ありません。
通信設備面では、インターネットが無料で使えるので、月々の出費を抑えられるのも魅力です。また、BSアンテナもありますので、おうち時間も充実するでしょう(別途工事、BSの契約料等が必要な場合あり)。
コンビニまで徒歩7分の場所にあり、日用品や食料品のお買い物にも便利です。
このお部屋は2階以上に位置しているので、通行人や周囲の住人からの視線が気になりにくく、防犯面でも安心。インターホンにはTVモニタもついているため、相手の顔を確認してから来客対応することができます。
人気の南向き・フローリングのお部屋。角部屋でもあるため、周囲の居住者の生活音も気になりにくい場所です。キッチンはシステムキッチン仕様になっていますので、お料理好きの方にもぴったり。バス・トイレは別なので、のんびりお風呂タイムも楽しめるでしょう。また、雨の日でも浴室乾燥機を使えば、お洗濯も問題ありません。
通信設備面では、インターネットが無料で使えるので、月々の出費を抑えられるのも魅力です。また、BSアンテナもありますので、おうち時間も充実するでしょう(別途工事、BSの契約料等が必要な場合あり)。
コンビニまで徒歩7分の場所にあり、日用品や食料品のお買い物にも便利です。
お金・契約の情報
※「-」と表示されているものは、実際は料金が発生するものもございます。詳細はお問い合わせください。
| 家賃 | 6.6万円 | 管理費・共益費 | 4,000円 |
|---|---|---|---|
| 敷金 | なし | 礼金 | 6.6万円 |
| 入居決定でお祝い金最大100,000円 | |||
| 保証金 | - | 償却・敷引 | - |
| 住宅保険料 | 1円 | 更新料 | - |
| その他費用 | 消毒:1.65万円、7700円: | ||
| 保証会社利用 | 必須 | 保証会社名 | - |
| 保証会社費用 | - | 保証会社備考 | 初回保証委託料総賃料の1カ月分 月額1.1% |
| 契約形態 | - | 契約期間 | 2年 |
| 入居・引渡期間 | 2026年03月下旬 | 現況 | - |
| 契約備考 | 月額(リブリクラブ月額会費 2200円) 鍵交換費用:24200 室内清掃費用:36300 その他設備/条件:室内洗濯機置き場、セキュリティ会社有、クローゼット、シューズボックス | ||
部屋の情報
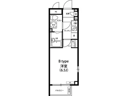
| 間取り | 1K | 専有面積 | 20.62m2 |
|---|---|---|---|
| 間取り詳細 | 洋室(6.5帖)、K(3帖) | ||
| 所在階 / 向き | 3階 / 南 | バルコニー面積 | - |
| 水道 / ガス | ガス【プロパン】 | ||
| 設備 | バス・トイレ別、テレビドアホン、浴室乾燥機、追い焚き、インターネット対応、システムキッチン、エアコン、温水洗浄便座、角部屋、バルコニー、フローリング、2口コンロ、BSアンテナ、インターネット使用料無料、シャワー、給湯 | ||
| 当社物件ID | 11377553 | ||
建物の情報
| 建物名 | リブリ・イーストヒルNⅡ | ||
|---|---|---|---|
| 所在地 | 千葉県船橋市東船橋4丁目 | ||
| 交通 | 北上線 江釣子駅 徒歩24分 総武・中央緩行線 東船橋駅 徒歩7分 京成電鉄本線 船橋競馬場駅 徒歩15分 | ||
| 階数 | 3階建 | 総戸数 | - |
| 築年月 | 2013年12月 / 築13年 | エレベーター | - |
| 駐車場 | - | バイク置き場 | - |
| 駐輪場 | あり | 管理人/管理会社 | - |
| 周辺環境 | コンビニ 徒歩7分(529m) 小学校 江釣子小学校 徒歩23分(1800m) その他 ファミリーマート北上江釣子店 徒歩22分(1700m) その他 スーパーアークス江釣子店 徒歩17分(1300m) その他 ツルハドラッグ 徒歩17分(1300m) その他 サンデー 徒歩19分(1500m) その他 江釣子駅 徒歩25分(2000m) その他 ドラッグストア その他 公園 その他 銀行 その他 ワイズマート東船橋店 徒歩8分(618m) | ||
| 建物種別 | アパート | 建物構造 | 鉄骨造 |
この部屋の取扱い不動産会社
| 会社名 | ハウスコム千葉株式会社 本八幡店 | ||
|---|---|---|---|
| 所在地 | 千葉県市川市16-6内田ビル3階 | 交通 | - |
| 営業時間 | 10:00~18:00 | 定休日 | 水曜定休 |
| 免許番号 | 千葉県知事(1)第18235号 | 取引態様 | 仲介 |
| 不動産会社管理番号 | HC2-18120-302-0022 | 当社管理番号 | 468 |
| 所属団体 | 、 | ||
| 取扱い物件情報 | 物件詳細へ | ||
※各種情報と現状に差異がある場合は、現状優先となります。問い合わせをすることで、より詳しい条件、情報を確認する事ができます。
提供:ハウスコム千葉株式会社 本八幡店
この物件が気になったら掲載期限まであと4日
リブリ・イーストヒルNⅡに条件(家賃・エリア)が近い物件一覧
| 写真 | 家賃 管理費等 | 敷金 礼金 | 間取り 専有面積 | 築年数 | 最寄り駅 所在地 | キープ | 詳細 |
|---|---|---|---|---|---|---|---|
マンション アンクレージュ西船橋(1K/6階) | |||||||
![]() | 8.9万円 9,500円 | なし 8.9万円 | 1K 25.89m2 | 築12年 | JR総武線 西船橋駅 徒歩5分 京成本線 京成西船駅 徒歩8分 京成本線 東中山駅 徒歩11分 千葉県船橋市本郷町 | 詳細を見る | |
アパート グランデュール・ハザマ(2DK/2階) | |||||||
![]() | 5.6万円 3,000円 | 11.2万円 なし | 2DK 40m2 | 築31年 | 京成松戸線 薬園台駅 徒歩13分 東葉高速鉄道 飯山満駅 徒歩14分 京成松戸線 前原駅 徒歩18分 千葉県船橋市飯山満町 | 詳細を見る | |
アパート トップアイランドD(1K/2階) | |||||||
![]() | 4.3万円 2,000円 | 4.3万円 4.3万円 | 1K 15.73m2 | 築40年 | 京成本線 大神宮下駅 徒歩8分 京成本線 船橋競馬場駅 徒歩9分 JR京葉線 南船橋駅 徒歩9分 千葉県船橋市浜町 | 詳細を見る | |
アパート エスティーハウス鍛冶町(1K/1階) | |||||||
![]() | 5.4万円 3,500円 | 5.4万円 5.4万円 | 1K 30.29m2 | 新築 | JR北上線 柳原駅(岩手) 徒歩17分 JR東北本線 北上駅 徒歩23分 JR北上線 江釣子駅 徒歩40分 岩手県北上市鍛冶町 | 詳細を見る | |
アパート メゾンエスポワールII(1K/1階) | |||||||
![]() | 4.1万円 2,100円 | なし なし | 1K 24.5m2 | 築36年 | 京成松戸線 習志野駅 徒歩19分 東葉高速鉄道 船橋日大前駅 徒歩19分 千葉県船橋市習志野台 | 詳細を見る | |
マンション マイナビSTAYミライエ市川駅前(1K/3階) | |||||||
![]() | 8.4万円 1.1万円 | なし 16.8万円 | 1K 22.5m2 | 築33年 | JR総武線 市川駅 徒歩1分 京成本線 市川真間駅 徒歩6分 京成本線 菅野駅 徒歩15分 千葉県市川市新田 | 詳細を見る | |
アパート ローズビラⅡ(1K/2階) | |||||||
![]() | 6万円 なし | なし なし | 1K 19.83m2 | 築39年 | JR総武線 市川駅 徒歩10分 京成本線 菅野駅 徒歩10分 京成本線 市川真間駅 徒歩15分 千葉県市川市新田 | 詳細を見る | |
マンション テラス137(1K/4階) | |||||||
![]() | 6.4万円 4,000円 | 6.4万円 6.4万円 | 1K 21.87m2 | 築40年 | JR総武線快速 市川駅 徒歩6分 京成本線 市川真間駅 徒歩11分 京成本線 菅野駅 徒歩20分 千葉県市川市市川南 | 詳細を見る | |









