賃貸マンション
ヴェルステージ大宮の賃貸物件情報(1K/8階)
| 家賃 | 管理費等 | 敷金 | 礼金 | 間取り | 専有面積 |
|---|---|---|---|---|---|
| 7.9万円 | 1万円 | なし | 7.9万円 | 1K | 22.68m2 |
入居決定でお祝い金最大100,000円
- 保証金
- -
- 償却・敷引
- -
- 築年数
- 築16年
- 所在階
- 8階
- 向き
- -
Point
セキュリティ面は、オートロック・TVインターホンなどを設置しているので安全面でも優れております。
提供:ハウス・トゥ・ハウス・ネットサービス(株)南浦和店(SUUMO経由)

詳細情報 ヴェルステージ大宮
物件紹介
ヴェルステージ大宮は東武野田線大宮駅から徒歩4分にあり、駅近で通勤通学に便利なマンションです。
このお部屋は2階以上に位置しているので、通行人や周囲の住人からの視線が気になりにくく、防犯面でも安心。建物のエントランスはオートロックがついており、インターホンにはTVモニタもついているため、相手の顔を確認してから来客対応することができます。
フローリングのお部屋なのでお掃除もラクラク。キッチンはシステムキッチン仕様になっていますので、お料理好きの方にもぴったり。また、バス・トイレは別で、のんびりお風呂タイムも楽しめるでしょう。
通信設備面では、インターネット接続が可能です(別途工事、契約料が必要な場合あり)。
建物にはエレベーターがついているので、重い荷物があっても安心。共用部には宅配ボックスが設定されているので、不在の時にも荷物を受け取ることができます。
このお部屋は2階以上に位置しているので、通行人や周囲の住人からの視線が気になりにくく、防犯面でも安心。建物のエントランスはオートロックがついており、インターホンにはTVモニタもついているため、相手の顔を確認してから来客対応することができます。
フローリングのお部屋なのでお掃除もラクラク。キッチンはシステムキッチン仕様になっていますので、お料理好きの方にもぴったり。また、バス・トイレは別で、のんびりお風呂タイムも楽しめるでしょう。
通信設備面では、インターネット接続が可能です(別途工事、契約料が必要な場合あり)。
建物にはエレベーターがついているので、重い荷物があっても安心。共用部には宅配ボックスが設定されているので、不在の時にも荷物を受け取ることができます。
お金・契約の情報
※「-」と表示されているものは、実際は料金が発生するものもございます。詳細はお問い合わせください。
| 家賃 | 7.9万円 | 管理費・共益費 | 1万円 |
|---|---|---|---|
| 敷金 | なし | 礼金 | 7.9万円 |
| 入居決定でお祝い金最大100,000円 | |||
| 保証金 | - | 償却・敷引 | - |
| 住宅保険料 | 1円 | 更新料 | - |
| 保証会社利用 | 必須 | 保証会社名 | - |
| 保証会社費用 | - | 保証会社備考 | 初回:総賃料50% |
| 契約形態 | - | 契約期間 | 2年 |
| 入居・引渡期間 | 相談 | 現況 | - |
| 入居可能条件 | ペット不可 | ||
| 契約備考 | 月額(駆けつけサポート 1100円) 鍵交換費用:33000 その他設備/条件:室内洗濯機置き場、防犯カメラ、クローゼット、シューズボックス、分譲賃貸 | ||
部屋の情報
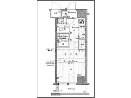
| 間取り | 1K | 専有面積 | 22.68m2 |
|---|---|---|---|
| 間取り詳細 | 洋室(7.2帖) | ||
| 所在階 / 向き | 8階 / - | バルコニー面積 | - |
| 水道 / ガス | 水道【公営】、ガス【都市】 | ||
| 設備 | バス・トイレ別、オートロック、テレビドアホン、宅配ボックス、インターネット対応、システムキッチン、エレベーター、バルコニー、フローリング、シャワー、給湯、冷房 | ||
| 当社物件ID | 1278505 | ||
建物の情報
| 建物名 | ヴェルステージ大宮 | ||
|---|---|---|---|
| 所在地 | 埼玉県さいたま市大宮区宮町4丁目 | ||
| 交通 | 京浜東北・根岸線 大宮駅(埼玉) 徒歩8分 東武鉄道野田線 北大宮駅 徒歩12分 | ||
| 階数 | 9階建 | 総戸数 | 50戸 |
| 築年月 | 2010年07月 / 築16年 | エレベーター | あり |
| 駐車場 | - | バイク置き場 | - |
| 駐輪場 | - | 管理人/管理会社 | - |
| 周辺環境 | 販売店 徒歩8分(610m) その他 ドラッグストア その他 公園 その他 銀行 その他 * | ||
| 建物種別 | マンション | 建物構造 | RC(鉄筋コンクリート) |
この部屋の取扱い不動産会社
| 会社名 | ハウスコム埼玉株式会社 浦和東口店 | ||
|---|---|---|---|
| 所在地 | 埼玉県さいたま市浦和区3-151階 | 交通 | - |
| 営業時間 | 10:00~18:00 | 定休日 | - |
| 免許番号 | 埼玉県知事(1)第24888号 | 取引態様 | 仲介 |
| 不動産会社管理番号 | HC2-1169047-807-0218 | 当社管理番号 | 468 |
| 所属団体 | 、 | ||
| 取扱い物件情報 | 物件詳細へ | ||
※各種情報と現状に差異がある場合は、現状優先となります。問い合わせをすることで、より詳しい条件、情報を確認する事ができます。
提供:ハウスコム埼玉株式会社 浦和東口店
この物件が気になったら掲載期限まであと4日
ヴェルステージ大宮に条件(家賃・エリア)が近い物件一覧
| 写真 | 家賃 管理費等 | 敷金 礼金 | 間取り 専有面積 | 築年数 | 最寄り駅 所在地 | キープ | 詳細 |
|---|---|---|---|---|---|---|---|
アパート ドルチェテラス川越南大塚(1DK/1階) | |||||||
![]() | 6.2万円 3,000円 | なし 6.2万円 | 1DK 26.48m2 | 新築 | 西武鉄道新宿線 南大塚駅 徒歩4分 西武鉄道新宿線 新狭山駅 徒歩37分 東武鉄道東上線 川越駅 徒歩42分 埼玉県川越市 | 詳細を見る | |
アパート サウススターガーデン(1LDK/1階) | |||||||
![]() | 8.55万円 3,900円 | なし 8.55万円 | 1LDK 40.44m2 | 新築 | 西武新宿線 南大塚駅 徒歩23分 東武東上線 川越駅 徒歩42分 JR川越線 川越駅 徒歩42分 埼玉県川越市中台南 | 詳細を見る | |
アパート D-SERENO東田町Ⅱ(1LDK/1階) | |||||||
![]() | 10.4万円 7,000円 | なし 10.4万円 | 1LDK 37.09m2 | 築1年 | 東武鉄道東上線 川越駅 徒歩12分 東武鉄道東上線 川越市駅 徒歩12分 埼玉県川越市東田町 | 詳細を見る | |
マンション シャトーサンワ(3DK/3階) | |||||||
![]() | 6.8万円 3,000円 | なし 6.8万円 | 3DK 54.23m2 | 築33年 | 西武鉄道新宿線 南大塚駅 徒歩1分 西武鉄道新宿線 新狭山駅 徒歩35分 川越線 西川越駅 徒歩64分 埼玉県川越市南台2丁目 | 詳細を見る | |
アパート プラウド シティ 南大塚D(1LDK/2階) | |||||||
![]() | 6.65万円 3,500円 | なし 6.65万円 | 1LDK 41.23m2 | 築7年 | 西武鉄道新宿線 南大塚駅 徒歩15分 川越線 川越駅 徒歩47分 埼玉県川越市 | 詳細を見る | |
アパート KIRSCHE(1DK/3階) | |||||||
![]() | 7.3万円 6,000円 | なし 7.3万円 | 1DK 24.64m2 | 築3年 | 西武鉄道新宿線 南大塚駅 徒歩3分 埼玉県川越市南台2丁目 | 詳細を見る | |
マンション THE GARLANDS(1K/2階) | |||||||
![]() | 7.4万円 5,000円 | なし なし | 1K 22.35m2 | 築1年 | 京浜東北・根岸線 西川口駅 徒歩7分 京浜東北・根岸線 川口駅 徒歩22分 京浜東北・根岸線 蕨駅 徒歩32分 埼玉県川口市西川口4丁目 | 詳細を見る | |
アパート ノーススターガーデン(2LDK/3階) | |||||||
![]() | 10.75万円 3,900円 | なし 10.75万円 | 2LDK 71.07m2 | 新築 | 西武鉄道新宿線 南大塚駅 徒歩23分 川越線 川越駅 徒歩39分 東武鉄道東上線 新河岸駅 徒歩43分 埼玉県川越市中台南1丁目 | 詳細を見る | |









