賃貸マンション
エスペランサAOIの賃貸物件情報(3LDK/3階)
| 家賃 | 管理費等 | 敷金 | 礼金 | 間取り | 専有面積 |
|---|---|---|---|---|---|
| 6.5万円 | なし | なし | なし | 3LDK | 68.85m2 |
入居決定でお祝い金最大100,000円
- 保証金
- -
- 償却・敷引
- -
- 築年数
- 築28年
- 所在階
- 3階
- 向き
- 南西
Point
鉄筋コンクリート造で音を気にされるファミリーさんも安心。目の前がバス停で、バス通勤の方にオススメです!築年数以上にキレイなお部屋を是非ご覧下さい。
提供:KONOIKE Co.(株)(SUUMO経由)

詳細情報 エスペランサAOI
物件紹介
エスペランサAOIは遠州鉄道上島駅から徒歩69分にあるマンションです。
このお部屋は2階以上に位置しているので、通行人や周囲の住人からの視線が気になりにくく、防犯面でも安心。インターホンにはTVモニタもついているため、相手の顔を確認してから来客対応することができます。
人気の南向きのお部屋。また、フローリングなのでお掃除もラクラク。キッチンはシステムキッチン仕様になっていますので、お料理好きの方にもぴったり。また、バス・トイレは別で、のんびりお風呂タイムも楽しめるでしょう。
通信設備面では、インターネット接続が可能です(別途工事、契約料が必要な場合あり)。
建物にはエレベーターがついているので、重い荷物があっても安心。
このお部屋は2階以上に位置しているので、通行人や周囲の住人からの視線が気になりにくく、防犯面でも安心。インターホンにはTVモニタもついているため、相手の顔を確認してから来客対応することができます。
人気の南向きのお部屋。また、フローリングなのでお掃除もラクラク。キッチンはシステムキッチン仕様になっていますので、お料理好きの方にもぴったり。また、バス・トイレは別で、のんびりお風呂タイムも楽しめるでしょう。
通信設備面では、インターネット接続が可能です(別途工事、契約料が必要な場合あり)。
建物にはエレベーターがついているので、重い荷物があっても安心。
お金・契約の情報
※「-」と表示されているものは、実際は料金が発生するものもございます。詳細はお問い合わせください。
| 家賃 | 6.5万円 | 管理費・共益費 | なし |
|---|---|---|---|
| 敷金 | なし | 礼金 | なし |
| 入居決定でお祝い金最大100,000円 | |||
| 保証金 | - | 償却・敷引 | - |
| 住宅保険料 | - | 更新料 | - |
| 保証会社利用 | 必須 | 保証会社名 | - |
| 保証会社費用 | - | 保証会社備考 | 保証会社利用必 初回保証料30000円 家賃総額の2%/月々 |
| 契約形態 | - | 契約期間 | - |
| 入居・引渡期間 | 即時 | 現況 | - |
| 契約備考 | 合計13万円(内訳:契約一時金130000円) 緊急サポート241100円/月 3LDK 二人入居可 普通借家2年 損保【2.2万円2年】 バストイレ別、エアコン、ガスコンロ対応、クロゼット、フローリング、シャワー付洗面台、TVインターホン、室内洗濯置、陽当り良好、シューズボックス、システムキッチン、温水洗浄便座、脱衣所、エレベーター、洗面所独立、洗面化粧台、駐輪場、押入、光ファイバー、即入居可、3口以上コンロ、グリル付、保証人不要、2沿線利用可、南面リビング、3駅以上利用可、バス停徒歩3分以内、敷地内ごみ置き場、南西向き、LDK12畳以上、和室、プロパンガス、洗面所にドア、南面バルコニー、敷金・礼金不要、IT重説対応物件、初期費用カード決済可 | ||
部屋の情報
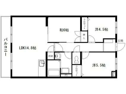
| 間取り | 3LDK | 専有面積 | 68.85m2 |
|---|---|---|---|
| 所在階 / 向き | 3階 / 南西 | バルコニー面積 | - |
| 水道 / ガス | - | ||
| 設備 | バス・トイレ別、2階以上、テレビドアホン、インターネット対応、システムキッチン、エアコン、エレベーター、温水洗浄便座、南向き、バルコニー、フローリング、洗髪洗面化粧台、2口コンロ、コンロ:ガス、洗濯機:室内 | ||
| 当社物件ID | 160118139 | ||
建物の情報
| 建物名 | エスペランサAOI | ||
|---|---|---|---|
| 所在地 | 静岡県浜松市中央区葵西 | ||
| 交通 | 天竜浜名湖鉄道 常葉大学前駅 徒歩78分 天竜浜名湖鉄道 金指駅 徒歩78分 JR東海道本線 浜松駅 バス乗車時間:41分 最寄りバス停で下車 徒歩1分 | ||
| 階数 | 5階建 | 総戸数 | 44戸 |
| 築年月 | 1998年07月 / 築28年 | エレベーター | あり |
| 駐車場 | 空有 5500円 | バイク置き場 | - |
| 駐輪場 | あり | 管理人/管理会社 | - |
| 周辺環境 | その他 ローソン 浜松葵西四丁目店(コンビニ)まで391m その他 杏林堂薬局 姫街道店(ドラッグストア)まで814m その他 Maxvalu(マックスバリュ) 浜松葵西店(スーパー)まで982m その他 ウエルシア浜松葵町店(ドラッグストア)まで1159m その他 浜松葵西郵便局(郵便局)まで167m その他 浜松いわた信用金庫 葵西支店(銀行)まで316m | ||
| 建物種別 | マンション | 建物構造 | RC(鉄筋コンクリート) |
この部屋の取扱い不動産会社
| 会社名 | スカイポート(株)(SUUMO経由) | ||
|---|---|---|---|
| 所在地 | 静岡県浜松市中央区高丘東1-2-39 | 交通 | - |
| 営業時間 | 9:30~18:30 | 定休日 | 水曜日 |
| 免許番号 | 静岡県知事10841 | 取引態様 | 仲介 |
| 不動産会社管理番号 | 100499555882 | 当社管理番号 | 89 |
| 所属団体 | (公社)静岡県宅地建物取引業協会会員 | ||
| 公正取引協議会 | 東海不動産公正取引協議会加盟 | ||
| 取扱い物件情報 | 物件詳細へ | ||
※各種情報と現状に差異がある場合は、現状優先となります。問い合わせをすることで、より詳しい条件、情報を確認する事ができます。
提供:スカイポート(株)(SUUMO経由)
この物件が気になったら掲載期限まであと11日
エスペランサAOIに条件(家賃・エリア)が近い物件一覧
| 写真 | 家賃 管理費等 | 敷金 礼金 | 間取り 専有面積 | 築年数 | 最寄り駅 所在地 | キープ | 詳細 |
|---|---|---|---|---|---|---|---|
マンション エスペランサ(2LDK/2階) | |||||||
![]() | 6.8万円 3,000円 | なし なし | 2LDK 63.11m2 | 築18年 | 静岡県浜松市中央区若林町 | 詳細を見る | |
マンション エクセルシア(1LDK/3階) | |||||||
![]() | 6.9万円 3,000円 | なし なし | 1LDK 43.8m2 | 築18年 | 静岡県浜松市中央区和合町 | 詳細を見る | |
マンション レジデンス四ツ枝(2LDK/1階) | |||||||
![]() | 6.2万円 3,000円 | なし なし | 2LDK 55.89m2 | 築43年 | 静岡県浜松市中央区東若林町 | 詳細を見る | |
マンション 初生パークハイツ(2LDK/4階) | |||||||
![]() | 6万円 3,000円 | 12万円 なし | 2LDK 56.27m2 | 築40年 | 遠州鉄道 上島駅 徒歩45分 静岡県浜松市中央区初生町 | 詳細を見る | |
マンション メディオ初生弐番館(2LDK/2階) | |||||||
![]() | 5.3万円 3,000円 | 10.6万円 なし | 2LDK 50.58m2 | 築32年 | 静岡県浜松市中央区初生町 | 詳細を見る | |





