賃貸マンション
クリオ藤沢セントラルマークスの賃貸物件情報(1LDK/10階)
| 家賃 | 管理費等 | 敷金 | 礼金 | 間取り | 専有面積 |
|---|---|---|---|---|---|
| 14.5万円 | 1万円 | 14.5万円 | 14.5万円 | 1LDK | 32.75m2 |
入居決定でお祝い金最大100,000円
- 保証金
- -
- 償却・敷引
- -
- 築年数
- 築6年
- 所在階
- 10階
- 向き
- 北西
Point
・明和地所株式会社旧分譲・2020年12月竣工・宅配ボックス ・TVモニター付インターホン
提供:明和地所(株)(SUUMO経由)

詳細情報 クリオ藤沢セントラルマークス
物件紹介
クリオ藤沢セントラルマークスは小田急江ノ島線藤沢駅から徒歩3分にあり、駅近で通勤通学に便利なマンションです。
このお部屋は2階以上に位置しているので、通行人や周囲の住人からの視線が気になりにくく、防犯面でも安心。建物のエントランスはオートロックがついており、インターホンにはTVモニタもついているため、相手の顔を確認してから来客対応することができます。
フローリングのお部屋なのでお掃除もラクラク。室内には人気のウォークインクローゼットがありますので、たくさんの荷物も効率的に収納ができます。キッチンはシステムキッチン仕様になっていますので、お料理好きの方にもぴったり。バス・トイレは別なので、のんびりお風呂タイムも楽しめるでしょう。また、雨の日でも浴室乾燥機を使えば、お洗濯も問題ありません。
通信設備面では、インターネットが無料で使えるので、月々の出費を抑えられるのも魅力です。また、BSアンテナ・CSアンテナがありCATVにも対応しているので、おうち時間も充実するでしょう(別途工事、BS・CS・CATVの契約料等が必要な場合あり)。
床暖房があり、冬も足元から暖かく快適に過ごすことができます。建物にはエレベーターがついているので、重い荷物があっても安心。共用部には宅配ボックスが設定されているので、不在の時にも荷物を受け取ることができます。
このお部屋は2階以上に位置しているので、通行人や周囲の住人からの視線が気になりにくく、防犯面でも安心。建物のエントランスはオートロックがついており、インターホンにはTVモニタもついているため、相手の顔を確認してから来客対応することができます。
フローリングのお部屋なのでお掃除もラクラク。室内には人気のウォークインクローゼットがありますので、たくさんの荷物も効率的に収納ができます。キッチンはシステムキッチン仕様になっていますので、お料理好きの方にもぴったり。バス・トイレは別なので、のんびりお風呂タイムも楽しめるでしょう。また、雨の日でも浴室乾燥機を使えば、お洗濯も問題ありません。
通信設備面では、インターネットが無料で使えるので、月々の出費を抑えられるのも魅力です。また、BSアンテナ・CSアンテナがありCATVにも対応しているので、おうち時間も充実するでしょう(別途工事、BS・CS・CATVの契約料等が必要な場合あり)。
床暖房があり、冬も足元から暖かく快適に過ごすことができます。建物にはエレベーターがついているので、重い荷物があっても安心。共用部には宅配ボックスが設定されているので、不在の時にも荷物を受け取ることができます。
お金・契約の情報
※「-」と表示されているものは、実際は料金が発生するものもございます。詳細はお問い合わせください。
| 家賃 | 14.5万円 | 管理費・共益費 | 1万円 |
|---|---|---|---|
| 敷金 | 14.5万円 | 礼金 | 14.5万円 |
| 入居決定でお祝い金最大100,000円 | |||
| 保証金 | - | 償却・敷引 | - |
| 住宅保険料 | - | 更新料 | - |
| 保証会社利用 | 必須 | 保証会社名 | - |
| 保証会社費用 | - | 保証会社備考 | 保証会社利用必 契約時、初回保証料:総賃料の50%(最低保証料20,000円)、 月額保証料:1,500円~ |
| 契約形態 | - | 契約期間 | - |
| 入居・引渡期間 | - | 現況 | - |
| 契約備考 | 通勤管理/鍵交換代:38,500円少額短期保険:22,000円アクト安心ライフ24:16,500円※保証会社必須 契約時総賃料の50% 月額保証料:1,500円~※短期(1年未満)解約時、違約金として総賃料の1ヵ月 合計5.5万円(内訳:アクト安心ライフ24 16500円税込 鍵交換代 38500円税込) 更新料 1ヶ月 1LDK 二人入居可/ルームシェア不可 普通借家2年 損保【2.2万円2年】 バストイレ別、バルコニー、エアコン、ガスコンロ対応、フローリング、TVインターホン、浴室乾燥機、オートロック、室内洗濯置、システムキッチン、追焚機能浴室、温水洗浄便座、脱衣所、エレベーター、洗面所独立、2口コンロ、駐輪場、宅配ボックス、CATV、BS・CS、対面式キッチン、防犯カメラ、分譲賃貸、オートバス、ウォークインクロゼット、敷金1ヶ月、二人入居相談、ディンプルキー、CS、ネット使用料不要、浄水器、床暖房、ダブルロックキー、ディスポーザー、24時間換気システム、耐火構造、耐震構造、3駅以上利用可、3沿線以上利用可、駅徒歩5分以内、24時間ゴミ出し可、敷地内ごみ置き場、日勤管理、都市ガス、タンクレストイレ、洗面所にドア、エコジョーズ、シューズWIC、BS、礼金1ヶ月 入居日:'26年3月中旬 | ||
部屋の情報
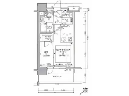
| 間取り | 1LDK | 専有面積 | 32.75m2 |
|---|---|---|---|
| 所在階 / 向き | 10階 / 北西 | バルコニー面積 | - |
| 水道 / ガス | - | ||
| 設備 | バス・トイレ別、2階以上、オートロック、テレビドアホン、宅配ボックス、浴室乾燥機、ウォークインクローゼット、追い焚き、インターネット対応、システムキッチン、エアコン、エレベーター、温水洗浄便座、バルコニー、フローリング、洗髪洗面化粧台、床暖房、2口コンロ、コンロ:ガス、CATV、CSアンテナ、BSアンテナ、インターネット使用料無料、洗濯機:室内 | ||
| 当社物件ID | 46352162 | ||
建物の情報
| 建物名 | クリオ藤沢セントラルマークス | ||
|---|---|---|---|
| 所在地 | 神奈川県藤沢市鵠沼橘 | ||
| 交通 | 小田急江ノ島線 藤沢駅 徒歩3分 JR東海道本線 藤沢駅 徒歩7分 江ノ島電鉄線 石上駅 徒歩8分 | ||
| 階数 | 13階建 | 総戸数 | - |
| 築年月 | 2020年10月 / 築6年 | エレベーター | あり |
| 駐車場 | なし | バイク置き場 | - |
| 駐輪場 | あり | 管理人/管理会社 | - |
| 周辺環境 | その他 ローソン藤沢駅南口店(コンビニ)まで101m その他 ファミリーマート藤沢駅南口店(コンビニ)まで168m その他 湘南薬品センター薬局(ドラッグストア)まで84m その他 トモズ湘南藤沢オーパ店(ドラッグストア)まで105m その他 Seria湘南藤沢オーパ店(ホームセンター)まで105m その他 ダイソーODAKYU湘南GATE店(ホームセンター)まで209m | ||
| 建物種別 | マンション | 建物構造 | RC(鉄筋コンクリート) |
この部屋の取扱い不動産会社
| 会社名 | 明和地所(株)(SUUMO経由) | ||
|---|---|---|---|
| 所在地 | 東京都渋谷区神泉町 9-6明和地所渋谷神泉ビル | 交通 | - |
| 営業時間 | 9:00~17:00 | 定休日 | 水曜・祝日/年末年始・夏期休暇 |
| 免許番号 | 国土交通大臣4118 | 取引態様 | 代理 |
| 不動産会社管理番号 | 100480429767 | 当社管理番号 | 89 |
| 所属団体 | (公社)東京都宅地建物取引業協会会員 | ||
| 公正取引協議会 | (公社)首都圏不動産公正取引協議会加盟 | ||
| 取扱い物件情報 | 物件詳細へ | ||
※各種情報と現状に差異がある場合は、現状優先となります。問い合わせをすることで、より詳しい条件、情報を確認する事ができます。
提供:明和地所(株)(SUUMO経由)
この物件が気になったら掲載期限まであと11日
クリオ藤沢セントラルマークスに条件(家賃・エリア)が近い物件一覧
| 写真 | 家賃 管理費等 | 敷金 礼金 | 間取り 専有面積 | 築年数 | 最寄り駅 所在地 | キープ | 詳細 |
|---|---|---|---|---|---|---|---|
マンション RELUXIA横濱元町(1K/4階) | |||||||
![]() | 9万円 1万円 | なし なし | 1K 21.1m2 | 築1年 | 京浜東北・根岸線 石川町駅 徒歩5分 神奈川県横浜市中区石川町4丁目 | 詳細を見る | |
一戸建て 神奈川県横浜市西区 築60年(3DK) | |||||||
![]() | 14万円 なし | 14万円 なし | 3DK 72.21m2 | 築60年 | 神奈川県横浜市西区霞ケ丘 | 詳細を見る | |
マンション ブランシエスタ横浜高島町(1K/13階) | |||||||
![]() | 12.3万円 1.2万円 | なし 12.3万円 | 1K 21.89m2 | 築3年 | ブルーライン 高島町駅 徒歩4分 相鉄本線 平沼橋駅 徒歩7分 JR京浜東北線 横浜駅 徒歩8分 神奈川県横浜市西区平沼 | 詳細を見る | |
アパート ヴィクトワール参番館(1LDK/1階) | |||||||
![]() | 10.6万円 4,500円 | なし 15.9万円 | 1LDK 40.29m2 | 築12年 | 小田急江ノ島線 南林間駅 徒歩5分 小田急江ノ島線 鶴間駅 徒歩12分 東急田園都市線 中央林間駅 徒歩20分 神奈川県大和市南林間 | 詳細を見る | |
アパート ハイムレトア高田町(2LDK/1階) | |||||||
![]() | 13.3万円 5,000円 | 13.3万円 13.3万円 | 2LDK 55.6m2 | 築1年 | グリーンライン 高田駅(神奈川) 徒歩13分 グリーンライン 日吉本町駅 徒歩18分 神奈川県横浜市港北区高田町 | 詳細を見る | |
マンション ウィズプラス大船(2LDK/1階) | |||||||
![]() | 20.6万円 8,500円 | なし 41.2万円 | 2LDK 75.75m2 | 新築 | 東海道本線 大船駅 徒歩12分 神奈川県鎌倉市玉縄1丁目 | 詳細を見る | |
マンション リヴシティ関内(1K/7階) | |||||||
![]() | 10.3万円 1.1万円 | なし 10.3万円 | 1K 23.94m2 | 築21年 | ブルーライン 関内駅 徒歩4分 みなとみらい線 馬車道駅 徒歩7分 JR京浜東北線 石川町駅 徒歩12分 神奈川県横浜市中区相生町 | 詳細を見る | |
アパート KOMFORTA(1LDK/1階) | |||||||
![]() | 12.5万円 6,000円 | なし 25万円 | 1LDK 46.6m2 | 新築 | 南武線 尻手駅 徒歩29分 神奈川県横浜市鶴見区上末吉3丁目 | 詳細を見る | |







/105x80-f1-q70-wp1)

