賃貸マンション
ミディ八王子の賃貸物件情報(1K/2階)
| 家賃 | 管理費等 | 敷金 | 礼金 | 間取り | 専有面積 |
|---|---|---|---|---|---|
| 4.5万円 | なし | 4.5万円 | 4.5万円 | 1K | 18.67m2 |
入居決定でお祝い金最大100,000円
- 保証金
- -
- 償却・敷引
- -
- 築年数
- 築37年
- 所在階
- 2階
- 向き
- 北
Point
当物件は初期費用分割払い可(クレジットカード決済も可)/お客様のご希望に合わせた方法(店頭、オンライン等)で物件をご提案いたします。初期費用のお見積りや入居希望日のご相談もお気軽にお問い合わせください
提供:アエラス八王子店 (株)アエラス.FR(SUUMO経由)

詳細情報 ミディ八王子
物件紹介
ミディ八王子はJR中央線八王子駅から徒歩10分にあり、駅近で通勤通学に便利なマンションです。
このお部屋は2階以上に位置しているので、通行人や周囲の住人からの視線が気になりにくく、防犯面でも安心です。
通信設備面では、インターネット接続が可能です(別途工事、契約料が必要な場合あり)。
このお部屋は2階以上に位置しているので、通行人や周囲の住人からの視線が気になりにくく、防犯面でも安心です。
通信設備面では、インターネット接続が可能です(別途工事、契約料が必要な場合あり)。
お金・契約の情報
※「-」と表示されているものは、実際は料金が発生するものもございます。詳細はお問い合わせください。
| 家賃 | 4.5万円 | 管理費・共益費 | なし |
|---|---|---|---|
| 敷金 | 4.5万円 | 礼金 | 4.5万円 |
| 入居決定でお祝い金最大100,000円 | |||
| 保証金 | - | 償却・敷引 | - |
| 住宅保険料 | - | 更新料 | - |
| 保証会社利用 | 必須 | 保証会社名 | - |
| 保証会社費用 | - | 保証会社備考 | 保証会社利用必 初回:賃料等の50%、以後毎月:900円、振替手数料:330円 |
| 契約形態 | - | 契約期間 | - |
| 入居・引渡期間 | 即時 | 現況 | - |
| 契約備考 | 仁和会総合病院まで725m/医療法人社団斗南堂八王子クリまで172m/家財保険16000円/2年/解約時敷金1ヵ月償却/室内清掃費用借主負担 合計2.2万円(内訳:カギ交換費用22000円) 1K 普通借家2年 損保【要】 光ファイバー、外壁タイル張り、即入居可、IHクッキングヒーター、敷金1ヶ月、保証金不要、外壁コンクリート、3駅以上利用可、3沿線以上利用可、駅徒歩10分以内、高速ネット対応、礼金1ヶ月、初期費用カード決済可 | ||
部屋の情報
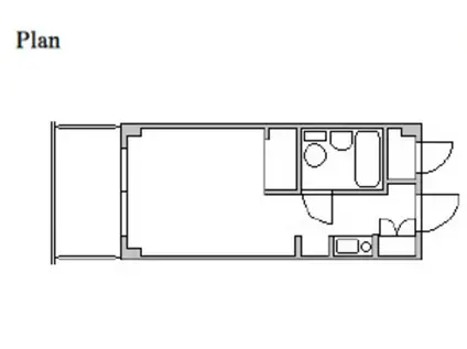
| 間取り | 1K | 専有面積 | 18.67m2 |
|---|---|---|---|
| 所在階 / 向き | 2階 / 北 | バルコニー面積 | - |
| 水道 / ガス | - | ||
| 設備 | 2階以上、インターネット対応、コンロ:IH | ||
| 当社物件ID | 121830682 | ||
建物の情報
| 建物名 | ミディ八王子 | ||
|---|---|---|---|
| 所在地 | 東京都八王子市南町 | ||
| 交通 | JR中央線 八王子駅 徒歩10分 京王線 京王八王子駅 徒歩11分 京王高尾線 京王片倉駅 徒歩26分 | ||
| 階数 | 4階建 | 総戸数 | - |
| 築年月 | 1989年12月 / 築37年 | エレベーター | - |
| 駐車場 | 近隣 866m20900円 | バイク置き場 | - |
| 駐輪場 | - | 管理人/管理会社 | - |
| 周辺環境 | その他 八王子オクトーレ(ショッピングセンター)まで582m その他 肉のハナマサ八王子店(スーパー)まで327m その他 ローソンストア100 八王子横山町店(コンビニ)まで151m その他 ウェルパーク八王子八日町店(ドラッグストア)まで231m その他 イゲタヤ八日町店(ホームセンター)まで280m その他 CoCo壱番屋八王子駅北口店(飲食店)まで163m | ||
| 建物種別 | マンション | 建物構造 | RC(鉄筋コンクリート) |
この部屋の取扱い不動産会社
| 会社名 | アエラス八王子店 (株)アエラス.FR(SUUMO経由) | ||
|---|---|---|---|
| 所在地 | 東京都八王子市東町 8-2 豊泉2号ビル 1階 | 交通 | - |
| 営業時間 | 10:00~19:00(時間外対応出来る場合有り) | 定休日 | 毎週水曜日 |
| 免許番号 | 国土交通大臣10206 | 取引態様 | 仲介 |
| 不動産会社管理番号 | 100491234355 | 当社管理番号 | 89 |
| 所属団体 | (公社)全日本不動産協会東京都本部会員 | ||
| 公正取引協議会 | (公社)首都圏不動産公正取引協議会加盟 | ||
| 取扱い物件情報 | 物件詳細へ | ||
※各種情報と現状に差異がある場合は、現状優先となります。問い合わせをすることで、より詳しい条件、情報を確認する事ができます。
提供:アエラス八王子店 (株)アエラス.FR(SUUMO経由)
この物件が気になったら掲載期限まであと11日
ミディ八王子に条件(家賃・エリア)が近い物件一覧
| 写真 | 家賃 管理費等 | 敷金 礼金 | 間取り 専有面積 | 築年数 | 最寄り駅 所在地 | キープ | 詳細 |
|---|---|---|---|---|---|---|---|
アパート 第二フラワーハイツ(2DK/1階) | |||||||
![]() | 5.9万円 1,000円 | なし 5.9万円 | 2DK 36.36m2 | 築43年 | JR中央線 日野駅(東京) 徒歩15分 JR中央線 豊田駅 徒歩17分 京王線 南平駅 徒歩31分 東京都日野市多摩平 | 詳細を見る | |
マンション コアハイム八王子(ワンルーム/2階) | |||||||
![]() | 5.2万円 7,000円 | なし なし | ワンルーム 22.8m2 | 築36年 | JR中央線 八王子駅 徒歩12分 京王線 京王八王子駅 徒歩12分 JR中央線 西八王子駅 徒歩24分 東京都八王子市天神町 | 詳細を見る | |
マンション メゾンドノア天神町(1K/6階) | |||||||
![]() | 4万円 300円 | 4万円 4万円 | 1K 15.34m2 | 築44年 | JR中央線 八王子駅 徒歩9分 京王線 京王八王子駅 徒歩14分 東京都八王子市天神町 | 詳細を見る | |
アパート TAハイツ(1K/2階) | |||||||
![]() | 4.1万円 なし | なし なし | 1K 20m2 | 築43年 | 神奈川県相模原市緑区寸沢嵐 | 詳細を見る | |
アパート コーポアメニティI(1K/2階) | |||||||
![]() | 3万円 3,000円 | なし なし | 1K 17m2 | 築35年 | 京王相模原線 京王堀之内駅 徒歩21分 京王相模原線 南大沢駅 徒歩33分 京王線 平山城址公園駅 徒歩40分 東京都八王子市越野 | 詳細を見る | |
アパート MSフラット(1K/1階) | |||||||
![]() | 5.2万円 4,000円 | なし なし | 1K 20.82m2 | 築11年 | JR横浜線 相原駅 徒歩6分 JR横浜線 橋本駅(神奈川) 徒歩17分 東京都町田市相原町 | 詳細を見る | |
マンション ニューオオツカマンション(1K/3階) | |||||||
![]() | 3.4万円 2,000円 | なし なし | 1K 19.87m2 | 築46年 | 多摩都市モノレール 大塚・帝京大学駅 徒歩8分 多摩都市モノレール 松が谷駅 徒歩12分 京王相模原線 京王多摩センター駅 徒歩24分 東京都八王子市大塚 | 詳細を見る | |
アパート タツミハイツ(1K/3階) | |||||||
![]() | 4.1万円 1,000円 | 8.2万円 なし | 1K 19.87m2 | 築36年 | JR横浜線 橋本駅(神奈川) 徒歩5分 京王相模原線 多摩境駅 徒歩25分 JR相模線 南橋本駅 徒歩27分 神奈川県相模原市緑区橋本 | 詳細を見る | |









