賃貸マンション
プレサンス神戸裁判所前デリシアの賃貸物件情報(ワンルーム/7階)
| 家賃 | 管理費等 | 敷金 | 礼金 | 間取り | 専有面積 |
|---|---|---|---|---|---|
| 6.17万円 | 8,330円 | なし | 8万円 | ワンルーム | 21m2 |
入居決定でお祝い金最大100,000円
- 保証金
- -
- 償却・敷引
- -
- 築年数
- 築16年
- 所在階
- 7階
- 向き
- 南東
Point
ご来店者様全員に、クオカード2000円プレゼント!※1グループ1名様、期限3月31日まで。
提供:(株)プラン・ドゥ・シー岡本店(SUUMO経由)

詳細情報 プレサンス神戸裁判所前デリシア
物件紹介
プレサンス神戸裁判所前デリシアはJR山陽本線神戸駅から徒歩4分にあり、駅近で通勤通学に便利なマンションです。
このお部屋は2階以上に位置しているので、通行人や周囲の住人からの視線が気になりにくく、防犯面でも安心。建物のエントランスはオートロックがついており、インターホンにはTVモニタもついているため、相手の顔を確認してから来客対応することができます。
こちらは楽器相談が可能な物件。楽器演奏をお考えの方はぜひ相談してみてください。人気の南向きのお部屋。また、フローリングなのでお掃除もラクラク。キッチンはシステムキッチン仕様になっていますので、お料理好きの方にもぴったり。バス・トイレは別なので、のんびりお風呂タイムも楽しめるでしょう。また、雨の日でも浴室乾燥機を使えば、お洗濯も問題ありません。
通信設備面では、インターネットが無料で使えるので、月々の出費を抑えられるのも魅力です。また、BSアンテナ・CSアンテナがありCATVにも対応しているので、おうち時間も充実するでしょう(別途工事、BS・CS・CATVの契約料等が必要な場合あり)。
建物にはエレベーターがついているので、重い荷物があっても安心。共用部には宅配ボックスが設定されているので、不在の時にも荷物を受け取ることができます。
このお部屋は2階以上に位置しているので、通行人や周囲の住人からの視線が気になりにくく、防犯面でも安心。建物のエントランスはオートロックがついており、インターホンにはTVモニタもついているため、相手の顔を確認してから来客対応することができます。
こちらは楽器相談が可能な物件。楽器演奏をお考えの方はぜひ相談してみてください。人気の南向きのお部屋。また、フローリングなのでお掃除もラクラク。キッチンはシステムキッチン仕様になっていますので、お料理好きの方にもぴったり。バス・トイレは別なので、のんびりお風呂タイムも楽しめるでしょう。また、雨の日でも浴室乾燥機を使えば、お洗濯も問題ありません。
通信設備面では、インターネットが無料で使えるので、月々の出費を抑えられるのも魅力です。また、BSアンテナ・CSアンテナがありCATVにも対応しているので、おうち時間も充実するでしょう(別途工事、BS・CS・CATVの契約料等が必要な場合あり)。
建物にはエレベーターがついているので、重い荷物があっても安心。共用部には宅配ボックスが設定されているので、不在の時にも荷物を受け取ることができます。
お金・契約の情報
※「-」と表示されているものは、実際は料金が発生するものもございます。詳細はお問い合わせください。
| 家賃 | 6.17万円 | 管理費・共益費 | 8,330円 |
|---|---|---|---|
| 敷金 | なし | 礼金 | 8万円 |
| 入居決定でお祝い金最大100,000円 | |||
| 保証金 | - | 償却・敷引 | - |
| 住宅保険料 | - | 更新料 | - |
| 契約形態 | - | 契約期間 | - |
| 入居・引渡期間 | 相談 | 現況 | - |
| 契約備考 | 初期費用、入居審査の不安など、その他お困りごと是非SumoSumoにご相談下さい★女性スタッフ対応も可能☆ 合計2.97万円(内訳:鍵交換代2.97万円) 更新料 11000円 室内清掃費用 35000円 プレサポ安心24 月額990円 ワンルーム 普通借家1年 損保【1.1万円1年】 バストイレ別、バルコニー、エアコン、ガスコンロ対応、クロゼット、フローリング、シャワー付洗面台、TVインターホン、浴室乾燥機、オートロック、室内洗濯置、陽当り良好、シューズボックス、システムキッチン、脱衣所、エレベーター、洗面所独立、洗面化粧台、2口コンロ、駐輪場、宅配ボックス、CATV、光ファイバー、防犯カメラ、分譲賃貸、CATVインターネット、2沿線利用可、ディンプルキー、CS、ネット専用回線、駅まで平坦、ネット使用料不要、内装リフォーム済、眺望良好、ダブルロックキー、24時間換気システム、外壁コンクリート、平坦地、南面リビング、人感照明センサー、耐火構造、始発駅、3沿線以上利用可、駅前、駅徒歩5分以内、高層階、敷地内ごみ置き場、東南向き、都市ガス、洗面所にドア、南面バルコニー、BS、IT重説対応物件、初期費用カード決済可、通風良好 | ||
部屋の情報
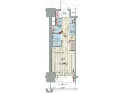
| 間取り | ワンルーム | 専有面積 | 21m2 |
|---|---|---|---|
| 所在階 / 向き | 7階 / 南東 | バルコニー面積 | - |
| 水道 / ガス | - | ||
| 設備 | バス・トイレ別、2階以上、オートロック、テレビドアホン、宅配ボックス、浴室乾燥機、インターネット対応、システムキッチン、エアコン、エレベーター、南向き、バルコニー、フローリング、洗髪洗面化粧台、2口コンロ、コンロ:ガス、CATV、CSアンテナ、BSアンテナ、インターネット使用料無料、洗濯機:室内 | ||
| 当社物件ID | 11210600 | ||
建物の情報
| 建物名 | プレサンス神戸裁判所前デリシア | ||
|---|---|---|---|
| 所在地 | 兵庫県神戸市中央区橘通 | ||
| 交通 | JR山陽本線 神戸駅(兵庫) 徒歩4分 神戸高速鉄道東西線 高速神戸駅 徒歩5分 地下鉄西神・山手線 大倉山駅(兵庫) 徒歩5分 | ||
| 階数 | 14階建 | 総戸数 | 94戸 |
| 築年月 | 2010年03月 / 築16年 | エレベーター | あり |
| 駐車場 | 近隣 100m20000円 | バイク置き場 | - |
| 駐輪場 | あり | 管理人/管理会社 | - |
| 周辺環境 | その他 ライフ神戸駅前店(スーパー)まで567m その他 サンディ 湊川店(スーパー)まで1445m その他 ファミリーマート 神戸多聞通二丁目店(コンビニ)まで201m その他 セブンイレブン 神戸相生町1丁目北店(コンビニ)まで319m その他 ホームセンターコーナン ハーバーランド店(ホームセンター)まで1043m その他 コーナ魚崎(その他)まで1580m | ||
| 建物種別 | マンション | 建物構造 | RC(鉄筋コンクリート) |
この部屋の取扱い不動産会社
| 会社名 | (株)プラン・ドゥ・シー兵庫店(SUUMO経由) | ||
|---|---|---|---|
| 所在地 | 兵庫県神戸市兵庫区塚本通7-2-19 ロイヤルメゾン兵庫駅前通り1階 | 交通 | - |
| 営業時間 | 10:00~19:00 | 定休日 | - |
| 免許番号 | 国土交通大臣9550 | 取引態様 | 仲介 |
| 不動産会社管理番号 | 100480186153 | 当社管理番号 | 89 |
| 所属団体 | (公社)全日本不動産協会兵庫県本部会員 | ||
| 公正取引協議会 | (公社)近畿地区不動産公正取引協議会加盟 | ||
| 取扱い物件情報 | 物件詳細へ | ||
※各種情報と現状に差異がある場合は、現状優先となります。問い合わせをすることで、より詳しい条件、情報を確認する事ができます。
提供:(株)プラン・ドゥ・シー兵庫店(SUUMO経由)
この物件が気になったら掲載期限まであと10日
プレサンス神戸裁判所前デリシアに条件(家賃・エリア)が近い物件一覧
| 写真 | 家賃 管理費等 | 敷金 礼金 | 間取り 専有面積 | 築年数 | 最寄り駅 所在地 | キープ | 詳細 |
|---|---|---|---|---|---|---|---|
マンション ビレッジハウス志染(3K/1階) | |||||||
![]() | 5.34万円 なし | なし なし | 3K 43.5m2 | 築46年 | 神戸電鉄粟生線 志染駅 徒歩19分 神戸電鉄粟生線 恵比須駅 徒歩30分 神戸電鉄粟生線 広野ゴルフ場前駅 徒歩31分 兵庫県三木市志染町西自由が丘 | 詳細を見る | |
アパート ガーデンハウス・KⅤ(1K/1階) | |||||||
![]() | 7.2万円 3,500円 | なし 7.2万円 | 1K 33.2m2 | 新築 | 東海道・山陽新幹線 西明石駅 徒歩8分 山陽本線 西明石駅 徒歩8分 山陽電気鉄道本線 藤江駅 徒歩16分 兵庫県明石市西明石西町2丁目 | 詳細を見る | |
アパート ラフィーネ緑が丘(1K/2階) | |||||||
![]() | 4.8万円 4,000円 | なし なし | 1K 29m2 | 築19年 | 神戸電鉄粟生線 緑が丘駅(兵庫) 徒歩8分 神戸電鉄粟生線 広野ゴルフ場前駅 徒歩17分 神戸電鉄粟生線 押部谷駅 徒歩23分 兵庫県三木市緑が丘町東 | 詳細を見る | |
アパート トレーフル 緑が丘(1LDK/1階) | |||||||
![]() | 7.1万円 5,500円 | 2万円 10万円 | 1LDK 35.31m2 | 築9年 | 神戸電鉄粟生線 広野ゴルフ場前駅 徒歩12分 神戸電鉄粟生線 緑が丘駅(兵庫) 徒歩15分 神戸電鉄粟生線 志染駅 徒歩30分 兵庫県三木市緑が丘町西 | 詳細を見る | |
マンション ビレッジハウス朝日ヶ丘(2K/2階) | |||||||
![]() | 3.84万円 なし | なし なし | 2K 28.98m2 | 築61年 | 神戸電鉄粟生線 三木駅(神戸電鉄) 徒歩31分 神戸電鉄粟生線 三木上の丸駅 徒歩41分 兵庫県三木市別所町朝日ケ丘 | 詳細を見る | |
アパート MSイーストプラザ(3K/2階) | |||||||
![]() | 6万円 なし | 2万円 なし | 3K 50m2 | 築28年 | 山陽電気鉄道本線 東二見駅 徒歩8分 山陽電気鉄道本線 山陽魚住駅 徒歩17分 山陽本線 魚住駅 徒歩23分 兵庫県明石市二見町東二見 | 詳細を見る | |
マンション 山陽電気鉄道本線 林崎松江海岸駅 徒歩3分 築29年(2LDK/2階) | |||||||
![]() | 8.6万円 6,000円 | なし 20万円 | 2LDK 67.12m2 | 築29年 | 山陽電気鉄道本線 林崎松江海岸駅 徒歩3分 山陽電気鉄道本線 西新町駅 徒歩23分 山陽本線 西明石駅 徒歩30分 兵庫県明石市林崎町3丁目 | 詳細を見る | |
アパート ヒカルサ稲美天満Ⅰ(2LDK/2階) | |||||||
![]() | 8.05万円 3,900円 | なし 8.05万円 | 2LDK 56.48m2 | 新築 | 兵庫県加古郡稲美町六分一 | 詳細を見る | |








