賃貸マンション
コーポいけぐちの賃貸物件情報(1SDK/4階)
| 家賃 | 管理費等 | 敷金 | 礼金 | 間取り | 専有面積 |
|---|---|---|---|---|---|
| 4万円 | なし | 4万円 | 4万円 | 1SDK | 30.65m2 |
入居決定でお祝い金最大100,000円
- 保証金
- -
- 償却・敷引
- -
- 築年数
- 築38年
- 所在階
- 4階
- 向き
- 南
Point
★お部屋探しは是非オールハウスへお越し下さい★
提供:オールハウス(株)大町店(SUUMO経由)

詳細情報 コーポいけぐち
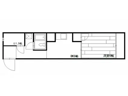
物件紹介
コーポいけぐちは広島電鉄本線西観音町駅から徒歩3分にあり、駅近で通勤通学に便利なマンションです。
このお部屋は2階以上に位置しているので、通行人や周囲の住人からの視線が気になりにくく、防犯面でも安心です。
人気の南向き・フローリングのお部屋。角部屋でもあるため、周囲の居住者の生活音も気になりにくい場所です。
このお部屋は2階以上に位置しているので、通行人や周囲の住人からの視線が気になりにくく、防犯面でも安心です。
人気の南向き・フローリングのお部屋。角部屋でもあるため、周囲の居住者の生活音も気になりにくい場所です。
お金・契約の情報
※「-」と表示されているものは、実際は料金が発生するものもございます。詳細はお問い合わせください。
| 家賃 | 4万円 | 管理費・共益費 | なし |
|---|---|---|---|
| 敷金 | 4万円 | 礼金 | 4万円 |
| 入居決定でお祝い金最大100,000円 | |||
| 保証金 | - | 償却・敷引 | - |
| 住宅保険料 | - | 更新料 | - |
| 保証会社利用 | 必須 | 保証会社名 | - |
| 保証会社費用 | - | 保証会社備考 | 保証会社利用必 詳細要確認利用必須 初回:家賃総額50%(最低保証料:25,000円)、月額:1,500円(引落手数料込み) |
| 契約形態 | - | 契約期間 | - |
| 入居・引渡期間 | 相談 | 現況 | - |
| 契約備考 | 短期解約違約金有1ヵ月(1年未満) ホームアシスト24:1100円/月 1SDK 損保【1.5万円2年】 バルコニー、エアコン、フローリング、室内洗濯置、角住戸、駐輪場、閑静な住宅地、全居室洋室、保証人不要、2駅利用可、3駅以上利用可、プロパンガス、IT重説対応物件、初期費用カード決済可 | ||
部屋の情報
| 間取り | 1SDK | 専有面積 | 30.65m2 |
|---|---|---|---|
| 所在階 / 向き | 4階 / 南 | バルコニー面積 | - |
| 水道 / ガス | - | ||
| 設備 | 2階以上、エアコン、南向き、角部屋、バルコニー、フローリング、洗濯機:室内 | ||
| 当社物件ID | 159730021 | ||
建物の情報
| 建物名 | コーポいけぐち | ||
|---|---|---|---|
| 所在地 | 広島県広島市西区西観音町 | ||
| 交通 | 広島電鉄本線 西観音町駅 徒歩3分 広島電鉄本線 観音町駅(広島) 徒歩5分 広島電鉄本線 福島町駅 徒歩6分 | ||
| 階数 | 5階建 | 総戸数 | 15戸 |
| 築年月 | 1988年03月 / 築38年 | エレベーター | - |
| 駐車場 | なし | バイク置き場 | - |
| 駐輪場 | あり | 管理人/管理会社 | - |
| 周辺環境 | その他 福島生協病院(病院)まで379m | ||
| 建物種別 | マンション | 建物構造 | RC(鉄筋コンクリート) |
この部屋の取扱い不動産会社
| 会社名 | オールハウス(株)段原店(お問合せ窓口)(SUUMO経由) | ||
|---|---|---|---|
| 所在地 | 広島県広島市南区段原南1-2-15 | 交通 | - |
| 営業時間 | 9:00~18:00 | 定休日 | 無し |
| 免許番号 | 国土交通大臣9975 | 取引態様 | 仲介 |
| 不動産会社管理番号 | 100468359658 | 当社管理番号 | 89 |
| 所属団体 | (公社)広島県宅地建物取引業協会会員 | ||
| 公正取引協議会 | 中国地区不動産公正取引協議会加盟 | ||
| 取扱い物件情報 | 物件詳細へ | ||
※各種情報と現状に差異がある場合は、現状優先となります。問い合わせをすることで、より詳しい条件、情報を確認する事ができます。
提供:オールハウス(株)段原店(お問合せ窓口)(SUUMO経由)
この物件が気になったら掲載期限まであと10日
コーポいけぐちに条件(家賃・エリア)が近い物件一覧
| 写真 | 家賃 管理費等 | 敷金 礼金 | 間取り 専有面積 | 築年数 | 最寄り駅 所在地 | キープ | 詳細 |
|---|---|---|---|---|---|---|---|
一戸建て 広島県廿日市市 築41年(4LDK) | |||||||
![]() | 4.9万円 なし | 4.9万円 4.9万円 | 4LDK 118.02m2 | 築41年 | 広島県廿日市市永原 | 詳細を見る | |
マンション フェニックス保田(1K/3階) | |||||||
![]() | 3.5万円 なし | 3.5万円 3.5万円 | 1K 20.1m2 | 築33年 | 可部線 安芸長束駅 徒歩15分 アストラムライン 牛田駅(広島) 徒歩20分 広島県広島市西区大芝3丁目 | 詳細を見る | |
一戸建て 広島県山県郡北広島町 築30年(3LDK) | |||||||
![]() | 6万円 なし | 18万円 6万円 | 3LDK 89.34m2 | 築30年 | 広島県山県郡北広島町中祖 | 詳細を見る | |
マンション FKビル(1K/8階) | |||||||
![]() | 4.2万円 なし | 4.2万円 4.2万円 | 1K 21.3m2 | 築37年 | 可部線 横川駅(広島) 徒歩5分 広島県広島市西区楠木町1丁目 | 詳細を見る | |
一戸建て 山陽本線 西広島駅 徒歩6分 築54年(2LDK) | |||||||
![]() | 6万円 なし | 6万円 12万円 | 2LDK 47m2 | 築54年 | 山陽本線 西広島駅 徒歩6分 広島電鉄本線 福島町駅 徒歩16分 広島県広島市西区己斐中2丁目 | 詳細を見る | |
マンション グリンハウス三篠(1K/8階) | |||||||
![]() | 4万円 なし | 8万円 なし | 1K 16.19m2 | 築37年 | 山陽本線 横川駅(広島) 徒歩7分 可部線 横川駅(広島) 徒歩7分 広島電鉄横川線 横川駅駅 徒歩7分 広島県広島市西区三篠町1丁目 | 詳細を見る | |






