賃貸マンション
京都市烏丸線 烏丸御池駅 徒歩3分 11階建 築16年の賃貸物件情報(3LDK/10階)
| 家賃 | 管理費等 | 敷金 | 礼金 | 間取り | 専有面積 |
|---|---|---|---|---|---|
| 32万円 | なし | なし | 64万円 | 3LDK | 83.65m2 |
入居決定でお祝い金最大100,000円
- 保証金
- -
- 償却・敷引
- -
- 築年数
- 築16年
- 所在階
- 10階
- 向き
- 西
- 交通
- 京都市烏丸線 烏丸御池駅 徒歩3分
京都市烏丸線 丸太町駅(京都市営) 徒歩8分
- 所在地
- 京都府京都市中京区御池之町
[地図を表示]
Point
烏丸御池 分譲賃貸。 御所南学区、ファミリータイプ。
提供:株式会社 京都ライフ 烏丸五条店(賃貸スモッカ経由)

詳細情報 京都市烏丸線 烏丸御池駅 徒歩3分 11階建 築16年
物件紹介
京都市烏丸線烏丸御池駅から徒歩3分にあり、駅近で通勤通学に便利なマンションです。
このお部屋は2階以上に位置しているので通行人や周囲の住人からの視線が気になりにくく、建物のエントランスはオートロックがついているので防犯性が高くなっています。
フローリングのお部屋なのでお掃除もラクラク。キッチンはシステムキッチン仕様になっていますので、お料理好きの方にもぴったり。また、バス・トイレは別で、のんびりお風呂タイムも楽しめるでしょう。
通信設備面ではBSアンテナがありますので、おうち時間も充実するでしょう(別途工事、契約料が必要な場合あり)。
床暖房があり、冬も足元から暖かく快適に過ごすことができます。建物にはエレベーターがついているので、重い荷物があっても安心。共用部には宅配ボックスが設定されているので、不在の時にも荷物を受け取ることができます。
このお部屋は2階以上に位置しているので通行人や周囲の住人からの視線が気になりにくく、建物のエントランスはオートロックがついているので防犯性が高くなっています。
フローリングのお部屋なのでお掃除もラクラク。キッチンはシステムキッチン仕様になっていますので、お料理好きの方にもぴったり。また、バス・トイレは別で、のんびりお風呂タイムも楽しめるでしょう。
通信設備面ではBSアンテナがありますので、おうち時間も充実するでしょう(別途工事、契約料が必要な場合あり)。
床暖房があり、冬も足元から暖かく快適に過ごすことができます。建物にはエレベーターがついているので、重い荷物があっても安心。共用部には宅配ボックスが設定されているので、不在の時にも荷物を受け取ることができます。
お金・契約の情報
※「-」と表示されているものは、実際は料金が発生するものもございます。詳細はお問い合わせください。
| 家賃 | 32万円 | 管理費・共益費 | なし |
|---|---|---|---|
| 敷金 | なし | 礼金 | 64万円 |
| 入居決定でお祝い金最大100,000円 | |||
| 保証金 | - | 償却・敷引 | - |
| 住宅保険料 | 住宅保険料あり | 更新料 | - |
| 契約形態 | - | 契約期間 | 1年 |
| 入居・引渡期間 | 2026年05月下旬 | 現況 | 賃貸中 |
| 契約備考 | 2010年9月完成の築浅分譲賃貸マンションです。地下鉄烏丸御池駅まですぐ(徒歩3分)。阪急、地下鉄のダブルアクセス。更新料ナシです。嬉しい3点セパレートに追い焚き機能付浴室、システムキッチン、温水洗浄便座など充実の設備。オートロック、防犯カメラ、TVホンでセキュリティも安心です。コンビニ、スーパーなど近くにあって便利ですよ。 更新料:無し その他設備/条件:分譲賃貸、コンロ2口以上、TVドアホン | ||
部屋の情報
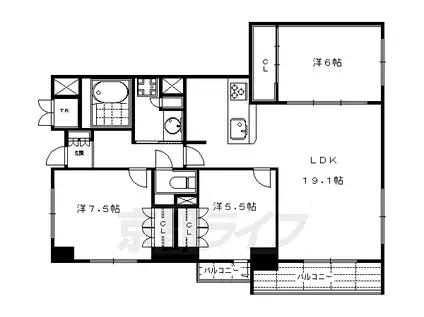
| 間取り | 3LDK | 専有面積 | 83.65m2 |
|---|---|---|---|
| 間取り詳細 | 洋室(5.5帖)、洋室(6帖)、洋室(7.5帖)、LDK(19.1帖) | ||
| 所在階 / 向き | 10階 / 西 | バルコニー面積 | - |
| 水道 / ガス | ガス【都市】 | ||
| 設備 | バス・トイレ別、2階以上、オートロック、宅配ボックス、追い焚き、システムキッチン、カウンターキッチン、エアコン、エレベーター、温水洗浄便座、バルコニー、フローリング、床暖房、コンロ:ガス、BSアンテナ、洗濯機:室内 | ||
| 当社物件ID | 160789473 | ||
建物の情報
| 建物名 | 京都市烏丸線 烏丸御池駅 徒歩3分 11階建 築16年 | ||
|---|---|---|---|
| 所在地 | 京都府京都市中京区御池之町 | ||
| 交通 | 京都市烏丸線 烏丸御池駅 徒歩3分 京都市烏丸線 丸太町駅(京都市営) 徒歩8分 | ||
| 階数 | 11階建 | 総戸数 | - |
| 築年月 | 2010年09月 / 築16年 | エレベーター | あり |
| 駐車場 | - | バイク置き場 | - |
| 駐輪場 | あり | 管理人/管理会社 | - |
| 建物種別 | マンション | 建物構造 | RC(鉄筋コンクリート) |
この部屋の取扱い不動産会社
| 会社名 | 株式会社 京都ライフ 烏丸五条店(賃貸スモッカ経由) | ||
|---|---|---|---|
| 所在地 | 京都市下京区烏丸通五条下ル大坂町377 Gloire烏丸五条1階 | 交通 | - |
| 営業時間 | - | 定休日 | - |
| 免許番号 | 京都府知事(11)第6353号 | 取引態様 | 仲介 |
| 不動産会社管理番号 | kyotolife_69041-1003-23 | 当社管理番号 | 463 |
| 所属団体 | 京都府宅地建物取引業協会\n公益社団法人近畿地区不動産公正取引協議会 | ||
| 公正取引協議会 | 全国宅地建物取引業保証協会 | ||
| 取扱い物件情報 | 物件詳細へ | ||
※各種情報と現状に差異がある場合は、現状優先となります。問い合わせをすることで、より詳しい条件、情報を確認する事ができます。
提供:株式会社 京都ライフ 烏丸五条店(賃貸スモッカ経由)
この物件が気になったら掲載期限まであと6日
京都市烏丸線 烏丸御池駅 徒歩3分 11階建 築16年に条件(家賃・エリア)が近い物件一覧
| 写真 | 家賃 管理費等 | 敷金 礼金 | 間取り 専有面積 | 築年数 | 最寄り駅 所在地 | キープ | 詳細 |
|---|---|---|---|---|---|---|---|
マンション 京都市烏丸線 烏丸御池駅 徒歩3分 築13年(2LDK/3階) | |||||||
![]() | 20万円 なし | 20万円 40万円 | 2LDK 56.84m2 | 築13年 | 京都市烏丸線 烏丸御池駅 徒歩3分 京都市東西線 二条城前駅 徒歩8分 京都府京都市中京区長浜町 | 詳細を見る | |
マンション 京都市烏丸線 烏丸御池駅 徒歩5分 築12年(2LDK/2階) | |||||||
![]() | 26万円 1.5万円 | 26万円 26万円 | 2LDK 65.5m2 | 築12年 | 京都市烏丸線 烏丸御池駅 徒歩5分 京都市東西線 烏丸御池駅 徒歩5分 京都府京都市中京区下松屋町 | 詳細を見る | |
マンション 京都市烏丸線 丸太町駅(京都市営) 徒歩4分 新築(2LDK/3階) | |||||||
![]() | 24.5万円 1万円 | 24.5万円 49万円 | 2LDK 70.68m2 | 新築 | 京都市烏丸線 丸太町駅(京都市営) 徒歩4分 京都市烏丸線 烏丸御池駅 徒歩7分 京都府京都市中京区壺屋町 | 詳細を見る | |
マンション 山陰本線 円町駅 徒歩6分 築5年(2LDK/4階) | |||||||
![]() | 19.5万円 5,000円 | 19.5万円 39万円 | 2LDK 66.8m2 | 築5年 | 山陰本線 円町駅 徒歩6分 京都市東西線 西大路御池駅 徒歩15分 京都府京都市中京区西ノ京中保町 | 詳細を見る | |
マンション イーグルコート烏丸御池ル・シエル(2LDK/9階) | |||||||
![]() | 24.5万円 3万円 | 24.5万円 49万円 | 2LDK 63.45m2 | 築11年 | 京都市烏丸線 烏丸御池駅 徒歩5分 京都市東西線 二条城前駅 徒歩8分 京都府京都市中京区津軽町 | 詳細を見る | |
マンション 京都市烏丸線 丸太町駅(京都市営) 徒歩6分 築6年(2LDK/4階) | |||||||
![]() | 21万円 1万円 | なし 42万円 | 2LDK 62.7m2 | 築6年 | 京都市烏丸線 丸太町駅(京都市営) 徒歩6分 京都市烏丸線 烏丸御池駅 徒歩7分 京都府京都市中京区松屋町 | 詳細を見る | |
マンション 京都市烏丸線 丸太町駅(京都市営) 徒歩4分 新築(2LDK/2階) | |||||||
![]() | 25万円 1万円 | 25万円 50万円 | 2LDK 71.08m2 | 新築 | 京都市烏丸線 丸太町駅(京都市営) 徒歩4分 京都市烏丸線 烏丸御池駅 徒歩7分 京都府京都市中京区壺屋町 | 詳細を見る | |
マンション 京都市烏丸線 烏丸御池駅 徒歩6分 築26年(2SLDK/5階) | |||||||
![]() | 24万円 なし | 48万円 48万円 | 2SLDK 75.71m2 | 築26年 | 京都市烏丸線 烏丸御池駅 徒歩6分 京都市東西線 京都市役所前駅 徒歩9分 京都府京都市中京区竹屋町 | 詳細を見る | |








