賃貸アパート
スプリング・コート寺家の賃貸物件情報(1K/2階)
| 家賃 | 管理費等 | 敷金 | 礼金 | 間取り | 専有面積 |
|---|---|---|---|---|---|
| 5.7万円 | なし | なし | 5.7万円 | 1K | 31.19m2 |
入居決定でお祝い金最大100,000円
- 保証金
- -
- 償却・敷引
- -
- 築年数
- 築3年
- 所在階
- 2階
- 向き
- 南
Point
寺家駅徒歩5分、駅利用の単身者の方にお勧め、足回りのよい単身用物件です。充実の設備で快適な毎日をサポート、オートロック&防犯カメラで初めての一人暮らしも安心。シンプルな間取りで落ち着いた室内が素敵!
提供:ハウスメイトネットワーク東広島店(有)アクシアエステート(SUUMO経由)

詳細情報 スプリング・コート寺家
物件紹介
スプリング・コート寺家はJR山陽本線寺家駅から徒歩5分にあり、駅近で通勤通学に便利なアパートです。
このお部屋は2階以上に位置しているので、通行人や周囲の住人からの視線が気になりにくく、防犯面でも安心。建物のエントランスはオートロックがついており、インターホンにはTVモニタもついているため、相手の顔を確認してから来客対応することができます。
人気の南向き・フローリングのお部屋。角部屋でもあるため、周囲の居住者の生活音も気になりにくい場所です。キッチンはシステムキッチン仕様になっていますので、お料理好きの方にもぴったり。また、バス・トイレは別で、のんびりお風呂タイムも楽しめるでしょう。
通信設備面では、インターネットが無料で使えるので、月々の出費を抑えられるのも魅力です。また、BSアンテナもありますので、おうち時間も充実するでしょう(別途工事、BSの契約料等が必要な場合あり)。
共用部には宅配ボックスが設定されているので、不在の時にも荷物を受け取ることができます。
このお部屋は2階以上に位置しているので、通行人や周囲の住人からの視線が気になりにくく、防犯面でも安心。建物のエントランスはオートロックがついており、インターホンにはTVモニタもついているため、相手の顔を確認してから来客対応することができます。
人気の南向き・フローリングのお部屋。角部屋でもあるため、周囲の居住者の生活音も気になりにくい場所です。キッチンはシステムキッチン仕様になっていますので、お料理好きの方にもぴったり。また、バス・トイレは別で、のんびりお風呂タイムも楽しめるでしょう。
通信設備面では、インターネットが無料で使えるので、月々の出費を抑えられるのも魅力です。また、BSアンテナもありますので、おうち時間も充実するでしょう(別途工事、BSの契約料等が必要な場合あり)。
共用部には宅配ボックスが設定されているので、不在の時にも荷物を受け取ることができます。
お金・契約の情報
※「-」と表示されているものは、実際は料金が発生するものもございます。詳細はお問い合わせください。
| 家賃 | 5.7万円 | 管理費・共益費 | なし |
|---|---|---|---|
| 敷金 | なし | 礼金 | 5.7万円 |
| 入居決定でお祝い金最大100,000円 | |||
| 保証金 | - | 償却・敷引 | - |
| 住宅保険料 | - | 更新料 | - |
| 保証会社利用 | 必須 | 保証会社名 | 全保連 |
| 保証会社費用 | - | 保証会社備考 | 全保連利用必 保証会社初期費用:総賃料の60%(最低保証料20 000円)月額保証料:1300円/月 |
| 契約形態 | - | 契約期間 | - |
| 入居・引渡期間 | 即時 | 現況 | - |
| 契約備考 | オートロック/防犯カメラ/宅配ボックス(お留守の時の宅配便の受取に便利)/ガス2口コンロ付システムキッチン/駐車場軽区画は3300円/インターネット無料 合計1.65万円(内訳:サポートコール(2年間)1.65万円) 室内清掃費用 55000円 1K 単身者限定/子供不可 普通借家2年 損保【1.6万円2年】 バストイレ別、エアコン、ガスコンロ対応、クロゼット、フローリング、シャワー付洗面台、TVインターホン、オートロック、室内洗濯置、シューズボックス、システムキッチン、南向き、角住戸、温水洗浄便座、洗面所独立、2口コンロ、駐輪場、宅配ボックス、即入居可、防犯カメラ、保証人不要、ネット使用料不要、築3年以内、敷地内ごみ置き場、築5年以内、プロパンガス、BS、保証会社利用可 | ||
部屋の情報
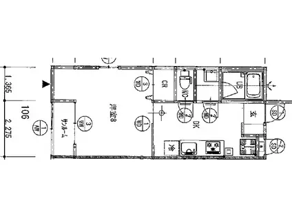
| 間取り | 1K | 専有面積 | 31.19m2 |
|---|---|---|---|
| 所在階 / 向き | 2階 / 南 | バルコニー面積 | - |
| 水道 / ガス | - | ||
| 設備 | バス・トイレ別、2階以上、オートロック、テレビドアホン、宅配ボックス、インターネット対応、システムキッチン、エアコン、温水洗浄便座、南向き、角部屋、フローリング、洗髪洗面化粧台、2口コンロ、コンロ:ガス、BSアンテナ、インターネット使用料無料、洗濯機:室内 | ||
| 当社物件ID | 159425959 | ||
建物の情報
| 建物名 | スプリング・コート寺家 | ||
|---|---|---|---|
| 所在地 | 広島県東広島市西条町寺家 | ||
| 交通 | JR山陽本線 寺家駅 徒歩5分 JR山陽本線 西条駅(広島) 徒歩29分 山陽新幹線 東広島駅 徒歩106分 | ||
| 階数 | 2階建 | 総戸数 | 10戸 |
| 築年月 | 2023年09月 / 築3年 | エレベーター | - |
| 駐車場 | 空有 4400円 | バイク置き場 | - |
| 駐輪場 | あり | 管理人/管理会社 | - |
| 周辺環境 | その他 東広島医療センター(病院)まで1020m その他 ショージ寺家駅前(スーパー)まで379m その他 ローソン 東広島寺家駅前店(コンビニ)まで295m その他 ディスカウントドラッグコスモス寺家店(ドラッグストア)まで889m その他 ウォンツ西条西店(ドラッグストア)まで732m その他 マックスバリュ西条西店(スーパー)まで753m | ||
| 建物種別 | アパート | 建物構造 | 木造 |
この部屋の取扱い不動産会社
| 会社名 | ハウスメイトネットワーク東広島店(有)アクシアエステート(SUUMO経由) | ||
|---|---|---|---|
| 所在地 | 広島県東広島市西条御条町 5-5 カイチビル101 | 交通 | - |
| 営業時間 | AM9:30~PM18:00 | 定休日 | 水曜日 |
| 免許番号 | 広島県知事8141 | 取引態様 | 仲介 |
| 不動産会社管理番号 | 100457330624 | 当社管理番号 | 89 |
| 所属団体 | (公社)広島県宅地建物取引業協会会員 | ||
| 公正取引協議会 | 中国地区不動産公正取引協議会加盟 | ||
| 取扱い物件情報 | 物件詳細へ | ||
※各種情報と現状に差異がある場合は、現状優先となります。問い合わせをすることで、より詳しい条件、情報を確認する事ができます。
提供:ハウスメイトネットワーク東広島店(有)アクシアエステート(SUUMO経由)
この物件が気になったら掲載期限まであと10日
スプリング・コート寺家に条件(家賃・エリア)が近い物件一覧
| 写真 | 家賃 管理費等 | 敷金 礼金 | 間取り 専有面積 | 築年数 | 最寄り駅 所在地 | キープ | 詳細 |
|---|---|---|---|---|---|---|---|
アパート ドエルまさもとA棟(1K/1階) | |||||||
![]() | 4.2万円 2,000円 | 4.2万円 4.2万円 | 1K 26.2m2 | 築28年 | アストラムライン 高取駅 徒歩7分 アストラムライン 上安駅 徒歩8分 アストラムライン 長楽寺駅 徒歩14分 広島県広島市安佐南区 | 詳細を見る | |
アパート コーポ新具(4SLDK/1階) | |||||||
![]() | 7.2万円 なし | 14.4万円 7.2万円 | 4SLDK 90.29m2 | 築35年 | アストラムライン 中筋駅 徒歩8分 アストラムライン 西原駅(広島) 徒歩12分 広島県広島市安佐南区東原3丁目 | 詳細を見る | |
アパート せせら弐番館(1K/4階) | |||||||
![]() | 4万円 なし | 8万円 4万円 | 1K 31m2 | 築26年 | JR可部線 七軒茶屋駅 徒歩14分 広島県広島市安佐南区川内 | 詳細を見る | |




