賃貸アパート
グランテラス駅南の賃貸物件情報(2LDK/3階)
| 家賃 | 管理費等 | 敷金 | 礼金 | 間取り | 専有面積 |
|---|---|---|---|---|---|
| 7.5万円 | 3,000円 | 7.5万円 | なし | 2LDK | 62.72m2 |
入居決定でお祝い金最大100,000円
Point
ドアを開けたり直接会話しなくてもモニター越しに来訪者を確認できるモニター付きインターホンを設置しております。忙しい朝でも鏡を見ながらサッと身支度を整えることができる独立洗面台を採用しています。
提供:いい部屋ネット大東建託リーシング(株)高岡店(SUUMO経由)

詳細情報 グランテラス駅南
物件紹介
グランテラス駅南はあいの風とやま鉄道高岡駅から徒歩8分にあり、駅近で通勤通学に便利なアパートです。
このお部屋は2階以上に位置しているので、通行人や周囲の住人からの視線が気になりにくく、防犯面でも安心。インターホンにはTVモニタもついているため、相手の顔を確認してから来客対応することができます。
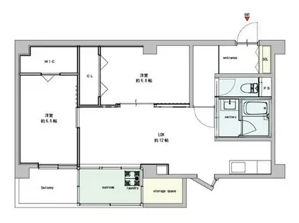
人気の南向き・フローリングのお部屋。角部屋でもあるため、周囲の居住者の生活音も気になりにくい場所です。室内にはウォークインクローゼットがありますので、たくさんの荷物も効率的に収納ができます。バス・トイレ別の仕様で、のんびりお風呂タイムも楽しめます。
通信設備面では、インターネットが無料で使えるので、月々の出費を抑えられるのも魅力です(別途工事等が必要な場合あり)。
このお部屋は2階以上に位置しているので、通行人や周囲の住人からの視線が気になりにくく、防犯面でも安心。インターホンにはTVモニタもついているため、相手の顔を確認してから来客対応することができます。
人気の南向き・フローリングのお部屋。角部屋でもあるため、周囲の居住者の生活音も気になりにくい場所です。室内にはウォークインクローゼットがありますので、たくさんの荷物も効率的に収納ができます。バス・トイレ別の仕様で、のんびりお風呂タイムも楽しめます。
通信設備面では、インターネットが無料で使えるので、月々の出費を抑えられるのも魅力です(別途工事等が必要な場合あり)。
お金・契約の情報
※「-」と表示されているものは、実際は料金が発生するものもございます。詳細はお問い合わせください。
| 家賃 | 7.5万円 | 管理費・共益費 | 3,000円 |
|---|---|---|---|
| 敷金 | 7.5万円 | 礼金 | なし |
| 入居決定でお祝い金最大100,000円 | |||
| 保証金 | - | 償却・敷引 | - |
| 住宅保険料 | - | 更新料 | - |
| 保証会社利用 | 必須 | 保証会社名 | リクルートフォレントインシュア |
| 保証会社費用 | - | 保証会社備考 | オリコフォレントインシュア利用必 加入要 初回保証料:50%、月額:1%、更新料なし |
| 契約形態 | - | 契約期間 | - |
| 入居・引渡期間 | 即時 | 現況 | - |
| 契約備考 | ご契約から6ヶ月未満の解約は賃料1ヶ月分の違約金が発生します。 更新料 新賃料0.50ヶ月分 月額保証料 843円(月額) 安心入居サポート 880円(月額) 火災保険 1100円(月額) 2LDK 損保【要】 バストイレ別、バルコニー、クロゼット、TVインターホン、室内洗濯置、シューズボックス、南向き、角住戸、温水洗浄便座、洗面所独立、駐輪場、最上階、照明付、全居室洋室、ウォークインクロゼット、駐車2台可、敷金1ヶ月、バイク置場、全居室フローリング、エアコン2台、ディンプルキー、ネット使用料不要、保証金不要、サンルーム、都市ガス、IT重説対応物件 | ||
部屋の情報
| 間取り | 2LDK | 専有面積 | 62.72m2 |
|---|---|---|---|
| 所在階 / 向き | 3階 / 南 | バルコニー面積 | - |
| 水道 / ガス | - | ||
| 設備 | バス・トイレ別、2階以上、テレビドアホン、ウォークインクローゼット、インターネット対応、エアコン、温水洗浄便座、南向き、角部屋、バルコニー、フローリング、洗髪洗面化粧台、インターネット使用料無料、洗濯機:室内 | ||
| 当社物件ID | 159972123 | ||
建物の情報
| 建物名 | グランテラス駅南 | ||
|---|---|---|---|
| 所在地 | 富山県高岡市駅南 | ||
| 交通 | あいの風とやま鉄道 高岡駅 徒歩8分 JR氷見線 高岡駅 徒歩8分 JR城端線 高岡駅 徒歩8分 | ||
| 階数 | 3階建 | 総戸数 | 9戸 |
| 築年月 | 1980年12月 / 築46年 | エレベーター | - |
| 駐車場 | 空有 5500円/駐2台付 | バイク置き場 | あり |
| 駐輪場 | あり | 管理人/管理会社 | - |
| 周辺環境 | その他 高岡市立下関小学校(小学校)まで467m その他 高岡市立芳野中学校(中学校)まで499m その他 大阪屋ショップ(スーパー)まで701m その他 イオンモール高岡(スーパー)まで1802m その他 セブンイレブン 高岡駅南4丁目店(コンビニ)まで241m その他 クスリのアオキ 高岡駅南店(ドラッグストア)まで451m | ||
| 建物種別 | アパート | 建物構造 | RC(鉄筋コンクリート) |
この部屋の取扱い不動産会社
| 会社名 | いい部屋ネット大東建託リーシング(株)高岡店(SUUMO経由) | ||
|---|---|---|---|
| 所在地 | 富山県高岡市赤祖父 747 | 交通 | - |
| 営業時間 | 10:00~12:30 13:30~18:00 | 定休日 | 火曜日、水曜日 |
| 免許番号 | 国土交通大臣9120 | 取引態様 | 仲介 |
| 不動産会社管理番号 | 100475625928 | 当社管理番号 | 89 |
| 所属団体 | (公財)日本賃貸住宅管理協会会員 | ||
| 公正取引協議会 | (公社)首都圏不動産公正取引協議会加盟 | ||
| 取扱い物件情報 | 物件詳細へ | ||
※各種情報と現状に差異がある場合は、現状優先となります。問い合わせをすることで、より詳しい条件、情報を確認する事ができます。
提供:いい部屋ネット大東建託リーシング(株)高岡店(SUUMO経由)
この物件が気になったら掲載期限まであと10日
グランテラス駅南に条件(家賃・エリア)が近い物件一覧
| 写真 | 家賃 管理費等 | 敷金 礼金 | 間取り 専有面積 | 築年数 | 最寄り駅 所在地 | キープ | 詳細 |
|---|---|---|---|---|---|---|---|
アパート 城端線 東野尻駅 徒歩97分 築12年(1LDK/1階) | |||||||
![]() | 6万円 6,500円 | なし 5万円 | 1LDK 50.32m2 | 築12年 | 城端線 東野尻駅 徒歩97分 城端線 砺波駅 徒歩101分 富山県小矢部市和沢 | 詳細を見る | |
アパート 万葉線 広小路駅(富山) 徒歩17分 新築(ワンルーム/1階) | |||||||
![]() | 5.55万円 4,400円 | なし 5.55万円 | ワンルーム 32.43m2 | 新築 | 万葉線 広小路駅(富山) 徒歩17分 氷見線 越中中川駅 徒歩27分 あいの風とやま鉄道 高岡駅 徒歩31分 富山県高岡市内免3丁目 | 詳細を見る | |
アパート 北陸新幹線 新高岡駅 徒歩14分 築6年(1LDK/1階) | |||||||
![]() | 7.4万円 5,000円 | なし 10万円 | 1LDK 47.4m2 | 築6年 | 北陸新幹線 新高岡駅 徒歩14分 万葉線 末広町駅(富山) 徒歩22分 万葉線 片原町駅(富山) 徒歩24分 富山県高岡市 | 詳細を見る | |
アパート 万葉線 末広町駅(富山) 徒歩28分 築13年(1LDK/2階) | |||||||
![]() | 5.2万円 5,000円 | なし 8万円 | 1LDK 45.66m2 | 築13年 | 万葉線 末広町駅(富山) 徒歩28分 万葉線 坂下町駅 徒歩29分 富山県高岡市 | 詳細を見る | |
マンション 万葉線 市民病院前駅 徒歩2分 築3年(1LDK/2階) | |||||||
![]() | 7.1万円 4,500円 | 7.1万円 7.1万円 | 1LDK 41.48m2 | 築3年 | 万葉線 市民病院前駅 徒歩2分 氷見線 越中中川駅 徒歩13分 あいの風とやま鉄道 高岡駅 徒歩32分 富山県高岡市宝町 | 詳細を見る | |
アパート あいの風とやま鉄道 高岡駅 徒歩18分 築14年(ワンルーム/2階) | |||||||
![]() | 5.5万円 5,000円 | なし 6万円 | ワンルーム 33.62m2 | 築14年 | あいの風とやま鉄道 高岡駅 徒歩18分 万葉線 末広町駅(富山) 徒歩20分 万葉線 片原町駅(富山) 徒歩23分 富山県高岡市 | 詳細を見る | |
アパート 氷見線 越中中川駅 徒歩9分 築21年(2LDK/2階) | |||||||
![]() | 5.3万円 2,200円 | なし なし | 2LDK 57.02m2 | 築21年 | 氷見線 越中中川駅 徒歩9分 あいの風とやま鉄道 高岡駅 徒歩15分 万葉線 急患医療センター前駅 徒歩19分 富山県高岡市中川栄町 | 詳細を見る | |








