賃貸マンション
ザ・パークハビオ目黒プレイスの賃貸物件情報(1DK/7階)
| 家賃 | 管理費等 | 敷金 | 礼金 | 間取り | 専有面積 |
|---|---|---|---|---|---|
| 23.5万円 | 1.5万円 | 23.5万円 | なし | 1DK | 32.85m2 |
入居決定でお祝い金最大100,000円
- 保証金
- -
- 償却・敷引
- -
- 築年数
- 築1年
- 所在階
- 7階
- 向き
- 南西
Point
オンライン内見・契約実施!初期費用クレカ決済もご相談ください!お部屋探しはナビホーム赤坂店にお任せください♪
提供:TR(株)MINATO HOME(SUUMO経由)

詳細情報 ザ・パークハビオ目黒プレイス
物件紹介
ザ・パークハビオ目黒プレイスはJR山手線目黒駅から徒歩5分にあり、駅近で通勤通学に便利なマンションです。
このお部屋は2階以上に位置しているので、通行人や周囲の住人からの視線が気になりにくく、防犯面でも安心。建物のエントランスはオートロックがついており、インターホンにはTVモニタもついているため、相手の顔を確認してから来客対応することができます。
こちらは楽器相談が可能な物件。楽器演奏をお考えの方はぜひ相談してみてください。人気の南向きのお部屋。また、フローリングなのでお掃除もラクラク。キッチンはシステムキッチン仕様になっていますので、お料理好きの方にもぴったり。バス・トイレは別なので、のんびりお風呂タイムも楽しめるでしょう。また、雨の日でも浴室乾燥機を使えば、お洗濯も問題ありません。
通信設備面では、インターネットが無料で使えるので、月々の出費を抑えられるのも魅力です。また、BSアンテナ・CSアンテナもありますので、おうち時間も充実するでしょう(別途工事、BS・CSの契約料等が必要な場合あり)。
建物にはエレベーターがついているので、重い荷物があっても安心。共用部には宅配ボックスが設定されているので、不在の時にも荷物を受け取ることができます。また、ペット飼育の相談ができますので、あなたの大切な家族の一員も快適に暮らせるか、ぜひ確認してみてください。
このお部屋は2階以上に位置しているので、通行人や周囲の住人からの視線が気になりにくく、防犯面でも安心。建物のエントランスはオートロックがついており、インターホンにはTVモニタもついているため、相手の顔を確認してから来客対応することができます。
こちらは楽器相談が可能な物件。楽器演奏をお考えの方はぜひ相談してみてください。人気の南向きのお部屋。また、フローリングなのでお掃除もラクラク。キッチンはシステムキッチン仕様になっていますので、お料理好きの方にもぴったり。バス・トイレは別なので、のんびりお風呂タイムも楽しめるでしょう。また、雨の日でも浴室乾燥機を使えば、お洗濯も問題ありません。
通信設備面では、インターネットが無料で使えるので、月々の出費を抑えられるのも魅力です。また、BSアンテナ・CSアンテナもありますので、おうち時間も充実するでしょう(別途工事、BS・CSの契約料等が必要な場合あり)。
建物にはエレベーターがついているので、重い荷物があっても安心。共用部には宅配ボックスが設定されているので、不在の時にも荷物を受け取ることができます。また、ペット飼育の相談ができますので、あなたの大切な家族の一員も快適に暮らせるか、ぜひ確認してみてください。
お金・契約の情報
※「-」と表示されているものは、実際は料金が発生するものもございます。詳細はお問い合わせください。
| 家賃 | 23.5万円 | 管理費・共益費 | 1.5万円 |
|---|---|---|---|
| 敷金 | 23.5万円 | 礼金 | なし |
| 入居決定でお祝い金最大100,000円 | |||
| 保証金 | - | 償却・敷引 | - |
| 住宅保険料 | - | 更新料 | - |
| 保証会社利用 | 必須 | 保証会社名 | 日本セーフティー |
| 保証会社費用 | - | 保証会社備考 | 日本セーフティー利用必 初年度保証料:賃料等合計額の50%(最低保証料2万円)2年目以降:1年毎1万円 |
| 契約形態 | - | 契約期間 | - |
| 入居・引渡期間 | 即時 | 現況 | - |
| 入居可能条件 | 楽器相談、ペット相談 | ||
| 契約備考 | ※SOHO使用・ペット飼育敷金1ヶ月積み増し※保証会社未使用時敷金2ヶ月※退去時室内清掃・エアコン洗浄費借主負担 賃貸保証:加入要 日本セーフティー 初年度保証料:賃料等合計額の50(最低保証料2万円)2年目以降:1年毎1万円 更新料:新賃料1ヶ月 更新料 新賃料1.00ヶ月分 1DK 二人入居可/ペット相談/楽器相談 普通借家2年 損保【要】 バストイレ別、バルコニー、エアコン、ガスコンロ対応、クロゼット、フローリング、TVインターホン、浴室乾燥機、オートロック、室内洗濯置、シューズボックス、システムキッチン、追焚機能浴室、温水洗浄便座、脱衣所、エレベーター、洗面所独立、洗面化粧台、2口コンロ、宅配ボックス、光ファイバー、即入居可、礼金不要、BS・CS、防犯カメラ、ペット相談、照明付、全居室洋室、保証人不要、敷金1ヶ月、全居室フローリング、ガスレンジ付、2沿線利用可、CS、ネット専用回線、ネット使用料不要、保証金不要、築2年以内、楽器相談、築3年以内、2駅利用可、3駅以上利用可、駅徒歩5分以内、駅徒歩10分以内、築5年以内、南西向き、都市ガス、洗面所にドア、シューズWIC、BS、保証会社利用可、IT重説対応物件、初期費用カード決済可、家賃カード決済可 敷金積み増し【ペット飼育の場合敷金2ヶ月(総額)】 | ||
部屋の情報
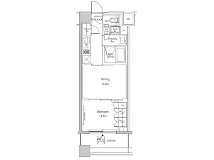
| 間取り | 1DK | 専有面積 | 32.85m2 |
|---|---|---|---|
| 所在階 / 向き | 7階 / 南西 | バルコニー面積 | - |
| 水道 / ガス | - | ||
| 設備 | バス・トイレ別、2階以上、オートロック、テレビドアホン、宅配ボックス、浴室乾燥機、追い焚き、インターネット対応、システムキッチン、エアコン、エレベーター、温水洗浄便座、南向き、バルコニー、フローリング、洗髪洗面化粧台、2口コンロ、コンロ:ガス、CSアンテナ、BSアンテナ、インターネット使用料無料、洗濯機:室内 | ||
| 当社物件ID | 159741188 | ||
建物の情報
| 建物名 | ザ・パークハビオ目黒プレイス | ||
|---|---|---|---|
| 所在地 | 東京都目黒区下目黒 | ||
| 交通 | JR山手線 目黒駅 徒歩5分 東急目黒線 不動前駅 徒歩14分 JR山手線 五反田駅 徒歩19分 | ||
| 階数 | 8階建 | 総戸数 | - |
| 築年月 | 2025年04月 / 築1年 | エレベーター | あり |
| 駐車場 | なし | バイク置き場 | - |
| 駐輪場 | - | 管理人/管理会社 | - |
| 周辺環境 | その他 まいばすけっと 目黒太鼓橋店(スーパー)まで197m その他 まいばすけっと 下目黒2丁目店(スーパー)まで371m その他 東急ストア 目黒店(スーパー)まで430m その他 ローソン 下目黒一丁目店(コンビニ)まで82m その他 ローソン 目黒一丁目店(コンビニ)まで173m その他 セブンイレブン 下目黒1丁目店(コンビニ)まで219m | ||
| 建物種別 | マンション | 建物構造 | RC(鉄筋コンクリート) |
この部屋の取扱い不動産会社
| 会社名 | TR(株)ナビホーム赤坂店(SUUMO経由) | ||
|---|---|---|---|
| 所在地 | 東京都港区赤坂2-19-4 関ビル4階 | 交通 | - |
| 営業時間 | 10時~19時 | 定休日 | - |
| 免許番号 | 東京都知事109457 | 取引態様 | 仲介 |
| 不動産会社管理番号 | 100474737790 | 当社管理番号 | 89 |
| 所属団体 | (公社)東京都宅地建物取引業協会会員 | ||
| 公正取引協議会 | (公社)首都圏不動産公正取引協議会加盟 | ||
| 取扱い物件情報 | 物件詳細へ | ||
※各種情報と現状に差異がある場合は、現状優先となります。問い合わせをすることで、より詳しい条件、情報を確認する事ができます。
提供:TR(株)ナビホーム赤坂店(SUUMO経由)
この物件が気になったら掲載期限まであと10日
ザ・パークハビオ目黒プレイスに条件(家賃・エリア)が近い物件一覧
| 写真 | 家賃 管理費等 | 敷金 礼金 | 間取り 専有面積 | 築年数 | 最寄り駅 所在地 | キープ | 詳細 |
|---|---|---|---|---|---|---|---|
アパート ノリアセット(2LDK/1階) | |||||||
![]() | 18.2万円 3,000円 | 18.2万円 18.2万円 | 2LDK 62.72m2 | 新築 | 京急本線 大森町駅 徒歩9分 京急本線 梅屋敷駅(東京) 徒歩16分 東京都大田区大森東 | 詳細を見る | |
マンション ラフィーネ大森(3LDK/3階) | |||||||
![]() | 32.9万円 2,000円 | 32.9万円 なし | 3LDK 116.22m2 | 築22年 | 京急本線 平和島駅 徒歩14分 京急本線 大森町駅 徒歩16分 JR京浜東北線 大森駅(東京) 徒歩16分 東京都大田区大森西 | 詳細を見る | |
アパート ノリアセット(2LDK/3階) | |||||||
![]() | 18.6万円 3,000円 | 18.6万円 18.6万円 | 2LDK 62.72m2 | 新築 | 京浜急行電鉄本線 大森町駅 徒歩9分 京浜急行電鉄本線 梅屋敷駅(東京) 徒歩16分 東京都大田区大森東3丁目 | 詳細を見る | |
一戸建て 京浜急行電鉄本線 大森町駅 徒歩14分 築38年(3LDK) | |||||||
![]() | 14.8万円 なし | 14.8万円 14.8万円 | 3LDK 62.09m2 | 築38年 | 京浜急行電鉄本線 大森町駅 徒歩14分 京浜急行電鉄本線 平和島駅 徒歩19分 東京都大田区大森東3丁目 | 詳細を見る | |
マンション SAKURA(2LDK/2階) | |||||||
![]() | 19.5万円 5,000円 | 19.5万円 19.5万円 | 2LDK 54.84m2 | 築5年 | 京急本線 梅屋敷駅(東京) 徒歩7分 京急本線 大森町駅 徒歩9分 東京都大田区大森中 | 詳細を見る | |
一戸建て 京浜急行電鉄本線 大森町駅 徒歩14分 築23年(3LDK) | |||||||
![]() | 20万円 なし | 20万円 20万円 | 3LDK 71.86m2 | 築23年 | 京浜急行電鉄本線 大森町駅 徒歩14分 京浜急行電鉄本線 梅屋敷駅(東京) 徒歩16分 東京都大田区大森東4丁目 | 詳細を見る | |
マンション ロサルバ大森(2DK/4階) | |||||||
![]() | 15.6万円 7,000円 | 15.6万円 31.2万円 | 2DK 50.48m2 | 築23年 | 京浜急行電鉄本線 大森町駅 徒歩8分 京浜急行電鉄本線 梅屋敷駅(東京) 徒歩8分 東京都大田区大森西3丁目 | 詳細を見る | |
一戸建て 京浜急行電鉄本線 梅屋敷駅(東京) 徒歩9分 築25年(3LDK) | |||||||
![]() | 20万円 なし | 20万円 20万円 | 3LDK 80.82m2 | 築25年 | 京浜急行電鉄本線 梅屋敷駅(東京) 徒歩9分 京浜東北・根岸線 蒲田駅 徒歩10分 東京都大田区大森西7丁目 | 詳細を見る | |








