賃貸マンション
京都市烏丸線 烏丸御池駅 徒歩7分 5階建 築8年の賃貸物件情報(1SLDK/1階)
| 家賃 | 管理費等 | 敷金 | 礼金 | 間取り | 専有面積 |
|---|---|---|---|---|---|
| 17.8万円 | 1万円 | 17.8万円 | 35.6万円 | 1SLDK | 54.13m2 |
入居決定でお祝い金最大100,000円
Point
高級分譲マンションシリーズ
提供:株式会社 京都ライフ 西院店(賃貸スモッカ経由)

詳細情報 京都市烏丸線 烏丸御池駅 徒歩7分 5階建 築8年
物件紹介
京都市烏丸線烏丸御池駅から徒歩7分にあり、駅近で通勤通学に便利なマンションです。
建物のエントランスはオートロックがついており、防犯性が高くなっています。
フローリングのお部屋なのでお掃除もラクラク。室内には人気のウォークインクローゼットがありますので、たくさんの荷物も効率的に収納ができます。キッチンはシステムキッチン仕様になっていますので、お料理好きの方にもぴったり。バス・トイレは別なので、のんびりお風呂タイムも楽しめるでしょう。また、雨の日でも浴室乾燥機を使えば、お洗濯も問題ありません。
通信設備面では、インターネット接続が可能です。また、BSアンテナ・CSアンテナもありますので、おうち時間も充実するでしょう(別途工事、契約料が必要な場合あり)。
床暖房があり、冬も足元から暖かく快適に過ごすことができます。建物にはエレベーターがついているので、重い荷物があっても安心。共用部には宅配ボックスが設定されているので、不在の時にも荷物を受け取ることができます。
建物のエントランスはオートロックがついており、防犯性が高くなっています。
フローリングのお部屋なのでお掃除もラクラク。室内には人気のウォークインクローゼットがありますので、たくさんの荷物も効率的に収納ができます。キッチンはシステムキッチン仕様になっていますので、お料理好きの方にもぴったり。バス・トイレは別なので、のんびりお風呂タイムも楽しめるでしょう。また、雨の日でも浴室乾燥機を使えば、お洗濯も問題ありません。
通信設備面では、インターネット接続が可能です。また、BSアンテナ・CSアンテナもありますので、おうち時間も充実するでしょう(別途工事、契約料が必要な場合あり)。
床暖房があり、冬も足元から暖かく快適に過ごすことができます。建物にはエレベーターがついているので、重い荷物があっても安心。共用部には宅配ボックスが設定されているので、不在の時にも荷物を受け取ることができます。
お金・契約の情報
※「-」と表示されているものは、実際は料金が発生するものもございます。詳細はお問い合わせください。
| 家賃 | 17.8万円 | 管理費・共益費 | 1万円 |
|---|---|---|---|
| 敷金 | 17.8万円 | 礼金 | 35.6万円 |
| 入居決定でお祝い金最大100,000円 | |||
| 保証金 | - | 償却・敷引 | - |
| 住宅保険料 | 住宅保険料あり | 更新料 | - |
| 契約形態 | - | 契約期間 | 2年 |
| 入居・引渡期間 | 即時 | 現況 | 空室 |
| 契約備考 | 烏丸御池に高級分譲マンションシリーズの登場です。地下鉄烏丸御池駅まで徒歩8分。阪急、地下鉄のダブルアクセス。嬉しい3点セパレートにウォークインクローゼット、浴室乾燥機、追い焚き機能付浴室、システムキッチン、など充実の設備。オートロック、防犯カメラ、TVホンでセキュリティも安心です。コンビニ、スーパーなど近くにあって便利ですよ。光ファイバー対応しています。 更新料:1ヶ月 保証会社:利用必須 初回:月額賃料等の50%、更新時:8000円/1年 その他設備/条件:分譲賃貸、1階の物件、コンロ2口以上、独立洗面台、TVドアホン、即入居可 | ||
部屋の情報
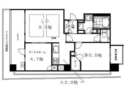
| 間取り | 1SLDK | 専有面積 | 54.13m2 |
|---|---|---|---|
| 間取り詳細 | 洋室(6.5帖)、その他(4.7帖)、LD(8.5帖)、K(2.8帖) | ||
| 所在階 / 向き | 1階 / 東 | バルコニー面積 | - |
| 水道 / ガス | ガス【都市】 | ||
| 設備 | バス・トイレ別、オートロック、宅配ボックス、浴室乾燥機、ウォークインクローゼット、追い焚き、インターネット対応、システムキッチン、カウンターキッチン、エレベーター、温水洗浄便座、フローリング、床暖房、コンロ:ガス、CSアンテナ、BSアンテナ、洗濯機:室内 | ||
| 当社物件ID | 159601732 | ||
建物の情報
| 建物名 | 京都市烏丸線 烏丸御池駅 徒歩7分 5階建 築8年 | ||
|---|---|---|---|
| 所在地 | 京都府京都市中京区三条油小路町 | ||
| 交通 | 京都市烏丸線 烏丸御池駅 徒歩7分 京都市東西線 二条城前駅 徒歩7分 | ||
| 階数 | 5階建 | 総戸数 | - |
| 築年月 | 2018年08月 / 築8年 | エレベーター | あり |
| 駐車場 | - | バイク置き場 | - |
| 駐輪場 | あり | 管理人/管理会社 | - |
| 建物種別 | マンション | 建物構造 | RC(鉄筋コンクリート) |
この部屋の取扱い不動産会社
| 会社名 | 株式会社 京都ライフ 西院店(賃貸スモッカ経由) | ||
|---|---|---|---|
| 所在地 | 京都市右京区西院巽町10番地 | 交通 | - |
| 営業時間 | - | 定休日 | - |
| 免許番号 | 京都府知事(11)第6353号 | 取引態様 | 仲介 |
| 不動産会社管理番号 | kyotolife_0593E-108-02 | 当社管理番号 | 463 |
| 所属団体 | 京都府宅地建物取引業協会\n公益社団法人近畿地区不動産公正取引協議会 | ||
| 公正取引協議会 | 全国宅地建物取引業保証協会 | ||
| 取扱い物件情報 | 物件詳細へ | ||
※各種情報と現状に差異がある場合は、現状優先となります。問い合わせをすることで、より詳しい条件、情報を確認する事ができます。
提供:株式会社 京都ライフ 西院店(賃貸スモッカ経由)
この物件が気になったら掲載期限まであと5日
京都市烏丸線 烏丸御池駅 徒歩7分 5階建 築8年に条件(家賃・エリア)が近い物件一覧
| 写真 | 家賃 管理費等 | 敷金 礼金 | 間取り 専有面積 | 築年数 | 最寄り駅 所在地 | キープ | 詳細 |
|---|---|---|---|---|---|---|---|
一戸建て 阪急電鉄京都線 西山天王山駅 徒歩14分 築30年(3LDK) | |||||||
![]() | 15万円 なし | 30万円 60万円 | 3LDK 102.86m2 | 築30年 | 阪急電鉄京都線 西山天王山駅 徒歩14分 京都府長岡京市梅が丘2丁目 | 詳細を見る | |
マンション 京都市烏丸線 烏丸御池駅 徒歩5分 築9年(3LDK/2階) | |||||||
![]() | 22万円 なし | 22万円 44万円 | 3LDK 70.08m2 | 築9年 | 京都市烏丸線 烏丸御池駅 徒歩5分 京都市東西線 京都市役所前駅 徒歩6分 京都府京都市中京区扇屋町 | 詳細を見る | |
マンション 阪急電鉄京都線 西院駅(阪急) 徒歩3分 新築(1LDK/2階) | |||||||
![]() | 10.9万円 1万円 | なし なし | 1LDK 34.8m2 | 新築 | 阪急電鉄京都線 西院駅(阪急) 徒歩3分 京都市東西線 西大路御池駅 徒歩14分 京都府京都市中京区壬生西土居ノ内町 | 詳細を見る | |
マンション VENT LUXE(1LDK/4階) | |||||||
![]() | 13.5万円 1万円 | なし 20.25万円 | 1LDK 41.9m2 | 築14年 | 地下鉄烏丸線 四条駅(京都市営) 徒歩4分 阪急京都線 烏丸駅 徒歩4分 阪急京都線 京都河原町駅 徒歩6分 京都府京都市下京区小石町 | 詳細を見る | |
マンション 京都市東西線 二条城前駅 徒歩4分 築28年(3LDK/5階) | |||||||
![]() | 16.6万円 9,000円 | 16.6万円 16.6万円 | 3LDK 62.02m2 | 築28年 | 京都市東西線 二条城前駅 徒歩4分 京都市烏丸線 烏丸御池駅 徒歩7分 京都府京都市中京区下古城町 | 詳細を見る | |
マンション 京都市烏丸線 丸太町駅(京都市営) 徒歩7分 築6年(3LDK/3階) | |||||||
![]() | 27万円 2万円 | 27万円 54万円 | 3LDK 64.37m2 | 築6年 | 京都市烏丸線 丸太町駅(京都市営) 徒歩7分 京都市烏丸線 烏丸御池駅 徒歩8分 京都府京都市中京区六丁目 | 詳細を見る | |
マンション 京都市烏丸線 四条駅(京都市営) 徒歩4分 築12年(1LDK/9階) | |||||||
![]() | 13.2万円 1.3万円 | なし 20万円 | 1LDK 40.87m2 | 築12年 | 京都市烏丸線 四条駅(京都市営) 徒歩4分 阪急電鉄京都線 烏丸駅 徒歩4分 京都府京都市中京区一蓮社町 | 詳細を見る | |
マンション 京都市烏丸線 四条駅(京都市営) 徒歩5分 築27年(4SLDK/4階) | |||||||
![]() | 27万円 1万円 | なし 27万円 | 4SLDK 126.64m2 | 築27年 | 京都市烏丸線 四条駅(京都市営) 徒歩5分 京都市烏丸線 烏丸御池駅 徒歩10分 京都府京都市中京区天神山町 | 詳細を見る | |









