賃貸マンション
ニューシティー東戸塚 ル・パルクシェルC棟の賃貸物件情報(2LDK/17階)
| 家賃 | 管理費等 | 敷金 | 礼金 | 間取り | 専有面積 |
|---|---|---|---|---|---|
| 18万円 | 5,000円 | 36万円 | 18万円 | 2LDK | 64.47m2 |
入居決定でお祝い金最大100,000円
Point
まずはお問い合わせ!
不動産会社は街のプロ、あなたに合った物件がきっと見つかります。
提供:(株)ファーストクリエイト(SUUMO経由)

詳細情報 ニューシティー東戸塚 ル・パルクシェルC棟
物件紹介
ニューシティー東戸塚 ル・パルクシェルC棟はJR横須賀線東戸塚駅から徒歩4分にあり、駅近で通勤通学に便利なマンションです。
このお部屋は2階以上に位置しているので、通行人や周囲の住人からの視線が気になりにくく、防犯面でも安心です。
フローリングのお部屋なのでお掃除もラクラク。キッチンはシステムキッチン仕様になっていますので、お料理好きの方にもぴったり。バス・トイレは別なので、のんびりお風呂タイムも楽しめるでしょう。また、雨の日でも浴室乾燥機を使えば、お洗濯も問題ありません。
通信設備面ではCATVに対応しているので、おうち時間も充実するでしょう(別途工事、契約料が必要な場合あり)。
床暖房があり、冬も足元から暖かく快適に過ごすことができます。建物にはエレベーターがついているので、重い荷物があっても安心。共用部には宅配ボックスが設定されているので、不在の時にも荷物を受け取ることができます。
このお部屋は2階以上に位置しているので、通行人や周囲の住人からの視線が気になりにくく、防犯面でも安心です。
フローリングのお部屋なのでお掃除もラクラク。キッチンはシステムキッチン仕様になっていますので、お料理好きの方にもぴったり。バス・トイレは別なので、のんびりお風呂タイムも楽しめるでしょう。また、雨の日でも浴室乾燥機を使えば、お洗濯も問題ありません。
通信設備面ではCATVに対応しているので、おうち時間も充実するでしょう(別途工事、契約料が必要な場合あり)。
床暖房があり、冬も足元から暖かく快適に過ごすことができます。建物にはエレベーターがついているので、重い荷物があっても安心。共用部には宅配ボックスが設定されているので、不在の時にも荷物を受け取ることができます。
お金・契約の情報
※「-」と表示されているものは、実際は料金が発生するものもございます。詳細はお問い合わせください。
| 家賃 | 18万円 | 管理費・共益費 | 5,000円 |
|---|---|---|---|
| 敷金 | 36万円 | 礼金 | 18万円 |
| 入居決定でお祝い金最大100,000円 | |||
| 保証金 | - | 償却・敷引 | - |
| 住宅保険料 | - | 更新料 | - |
| 保証会社利用 | 必須 | 保証会社名 | 日本賃貸保証 |
| 保証会社費用 | - | 保証会社備考 | 日本賃貸保証利用必 JID初回加入料:賃料総額×50%・更新時:賃料総額×30%・引落手数料:330円(毎月) |
| 契約形態 | - | 契約期間 | - |
| 入居・引渡期間 | 相談 | 現況 | - |
| 契約備考 | 常駐管理 2LDK 普通借家2年 損保【要】 バストイレ別、バルコニー、フローリング、シャワー付洗面台、浴室乾燥機、室内洗濯置、シューズボックス、システムキッチン、追焚機能浴室、温水洗浄便座、洗面所独立、駐輪場、宅配ボックス、CATV、3口以上コンロ、防犯カメラ、IHクッキングヒーター、全居室収納、分譲賃貸、バイク置場、エアコン2台、床暖房、眺望良好、トランクルーム、エレベーター2基、前面棟無、駅前、タワー型マンション、玄関リモコンキー、オープンキッチン、都市ガス、ビルトインエアコン、ワイドバルコニー、ダウンライト | ||
部屋の情報
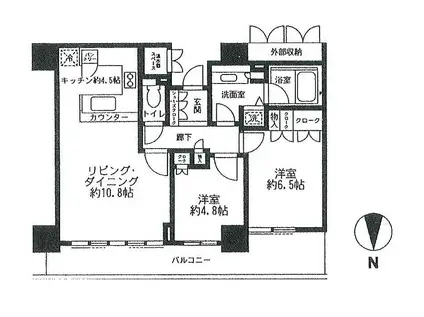
| 間取り | 2LDK | 専有面積 | 64.47m2 |
|---|---|---|---|
| 所在階 / 向き | 17階 / 北 | バルコニー面積 | - |
| 水道 / ガス | - | ||
| 設備 | バス・トイレ別、2階以上、宅配ボックス、浴室乾燥機、追い焚き、システムキッチン、エアコン、エレベーター、温水洗浄便座、バルコニー、フローリング、トランクルーム、洗髪洗面化粧台、タワーマンション、床暖房、2口コンロ、コンロ:IH、CATV、洗濯機:室内 | ||
| 当社物件ID | 160521686 | ||
建物の情報
| 建物名 | ニューシティー東戸塚 ル・パルクシェルC棟 | ||
|---|---|---|---|
| 所在地 | 神奈川県横浜市戸塚区品濃町 | ||
| 交通 | JR横須賀線 東戸塚駅 徒歩4分 | ||
| 階数 | 32階建 | 総戸数 | - |
| 築年月 | 2002年04月 / 築24年 | エレベーター | あり |
| 駐車場 | 空有 18500円 | バイク置き場 | あり |
| 駐輪場 | あり | 管理人/管理会社 | - |
| 建物種別 | マンション | 建物構造 | RC(鉄筋コンクリート) |
この部屋の取扱い不動産会社
| 会社名 | (株)ファーストクリエイト(SUUMO経由) | ||
|---|---|---|---|
| 所在地 | 神奈川県横浜市戸塚区川上町 125-1-1階 | 交通 | - |
| 営業時間 | 9:00~19:00、日曜日9:00~18:00 | 定休日 | 毎週水曜日・第1、第2火曜日 |
| 免許番号 | 神奈川県知事23334 | 取引態様 | 仲介 |
| 不動産会社管理番号 | 100492229647 | 当社管理番号 | 89 |
| 所属団体 | (公社)神奈川県宅地建物取引業協会会員 | ||
| 公正取引協議会 | (公社)首都圏不動産公正取引協議会加盟 | ||
| 取扱い物件情報 | 物件詳細へ | ||
※各種情報と現状に差異がある場合は、現状優先となります。問い合わせをすることで、より詳しい条件、情報を確認する事ができます。
提供:(株)ファーストクリエイト(SUUMO経由)
この物件が気になったら掲載期限まであと8日
ニューシティー東戸塚 ル・パルクシェルC棟に条件(家賃・エリア)が近い物件一覧
| 写真 | 家賃 管理費等 | 敷金 礼金 | 間取り 専有面積 | 築年数 | 最寄り駅 所在地 | キープ | 詳細 |
|---|---|---|---|---|---|---|---|
マンション PREMIUM MAISON光(2LDK/1階) | |||||||
![]() | 17.5万円 9,500円 | 17.5万円 なし | 2LDK 59.08m2 | 築1年 | 東急田園都市線 梶が谷駅 徒歩18分 JR南武線 武蔵新城駅 徒歩27分 東急大井町線 溝の口駅 徒歩30分 神奈川県川崎市高津区新作 | 詳細を見る | |
マンション COZYCOURT(1LDK/1階) | |||||||
![]() | 11.8万円 5,000円 | 11.8万円 11.8万円 | 1LDK 40.49m2 | 築1年 | JR南武線 小田栄駅 徒歩3分 神奈川県川崎市川崎区小田 | 詳細を見る | |
アパート CHARM高倉(2LDK/1階) | |||||||
![]() | 11.5万円 6,000円 | なし 11.5万円 | 2LDK 45.62m2 | 築1年 | 小田急江ノ島線 長後駅 徒歩6分 神奈川県藤沢市高倉 | 詳細を見る | |
アパート 六ツ角フラット3号(1LDK/3階) | |||||||
![]() | 12.1万円 4,400円 | なし 24.2万円 | 1LDK 43.68m2 | 築1年 | JR南武線 小田栄駅 徒歩9分 JR南武線 浜川崎駅 徒歩15分 JR南武線 川崎新町駅 徒歩16分 神奈川県川崎市川崎区渡田東町 | 詳細を見る | |
アパート D PAINA 中野島II(1LDK/1階) | |||||||
![]() | 12.2万円 5,500円 | なし 24.4万円 | 1LDK 40.29m2 | 築1年 | JR南武線 中野島駅 徒歩10分 小田急線 登戸駅 徒歩24分 JR南武線 登戸駅 徒歩25分 神奈川県川崎市多摩区中野島 | 詳細を見る | |
マンション KAZUNS WIND OF SEA参番館(1LDK/2階) | |||||||
![]() | 12.7万円 9,000円 | なし 25.4万円 | 1LDK 47.8m2 | 築1年 | 小田急江ノ島線 湘南台駅 徒歩8分 ブルーライン 湘南台駅 徒歩8分 相鉄いずみ野線 湘南台駅 徒歩8分 神奈川県藤沢市湘南台 | 詳細を見る | |
マンション ジョウテンヒサリコ(1LDK/2階) | |||||||
![]() | 15万円 1.1万円 | 15万円 30万円 | 1LDK 46.04m2 | 築6年 | 東急東横線 元住吉駅 徒歩11分 東急東横線 日吉駅(神奈川) 徒歩24分 JR南武線 武蔵小杉駅 徒歩25分 神奈川県川崎市中原区井田中ノ町 | 詳細を見る | |
マンション サンプランドール(1LDK/1階) | |||||||
![]() | 12.4万円 6,000円 | 12.4万円 18.6万円 | 1LDK 45.7m2 | 築8年 | JR東海道本線 戸塚駅 徒歩10分 ブルーライン 舞岡駅 徒歩21分 ブルーライン 下永谷駅 徒歩32分 神奈川県横浜市戸塚区吉田町 | 詳細を見る | |









