賃貸マンション
メインステージ目黒Ⅲの賃貸物件情報(1K/3階)
| 家賃 | 管理費等 | 敷金 | 礼金 | 間取り | 専有面積 |
|---|---|---|---|---|---|
| 13.65万円 | 2万円 | なし | 13.65万円 | 1K | 25.68m2 |
入居決定でお祝い金最大100,000円
Point
★類似物件多数、まとめて全てご案内致します★
提供:アパマンショップ五反田店

詳細情報 メインステージ目黒Ⅲ
物件紹介
メインステージ目黒Ⅲは山手線目黒駅から徒歩13分にあるマンションです。
このお部屋は2階以上に位置しているので、通行人や周囲の住人からの視線が気になりにくく、防犯面でも安心。建物のエントランスはオートロックがついており、インターホンにはTVモニタもついているため、相手の顔を確認してから来客対応することができます。
キッチンはシステムキッチン仕様になっていますので、お料理好きの方にもぴったり。バス・トイレは別なので、のんびりお風呂タイムも楽しめるでしょう。また、雨の日でも浴室乾燥機を使えば、お洗濯も問題ありません。
通信設備面では、インターネットが無料で使えるので、月々の出費を抑えられるのも魅力です。また、BSアンテナ・CSアンテナもありますので、おうち時間も充実するでしょう(別途工事、BS・CSの契約料等が必要な場合あり)。
建物にはエレベーターがついているので、重い荷物があっても安心。共用部には宅配ボックスが設定されているので、不在の時にも荷物を受け取ることができます。また、ペット飼育の相談ができますので、あなたの大切な家族の一員も快適に暮らせるか、ぜひ確認してみてください。
このお部屋は2階以上に位置しているので、通行人や周囲の住人からの視線が気になりにくく、防犯面でも安心。建物のエントランスはオートロックがついており、インターホンにはTVモニタもついているため、相手の顔を確認してから来客対応することができます。
キッチンはシステムキッチン仕様になっていますので、お料理好きの方にもぴったり。バス・トイレは別なので、のんびりお風呂タイムも楽しめるでしょう。また、雨の日でも浴室乾燥機を使えば、お洗濯も問題ありません。
通信設備面では、インターネットが無料で使えるので、月々の出費を抑えられるのも魅力です。また、BSアンテナ・CSアンテナもありますので、おうち時間も充実するでしょう(別途工事、BS・CSの契約料等が必要な場合あり)。
建物にはエレベーターがついているので、重い荷物があっても安心。共用部には宅配ボックスが設定されているので、不在の時にも荷物を受け取ることができます。また、ペット飼育の相談ができますので、あなたの大切な家族の一員も快適に暮らせるか、ぜひ確認してみてください。
お金・契約の情報
※「-」と表示されているものは、実際は料金が発生するものもございます。詳細はお問い合わせください。
| 家賃 | 13.65万円 | 管理費・共益費 | 2万円 |
|---|---|---|---|
| 敷金 | なし | 礼金 | 13.65万円 |
| 入居決定でお祝い金最大100,000円 | |||
| 保証金 | - | 償却・敷引 | - |
| 住宅保険料 | 1.5万円(2年) | 更新料 | - |
| 保証会社利用 | 必須 | 保証会社名 | エポス |
| 保証会社費用 | - | 保証会社備考 | 家賃総額より50%〜 |
| 契約形態 | - | 契約期間 | 2年 |
| 入居・引渡期間 | 2026年03月上旬 | 現況 | - |
| 入居可能条件 | ペット可 | ||
| 契約備考 | ①短期解約違約金有(1年未満=1ヶ月、半年未満=2ヶ月)②エアコンクリーニング費用(1台あたり16,500円税込み・退去時請求) 鍵交換費用 29700円/AMLクラブサポート費 16500円、[退去時費用:ルームクリーニング費 49,500円 ※故意・過失等別途実費] | ||
部屋の情報
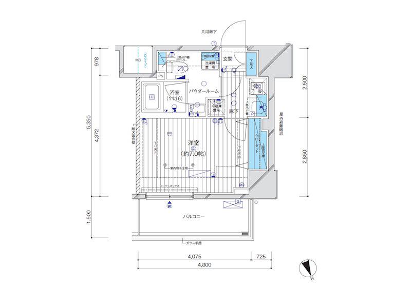
| 間取り | 1K | 専有面積 | 25.68m2 |
|---|---|---|---|
| 間取り詳細 | 洋室(7帖) | ||
| 所在階 / 向き | 3階 / 北東 | バルコニー面積 | - |
| 水道 / ガス | ガス【都市】 | ||
| 設備 | バス・トイレ別、オートロック、テレビドアホン、宅配ボックス、浴室乾燥機、インターネット対応、システムキッチン、エレベーター、温水洗浄便座、バルコニー、コンロ:ガス、CSアンテナ、BSアンテナ、インターネット使用料無料、シャワー、給湯、洗濯機:室内、タイル張り | ||
| 当社物件ID | 91045254 | ||
建物の情報
| 建物名 | メインステージ目黒Ⅲ | ||
|---|---|---|---|
| 所在地 | 東京都目黒区目黒3丁目 | ||
| 交通 | 山手線 目黒駅 徒歩13分 | ||
| 階数 | 14階建 | 総戸数 | 55戸 |
| 築年月 | 2021年06月 / 築5年 | エレベーター | あり |
| 駐車場 | - | バイク置き場 | あり |
| 駐輪場 | あり | 管理人/管理会社 | - |
| 周辺環境 | その他 目黒三郵便局 徒歩2分(123m) その他 ローソン 目黒二丁目店 徒歩2分(123m) その他 ファミリーマート目黒三丁目店 徒歩2分(135m) その他 マルエツプチ 中目黒4丁目 徒歩3分(208m) その他 ローソン 目黒大鳥神社前店 徒歩5分(337m) その他 セブン−イレブン中目黒店 徒歩6分(458m) その他 モスバーガー目黒大鳥神社前店 徒歩6分(419m) その他 ロイヤルホスト目黒店 徒歩6分(474m) | ||
| 建物種別 | マンション | 建物構造 | RC(鉄筋コンクリート) |
この部屋の取扱い不動産会社
| 会社名 | アパマンショップ五反田店 | ||
|---|---|---|---|
| 所在地 | 東京都品川区東五反田5丁目 27-6第一五反田ビル 3F | 交通 | 山手線五反田から徒歩1分 |
| 営業時間 | 09:30〜19:00 | 定休日 | - |
| 免許番号 | 東京都知事(4)89428 | 取引態様 | 仲介 |
| 不動産会社管理番号 | 90968286 | 当社管理番号 | 4 |
| 所属団体 | (公社)全日本不動産協会東京都本部 | ||
| 公正取引協議会 | (公社) 首都圏不動産公正取引協議会加盟 | ||
| 取扱い物件情報 | 物件詳細へ | ||
※各種情報と現状に差異がある場合は、現状優先となります。問い合わせをすることで、より詳しい条件、情報を確認する事ができます。
提供:アパマンショップ五反田店
この物件が気になったら掲載期限まであと13日
メインステージ目黒Ⅲに条件(家賃・エリア)が近い物件一覧
| 写真 | 家賃 管理費等 | 敷金 礼金 | 間取り 専有面積 | 築年数 | 最寄り駅 所在地 | キープ | 詳細 |
|---|---|---|---|---|---|---|---|
マンション XEBEC池上Ⅲ(1K/2階) | |||||||
![]() | 10.7万円 1.5万円 | なし 10.7万円 | 1K 25.84m2 | 築8年 | 東急池上線 池上駅 徒歩5分 東急池上線 千鳥町駅 徒歩13分 東京都大田区池上3丁目 | 詳細を見る | |
マンション プラウドフラット南品川(1K/1階) | |||||||
![]() | 12.2万円 1万円 | 12.2万円 12.2万円 | 1K 25.44m2 | 築7年 | 京急本線 青物横丁駅 徒歩5分 りんかい線 品川シーサイド駅 徒歩11分 JR京浜東北線 大井町駅 徒歩16分 東京都品川区南品川 | 詳細を見る | |
マンション ハーモニーレジデンス羽田天空橋(1DK/3階) | |||||||
![]() | 10.45万円 1.5万円 | 10.45万円 10.45万円 | 1DK 25.75m2 | 築3年 | 京急空港線 天空橋駅 徒歩6分 京急空港線 穴守稲荷駅 徒歩10分 東京モノレール 整備場駅 徒歩17分 東京都大田区羽田 | 詳細を見る | |
マンション ジェノヴィア蒲田3スカイガーデン(1K/4階) | |||||||
![]() | 12万円 1.5万円 | なし なし | 1K 25.41m2 | 築5年 | 京浜急行電鉄本線 京急蒲田駅 徒歩6分 京浜急行電鉄空港線 糀谷駅 徒歩10分 京浜東北・根岸線 蒲田駅 徒歩15分 東京都大田区南蒲田2丁目 | 詳細を見る | |
マンション LIVEFLAT馬込(1LDK/2階) | |||||||
![]() | 14.3万円 1万円 | なし なし | 1LDK 28.48m2 | 築1年 | 都営浅草線 馬込駅 徒歩3分 東急大井町線 荏原町駅 徒歩13分 都営浅草線 西馬込駅 徒歩14分 東京都大田区中馬込 | 詳細を見る | |






