賃貸マンション
京阪電気鉄道京阪線 淀駅 徒歩10分 8階建 築20年の賃貸物件情報(3SLDK/7階)
| 家賃 | 管理費等 | 敷金 | 礼金 | 間取り | 専有面積 |
|---|---|---|---|---|---|
| 9.6万円 | 1.02万円 | なし | 20万円 | 3SLDK | 77.92m2 |
入居決定でお祝い金最大100,000円
Point
淀に登場 分譲賃貸 床暖房付きの高級分譲マンション使用
提供:株式会社 京都ライフ 小倉店(賃貸スモッカ経由)

詳細情報 京阪電気鉄道京阪線 淀駅 徒歩10分 8階建 築20年
物件紹介
京阪電気鉄道京阪線淀駅から徒歩10分にあり、駅近で通勤通学に便利なマンションです。
このお部屋は2階以上に位置しているので通行人や周囲の住人からの視線が気になりにくく、建物のエントランスはオートロックがついているので防犯性が高くなっています。
人気の南向き・フローリングのお部屋。角部屋でもあるため、周囲の居住者の生活音も気になりにくい場所です。キッチンはシステムキッチン仕様になっていますので、お料理好きの方にもぴったり。バス・トイレは別なので、のんびりお風呂タイムも楽しめるでしょう。また、雨の日でも浴室乾燥機を使えば、お洗濯も問題ありません。
通信設備面では、インターネット接続が可能です。また、BSアンテナ・CSアンテナがありCATVにも対応しているので、おうち時間も充実するでしょう(別途工事、契約料が必要な場合あり)。
床暖房があり、冬も足元から暖かく快適に過ごすことができます。建物にはエレベーターがついているので、重い荷物があっても安心。共用部には宅配ボックスが設定されているので、不在の時にも荷物を受け取ることができます。
このお部屋は2階以上に位置しているので通行人や周囲の住人からの視線が気になりにくく、建物のエントランスはオートロックがついているので防犯性が高くなっています。
人気の南向き・フローリングのお部屋。角部屋でもあるため、周囲の居住者の生活音も気になりにくい場所です。キッチンはシステムキッチン仕様になっていますので、お料理好きの方にもぴったり。バス・トイレは別なので、のんびりお風呂タイムも楽しめるでしょう。また、雨の日でも浴室乾燥機を使えば、お洗濯も問題ありません。
通信設備面では、インターネット接続が可能です。また、BSアンテナ・CSアンテナがありCATVにも対応しているので、おうち時間も充実するでしょう(別途工事、契約料が必要な場合あり)。
床暖房があり、冬も足元から暖かく快適に過ごすことができます。建物にはエレベーターがついているので、重い荷物があっても安心。共用部には宅配ボックスが設定されているので、不在の時にも荷物を受け取ることができます。
お金・契約の情報
※「-」と表示されているものは、実際は料金が発生するものもございます。詳細はお問い合わせください。
| 家賃 | 9.6万円 | 管理費・共益費 | 1.02万円 |
|---|---|---|---|
| 敷金 | なし | 礼金 | 20万円 |
| 入居決定でお祝い金最大100,000円 | |||
| 保証金 | - | 償却・敷引 | - |
| 住宅保険料 | 住宅保険料あり | 更新料 | - |
| 契約形態 | - | 契約期間 | 1年 |
| 入居・引渡期間 | 2026年05月中旬 | 現況 | 賃貸中 |
| 契約備考 | 京阪淀駅まで徒歩10分の分譲賃貸マンションです。更新料ナシ。嬉しい3点セパレートに浴室乾燥機、追い焚き機能付浴室、システムキッチン、温水洗浄便座など充実の設備。オートロック、TVホンでセキュリティも安心です。コンビニ、スーパーなど近くにあって便利ですよ。光ファイバー対応しています。 エスリードクラブ:16,500円 更新料:無し 保証会社:利用必須 初回:月額賃料等の50%、月額:保証料として月額賃料等の2% その他設備/条件:分譲賃貸、コンロ2口以上、独立洗面台、TVドアホン | ||
部屋の情報
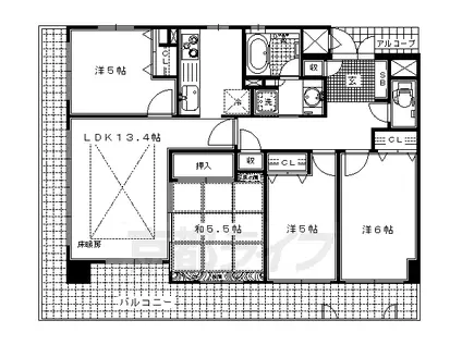
| 間取り | 3SLDK | 専有面積 | 77.92m2 |
|---|---|---|---|
| 間取り詳細 | 和室(5.5帖)、洋室(5帖)、洋室(6帖)、洋室(5帖)、LDK(13.4帖) | ||
| 所在階 / 向き | 7階 / 南東 | バルコニー面積 | - |
| 水道 / ガス | ガス【都市】 | ||
| 設備 | バス・トイレ別、2階以上、オートロック、宅配ボックス、浴室乾燥機、追い焚き、インターネット対応、システムキッチン、エレベーター、温水洗浄便座、南向き、角部屋、バルコニー、フローリング、バリアフリー、床暖房、コンロ:ガス、CATV、CSアンテナ、BSアンテナ、洗濯機:室内、有線放送 | ||
| 当社物件ID | 160488367 | ||
建物の情報
| 建物名 | 京阪電気鉄道京阪線 淀駅 徒歩10分 8階建 築20年 | ||
|---|---|---|---|
| 所在地 | 京都府京都市伏見区淀木津町 | ||
| 交通 | 京阪電気鉄道京阪線 淀駅 徒歩10分 東海道本線 長岡京駅 徒歩54分 | ||
| 階数 | 8階建 | 総戸数 | - |
| 築年月 | 2007年02月 / 築20年 | エレベーター | あり |
| 駐車場 | - | バイク置き場 | - |
| 駐輪場 | あり | 管理人/管理会社 | - |
| 建物種別 | マンション | 建物構造 | RC(鉄筋コンクリート) |
この部屋の取扱い不動産会社
| 会社名 | 株式会社 京都ライフ 小倉店(賃貸スモッカ経由) | ||
|---|---|---|---|
| 所在地 | 宇治市小倉町神楽田21-5 | 交通 | - |
| 営業時間 | - | 定休日 | - |
| 免許番号 | 京都府知事(11)第6353号 | 取引態様 | 仲介 |
| 不動産会社管理番号 | kyotolife_14007-709-11 | 当社管理番号 | 463 |
| 所属団体 | 京都府宅地建物取引業協会\n公益社団法人近畿地区不動産公正取引協議会 | ||
| 公正取引協議会 | 全国宅地建物取引業保証協会 | ||
| 取扱い物件情報 | 物件詳細へ | ||
※各種情報と現状に差異がある場合は、現状優先となります。問い合わせをすることで、より詳しい条件、情報を確認する事ができます。
提供:株式会社 京都ライフ 小倉店(賃貸スモッカ経由)
この物件が気になったら掲載期限まであと6日
京阪電気鉄道京阪線 淀駅 徒歩10分 8階建 築20年に条件(家賃・エリア)が近い物件一覧
| 写真 | 家賃 管理費等 | 敷金 礼金 | 間取り 専有面積 | 築年数 | 最寄り駅 所在地 | キープ | 詳細 |
|---|---|---|---|---|---|---|---|
マンション ASフラッティ竹田(1K/3階) | |||||||
![]() | 6万円 6,500円 | なし 12万円 | 1K 26.69m2 | 築9年 | 京都市烏丸線 くいな橋駅 徒歩7分 京阪電気鉄道京阪線 龍谷大前深草駅 徒歩10分 京都府京都市伏見区深草下川原町 | 詳細を見る | |
アパート レオネクストイン園部(1K/1階) | |||||||
![]() | 5.9万円 7,000円 | なし 5.9万円 | 1K 30.84m2 | 築15年 | JR山陰本線 園部駅 徒歩19分 JR山陰本線 船岡駅(京都) 徒歩39分 JR山陰本線 吉富駅(京都) 徒歩41分 京都府南丹市園部町木崎町薮中 | 詳細を見る | |
マンション 東海道本線 長岡京駅 徒歩7分 築51年(2DK/3階) | |||||||
![]() | 6.8万円 2,000円 | 10万円 なし | 2DK 39.66m2 | 築51年 | 東海道本線 長岡京駅 徒歩7分 阪急電鉄京都線 長岡天神駅 徒歩10分 京都府長岡京市開田1丁目 | 詳細を見る | |
マンション レオパレスおおまち(1K/1階) | |||||||
![]() | 7万円 7,000円 | なし 7万円 | 1K 21.81m2 | 築17年 | 近鉄京都線 小倉駅(京都) 徒歩15分 JR奈良線 JR小倉駅 徒歩20分 JR奈良線 宇治駅(JR) 徒歩28分 京都府宇治市槇島町大町 | 詳細を見る | |
マンション 阪急電鉄京都線 長岡天神駅 徒歩18分 築33年(2LDK/3階) | |||||||
![]() | 6.5万円 6,000円 | なし なし | 2LDK 45.9m2 | 築33年 | 阪急電鉄京都線 長岡天神駅 徒歩18分 東海道本線 長岡京駅 徒歩29分 京都府長岡京市今里西ノ口 | 詳細を見る | |
マンション 阪急電鉄京都線 東向日駅 徒歩8分 築45年(2LDK/3階) | |||||||
![]() | 8万円 5,000円 | なし 8万円 | 2LDK 52m2 | 築45年 | 阪急電鉄京都線 東向日駅 徒歩8分 東海道本線 向日町駅 徒歩14分 京都府向日市寺戸町北前田 | 詳細を見る | |
一戸建て 京阪電気鉄道京阪線 丹波橋駅 徒歩5分 築67年(2LDK) | |||||||
![]() | 10万円 なし | なし なし | 2LDK 61.47m2 | 築67年 | 京阪電気鉄道京阪線 丹波橋駅 徒歩5分 近鉄京都線 近鉄丹波橋駅 徒歩8分 京都府京都市伏見区 | 詳細を見る | |
一戸建て 京阪電気鉄道京阪線 淀駅 徒歩5分 築55年(4DK) | |||||||
![]() | 6万円 なし | なし なし | 4DK 59.76m2 | 築55年 | 京阪電気鉄道京阪線 淀駅 徒歩5分 阪急電鉄京都線 西山天王山駅 徒歩42分 東海道本線 長岡京駅 徒歩44分 京都府京都市伏見区納所薬師堂 | 詳細を見る | |









