賃貸マンション
チサンマンション札幌第8の賃貸物件情報(ワンルーム/5階)
| 家賃 | 管理費等 | 敷金 | 礼金 | 間取り | 専有面積 |
|---|---|---|---|---|---|
| 3万円 | 8,000円 | 3万円 | なし | ワンルーム | 26.98m2 |
入居決定でお祝い金最大100,000円
- 保証金
- -
- 償却・敷引
- -
- 築年数
- 築50年
- 所在階
- 5階
- 向き
- 南
Point
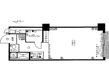
◆1K(12帖+2K) 26.98平米◆灯油FF、灯油ボイラー◆南向き、日当り良好◇スーパーまで徒歩2分◇コンビニまで徒歩3分トランクルーム付き 地下家具家電付き短期契約可能トランクルー
提供:(株)アパマン・プラザ(SUUMO経由)

詳細情報 チサンマンション札幌第8
物件紹介
チサンマンション札幌第8は地下鉄東西線円山公園駅から徒歩4分にあり、駅近で通勤通学に便利なマンションです。
このお部屋は2階以上に位置しているので、通行人や周囲の住人からの視線が気になりにくく、防犯面でも安心です。
人気の南向きのお部屋。キッチンはシステムキッチン仕様になっていますので、お料理好きの方にもぴったり。
通信設備面ではCATVに対応しているので、おうち時間も充実するでしょう(別途工事、契約料が必要な場合あり)。
建物にはエレベーターがついているので、重い荷物があっても安心。
このお部屋は2階以上に位置しているので、通行人や周囲の住人からの視線が気になりにくく、防犯面でも安心です。
人気の南向きのお部屋。キッチンはシステムキッチン仕様になっていますので、お料理好きの方にもぴったり。
通信設備面ではCATVに対応しているので、おうち時間も充実するでしょう(別途工事、契約料が必要な場合あり)。
建物にはエレベーターがついているので、重い荷物があっても安心。
お金・契約の情報
※「-」と表示されているものは、実際は料金が発生するものもございます。詳細はお問い合わせください。
| 家賃 | 3万円 | 管理費・共益費 | 8,000円 |
|---|---|---|---|
| 敷金 | 3万円 | 礼金 | なし |
| 入居決定でお祝い金最大100,000円 | |||
| 保証金 | - | 償却・敷引 | - |
| 住宅保険料 | - | 更新料 | - |
| 保証会社利用 | 利用可 | 保証会社名 | 日本セーフティー |
| 保証会社費用 | - | 保証会社備考 | 日本セーフティー利用可 契約時に賃料の50%(最低2万円)更新時に1万円 保証人がいない場合に保証会社利用。 |
| 契約形態 | - | 契約期間 | - |
| 入居・引渡期間 | - | 現況 | - |
| 入居可能条件 | 事務所可 | ||
| 契約備考 | 通勤管理/チサンマンション札幌第8は、地下鉄南北線「円山公園」駅から徒歩5分、周辺は札幌フードセンター、東光ストア、コンビニや飲食店、銀行や郵便局などがあり、交通・買物の便利が良く中央区の人気住宅地域に位置しています。円山公園・北海道神宮もあり緑も近く環境が良いです。地下鉄周辺には、人気の商業施設「マルヤマクラス」もあります。このお部屋は、地下にトランクルームがついており荷物等の収納に利用できます。 室内清掃費用 23000円 水道基本料 月額2112円 給湯基本料 月額1300円 ワンルーム 二人入居可/子供可/事務所利用相談 普通借家2年 損保【0.6万円1年】 ガスコンロ対応、クロゼット、シャワー付洗面台、陽当り良好、シューズボックス、システムキッチン、南向き、エレベーター、2口コンロ、駐輪場、CATV、礼金不要、防犯カメラ、照明付、分譲賃貸、灯油暖房、保証人不要、冷蔵庫、仲介手数料不要、敷金1ヶ月、二人入居相談、クッションフロア、駅まで平坦、洗濯機、眺望良好、全室南向き、初期費用10万円以下、トランクルーム、保証金不要、複層ガラス、灯油ボイラー、平坦地、南面リビング、電子レンジ、ベッド、家電付、家具付、耐火構造、カーテン付、2駅利用可、3駅以上利用可、駅徒歩5分以内、駅徒歩10分以内、敷地内ごみ置き場、日勤管理、セキュリティ会社加入済、都市ガス、玄関収納、年内入居可、年度内入居可、保証会社利用可、全室照明付、テレビ 入居日:'26年3月下旬 | ||
部屋の情報
| 間取り | ワンルーム | 専有面積 | 26.98m2 |
|---|---|---|---|
| 所在階 / 向き | 5階 / 南 | バルコニー面積 | - |
| 水道 / ガス | - | ||
| 設備 | 2階以上、システムキッチン、エレベーター、南向き、トランクルーム、2口コンロ、コンロ:ガス、CATV | ||
| 当社物件ID | 30419497 | ||
建物の情報
| 建物名 | チサンマンション札幌第8 | ||
|---|---|---|---|
| 所在地 | 北海道札幌市中央区南一条西 | ||
| 交通 | 地下鉄東西線 円山公園駅 徒歩4分 地下鉄東西線 西18丁目駅 徒歩8分 地下鉄東西線 西28丁目駅 徒歩12分 | ||
| 階数 | 地下1地上10階建 | 総戸数 | 96戸 |
| 築年月 | 1976年10月 / 築50年 | エレベーター | あり |
| 駐車場 | なし | バイク置き場 | - |
| 駐輪場 | あり | 管理人/管理会社 | - |
| 周辺環境 | その他 Sapporo Food Center(フードセンター) 円(スーパー)まで150m その他 東光ストア 円山店(スーパー)まで510m その他 マックスバリュ マルヤマクラス店(スーパー)まで350m その他 セブンイレブン 札幌円山公園駅店(コンビニ)まで300m その他 円山公園(その他)まで400m その他 北海道芸術高等学校札幌サテライトキャンパス(高校・高専)まで550m | ||
| 建物種別 | マンション | 建物構造 | SRC(鉄骨鉄筋コンクリート) |
この部屋の取扱い不動産会社
| 会社名 | (株)アパマン・プラザ(SUUMO経由) | ||
|---|---|---|---|
| 所在地 | 北海道札幌市中央区南九条西4-1-12 | 交通 | - |
| 営業時間 | 9:10~18:30 | 定休日 | 日曜日 |
| 免許番号 | 北海道知事石狩3992 | 取引態様 | 仲介 |
| 不動産会社管理番号 | 100490986649 | 当社管理番号 | 89 |
| 所属団体 | (公社)北海道宅地建物取引業協会会員 | ||
| 公正取引協議会 | (一社)北海道不動産公正取引協議会加盟 | ||
| 取扱い物件情報 | 物件詳細へ | ||
※各種情報と現状に差異がある場合は、現状優先となります。問い合わせをすることで、より詳しい条件、情報を確認する事ができます。
提供:(株)アパマン・プラザ(SUUMO経由)
この物件が気になったら掲載期限まであと11日
チサンマンション札幌第8に条件(家賃・エリア)が近い物件一覧
| 写真 | 家賃 管理費等 | 敷金 礼金 | 間取り 専有面積 | 築年数 | 最寄り駅 所在地 | キープ | 詳細 |
|---|---|---|---|---|---|---|---|
マンション PARK AVENUE NAKAJIMA(1DK/4階) | |||||||
![]() | 3.8万円 なし | なし なし | 1DK 22m2 | 築40年 | 札幌市南北線 中島公園駅 徒歩5分 北海道札幌市中央区南十一条西1丁目 | 詳細を見る | |
マンション 文京台レジデンスII(ワンルーム/2階) | |||||||
![]() | 2.7万円 3,000円 | なし なし | ワンルーム 29m2 | 築35年 | JR函館本線 大麻駅 徒歩15分 北海道江別市文京台 | 詳細を見る | |
アパート プルーリオンAY(1LDK/2階) | |||||||
![]() | 4.5万円 なし | 4.5万円 なし | 1LDK 41.4m2 | 築22年 | 北海道石狩市花川南七条4丁目 | 詳細を見る | |
アパート LUXE文京台(1K/2階) | |||||||
![]() | 2.5万円 なし | なし なし | 1K 27.54m2 | 築35年 | 函館本線 大麻駅 徒歩10分 北海道江別市文京台東町 | 詳細を見る | |
マンション セシアスブルー(1LDK/1階) | |||||||
![]() | 4.3万円 3,500円 | なし なし | 1LDK 27.6m2 | 築26年 | 札幌市電 西線6条駅 徒歩5分 地下鉄東西線 西11丁目駅 徒歩10分 地下鉄東西線 西18丁目駅 徒歩12分 北海道札幌市中央区南六条西 | 詳細を見る | |
アパート パルコート(1K/1階) | |||||||
![]() | 3.3万円 3,000円 | なし なし | 1K 25.11m2 | 築23年 | JR函館本線 大麻駅 徒歩7分 北海道江別市文京台東町 | 詳細を見る | |
アパート ヴィラコスモス(2DK/2階) | |||||||
![]() | 3.8万円 なし | 3.8万円 なし | 2DK 39m2 | 築36年 | 千歳線 恵み野駅 徒歩25分 北海道恵庭市恵み野北4丁目 | 詳細を見る | |
マンション アクアコースト(1DK/2階) | |||||||
![]() | 4.3万円 3,000円 | なし なし | 1DK 29.79m2 | 築18年 | 札幌市東西線 西28丁目駅 徒歩6分 北海道札幌市中央区北六条西25丁目 | 詳細を見る | |








/105x80-f1-q70-wp1)
