賃貸マンション
アーハネックス三田の賃貸物件情報(1K/4階)
| 家賃 | 管理費等 | 敷金 | 礼金 | 間取り | 専有面積 |
|---|---|---|---|---|---|
| 13.5万円 | 1万円 | 13.5万円 | なし | 1K | 24.64m2 |
入居決定でお祝い金最大100,000円
- 保証金
- -
- 償却・敷引
- -
- 築年数
- 築11年
- 所在階
- 4階
- 向き
- 北
Point
セキュリティ面は、オートロック・TVインターホンなど充実しているので安心して生活できます。宅配ボックスがあるので再配達依頼をする手間が省けます。お気軽にご連絡ください。
提供:NAVI HOME(株)恵比寿店(SUUMO経由)

詳細情報 アーハネックス三田
物件紹介
アーハネックス三田は都営三田線三田駅から徒歩7分にあり、駅近で通勤通学に便利なマンションです。
このお部屋は2階以上に位置しているので、通行人や周囲の住人からの視線が気になりにくく、防犯面でも安心。建物のエントランスはオートロックがついており、インターホンにはTVモニタもついているため、相手の顔を確認してから来客対応することができます。
フローリングのお部屋なのでお掃除もラクラク。キッチンはシステムキッチン仕様になっていますので、お料理好きの方にもぴったり。バス・トイレは別なので、のんびりお風呂タイムも楽しめるでしょう。また、雨の日でも浴室乾燥機を使えば、お洗濯も問題ありません。
通信設備面ではBSアンテナ・CSアンテナがありますので、おうち時間も充実するでしょう(別途工事、契約料が必要な場合あり)。
建物にはエレベーターがついているので、重い荷物があっても安心。共用部には宅配ボックスが設定されているので、不在の時にも荷物を受け取ることができます。
このお部屋は2階以上に位置しているので、通行人や周囲の住人からの視線が気になりにくく、防犯面でも安心。建物のエントランスはオートロックがついており、インターホンにはTVモニタもついているため、相手の顔を確認してから来客対応することができます。
フローリングのお部屋なのでお掃除もラクラク。キッチンはシステムキッチン仕様になっていますので、お料理好きの方にもぴったり。バス・トイレは別なので、のんびりお風呂タイムも楽しめるでしょう。また、雨の日でも浴室乾燥機を使えば、お洗濯も問題ありません。
通信設備面ではBSアンテナ・CSアンテナがありますので、おうち時間も充実するでしょう(別途工事、契約料が必要な場合あり)。
建物にはエレベーターがついているので、重い荷物があっても安心。共用部には宅配ボックスが設定されているので、不在の時にも荷物を受け取ることができます。
お金・契約の情報
※「-」と表示されているものは、実際は料金が発生するものもございます。詳細はお問い合わせください。
| 家賃 | 13.5万円 | 管理費・共益費 | 1万円 |
|---|---|---|---|
| 敷金 | 13.5万円 | 礼金 | なし |
| 入居決定でお祝い金最大100,000円 | |||
| 保証金 | - | 償却・敷引 | - |
| 住宅保険料 | - | 更新料 | - |
| 保証会社利用 | 必須 | 保証会社名 | - |
| 保証会社費用 | - | 保証会社備考 | 保証会社利用必 初回:総賃料の50%、2年目以降:10 000円/年 |
| 契約形態 | - | 契約期間 | - |
| 入居・引渡期間 | - | 現況 | - |
| 契約備考 | 通勤管理/■短期解約違約金有:1年未満の解約で賃料1カ月分の違約金発生。 合計4.4万円(内訳:鍵交換代4.4万円) 更新料 新賃料1.00ヶ月分 室内清掃費用 44000円 口座振替事務手数料 月額110円 1K 普通借家2年 損保【1.8万円2年】 バストイレ別、バルコニー、エアコン、ガスコンロ対応、クロゼット、フローリング、TVインターホン、浴室乾燥機、オートロック、室内洗濯置、システムキッチン、温水洗浄便座、エレベーター、洗面化粧台、2口コンロ、宅配ボックス、礼金不要、BS・CS、全居室収納、全居室洋室、保証人不要、敷金1ヶ月、全居室フローリング、2沿線利用可、CS、エアコン全室、ダブルロックキー、24時間換気システム、耐震構造、2駅利用可、3駅以上利用可、駅徒歩10分以内、日勤管理、全居室6畳以上、都市ガス、洗面所にドア、天井高シューズクロゼット、玄関収納、BS、年度内入居可、通風良好 敷金積み増し【ペット飼育の場合敷金2ヶ月(総額)】 入居日:'26年2月中旬 | ||
部屋の情報
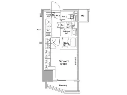
| 間取り | 1K | 専有面積 | 24.64m2 |
|---|---|---|---|
| 所在階 / 向き | 4階 / 北 | バルコニー面積 | - |
| 水道 / ガス | - | ||
| 設備 | バス・トイレ別、2階以上、オートロック、テレビドアホン、宅配ボックス、浴室乾燥機、システムキッチン、エアコン、エレベーター、温水洗浄便座、バルコニー、フローリング、2口コンロ、コンロ:ガス、CSアンテナ、BSアンテナ、洗濯機:室内 | ||
| 当社物件ID | 160064113 | ||
建物の情報
| 建物名 | アーハネックス三田 | ||
|---|---|---|---|
| 所在地 | 東京都港区芝 | ||
| 交通 | 都営三田線 三田駅(東京) 徒歩7分 JR山手線 田町駅(東京) 徒歩10分 都営三田線 芝公園駅 徒歩12分 | ||
| 階数 | 14階建 | 総戸数 | - |
| 築年月 | 2015年10月 / 築11年 | エレベーター | あり |
| 駐車場 | なし | バイク置き場 | - |
| 駐輪場 | - | 管理人/管理会社 | - |
| 周辺環境 | その他 まいばすけっと 芝浦1丁目店(スーパー)まで280m その他 ファミリーマート 南山堂第一京浜芝店(コンビニ)まで281m その他 ココカラファイン 芝浦店(ドラッグストア)まで292m その他 セブンイレブン 港区芝4丁目店(コンビニ)まで226m その他 ローソン H芝浦シーバンス・ア・モール店(コンビニ)まで387m その他 maruetsu(マルエツ) プチ 芝四丁目店(スーパー)まで373m | ||
| 建物種別 | マンション | 建物構造 | RC(鉄筋コンクリート) |
この部屋の取扱い不動産会社
| 会社名 | NAVI HOME(株)目黒店(SUUMO経由) | ||
|---|---|---|---|
| 所在地 | 東京都品川区上大崎2-13-35 ニューフジビル202 | 交通 | - |
| 営業時間 | 09:00~21:00 | 定休日 | 無 |
| 免許番号 | 東京都知事107196 | 取引態様 | 仲介 |
| 不動産会社管理番号 | 100478250499 | 当社管理番号 | 89 |
| 所属団体 | (公社)東京都宅地建物取引業協会会員 | ||
| 公正取引協議会 | (公社)首都圏不動産公正取引協議会加盟 | ||
| 取扱い物件情報 | 物件詳細へ | ||
※各種情報と現状に差異がある場合は、現状優先となります。問い合わせをすることで、より詳しい条件、情報を確認する事ができます。
提供:NAVI HOME(株)目黒店(SUUMO経由)
この物件が気になったら掲載期限まであと10日
アーハネックス三田に条件(家賃・エリア)が近い物件一覧
| 写真 | 家賃 管理費等 | 敷金 礼金 | 間取り 専有面積 | 築年数 | 最寄り駅 所在地 | キープ | 詳細 |
|---|---|---|---|---|---|---|---|
マンション プレール・ドゥーク八丁堀(1K/3階) | |||||||
![]() | 9万円 1万円 | 9万円 9万円 | 1K 21.4m2 | 築21年 | 京葉線 八丁堀駅(東京) 徒歩5分 東京地下鉄東西線 茅場町駅 徒歩7分 東京地下鉄半蔵門線 水天宮前駅 徒歩11分 東京都中央区新川1丁目 | 詳細を見る | |
マンション コンフォリア清澄白河サウス(1K/8階) | |||||||
![]() | 12.7万円 7,000円 | 12.7万円 なし | 1K 25.84m2 | 築20年 | 東京地下鉄半蔵門線 清澄白河駅 徒歩7分 東京都大江戸線 清澄白河駅 徒歩10分 東京都江東区三好3丁目 | 詳細を見る | |
マンション プライムアーバン日本橋浜町(1K/2階) | |||||||
![]() | 15.4万円 8,000円 | 15.4万円 なし | 1K 34.68m2 | 築21年 | 東京都新宿線 浜町駅 徒歩3分 東京地下鉄半蔵門線 水天宮前駅 徒歩6分 東京地下鉄日比谷線 人形町駅 徒歩8分 東京都中央区日本橋浜町2丁目 | 詳細を見る | |
マンション デルックス西大島(1K/5階) | |||||||
![]() | 10万円 8,000円 | 10万円 なし | 1K 29.4m2 | 築36年 | 都営新宿線 西大島駅 徒歩2分 都営新宿線 大島駅(東京) 徒歩11分 JR総武線 亀戸駅 徒歩13分 東京都江東区大島 | 詳細を見る | |
マンション ゼファーズ日本橋浜町(1LDK/6階) | |||||||
![]() | 17.5万円 1.1万円 | なし 17.5万円 | 1LDK 32.57m2 | 築14年 | 東京都新宿線 浜町駅 徒歩4分 東京地下鉄半蔵門線 水天宮前駅 徒歩9分 東京地下鉄日比谷線 人形町駅 徒歩10分 東京都中央区日本橋浜町2丁目 | 詳細を見る | |
マンション メイクスデザイン門前仲町2(1K/5階) | |||||||
![]() | 11万円 1.2万円 | なし 11万円 | 1K 25.58m2 | 築12年 | 東京都大江戸線 門前仲町駅 徒歩1分 東京地下鉄東西線 門前仲町駅 徒歩1分 東京都江東区深川2丁目 | 詳細を見る | |






