賃貸マンション
レオパレス東島田の賃貸物件情報(1K/1階)
| 家賃 | 管理費等 | 敷金 | 礼金 | 間取り | 専有面積 |
|---|---|---|---|---|---|
| 7.3万円 | 6,500円 | なし | 7.3万円 | 1K | 19.87m2 |
入居決定でお祝い金最大100,000円
Point
お部屋の見学、来店のご予約はお気軽にお申し付けください。
提供:(株)良和ハウス岡山駅前店(SUUMO経由)

詳細情報 レオパレス東島田
物件紹介
レオパレス東島田は山陽本線岡山駅から徒歩15分にあるマンションです。
このお部屋のインターホンにはTVモニタがついているため、相手の顔を確認してから来客対応することができます。
人気の角部屋。周囲の居住者の生活音も気になりにくい場所です。キッチンはシステムキッチン仕様になっていますので、お料理好きの方にもぴったり。バス・トイレは別なので、のんびりお風呂タイムも楽しめるでしょう。また、雨の日でも浴室乾燥機を使えば、お洗濯も問題ありません。
通信設備面では、インターネット接続が可能です(別途工事、契約料が必要な場合あり)。
このお部屋のインターホンにはTVモニタがついているため、相手の顔を確認してから来客対応することができます。
人気の角部屋。周囲の居住者の生活音も気になりにくい場所です。キッチンはシステムキッチン仕様になっていますので、お料理好きの方にもぴったり。バス・トイレは別なので、のんびりお風呂タイムも楽しめるでしょう。また、雨の日でも浴室乾燥機を使えば、お洗濯も問題ありません。
通信設備面では、インターネット接続が可能です(別途工事、契約料が必要な場合あり)。
お金・契約の情報
※「-」と表示されているものは、実際は料金が発生するものもございます。詳細はお問い合わせください。
| 家賃 | 7.3万円 | 管理費・共益費 | 6,500円 |
|---|---|---|---|
| 敷金 | なし | 礼金 | 7.3万円 |
| 入居決定でお祝い金最大100,000円 | |||
| 保証金 | - | 償却・敷引 | - |
| 住宅保険料 | 2.668万円(2年) | 更新料 | - |
| 保証会社利用 | 必須 | 保証会社名 | プラザ賃貸保証 |
| 保証会社費用 | - | 保証会社備考 | 家賃等の100%または120% |
| 契約形態 | - | 契約期間 | 2年 |
| 入居・引渡期間 | 2026年01月下旬 | 現況 | - |
| 契約備考 | 環境維持費:1ヶ月550円(税込)、鍵交換費:ご契約時16500円(税込)、退去時清掃費:41800円(税込)、インターネット利用料:有料、更新手数料:16500円(税込)、保証委託料:必要 | ||
部屋の情報
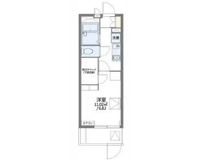
| 間取り | 1K | 専有面積 | 19.87m2 |
|---|---|---|---|
| 所在階 / 向き | 1階 / - | バルコニー面積 | - |
| 水道 / ガス | ガス【プロパン】 | ||
| 設備 | バス・トイレ別、テレビドアホン、バルコニー、シャワー | ||
| 当社物件ID | 18779300 | ||
建物の情報
| 建物名 | レオパレス東島田 | ||
|---|---|---|---|
| 所在地 | 岡山県岡山市北区東島田町1丁目 | ||
| 交通 | 山陽本線 岡山駅 徒歩15分 | ||
| 階数 | 3階建 | 総戸数 | 24戸 |
| 築年月 | 2008年03月 / 築18年 | エレベーター | - |
| 駐車場 | - | バイク置き場 | - |
| 駐輪場 | - | 管理人/管理会社 | - |
| 周辺環境 | その他 イオンスタイル岡山 徒歩8分(575m) その他 天満屋ハピーズ昭和町店 徒歩9分(709m) その他 ら・むーマート岡山富町店 徒歩9分(650m) その他 ファミリーマート岡山新屋敷店 徒歩13分(964m) その他 岡山市役所 徒歩14分(1070m) その他 奉還町商店街 徒歩15分(1133m) その他 岡山奉還町郵便局 徒歩16分(1265m) その他 岡山西警察署奉還町交番 徒歩16分(1217m) | ||
| 建物種別 | マンション | 建物構造 | 鉄骨造 |
この部屋の取扱い不動産会社
| 会社名 | アパマンショップ大供店 | ||
|---|---|---|---|
| 所在地 | 岡山県岡山市北区大供表町 6-23スフィア・ハザキ1F | 交通 | 宇野線大元から徒歩6分 |
| 営業時間 | 09:30〜18:30 | 定休日 | - |
| 免許番号 | 国土交通大臣(4)7268 | 取引態様 | 仲介 |
| 不動産会社管理番号 | 69678703 | 当社管理番号 | 4 |
| 所属団体 | (公社)岡山県宅地建物取引業協会 | ||
| 公正取引協議会 | 中国地区不動産公正取引協議会加盟 | ||
| 取扱い物件情報 | 物件詳細へ | ||
※各種情報と現状に差異がある場合は、現状優先となります。問い合わせをすることで、より詳しい条件、情報を確認する事ができます。
提供:アパマンショップ大供店
この物件が気になったら掲載期限まであと9日
レオパレス東島田に条件(家賃・エリア)が近い物件一覧
| 写真 | 家賃 管理費等 | 敷金 礼金 | 間取り 専有面積 | 築年数 | 最寄り駅 所在地 | キープ | 詳細 |
|---|---|---|---|---|---|---|---|
アパート REGALE 船頭町(1LDK/1階) | |||||||
![]() | 5.9万円 3,000円 | なし なし | 1LDK 31.19m2 | 築1年 | 岡山電軌清輝橋線 清輝橋駅 徒歩7分 岡山電軌清輝橋線 東中央町駅 徒歩11分 岡山電軌清輝橋線 大雲寺前駅 徒歩14分 岡山県岡山市北区船頭町 | 詳細を見る | |
マンション ミモザヒルズ岡山医大南(1K/2階) | |||||||
![]() | 6.1万円 5,000円 | 12.2万円 6.1万円 | 1K 26.66m2 | 新築 | 岡山電軌清輝橋線 清輝橋駅 徒歩12分 岡山電軌清輝橋線 東中央町駅 徒歩16分 宇野線 大元駅 徒歩17分 岡山県岡山市北区奥田本町 | 詳細を見る | |
マンション ハアラン内山下(1LDK/2階) | |||||||
![]() | 9.8万円 5,000円 | 19.6万円 9.8万円 | 1LDK 50.66m2 | 築30年 | 岡山電軌東山本線 県庁通り駅 徒歩4分 岡山電軌東山本線 西大寺町・岡山芸術創造劇場ハレノワ前駅 徒歩5分 岡山電軌清輝橋線 田町駅(岡山) 徒歩9分 岡山県岡山市北区内山下1丁目 | 詳細を見る | |
マンション アリベ東古松(3LDK/6階) | |||||||
![]() | 9万円 6,000円 | 18万円 9万円 | 3LDK 72.4m2 | 築25年 | 宇野線 大元駅 徒歩5分 岡山電軌清輝橋線 清輝橋駅 徒歩21分 岡山電軌清輝橋線 東中央町駅 徒歩24分 岡山県岡山市北区東古松3丁目 | 詳細を見る | |
マンション WILLDO岡山駅西口(1K/4階) | |||||||
![]() | 5.6万円 6,000円 | なし なし | 1K 27.3m2 | 築19年 | 山陽本線 岡山駅 徒歩13分 岡山電軌清輝橋線 西川緑道公園駅 徒歩17分 吉備線 備前三門駅 徒歩17分 岡山県岡山市北区昭和町 | 詳細を見る | |
マンション カーサフィオーレ表町(1LDK/6階) | |||||||
![]() | 6.9万円 5,000円 | なし 6.9万円 | 1LDK 48m2 | 築22年 | 岡山電軌東山本線 西大寺町・岡山芸術創造劇場ハレノワ前駅 徒歩3分 岡山電軌東山本線 県庁通り駅 徒歩5分 岡山電軌清輝橋線 新西大寺町筋駅 徒歩6分 岡山県岡山市北区表町2丁目 | 詳細を見る | |
マンション ハイデンスホンダ(2DK/10階) | |||||||
![]() | 6.5万円 3,000円 | なし なし | 2DK 52.2m2 | 築38年 | 宇野線 大元駅 徒歩13分 山陽本線 北長瀬駅 徒歩27分 吉備線 備前三門駅 徒歩28分 岡山県岡山市北区野田1丁目 | 詳細を見る | |







