賃貸マンション
LGENTE VALUE 麻布十番 ルジェンテバリュ麻布十番の賃貸物件情報(ワンルーム/7階)
| 家賃 | 管理費等 | 敷金 | 礼金 | 間取り | 専有面積 |
|---|---|---|---|---|---|
| 21.3万円 | 6,000円 | 21.3万円 | 21.3万円 | ワンルーム | 37.06m2 |
入居決定でお祝い金最大100,000円
- 保証金
- -
- 償却・敷引
- -
- 築年数
- 築11年
- 所在階
- 7階
- 向き
- 南
Point
★システムキッチン・3口ガスコンロ★追い焚き機能付きバス★浴室乾燥機★洗面所独立★温水洗浄便座★室内洗濯機置場★モニター付インターホン★宅配ボックス★駐輪場★詳細はお気軽にお問い合わせください!★
提供:(株)ユウキ・ホーム麻布十番店(SUUMO経由)

詳細情報 LGENTE VALUE 麻布十番 ルジェンテバリュ麻布十番
物件紹介
LGENTE VALUE 麻布十番 ルジェンテバリュ麻布十番は東京メトロ南北線麻布十番駅から徒歩2分にあり、駅近で通勤通学に便利なマンションです。
このお部屋は2階以上に位置しているので、通行人や周囲の住人からの視線が気になりにくく、防犯面でも安心。建物のエントランスはオートロックがついており、インターホンにはTVモニタもついているため、相手の顔を確認してから来客対応することができます。
人気の南向き・フローリングのお部屋。角部屋でもあるため、周囲の居住者の生活音も気になりにくい場所です。キッチンはシステムキッチン仕様になっていますので、お料理好きの方にもぴったり。バス・トイレは別なので、のんびりお風呂タイムも楽しめるでしょう。また、雨の日でも浴室乾燥機を使えば、お洗濯も問題ありません。
通信設備面では、インターネットが無料で使えるので、月々の出費を抑えられるのも魅力です(別途工事等が必要な場合あり)。
建物にはエレベーターがついているので、重い荷物があっても安心。共用部には宅配ボックスが設定されているので、不在の時にも荷物を受け取ることができます。
このお部屋は2階以上に位置しているので、通行人や周囲の住人からの視線が気になりにくく、防犯面でも安心。建物のエントランスはオートロックがついており、インターホンにはTVモニタもついているため、相手の顔を確認してから来客対応することができます。
人気の南向き・フローリングのお部屋。角部屋でもあるため、周囲の居住者の生活音も気になりにくい場所です。キッチンはシステムキッチン仕様になっていますので、お料理好きの方にもぴったり。バス・トイレは別なので、のんびりお風呂タイムも楽しめるでしょう。また、雨の日でも浴室乾燥機を使えば、お洗濯も問題ありません。
通信設備面では、インターネットが無料で使えるので、月々の出費を抑えられるのも魅力です(別途工事等が必要な場合あり)。
建物にはエレベーターがついているので、重い荷物があっても安心。共用部には宅配ボックスが設定されているので、不在の時にも荷物を受け取ることができます。
お金・契約の情報
※「-」と表示されているものは、実際は料金が発生するものもございます。詳細はお問い合わせください。
| 家賃 | 21.3万円 | 管理費・共益費 | 6,000円 |
|---|---|---|---|
| 敷金 | 21.3万円 | 礼金 | 21.3万円 |
| 入居決定でお祝い金最大100,000円 | |||
| 保証金 | - | 償却・敷引 | - |
| 住宅保険料 | - | 更新料 | - |
| 保証会社利用 | 必須 | 保証会社名 | - |
| 保証会社費用 | - | 保証会社備考 | 保証会社利用必 初回保証料:賃料等の50% 詳細はお問い合わせください。 |
| 契約形態 | - | 契約期間 | - |
| 入居・引渡期間 | - | 現況 | - |
| 契約備考 | 巡回管理/駐輪場:無料※空要確認 エアコン清掃費:16500円 合計5.5万円(内訳:鍵交換代5.5万円) 室内清掃費用 56980円 ワンルーム 単身者可 普通借家2年 損保【要】 バストイレ別、バルコニー、エアコン、ガスコンロ対応、クロゼット、フローリング、TVインターホン、浴室乾燥機、オートロック、室内洗濯置、シューズボックス、システムキッチン、南向き、追焚機能浴室、角住戸、温水洗浄便座、エレベーター、洗面所独立、洗面化粧台、駐輪場、宅配ボックス、3口以上コンロ、防犯カメラ、オートバス、保証人不要、ネット使用料不要、3駅以上利用可、3沿線以上利用可、駅徒歩5分以内、24時間ゴミ出し可、敷地内ごみ置き場、都市ガス、南面バルコニー、保証会社利用可 入居日:'26年6月上旬 | ||
部屋の情報
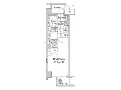
| 間取り | ワンルーム | 専有面積 | 37.06m2 |
|---|---|---|---|
| 所在階 / 向き | 7階 / 南 | バルコニー面積 | - |
| 水道 / ガス | - | ||
| 設備 | バス・トイレ別、2階以上、オートロック、テレビドアホン、宅配ボックス、浴室乾燥機、追い焚き、インターネット対応、システムキッチン、エアコン、エレベーター、温水洗浄便座、南向き、角部屋、バルコニー、フローリング、洗髪洗面化粧台、2口コンロ、コンロ:ガス、インターネット使用料無料、洗濯機:室内 | ||
| 当社物件ID | 20559864 | ||
建物の情報
| 建物名 | LGENTE VALUE 麻布十番 ルジェンテバリュ麻布十番 | ||
|---|---|---|---|
| 所在地 | 東京都港区麻布十番 | ||
| 交通 | 東京メトロ南北線 麻布十番駅 徒歩2分 都営大江戸線 赤羽橋駅 徒歩9分 東京メトロ日比谷線 六本木駅 徒歩12分 | ||
| 階数 | 11階建 | 総戸数 | - |
| 築年月 | 2016年02月 / 築11年 | エレベーター | あり |
| 駐車場 | なし | バイク置き場 | - |
| 駐輪場 | あり | 管理人/管理会社 | - |
| 周辺環境 | その他 成城石井 麻布十番店(スーパー)まで20m その他 セブンイレブン 港区麻布十番2丁目店(コンビニ)まで106m その他 マツモトキヨシ 麻布十番店(ドラッグストア)まで144m | ||
| 建物種別 | マンション | 建物構造 | RC(鉄筋コンクリート) |
この部屋の取扱い不動産会社
| 会社名 | (株)ユウキ・ホーム麻布十番店(SUUMO経由) | ||
|---|---|---|---|
| 所在地 | 東京都港区麻布十番2-19-10 | 交通 | - |
| 営業時間 | AM9:30~PM9:30 | 定休日 | 無休 |
| 免許番号 | 東京都知事76214 | 取引態様 | 仲介 |
| 不動産会社管理番号 | 100493054495 | 当社管理番号 | 89 |
| 所属団体 | (公社)東京都宅地建物取引業協会会員 | ||
| 公正取引協議会 | (公社)首都圏不動産公正取引協議会加盟 | ||
| 取扱い物件情報 | 物件詳細へ | ||
※各種情報と現状に差異がある場合は、現状優先となります。問い合わせをすることで、より詳しい条件、情報を確認する事ができます。
提供:(株)ユウキ・ホーム麻布十番店(SUUMO経由)
この物件が気になったら掲載期限まであと11日
LGENTE VALUE 麻布十番 ルジェンテバリュ麻布十番に条件(家賃・エリア)が近い物件一覧
| 写真 | 家賃 管理費等 | 敷金 礼金 | 間取り 専有面積 | 築年数 | 最寄り駅 所在地 | キープ | 詳細 |
|---|---|---|---|---|---|---|---|
一戸建て 東京都新宿線 大島駅(東京) 徒歩7分 築77年(1DK) | |||||||
![]() | 15.8万円 なし | 15.8万円 15.8万円 | 1DK 27.91m2 | 築77年 | 東京都新宿線 大島駅(東京) 徒歩7分 東京都新宿線 西大島駅 徒歩7分 総武・中央緩行線 亀戸駅 徒歩11分 東京都江東区大島3丁目 | 詳細を見る | |
マンション クレヴィスタ亀戸V(1K/6階) | |||||||
![]() | 13.1万円 1.1万円 | なし 13.1万円 | 1K 25.41m2 | 築6年 | 東武亀戸線 亀戸水神駅 徒歩2分 東武亀戸線 亀戸駅 徒歩12分 東武亀戸線 東あずま駅 徒歩12分 東京都江東区亀戸 | 詳細を見る | |
マンション BRILLIA IST 門前仲町(1LDK/4階) | |||||||
![]() | 20.6万円 1.5万円 | 20.6万円 なし | 1LDK 35.21m2 | 築1年 | 東京メトロ東西線 門前仲町駅 徒歩7分 東京メトロ半蔵門線 清澄白河駅 徒歩10分 東京メトロ東西線 木場駅 徒歩21分 東京都江東区深川 | 詳細を見る | |
マンション サンウッド東日本橋フラッツ(1LDK/3階) | |||||||
![]() | 18万円 9,000円 | 18万円 18万円 | 1LDK 39.93m2 | 築10年 | JR総武線快速 馬喰町駅 徒歩1分 都営浅草線 東日本橋駅 徒歩3分 都営新宿線 馬喰横山駅 徒歩3分 東京都中央区日本橋横山町 | 詳細を見る | |
マンション ザ・パークワンズ日本橋人形町(1LDK/2階) | |||||||
![]() | 21万円 なし | 21万円 21万円 | 1LDK 33.26m2 | 築1年 | 東京メトロ日比谷線 人形町駅 徒歩3分 東京メトロ半蔵門線 水天宮前駅 徒歩5分 都営新宿線 浜町駅 徒歩8分 東京都中央区日本橋人形町 | 詳細を見る | |
マンション エスティメゾン豊洲レジデンス E棟(2LDK/2階) | |||||||
![]() | 24.8万円 1.2万円 | 24.8万円 24.8万円 | 2LDK 56.5m2 | 築19年 | 東京メトロ有楽町線 豊洲駅 徒歩5分 東京メトロ有楽町線 月島駅 徒歩19分 新交通ゆりかもめ 新豊洲駅 徒歩20分 東京都江東区豊洲 | 詳細を見る | |
マンション クレヴィスタ亀戸IV(1K/10階) | |||||||
![]() | 13.5万円 1.1万円 | なし 13.5万円 | 1K 25.56m2 | 築7年 | 総武・中央緩行線 亀戸駅 徒歩4分 東武鉄道亀戸線 亀戸駅 徒歩4分 総武本線 錦糸町駅 徒歩12分 東京都江東区亀戸2丁目 | 詳細を見る | |
マンション エスティメゾン豊洲レジデンスC棟(1LDK/4階) | |||||||
![]() | 17万円 1万円 | 17万円 17万円 | 1LDK 38.62m2 | 築19年 | 東京メトロ有楽町線 豊洲駅 徒歩5分 JR京葉線 越中島駅 徒歩17分 東京メトロ東西線 門前仲町駅 徒歩25分 東京都江東区豊洲 | 詳細を見る | |









